Как сделать ворота из профильной трубы своими руками. Как изготовить ворота из профильной трубы своими руками — пошаговая инструкция с фото и видео
- Как сделать ворота из профильной трубы своими руками. Как изготовить ворота из профильной трубы своими руками — пошаговая инструкция с фото и видео
- Ворота из профильной трубы 40х20 своими руками. Чертежи распашных металлических ворот из профлиста и требуемые материалы
- Ворота из круглой трубы своими руками. Виды калиток из профтрубы
- Красивые ворота из профильной трубы. Раздвижные ворота своими руками
- Самый простой способ сварить ворота. Разновидности
- Распашные ворота из профильной трубы. Профильная труба для устройства ворот-плюсы и минусы
- Каркас ворот своими руками. Достоинства и недостатки консольных ворот
- Ворота из профильной трубы 40х40. Как сварить ворота из профильной трубы своими руками: чертежи и расчет, фото
Как сделать ворота из профильной трубы своими руками. Как изготовить ворота из профильной трубы своими руками — пошаговая инструкция с фото и видео
Преимущества профильной трубы для изготовления ворот
Труба из профиля, как основной материал для создания ворот, востребована, популярна и часто используется благодаря следующим достоинствам:
- низкая стоимость;
- высокая прочность и при этом небольшой вес;
- удобство монтажа – профиль податливый, легко вырезать детали, сваривать заготовки, соединять саморезами.

Но наряду с плюсами есть и недостатки:
- Слабая устойчивость к коррозии. Высокая влажность окружающей среды и жидкость, проникающая внутрь конструкции, постепенно приводит к образованию ржавчины.
- Наносить грунтовку и краску на поверхность труб неудобно, что значительно затягивает время установки.
- При неаккуратном обращении и ошибках при установке каркас часто деформируется.
Как изготовить ворота из профильной трубы своими руками
Ворота для дома или дачи могут быть изготовлены самостоятельно. Подходящим материалом для этой цели является металл.
Существует большое количество различных способов изготовления проезда из этого материала, но наиболее простым и практичным техническим решением, является использование профильной трубы. При наличии сварочного аппарата ворота из профильной трубы своими руками можно изготовить в течение одного дня.
Виды ворот из профильной трубы
Изготовление ворот из профильной трубы своими руками может осуществляться следующих видов:
- В виде решётки.
- Обшитые сайдингом, деревом либо профнастилом.
- С элементами ковки.
- Ажурные.

Если створки устанавливаются для того, чтобы скрыть двор от посторонних глаз, то из профиля изготавливается только рама ворот, а свободное пространство полностью закрывается с помощью любого сплошного материала.
В случае, когда необходимо установить ворота с элементами декора, то при сборке следует использовать кованые изделия, которые не закрывают обзор участка за ограждением. Ворота также могут быть изготовлены с использованием внутри рамы параллельно расположенных отрезков профильной трубы небольшого сечения.

Вне зависимости от вида ворот изготавливаемых самостоятельно из профильной трубы, необходимо правильно подобрать материал для изготовления опор, каркаса и внутреннего заполнения рамы.
Выбираем профильную трубу
Только при наличии качественного материала можно изготовить ворота, геометрическая форма которых не изменится в течение длительного промежутка времени.
Если на поверхности материала имеется глубокая коррозия, то от использование такого профиля следует отказаться. Поэтому, если нужно использовать материал, который остался от выполнения других видов строительных работ, его следует тщательно осмотреть перед использованием.
Самым правильным вариантом является приобретение профильной трубы на металлобазе. Для изготовления конструкции потребуется материал следующего сечения:
- Для изготовления опор — 80*80 мм.
- Для рамы — 60*40 или 40*20 мм.
- Для перемычек — 40*20 или 20*20 мм.

Толщина стенок металлической трубы не должна быть менее 2 мм.
Для выполнения сварочных и монтажных работ также понадобятся:
Когда все материалы и инструменты будут приготовлены можно приступать к непосредственному изготовлению сварной конструкции.
Процесс изготовления ворот из профильной трубы
Прежде чем приступить к практической части, составляются подробные чертежи и эскизы данного изделия. На бумаге следует обязательно указать длину и высоту сооружения, а также количество перемычек между горизонтальными плоскостями.
Если изготавливается распашная конструкция, то необходимо сварить две одинаковые по размеру створки.

При конструировании более сложной, откатной системы, ворота выполняются в виде одного длинного полотна прямоугольной формы.

Вне зависимости от типа конструкции, ширина не должна быть менее 3 метров, а высота — 1,6 м.
Ворота из профильной трубы 40х20 своими руками. Чертежи распашных металлических ворот из профлиста и требуемые материалы
Итак, пришло время рассказать, какую конфигурацию я выбрал для своих ворот. Размеры определялись просто. Высоту каждого полотна я назначил в соответствии с высотой профлиста – 2000 мм. Ширину – 2030 мм,с учетом сантиметровых зазоров для свободного хода створок. Если сделать впритык, летом они могли и не закрыться, увеличившись от нагрева. Коэффициент температурного расширения у металла достаточно велик.
Как я уже указывал, основную роль в обеспечении жесткости должны взять на себя листы профнастила. Это позволило отказаться от длинных диагональных раскосов, сэкономив почти шесть метров металлической профтрубы (см. чертеж).
Металлические раскосы окажутся бесполезными после того, как к каркасу будут прикреплены профлисты
А вот горизонтальные планки на середине высоты створки придется установить, иначе при высоте 2 метра жесткости листа будет недостаточно
Я просто укрепил каркас по углам небольшими отрезками. Заоднополучилось и вес ворот уменьшить, снизив нагрузку на петли. А вот промежуточный горизонтальный прогон посередине каждого полотна пришлось поставить, иначе листы могли не выдержать ветровую нагрузку и погнуться.
Уже в процессе изготовления мне вдруг пришла в голову мысль, что неплохо было бы дополнить ворота калиткой. Открывать каждый раз наружу даже одну из створок, чтобы пройти пешком, неудобно. Сняв каркас одного из полотен, я вварил в него еще и каркас калитки.
Итак, для работы мне потребовались следующие материалы:
труба профильная 40 х 20 х 2 мм для распашных ворот – 22,0 пог. м;
труба профильная 40 х 20 х 2 мм для установки калитки – 10,0 пог. м;
профилированный стальной лист 1200 х 2000 мм – 4 штуки;
саморезы заборные 5,5 х 19 мм – около 120 (в т. ч. около 20 шт. пришлось добавить из-за устройства калитки) шт;
петли – 3 пары (в т. ч. 1 пара для калитки).
Я намеренно указал отдельно расход материалов на калитку – если делать ворота без нее, получится еще более бюджетный вариант. Однако, как показывает практика, дешево – не всегда хорошо.
Инструменты я использовал вполне доступные:
угловую шлифмашину с шлифовальным и отрезными дисками;
сварочный аппарат с парой килограмм электродов;
шуруповерт (его можно заменить низкооборотистой электродрелью) ;
молоток;
угольник;
рулетка;
карандаш;
уровень;
отвес;
струбцины.
Все материалы необходимо подготовить заранее – в процессе изготовления может потребоваться подгонка «по месту».
Ворота из круглой трубы своими руками. Виды калиток из профтрубы
Ворота и калитка смотрятся цельно и гармонично, когда их делают одной высоты в едином художественном стиле. По типу заполнения изделия бывают коваными, металлосварными, открытого и закрытого типа. Выбор зависит от особенностей участка, архитектуры дома, а также задачи, которую выполняет ограждение.

Объединяет все виды калиток первооснова — профтруба
Кованая — это сваренная рама, пространство в которой заполнено ажурной вязью из кованых элементов и металлического прута. Их делают открытого и закрытого типа. Заказать калитку можно готовую типовую или выполненную по индивидуальному проекту. Цена типовых кованых изделий зависит от сложности рисунка и составляет 1100–3500 руб. за 1 кв. м.

Внешний вид конструкции с элементами ковки
Цена изделия, изготовленного по индивидуальному проекту, дороже, 12000 руб. за 1 кв. м в зависимости от сложности работы. Преимущества: внешний вид, срок службы, надежное ограждение. Недостатки: стоимость, большой вес.
Конструкция из профнастила выглядит как рама, обшитая профлистом. Пространство заполняют двумя способами. Первый – профнастил прикручивают сверху каркаса. Второй способ – лист вставляют внутрь рамы.
Каркас делают из профильной трубы 40х20 мм, для жесткости внутрь приваривают перемычки из профиля 20х20 мм.

Вариант устройства дверцы из профилированного листа
Конструкция получается жесткая, удобная для крепления профлиста. Плюсы: изделие легкое, цена невысокая, монтаж простой. Минусы: требуется аккуратное отношение, чтобы не повредить профлист, требуется установка резинового уплотнителя, чтобы готовое изделие бесшумно закрывалось.
Калитка закрытого сварного типа — к каркасу приваривают металлический лист толщиной 1,5 мм или 2 мм, получается прочная конструкция, которую оформляют узорами из кованых элементов или создают строгие формы. За счет металлического листа конструкция выходит тяжелая, вес изделия 1х2,5 м приблизительно 70 кг.

Пример создания кованой сварной модели
Производитель предлагает готовое изделие с комплектом, в который входят засовы, навесы, проушины, его стоимость 13000 руб. Дополнительно можно приобрести столбы 80х80х3 мм длиной 3 м за 1300 руб. Плюсы: надежность, долгий срок эксплуатации. Минусы: высокая цена и большой вес.
Открытый тип калитки, в котором пространство заполнено выгнутой для жесткости сеткой из проволоки 3–6 мм. Детали выкрашены специальным способом в несколько слоев, гарантия изделия 20 лет. Калитку из 3D-сетки устанавливают вместе с аналогичными системами ограждения.

Входная группа из объемной сетки позволяет огородить участок от несанкционированного проникновения
Цена ограждения зарубежного производства составляет 10000 руб. за изделие 2х1 м. Плюсы: простой монтаж, легкий вес, современный вид, долгий срок эксплуатации. Минусы: высокая цена.
Красивые ворота из профильной трубы. Раздвижные ворота своими руками
Раздвижные ворота – это отличный вариант для дома или дачи. Они обладают надежной конструкцией и имеют длительный срок службы. Раздвижные ворота изготавливаются из профильной трубы и обшиваются различными материалами, в том числе, металлопрофилем.
Раздвижные ворота бывают двух видов:
- Рельсовые – устаревшая модель, применяемая в основном на промышленных предприятиях.
- Консольные – наиболее распространённый вариант. Данная конструкция предусматривает наличие консоли, которая является продолжением ворот и спрятана за забором. Благодаря ей ворота перемещаются по откатным тележкам, прикрепленным к фундаменту. Каждый откатной механизм снабжен подшипниками с полимерными или металлическими катками. Сами тележки находятся в направляющей, что защищает их от загрязнения и атмосферных осадков.
Столбы для забора из профнастила: применяемые материалы, от чего зависит расстояние и глубина, этапы монтажа
При использовании в частном доме такая конструкция прослужит более 20 лет. Она рассчитана на 60000 циклов открывания-закрывания.
Достоинства раздвижных ворот:
- возможность ручного и автоматического управления;
- отсутствие ограничений по высоте и тяжести проходящего транспорта;
- лёгкость в изготовлении;
- отсутствие необходимости обслуживания.
Недостатки:
- необходимость в более мощных несущих опорах;
- требуется большая ширина забора для открытия створки.
Основные элементы раздвижных ворот:
- Верхний улавливатель.
- Поддерживающая шина.
Для дистанционного управления дополнительно приобретаются: пульт ДУ, фотодатчики или световые датчики для приема сигнала пульта ДУ, препятствующие закрытию ворот, если в проеме находится какой либо предмет.
Самый простой способ сварить ворота. Разновидности
Существует множество конфигураций распашных ворот. Необходимая конфигурация подбирается исходя из свободного места на участке или за его пределами. Ведь при открывании створки занимают немало места, и эту особенность нужно предусмотреть.

Всего разделяют три основных разновидности:
- Одностворчатые распашные ворота. Вариант редко используемый, но все-таки встречающийся на участках с большим количеством свободного места. В таком варианте ворота состоят из одной створки, открывающейся в правую или левую сторону, в зависимости от ваших пожеланий. Такая конструкция проще в сборке, но сложнее в монтаже и эксплуатации. Поскольку створка держится на петлях только с одной стороны, для таких ворот требуется усиленная опора и усиленные петли. Нередко одностворчатые ворота провисают и деформируются, если длина створки сильно превышает ее высоту.
- Двустворчатые распашные ворота. Самый популярны вариант ворот среди всех разновидностей в принципе. Экономично, надежно, занимает мало места, нет проблем с монтажом и ремонтом. Такие ворота состоят из двух створок, открывающихся в разные стороны.
- Одностворчатые/двустворчатые ворота с врезной калиткой в створке. Если вариант сварить ворота и калитку рядом кажется вам недостаточно удобным, можно прорезать отверстие в самой створке и установить калитку туда. Выбор спорный, но некоторым умельцам он нравится. Учтите, что в таком случае порог будет достаточно высоким, что не всегда удобно для детей и пожилых.
Распашные ворота из профильной трубы. Профильная труба для устройства ворот-плюсы и минусы
Профильная труба имеет несколько видов сечения: прямоугольное, квадратное, круглое и овальное, а также может иметь различные параметры и обычно используется для изготовления прочных каркасов различных типов ворот. Труба может быть выполнена из прочной стали:
- Углеродистой;
- Нержавеющей;
- Оцинкованной.
В основном для изготовления распашных или откатных ворот используют прочную углеродистую или оцинкованную сталь. Нержавейка является более лёгким материалом и поэтому она не сможет выдерживать слишком большие весовые нагрузки.
Профильная труба для изготовления каркаса для ворот
Профильная труба отличается по способу производства:
- Сварная горячекатаная предназначена для изготовления сварных конструкций, которые не требуют сильной и большой нагрузки.
- Сварная холоднокатаная труба обычно используется в быту для изготовления различных каркасов.
- Бесшовная труба является более надёжной и качественной, так как наиболее слабым местом всех сварных изделий считается именно большой и грубый шов. Такие трубы очень пластичные и устойчивые к проявлению высокого вертикального давления. Поэтому она зачастую применяется для устройства ворот.
Для устройства прочных и надёжных распашных или откатных ворот отлично подойдёт недорогая по своей стоимости горячекатаная труба. Конструкция их достаточно простая и включает только каркас и створки. Именно каркас изготавливается из прочной трубы. Загородные ворота могут быть обычными распашными, подвесными или откатными и независимо от их типа на них можно устанавливать современную автоматическую систему для дистанционного открытия и закрытия пультом управления конструкции. Такие ворота будут прекрасно смотреться на приусадебном участке и надёжно защищать двор от посторонних глаз.
Практически каждый хозяин дома сможет самостоятельно изготовить ворота из профильной трубы, если умеет пользоваться сваркой, болгаркой, дрелью, а также умеет составлять чертежи. Также залогом надёжных ворот будет качественная профильная труба и фурнитура.
Стальная труба самым лучшим образом подходит для устройства загородных ворот, так как здесь предусматривается меньший расход материала, что существенно удешевляет всю воротную конструкцию.
Виды профильной трубы для изготовления ворот
Обшивка выполняется из таких материалов, как:
- Профильный или гофрированный лист. Он достаточно прочен, устойчив к негативному воздействию внешних факторов, а также имеет небольшой вес и доступную цену.
Ворота из профиля, обшитые профлистом
- Металлический прокат. Для того чтобы избежать коррозии обычно используют высококачественный материал с оцинковкой.
- Деревянная обшивка также достаточно прочная и надёжная. После её установки деревянную доску необходимо прогрунтовать, а затем вскрыть лаком или краской.
Каркас ворот своими руками. Достоинства и недостатки консольных ворот
Прежде чем приступить к подробному изучению вопроса о монтаже и изготовлении откатных ворот своими руками, предлагаем вам ознакомиться с их положительными и отрицательными сторонами.
Преимущества:
- За счет отсутствия открывающихся консольных створок, внутри и снаружи двора появляется гораздо большее полезное пространство. Объясняется это тем, что открытые ворота направляются вдоль забора.
- Особая конструкция откатных ворот сводится к тому, что снизу и сверху нет никаких ограничений по габаритам.
- Установленное полотно откатных ворот своими руками подвешивается над уровнем земли около 100 мм. Поэтому если будут обильные снегопады, ничто не будет мешать процессу их открывания.
- Механизм открывания скрыт в балке. Как следствие они защищены от негативного воздействия влаги и других атмосферных явлений.
- Если устанавливается автоматика своими руками, то открыть откатные ворота сможет даже ваш ребенок.
- При соблюдении технологии изготовления фундамента под консоль, устройство откатных ворот способно справиться с серьезной ветровой нагрузкой.
- Изготовленные откатные ворота легко оборудовать автоматикой. Так, открывание может выполняться при помощи дистанционного управления.
Есть и минусы этого решения:
- Если у вас нет никаких навыков в строительстве подобных конструкций, то можете столкнуться с затруднениями. Объясняется это тем, что из всех видов откатных ворот, консольные сделать своими руками сложнее всего.
- Для открывания консольной створки откатных ворот вдоль забора должно быть свободное пространство в 1,5 раза больше, чем размер самих откатных ворот. Не всегда есть возможность обеспечить это.
Ворота из профильной трубы 40х40. Как сварить ворота из профильной трубы своими руками: чертежи и расчет, фото
Ворота из профильной трубы отличаются высокой прочностью, простотой в самостоятельном монтаже и доступной ценой. Неудивительно, что подобные изделия пользуются большой популярностью среди владельцев загородной недвижимости. Как сделать ворота из профильной трубы своими руками, описано ниже в статье.

На даче
Достоинства и недостатки профилированных труб
- высокую прочность при легком весе;
- возможность самостоятельного монтажа (металлопрофиль легко режется, сваривается и соединяется самонарезающими шурупами).

На участке
К недостаткам профильных изделий относят:
- подверженность ржавлению при взаимодействии с атмосферными осадками, обусловливающими образование коррозии;
- неудобство в грунтовании и окрашивании поверхности трубопроката, что влечет за собой увеличение временных затрат на установку труб.

Фигурный металлоштакетник
Как видно выше, достоинства профильных труб с лихвой компенсируют их недостатки.
Как сварить ворота на забор из профильной трубы своими руками
Технология изготовления конструкции достаточно простая. Чтобы сварить ворота из профильных труб, нужно подобрать вид изделия, оптимально подходящий под конструкцию створок.

Установка запоров
Выбор труб
Профтрубу под ворота предпочтительней выбрать квадратного либо прямоугольного сечения. Трубы такой формы легче монтируются и транспортируются на участок. Наиболее прочные профильные трубы производятся из следующих видов стали:
- нержавейки;
- оцинковки;
- углеродистой.
На фото представлены металлические створки.

Кованые элементы
Цена трубных заготовок зависит от материала, из которого они изготовлены. Наиболее бюджетным вариантом являются изделия из углеродистой стали. Впрочем, при выборе труб из углеродного сплава учитывается низкая прочность и короткий эксплуатационный срок такой продукции.
Сварные холоднокатаные и оцинкованные профили – оптимальный вариант под створки, но их стоимость выше. Трубы равнозначного диаметра могут вдвое отличаться по толщине стенок.
Под створки используются трубы квадратного либо прямоугольного сечения. Сделать работу правильно и своими руками возможно при наличии сварочного аппарата и вспомогательных инструментов.
На фото изображена конструкция после установки.

После монтажа
Подготовка участка
На стадии подготовки учитываются габариты въезжающего в проем ворот автотранспорта. Определяется общая площадь, занимаемая распашными или откатными створками. Стандартные размеры ворот составляют:
- по общей ширине – 2,5–3,5 м;
- по высоте (ворот и калитки) – 1м 50 см;
- по ширине калитки – 0,75–1 м.
На фото изображены ворота на даче.

Металлический штакетник на профтрубе
С учетом калитки общая ширина участка под ворота должна составлять 3,5 или 4,5 м. Конструкция, монтируемая на ранее установленное заграждение, ставится по соответствующей изгороди высоте. Иногда допустима меньшая высота створок, но не менее 40 сантиметров.
Чертежи и расчет
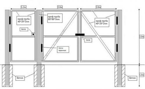
Перед проведением работ на бумагу наносится чертеж. Изображают прямоугольный проем с прямоугольником меньшего размера внутри, обозначающим раму из профиля с указанием длины и ширины будущей конструкции. Также проводится расчет финансовых затрат на приобретение необходимых материалов и набора инструментов для работы.

Схема установки с размерами
Ворота из профтрубы собираются из различных элементов, отличающихся сечением. Диаметр стальной трубы под несущие створки опоры составляет 80х80 или 100х100 мм. Каркас ворот из профтрубы выполняется из изделий 50х50 мм.
Перемычки и продольные полосы сваривают из отрезков профиля 20–40 мм.
Кроме основных величин, на рисунке чертежа указывают размеры зазоров между створками, грунтом и опорами. На сторонах с петлями приблизительная ширина зазора составляет 5 мм. Учитывая возможное провисание ворот и их подклинивание в будущем, на стороне с замками оставляют просвет в 10 мм.

Эскиз металлического каркаса
На участке, не подверженном снегу и мусору, внизу створок учитывается просвет, но не меньше 20 мм. При учете негативного воздействия внешних факторов высота зазора предусматривается в 50–150 мм (решается индивидуально).
Подготовка инвентаря
Работа выполняется посредством следующих инструментов:
- оборудования для сварки и электродов;
- угловой шлифовальной машины (болгарки) с абразивными и отрезными кругами;
- измерительных приборов: рулетки, строительного уровня, отвеса, угольника;
- винтоверта с самонарезающими шурупами по металлу;
- бура или лопаты;

Чертеж каркаса из металла
Используемые материалы:
- Профильные трубы. Из профиля изготавливается каркас. Для сваривания рамы и перемычек используют трубы сечением 50х50, 20х40 или 20х20 мм.
- Материал для обшивки. Створчатая рама отделывается профлистом, деревом, коваными элементами. При планировании оригинального дизайна обшивка комбинируется.
На фото ниже изображена дача.