Как сконструировать гаражные ворота самостоятельно. Виды гаражных ворот: какие лучше
- Как сконструировать гаражные ворота самостоятельно. Виды гаражных ворот: какие лучше
- Как сварить гаражные ворота из профиля. Как изготовить ворота из профильной трубы своими руками — пошаговая инструкция с фото и видео
- Подъемные гаражные ворота своими руками. Подъемные ворота своими руками: необходимые материалы для изготовления + поэтапная инструкция по сооружению и установке своими руками
- Каркас гаражных ворот. Из каких материалов можно сделать
Как сконструировать гаражные ворота самостоятельно. Виды гаражных ворот: какие лучше
- Распашные;
- Подъёмные (рулонные и секционные).
Сдвижные (раздвижные) отличаются тем, что их полотно закрепляют на специальной балке. Эта балка имеет особенную конструкцию, позволяющую ей перемещаться по роликам на прикреплённых опорах. У них есть отличительная черта, выраженная в том, что у этого типа крепления нет верхних и нижних направляющих. Они могут быть разными. Различаются по месту расположения балки. Она может располагаться вверху или внизу.

Полотно сдвижных ворот закрепляют на специальной балке
Также их различают по виду полотна, которое может быть прозрачным или непрозрачным. Также распространён телескопический вид сдвижных ворот – складные, которые отличаются тем, что способны складываться внутрь себя. В народе их еще называют откидными.
Распашные применяют чаще всех остальных. Их используют ещё с древних времён, снабжая ими не только гаражи, но и приусадебные участки. Их отличительной чертой является наличие створок, которые могут открываться как наружу, так и внутрь. По такой же технологии можно сделать железные гаражи и из профнастила пенал гараж с козырьком.

Распашные ворота встречаются чаще остальных
Полотна могут быть изготовлены из различных материалов. Основным их преимуществом следует назвать то, что в них нет лишних деталей. Простота — это основной принцип, которого придерживаются при построении распашных ворот. Одновременно с этим, они могут быть очень прочными и надёжными. Этого добиваются при помощи технологии “двойной металл”.
Среди всего разнообразия подъёмных ворот следует выделить три основных типа. Это:
- Подъёмно-поворотные;
- Подъёмно-гильотинные;
- Секционные.
На фото подъёмные ворота могут открываться как вручную, так и автоматически
Все вышеописанные разновидности гаражных ворот могут открываться вручную или автоматически при помощи того или иного механизма. Тот или иной вид ворот следует устанавливать в различных помещениях.
Многие хозяева считают, что для домашнего гаража автоматические конструкции являются самым оптимальным вариантом. Они позволяют избегать лишних проблем, связанных с открыванием и закрыванием.
Для их изготовления может быть использован облегчённый вариант сэндвич-панелей. Установка секционных ворот позволяет сэкономить на строительстве, но не на качестве готового изделия. При правильной эксплуатации они прослужат верой и правдой долгие годы.
Для помещений, в которых мало места, отлично подойдёт сдвижной тип. Если необходимо, чтобы пространство у стены оставалось свободным, нужно устанавливать их телескопическую разновидность.
Немного гаражного и близлежащего пространства занимают ворота подъёмного типа. Кроме того, они обычно имеют эффектный вид. Они могут сворачиваться как по вертикали, так и по горизонтали. Подниматься к потолку или быть рулонными. Для неотапливаемых гаражей более экономично не использовать утеплитель.
Как сварить гаражные ворота из профиля. Как изготовить ворота из профильной трубы своими руками — пошаговая инструкция с фото и видео
Преимущества профильной трубы для изготовления ворот
Труба из профиля, как основной материал для создания ворот, востребована, популярна и часто используется благодаря следующим достоинствам:
- низкая стоимость;
- высокая прочность и при этом небольшой вес;
- удобство монтажа – профиль податливый, легко вырезать детали, сваривать заготовки, соединять саморезами.

Но наряду с плюсами есть и недостатки:
- Слабая устойчивость к коррозии. Высокая влажность окружающей среды и жидкость, проникающая внутрь конструкции, постепенно приводит к образованию ржавчины.
- Наносить грунтовку и краску на поверхность труб неудобно, что значительно затягивает время установки.
- При неаккуратном обращении и ошибках при установке каркас часто деформируется.
Как изготовить ворота из профильной трубы своими руками
Ворота для дома или дачи могут быть изготовлены самостоятельно. Подходящим материалом для этой цели является металл.
Существует большое количество различных способов изготовления проезда из этого материала, но наиболее простым и практичным техническим решением, является использование профильной трубы. При наличии сварочного аппарата ворота из профильной трубы своими руками можно изготовить в течение одного дня.
Виды ворот из профильной трубы
Изготовление ворот из профильной трубы своими руками может осуществляться следующих видов:
- В виде решётки.
- Обшитые сайдингом, деревом либо профнастилом.
- С элементами ковки.
- Ажурные.

Если створки устанавливаются для того, чтобы скрыть двор от посторонних глаз, то из профиля изготавливается только рама ворот, а свободное пространство полностью закрывается с помощью любого сплошного материала.
В случае, когда необходимо установить ворота с элементами декора, то при сборке следует использовать кованые изделия, которые не закрывают обзор участка за ограждением. Ворота также могут быть изготовлены с использованием внутри рамы параллельно расположенных отрезков профильной трубы небольшого сечения.

Вне зависимости от вида ворот изготавливаемых самостоятельно из профильной трубы, необходимо правильно подобрать материал для изготовления опор, каркаса и внутреннего заполнения рамы.
Выбираем профильную трубу
Только при наличии качественного материала можно изготовить ворота, геометрическая форма которых не изменится в течение длительного промежутка времени.
Если на поверхности материала имеется глубокая коррозия, то от использование такого профиля следует отказаться. Поэтому, если нужно использовать материал, который остался от выполнения других видов строительных работ, его следует тщательно осмотреть перед использованием.
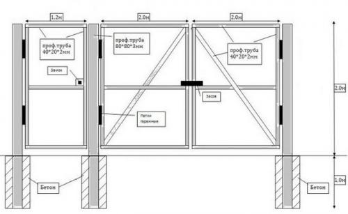
Самым правильным вариантом является приобретение профильной трубы на металлобазе. Для изготовления конструкции потребуется материал следующего сечения:
- Для изготовления опор — 80*80 мм.
- Для рамы — 60*40 или 40*20 мм.
- Для перемычек — 40*20 или 20*20 мм.

Толщина стенок металлической трубы не должна быть менее 2 мм.
Для выполнения сварочных и монтажных работ также понадобятся:
Когда все материалы и инструменты будут приготовлены можно приступать к непосредственному изготовлению сварной конструкции.
Процесс изготовления ворот из профильной трубы
Прежде чем приступить к практической части, составляются подробные чертежи и эскизы данного изделия. На бумаге следует обязательно указать длину и высоту сооружения, а также количество перемычек между горизонтальными плоскостями.
Если изготавливается распашная конструкция, то необходимо сварить две одинаковые по размеру створки.

При конструировании более сложной, откатной системы, ворота выполняются в виде одного длинного полотна прямоугольной формы.

Вне зависимости от типа конструкции, ширина не должна быть менее 3 метров, а высота — 1,6 м.
Источник: https://gorizont-pro.ru/novosti/kak-svarit-garazhnye-vorota-svoimi-rukami-vybiraem-materialy
Подъемные гаражные ворота своими руками. Подъемные ворота своими руками: необходимые материалы для изготовления + поэтапная инструкция по сооружению и установке своими руками
Любой гараж должен быть оборудован прочными и удобными воротами. Оптимальным вариантом являются гаражные ворота с подъёмным механизмом, изготовленные своими руками.

Такие конструкции имеют массу плюсов на практике, могут быть построены непосредственно владельцем, а также требуют минимальных вложений на расходный материал.

Фото различных вариантов подъёмных ворот для гаража, выполненные своими руками, можно найти на страницах журналов, веб порталах практического строительства.

Преимущества ворот с подъёмным механизмом
В условиях дефицита свободной площади (узкий частный двор или сектор, отведенный под строительство в многоквартирном дворе) подъёмные ворота для гаража являются наиболее практичным выбором.

Конструкции подобного типа не требуют дополнительного места для отката воротной пластины, которая в данном случае выводится в свободное пространство под потолочными балками.

Кроме того, к плюсам строительства подъёмных ворот в гараж своими руками следует отнести:
- Достаточно большое количество пошаговых инструкций и чертежей для самостоятельной работы.
- Надежная защита гаражного бокса от ветра, дождя. Гараж, оборудованный подъёмной дверью, может быть обустроен в виде теплого помещения. На практике используется не только монтаж внутреннего отопления, но и дополнительное утепление самой воротной пластины.
- Ворота на гараж отличаются достаточной прочностью, которая защитит помещение, автомобиль, инструментарий от незваных посетителей.
- Наружная сторона ворот для гаража, выполненных своими руками, может быть оригинально и стильно декорирована самим мастером (роспись красками по металлу или профилю).

К удобству владельцев, опытные умельцы помогают начинающим мастерам ценными советами по строительству ворот в гараж своими руками.
Недостатки подъёмных ворот
Несмотря на массу практических плюсов, секционные ворота, изготовленные своими руками, имеют и свои недостатки:
- Монтировать гаражные подъёмные ворота своими руками можно только на проём прямоугольной или квадратной формы.
- Особое внимание уделяется монтированию крепежей, направляющих пазов, системе противовеса. А в процессе эксплуатации потребуется тщательный контроль за состоянием всех элементов конструкции.
- Высота проёма уменьшается при поднятых воротах.

Мастеру потребуется качественный чертеж, правильно произведенные расчеты по системе противовесов (с обязательным расчетом максимальной нагрузки).

Принцип устройства подъёмных ворот
Перед началом строительных работ необходимо понять принцип устройства и действия конструкции подобного типа. Любые ворота с подъёмным механизмом имеют следующие составные детали:
- Центральная воротная панель, которая выполнена в виде цельной пластины. Чаще всего в качестве основного материала используется металлический профиль.
- Рама.
- Направляющие пазы, по которым воротная панель перемещается в свободное пространство под потолочными балками.
- Система противовеса, состоящая из симметрично расположенных грузов.

Вместо противовесной системы может использоваться рычажно-пружинный механизм, который позволяет центральной панели свободно перемещаться при минимальном воздействии.

Также в общей схеме конструкции различают ряд вспомогательных элементов: лебедки для удерживания грузов, рычаги и мощные пружины, крепежные детали.

Материалы и инструменты для работы
Для оптимальной работы необходимо организовать площадку достаточной площади. Кроме того, для изготовления подъёмных ворот на гараж понадобится следующий набор инструментов и материалов:
- Болгарка и сварка для работы с металлическими поверхностями.
- Профилированные трубы для строительства рамы.
- Крепежные детали.
- Гаечный ключ должного размера.
- Строительный карандаш, рулетка.
- Уровень.
- Лебедка и одинаковые грузы для монтирования системы противовесов.
- Швеллеры для изготовления направляющих конструкций.

Откатные ролики и рычажно-пружинный механизм можно приобрести в магазине строительных товаров, подбирая детали в соответствии с подготовленным чертежом. Понадобятся также инструкции, как построить подъёмные ворота своими руками.
Самостоятельное строительство подъёмных ворот
В первую очередь, мастеру необходимо произвести замеры гаражного проёма, высоту потолка, уровень заливки пола. Эти данные позволят определить, есть ли препятствия к строительству подъёмно-поворотных ворот своими руками.

Следующий этап – это изготовление оптимального чертежа, по которому весьма удобно проводить все работы. Далее устанавливают деревянную или металлическую коробку, являющуюся каркасом для подъёмных ворот, монтируют непосредственно саму раму и поворотный механизм (противовесы или пружины).

Обратите внимание!
Каркас гаражных ворот. Из каких материалов можно сделать

Распашным воротам из профильной трубы при правильном изготовлении и эксплуатации гарантирована долгая жизнь
Несмотря на широкий выбор строительных материалов, надёжные распашные ворота можно сделать несколькими способами.
Вариант №1:
- Металлический уголок 50х50з3 мм – для изготовления каркаса створок и усиливающих его укосин либо поперечин.
- Листы холоднокатанного металла толщиной 2,5-3 мм. Крепятся к каркасу с выпуском в 3 см. Используется сварка.
- 4 петли сечением 25 мм, размеры 30х160 мм. Привариваются на листы металла через дополнительные металлические пластины.
Вариант №2:
- Труба прямоугольного сечения 40х40х2,5мм или 50-50-2,5 мм для каркаса створок и усиливающих элементов.
- Листы металла толщиной 1,5-2 мм, фиксируются к каркасу заклепками.
- 4-6 петель.
- 4 металлические пластины под петли.
Для устройства стоек ворот используются трубы 80х80х3 мм. Верхнюю балку, усиливающую проём, изготавливают из швеллера №16 (высота полок 160 мм) или №18, в зависимости от ширины ворот. Порог можно сделать из тех же материалов: профильной трубы или металлического уголка.
Наиболее надёжный способ устройства распашных ворот в гараже – смонтировать под них раму из швеллера №24 и установить её на этапе строительства стен и перекрытий . Если такой возможности нет, монтируют усиливающие проём элементы: верхнюю балку, порог и стойки для створок.
Справка! Предложенные варианты материалов для устройства распашных ворот в гараже универсальны и подходят для любых строений: кирпичных, бетонных, деревянных, из пено- и газоблоков. Единственное исключение – гараж из металлопрофиля. Для таких строений нужны облегчённые конструкции.
Для гаражей из металлопрофиля делают «гибкие» ворота, такие, чтобы каждую створку можно было с минимальными усилиями прижать к проёму. Каркас таких конструкций состоит из гнутого профиля открытого сечения (г- или п-образного). Створки устанавливаются на 4-6 петель.
Ворота с жёстким каркасом проектируют и изготавливают таким образом, чтобы створки подходили к проёму с минимальным зазором и сразу закрывались на предусмотренные запоры, без приложения дополнительных усилий. Точные данные о требуемых материалах в конкретном случае можно получить посредством вычислений.