Как сварить ворота своими руками из профильной трубы. Эскиз
- Как сварить ворота своими руками из профильной трубы. Эскиз
- Ворота из профильной трубы 40х40. Процесс изготовления ворот из профильной трубы
- Распашные ворота из профильной трубы. Как сварить ворота из профильной трубы своими руками: чертежи и расчет, фото
- Ворота из круглой трубы своими руками. Устройство
- Как сварить ворота, чтобы не повело. Изготовление гаражных ворот
- Красивые ворота из профильной трубы. Раздвижные ворота своими руками
- Самый простой способ сварить ворота. Разновидности
- Ворота из профильной трубы 40х20 своими руками. Чертежи распашных металлических ворот из профлиста и требуемые материалы
Как сварить ворота своими руками из профильной трубы. Эскиз
Перед тем как делать ворота из профтрубы своими руками нужно создать эскиз. По нему предстоит покупать расходные материалы (можно сразу прикинуть затраты), делать заготовки и сваривать ворота. Сначала делаются замеры проема, куда предстоит устанавливать створку. Этот процесс особенно важен, так как нельзя допускать ошибок, поэтому желательно несколько раз перепроверить все размеры. По эскизу станет ясно, сколько стоит сварить ворота.
После этого чертиться прямоугольник, который будет обозначать проем. В него вписывается прямоугольник поменьше, обозначающий каркас из трубы. Это поможет вычислить точные размеры ширины и длины ворот. Зазоры будут не везде одинаковые и делаются исходя из условий, в которых будут работать ворота. Если ворота двустворчатые, то каждая створка рассчитывается отдельно.
Со стороны петель зазор оставляется около 0.5 см, так как с этой стороны ворота жестко закреплены. С противоположной стороны там, где будет находиться замок, требует оставить больший зазор, около 1.0 см, так как ворота со временем несколько провиснут, и будут подклинивать.
В нижне части зазор делается не менее 2.0 см, если ворота находятся в защищенном месте, где не предвидеться мусора, снега и других помех. Во всех остальных случаях зазор должен составлять от 5.0 см до 15 см (это можно решать самому).
Если в верхней части проема нет перемычки, то верх ворот можно делать на свое усмотрение. Чаще всего делают вровень с верхним уровнем забора.
В каркас обязательно добавляют ребра жесткости (перемычки) и усиливающие планки в районе петель. Ребра жесткости устанавливаются либо параллельно земле или по диагонали, что не дает створке изогнуться в форме «пропеллера».
Расчет количества профнастила требуется делать с учетом нахлеста. Это величина зависит от размера волны и высоты листа. По высоте нахлест нужно делать не менее 5.0 см.
Ворота из профильной трубы 40х40. Процесс изготовления ворот из профильной трубы
Прежде чем приступить к практической части, составляются подробные чертежи и эскизы данного изделия. На бумаге следует обязательно указать длину и высоту сооружения, а также количество перемычек между горизонтальными плоскостями.
Если изготавливается распашная конструкция, то необходимо сварить две одинаковые по размеру створки.

При конструировании более сложной, откатной системы, ворота выполняются в виде одного длинного полотна прямоугольной формы.

Вне зависимости от типа конструкции, ширина не должна быть менее 3 метров, а высота — 1,6 м.
После выбора типа ворот и указания основных размеров элементов конструкции, металлический профиль разрезается на отрезки нужной длины. При изготовлении распашных ворот для получения абсолютной симметрии двух створок, рекомендуется разрезать профиль, ориентируясь по длине отрезков сделанных ранее для одной из половинок. Вертикальные перемычки также должны быть идеально ровными и совпадать по длине.
Для сооружения опор используется профильная труба большого размера, длина которой должна составлять не менее 2,5 метров. Около 1/3 от длины опоры будет установлено в землю с обязательным бетонированием. Только при таком способе фиксации вертикальных опор можно добиться максимальной устойчивости всей конструкции.

Если при изготовлении ворот будут использованы декоративные кованые вставки, то при заказе данных элементов в кузнечной мастерской, следует указать мастеру точные размеры каркаса. Несмотря на высокую стоимость кованых деталей, применение таких элементов, позволит изготовить оригинальную конструкцию с красивым узором.
Когда все детали будут подготовлены, осуществляются сваривание ворот по заранее намеченному эскизу.
Распашные ворота из профильной трубы. Как сварить ворота из профильной трубы своими руками: чертежи и расчет, фото
Ворота из профильной трубы отличаются высокой прочностью, простотой в самостоятельном монтаже и доступной ценой. Неудивительно, что подобные изделия пользуются большой популярностью среди владельцев загородной недвижимости. Как сделать ворота из профильной трубы своими руками, описано ниже в статье.

На даче
Достоинства и недостатки профилированных труб
- высокую прочность при легком весе;
- возможность самостоятельного монтажа (металлопрофиль легко режется, сваривается и соединяется самонарезающими шурупами).

На участке
К недостаткам профильных изделий относят:
- подверженность ржавлению при взаимодействии с атмосферными осадками, обусловливающими образование коррозии;
- неудобство в грунтовании и окрашивании поверхности трубопроката, что влечет за собой увеличение временных затрат на установку труб.

Фигурный металлоштакетник
Как видно выше, достоинства профильных труб с лихвой компенсируют их недостатки.
Как сварить ворота на забор из профильной трубы своими руками
Технология изготовления конструкции достаточно простая. Чтобы сварить ворота из профильных труб, нужно подобрать вид изделия, оптимально подходящий под конструкцию створок.

Установка запоров
Выбор труб
Профтрубу под ворота предпочтительней выбрать квадратного либо прямоугольного сечения. Трубы такой формы легче монтируются и транспортируются на участок. Наиболее прочные профильные трубы производятся из следующих видов стали:
- нержавейки;
- оцинковки;
- углеродистой.
На фото представлены металлические створки.

Кованые элементы
Цена трубных заготовок зависит от материала, из которого они изготовлены. Наиболее бюджетным вариантом являются изделия из углеродистой стали. Впрочем, при выборе труб из углеродного сплава учитывается низкая прочность и короткий эксплуатационный срок такой продукции.
Сварные холоднокатаные и оцинкованные профили – оптимальный вариант под створки, но их стоимость выше. Трубы равнозначного диаметра могут вдвое отличаться по толщине стенок.
Под створки используются трубы квадратного либо прямоугольного сечения. Сделать работу правильно и своими руками возможно при наличии сварочного аппарата и вспомогательных инструментов.
На фото изображена конструкция после установки.

После монтажа
Подготовка участка
На стадии подготовки учитываются габариты въезжающего в проем ворот автотранспорта. Определяется общая площадь, занимаемая распашными или откатными створками. Стандартные размеры ворот составляют:
- по общей ширине – 2,5–3,5 м;
- по высоте (ворот и калитки) – 1м 50 см;
- по ширине калитки – 0,75–1 м.
На фото изображены ворота на даче.

Металлический штакетник на профтрубе
С учетом калитки общая ширина участка под ворота должна составлять 3,5 или 4,5 м. Конструкция, монтируемая на ранее установленное заграждение, ставится по соответствующей изгороди высоте. Иногда допустима меньшая высота створок, но не менее 40 сантиметров.
Чертежи и расчет
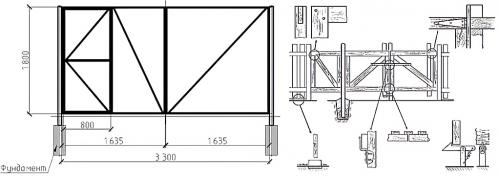
Перед проведением работ на бумагу наносится чертеж. Изображают прямоугольный проем с прямоугольником меньшего размера внутри, обозначающим раму из профиля с указанием длины и ширины будущей конструкции. Также проводится расчет финансовых затрат на приобретение необходимых материалов и набора инструментов для работы.

Схема установки с размерами
Ворота из профтрубы собираются из различных элементов, отличающихся сечением. Диаметр стальной трубы под несущие створки опоры составляет 80х80 или 100х100 мм. Каркас ворот из профтрубы выполняется из изделий 50х50 мм.
Перемычки и продольные полосы сваривают из отрезков профиля 20–40 мм.
Кроме основных величин, на рисунке чертежа указывают размеры зазоров между створками, грунтом и опорами. На сторонах с петлями приблизительная ширина зазора составляет 5 мм. Учитывая возможное провисание ворот и их подклинивание в будущем, на стороне с замками оставляют просвет в 10 мм.

Эскиз металлического каркаса
На участке, не подверженном снегу и мусору, внизу створок учитывается просвет, но не меньше 20 мм. При учете негативного воздействия внешних факторов высота зазора предусматривается в 50–150 мм (решается индивидуально).
Подготовка инвентаря
Работа выполняется посредством следующих инструментов:
- оборудования для сварки и электродов;
- угловой шлифовальной машины (болгарки) с абразивными и отрезными кругами;
- измерительных приборов: рулетки, строительного уровня, отвеса, угольника;
- винтоверта с самонарезающими шурупами по металлу;
- бура или лопаты;

Чертеж каркаса из металла
Используемые материалы:
- Профильные трубы. Из профиля изготавливается каркас. Для сваривания рамы и перемычек используют трубы сечением 50х50, 20х40 или 20х20 мм.
- Материал для обшивки. Створчатая рама отделывается профлистом, деревом, коваными элементами. При планировании оригинального дизайна обшивка комбинируется.
На фото ниже изображена дача.
Ворота из круглой трубы своими руками. Устройство
Калитка состоит из опорных столбов и дверного полотна на раме, которое крепится к столбам при помощи петель. Столбы могут быть кирпичные (каменные), деревянные или металлические. В кирпичные при кладке замуровывают небольшие куски толстого металла или толстый металлический прут, к которым впоследствии приваривают раму.
Необычные калитки с деревянным каркасом и оригинальным заполнением
Металлические столбы делают из круглой или профилированной трубы с толстыми стенками. Круглые трубы используют все реже: к ним сложнее приваривать, крепить что-либо. Профилированная труба при том же сечении (диагональ по сравнению с диаметром) и толщине стенки выдерживает большие ветровые нагрузки, к плоским граням проще приваривать или крепить при помощи саморезов, болтов. Поэтому именно ее все чаще используют при устройстве калиток. Еще один вариант — к каркасу из профильной трубы приварить металлический уголок. В этом случае заполнение получится как бы в рамке.
Устройство калиток с деревянной и металлической рамой одинаково
Деревянные столбы обычно используют если забор деревянный. Чаще всего столбы — это сосновый брус, обработанный защитными пропитками. Они предотвращают (или замедляют) разрушение древесины. Но бывают и такие случаи, когда столбы ставят металлические, а калитка и ограда при этом деревянные. Это потому что древесина в земле быстро сгнивает, даже после защитной обработки.
Немного о конструкции опорной рамы. Это может быть просто два столба вкопанных в землю — вариант подходит, если грунт не склонен к пучению (пески, супеси, плодородные, но не глинистые почвы).
Столбы повело. Если вверху и внизу будут перемычки, вероятность такой неприятности намного снизится
Для пучинистых грунтов (глина, суглинки) желательно чтобы столбы были соединены вверху и внизу. В таком случае вероятность перекоса калитки после зимы очень мала. Если вы не хотите делать порожек в проеме, нижнюю перемычку можно опустить ниже уровня земли (на штык–полтора). Ее надо будет тщательно покрыть антикоррозионным составом, прогрунтовать, и покрасить в несколько слоев. А еще чтобы избежать перекоса, следует закапывать столбы ниже уровня промерзания хотя бы на 15-20 см.
Каркас калитки делают из металлической трубы или деревянных брусков. Древесина используется для деревянных заборов, металл — во всех остальных случаях.
Как сварить ворота, чтобы не повело. Изготовление гаражных ворот
Думая, как сварить ворота гаражные, надо сразу задуматься о комплектующих. В продаже можно найти комплекты, предназначенные для самостоятельной сборки подобной конструкции с подробной инструкцией. Рулонные (см. Рулонные ворота для гаража: правильный монтаж ) и секционные виды гаражных ворот лучше всего покупать заводские и заказывать работы по установке у профессионалов.
Требования к воротам
Если вы решили сделать все самостоятельно, необходимо помнить, что качественные ворота должны соответствовать некоторым требованиям:
- Обеспечение легкого и беспрепятственного выезда. Их размеры должны быть оптимальными по отношению к габаритам автомобиля;
- От стойки ворот до бока транспортного средства расстояние не должно быть меньше тридцати сантиметров. Если транспортное средство небольшое, то постарайтесь расширить эту область на тот случай, если вы решитесь покупать внедорожник;
- Для простых легковых автомобилей оптимальная высота составляет два метра;
- Стандартные размеры проемов: от 2,4х2,1 до 5,4х2,4 метра;
- Ворота должны защищать помещение от взломов (см. Как укрепить ворота гаража и защитить помещение ). Самыми прочными являются те, которые сделаны из оцинкованных стальных листов не тоньше двух – пяти миллиметров. Укрепить ворота можно с помощью запоров. Они предназначаются для внешних колодок, можно использовать и бронированные накладки;
- Важно защитить строение от негативного влияния окружающей среды. Защиту от осадков и ветра призвано обеспечивать крепление ворот. Чтобы полотно держалось крепко необходимо применять вертикальные запоры, способные предотвращать перекос. Рекомендуется также использовать уплотнитель (он обеспечивает лучший контакт рамы и створок).
Красивые ворота из профильной трубы. Раздвижные ворота своими руками
Раздвижные ворота – это отличный вариант для дома или дачи. Они обладают надежной конструкцией и имеют длительный срок службы. Раздвижные ворота изготавливаются из профильной трубы и обшиваются различными материалами, в том числе, металлопрофилем.
Раздвижные ворота бывают двух видов:
- Рельсовые – устаревшая модель, применяемая в основном на промышленных предприятиях.
- Консольные – наиболее распространённый вариант. Данная конструкция предусматривает наличие консоли, которая является продолжением ворот и спрятана за забором. Благодаря ей ворота перемещаются по откатным тележкам, прикрепленным к фундаменту. Каждый откатной механизм снабжен подшипниками с полимерными или металлическими катками. Сами тележки находятся в направляющей, что защищает их от загрязнения и атмосферных осадков.
Столбы для забора из профнастила: применяемые материалы, от чего зависит расстояние и глубина, этапы монтажа
При использовании в частном доме такая конструкция прослужит более 20 лет. Она рассчитана на 60000 циклов открывания-закрывания.
Достоинства раздвижных ворот:
- возможность ручного и автоматического управления;
- отсутствие ограничений по высоте и тяжести проходящего транспорта;
- лёгкость в изготовлении;
- отсутствие необходимости обслуживания.
Недостатки:
- необходимость в более мощных несущих опорах;
- требуется большая ширина забора для открытия створки.
Основные элементы раздвижных ворот:
- Верхний улавливатель.
- Поддерживающая шина.
Для дистанционного управления дополнительно приобретаются: пульт ДУ, фотодатчики или световые датчики для приема сигнала пульта ДУ, препятствующие закрытию ворот, если в проеме находится какой либо предмет.
Источник: https://avtomatika-dlya-otkatnyh-vorot.aystroika.info/stati/vorota-iz-trub-svoimi-rukami-eskiz
Самый простой способ сварить ворота. Разновидности
Существует множество конфигураций распашных ворот. Необходимая конфигурация подбирается исходя из свободного места на участке или за его пределами. Ведь при открывании створки занимают немало места, и эту особенность нужно предусмотреть.

Всего разделяют три основных разновидности:
- Одностворчатые распашные ворота. Вариант редко используемый, но все-таки встречающийся на участках с большим количеством свободного места. В таком варианте ворота состоят из одной створки, открывающейся в правую или левую сторону, в зависимости от ваших пожеланий. Такая конструкция проще в сборке, но сложнее в монтаже и эксплуатации. Поскольку створка держится на петлях только с одной стороны, для таких ворот требуется усиленная опора и усиленные петли. Нередко одностворчатые ворота провисают и деформируются, если длина створки сильно превышает ее высоту.
- Двустворчатые распашные ворота. Самый популярны вариант ворот среди всех разновидностей в принципе. Экономично, надежно, занимает мало места, нет проблем с монтажом и ремонтом. Такие ворота состоят из двух створок, открывающихся в разные стороны.
- Одностворчатые/двустворчатые ворота с врезной калиткой в створке. Если вариант сварить ворота и калитку рядом кажется вам недостаточно удобным, можно прорезать отверстие в самой створке и установить калитку туда. Выбор спорный, но некоторым умельцам он нравится. Учтите, что в таком случае порог будет достаточно высоким, что не всегда удобно для детей и пожилых.
Ворота из профильной трубы 40х20 своими руками. Чертежи распашных металлических ворот из профлиста и требуемые материалы
Итак, пришло время рассказать, какую конфигурацию я выбрал для своих ворот. Размеры определялись просто. Высоту каждого полотна я назначил в соответствии с высотой профлиста – 2000 мм. Ширину – 2030 мм,с учетом сантиметровых зазоров для свободного хода створок. Если сделать впритык, летом они могли и не закрыться, увеличившись от нагрева. Коэффициент температурного расширения у металла достаточно велик.
Как я уже указывал, основную роль в обеспечении жесткости должны взять на себя листы профнастила. Это позволило отказаться от длинных диагональных раскосов, сэкономив почти шесть метров металлической профтрубы (см. чертеж).
Металлические раскосы окажутся бесполезными после того, как к каркасу будут прикреплены профлисты
А вот горизонтальные планки на середине высоты створки придется установить, иначе при высоте 2 метра жесткости листа будет недостаточно
Я просто укрепил каркас по углам небольшими отрезками. Заоднополучилось и вес ворот уменьшить, снизив нагрузку на петли. А вот промежуточный горизонтальный прогон посередине каждого полотна пришлось поставить, иначе листы могли не выдержать ветровую нагрузку и погнуться.
Уже в процессе изготовления мне вдруг пришла в голову мысль, что неплохо было бы дополнить ворота калиткой. Открывать каждый раз наружу даже одну из створок, чтобы пройти пешком, неудобно. Сняв каркас одного из полотен, я вварил в него еще и каркас калитки.
Итак, для работы мне потребовались следующие материалы:
труба профильная 40 х 20 х 2 мм для распашных ворот – 22,0 пог. м;
труба профильная 40 х 20 х 2 мм для установки калитки – 10,0 пог. м;
профилированный стальной лист 1200 х 2000 мм – 4 штуки;
саморезы заборные 5,5 х 19 мм – около 120 (в т. ч. около 20 шт. пришлось добавить из-за устройства калитки) шт;
петли – 3 пары (в т. ч. 1 пара для калитки).
Я намеренно указал отдельно расход материалов на калитку – если делать ворота без нее, получится еще более бюджетный вариант. Однако, как показывает практика, дешево – не всегда хорошо.
Инструменты я использовал вполне доступные:
угловую шлифмашину с шлифовальным и отрезными дисками;
сварочный аппарат с парой килограмм электродов;
шуруповерт (его можно заменить низкооборотистой электродрелью) ;
молоток;
угольник;
рулетка;
карандаш;
уровень;
отвес;
струбцины.
Все материалы необходимо подготовить заранее – в процессе изготовления может потребоваться подгонка «по месту».