Какого размера должны быть ворота на даче. Самые популярные варианты
- Какого размера должны быть ворота на даче. Самые популярные варианты
- Стандартные размеры ворот и калитки. Ворота
- Ширина ворот футбольных. Футбольные ворота
- Размер ворот во двор. Правила выбора
- Оптимальная ширина ворот в заборе. Размеры ворот: ширина и оптимальная высота в заборе с калиткой частного дома
Какого размера должны быть ворота на даче. Самые популярные варианты
Отвечая на вопрос, какая должна быть ширина въездных ворот на участок, хочется отметить, что ворота могут отличаться не только размерами, но и видом конструкции. Они делятся на откатные и распашные. Окончательный выбор – за владельцем двора. Ему потребуется сделать анализ и определиться с самым подходящим видом.
Ворота распашные
Альтернативное название – створчатые. Они состоят из двух частей, гораздо реже из одной. Крепление осуществляется к петлям и опорам. Принцип работы напоминает принцип действия простой домашней двери. В положении "закрыто" створки удерживаются щеколдой или при помощи замка. Их открывают руками или при поддержке электрического привода. Его приводит в действие мотор, который устанавливают под воротами. Для такой системы потребуется иметь пульт ДУ.
При планировании конструкции надо учитывать тот момент, что ширина распашных ворот и сами створки отнимают пространство по обеим частям проезда. По этой причине всегда выгоднее обустраивать ворота с единственной створкой, особенно если участок в месте выезда длинный и чрезмерно узкий.
Ворота на даче - это не только украшение, но и функциональный элемент, который обеспечивает безопасность и комфорт проживания. Когда выбирается ширина въездных ворот, стоит учитывать несколько факторов, включая вид конструкции, размер участка и финансовые возможности.
Размеры ворот
Ширина въездных ворот может варьироваться от 2 до 6 метров, а высота - от 2 до 4 метров. Самые популярные варианты:
- 2x2 метра - минимальный размер, подходящий для маленьких участков и гаражей.
- 2x3 метра - популярный размер для стандартных дач и гаражей.
- 3x3 метра - идеальный размер для средних и больших участков.
- 4x4 метра - максимальный размер, подходящий для больших участков и гаражей.
Выбор ширины ворот зависит от размера участка, количества машин, которые будут парковаться, и личных предпочтений.
Виды ворот
Ворота делятся на откатные (створчатые) и распашные (раздвижные). Откатные ворота состоят из двух частей, которые удерживаются при помощи щеколды или замка. Распашные ворота - это одна сплошная створка, которая перемещается по роликовым направляющим вдоль забора.
Выбор между этими видами ворот зависит от размера участка, финансовых возможностей и личных предпочтений.
Откатные ворота
Альтернативное название этих ворот – раздвижные. Они сделаны из единой сплошной створки, которая перемещается по роликовым направляющие вдоль забора. Ключевая выгода данной системы – максимальная экономия места. Это безальтернативное решение, если между воротами и дверьми гаража совсем мало пространства. Иногда ставить распашные ворота в подобной ситуации просто нереально. Цена не будет слишком заоблачной даже для простого автолюбителя. Перед приобретением и установкой надо учесть следующие нюансы:
откатные системы делятся на самонесущие и рельсового вида;
ошибочно делать открытие в сторону, где уже имеется калитка. Это станет причиной блокировки прохода и принесёт дискомфорт. Так поступают только в безвыходных случаях;
та часть ограждения, в которую будет уходить створка при открывании, обязана быть не меньше, чем сама ширина ворот. Только так получится без проблем скрывать их под собой.
Если вами будет принято решение приобрести этот вид и будет актуален вопрос, какая должна быть ширина ворот, то надо знать, что в зимнее время рельса склонна наполняться снегом, замёрзшей водой. А это неизбежно приведёт к затруднению функционирования роликов. От этого можно спастись: надо ставить рельс выше выездной поверхности. Продвинутые владельцы вооружают рельсы проводом с обогревом.
Ворота на даче - это не только украшение, но и функциональный элемент, который обеспечивает безопасность и комфорт проживания. Когда выбирается ширина въездных ворот, стоит учитывать несколько факторов, включая вид конструкции, размер участка и финансовые возможности.
Размеры ворот
Ширина въездных ворот может варьироваться от 2 до 6 метров, а высота - от 2 до 4 метров. Самые популярные варианты:
- 2x2 метра - минимальный размер, подходящий для маленьких участков и гаражей.
- 2x3 метра - популярный размер для стандартных дач и гаражей.
- 3x3 метра - идеальный размер для средних и больших участков.
- 4x4 метра - максимальный размер, подходящий для больших участков и гаражей.
Выбор ширины ворот зависит от размера участка, количества машин, которые будут парковаться, и личных предпочтений.
Виды ворот
Ворота делятся на откатные (створчатые) и распашные (раздвижные). Откатные ворота состоят из двух частей, которые удерживаются при помощи щеколды или замка. Распашные ворота - это одна сплошная створка, которая перемещается по роликовым направляющим вдоль забора.
Выбор между этими видами ворот зависит от размера участка, финансовых возможностей и личных предпочтений.
Стандартные размеры ворот и калитки. Ворота
Размеры изделий выбираются с учетом того, какой транспорт проезжает через ворота. Ширина транспортных средств отечественных изготовителей составляет приблизительно 1,5–1,6 м, а внедорожники могут достигать 2,1 м. Потому даже с учетом данного параметра необходимо сделать проем шириной не меньше 2,6 м. Также нужно не забывать, что над этой конструкцией нельзя устанавливать горизонтальную перекладину, так как, вероятно, потребуется заезд более габаритного транспорта.
Высоту конструкции чаще всего устанавливают такой же, как калитку, либо делают в уровень с закрепленным опорным столбом.

Ворота и калитка из профнастила
Также, выбирая габариты въездных ворот, необходимо учитывать то, какой заезд – под прямым углом или для въезда требуется сделать определенный маневр. В последнем случае ширина проема делается немного больше в отличие от прямого заезда.
Это тем более актуально, если было решено выбрать размер проема 2,9–3,2 м или меньше.
Стандарт ворот – 3,5 м. Этого проема вполне хватает, чтобы заехала легковая машина, внедорожник или микроавтобус, а во время прямого заезда сможет проехать даже КамАЗ. Если частный дом находится довольно далеко от проезжей части и необходимо себя обезопасить от непредвиденных ситуаций при пожаре, то нужно знать, что стандартный размер для въезда пожарной машины составляет 6 м.

Ворота из профлиста
Для удобства можно взять в расчет следующие параметры проема:
- грузовые автомобили, сельскохозяйственная техника – минимальный проем 4 м;
- легковые автомобили, внедорожники и микроавтобусы – не менее 3,5 м;
- только легковые машины – от 3 м.
Чтобы рассчитать габариты изделия на этапе проектирования, нужно учитывать такие моменты:
- определиться с облицовкой каркаса. Обшивку можно выполнить из профнастила, штакетника, сетки-рабицы;
- выбрать конструктивное исполнение и необходимость установки автоматической системы. Ворота можно сделать с одной либо двумя створками. При этом они могут быть откатными или распашными;
- нарисовать чертеж с указанием габаритов и конструктивного решения (ребра жесткости, петли и точки их крепления);
- произвести требуемые замеры. Размеры въезда гаражных или въездных ворот должны обеспечивать свободный въезд транспортного средства определенных габаритов. Причем нужно учитывать свободную площадь, задействованную для открытия распашных створок.

Около дома
С учетом предварительно созданного проекта определяется общее количество профильной металлической трубы и материала для облицовки.
Разрабатывая проект, необходимо учитывать такие моменты:
- стандартная ширина калитки, если она входит в конструкцию ворот, обязана быть 80–110 см;
- для беспрепятственного заезда легкового авто достаточно сделать проем 3 метра;
- для распашного типа необходимо учитывать расстояние от створок до установленных петель. Это расстояние должно не мешать свободному открытию. Дистанцию рекомендуют выдерживать около 1 см;
- стойки из бруса или профтрубы 60х60 мм необходимо установить в предварительно выкопанную лунку и залить бетонным раствором;
- высоту створок входных конструкций рекомендуют делать с учетом высоты установленного забора. Допустимое отклонение – не больше 25 см, при этом высота должна быть не более 1,6 м.

Калитка на даче
При выборе секционных (панельных) гаражных ворот нужно учитывать следующее. Ширина легковой машины составляет примерно 1,6 м. К этому параметру добавляется боковое расстояние, 30 см с каждой стороны, вследствие чего длина проема составит 1,9 м. Это минимальная предпочтительная длина проема.

Схема ворот и калитки
Далее определяют комфортную высоту секционных ворот из сэндвич-панелей: высота легковой машины – 1,6 м, внедорожника – около 2,1 м. Наименьшая высота должна быть примерно 2,3 м. В этот проем сможет заехать практически любая машина и, не нагибаясь, зайдет человек.
Можно воспользоваться готовым проектом и адаптировать его к определенным условиям, установив реальные габариты проема.

Конструкция из дерева
Заграждения для спортивных площадок регламентированы СНиП 2.07.01-89. С учетом этого высота ограждения должна быть не менее 2,5 м, ширина ворот – 3,5 м.
Ширина ворот футбольных. Футбольные ворота
Основная статья: Футбольное поле

Футбольные ворота —, используемые при игре в; состоят из двух вертикальных стоек (), находящихся на равном расстоянии от угловых(то есть ворота должны размещаться по центру линии ворот ), соединённых вверху горизонтальной перекладиной.
) — для профессионального футбола (для детско-юношеского и любительского — 3,7 м, 4,0 м, 4,2 м), а расстояние от нижнего контура перекладины до поверхности земли — 2,44 м (8). Ширина и высота сечения обеих стоек и перекладины одинаковы и не превышают 12 см (5). Стойки и перекладина ворот должны быть изготовлены из,или иного разрешённого соответствующим стандартом материала, иметь вформу(либо эллипса, прямоугольника, квадрата) и быть.

Ворота должны быть надёжно закреплены на земле; использование переносных ворот допустимо лишь в случае соответствия их данному требованию. К воротам и грунту за воротами могут прикрепляться, которые должны быть надежно закреплены и расположены так, чтобы не мешать.
В настоящее время, во время футбольных матчей, используются, как правило, ворота, представляющие в своей основе лишь две штанги и перекладину — вкопаны в землю. Сетка ворот поддерживается, идущими от «дополнительных» стоек, располагающихся за воротами, которые жёстко не входят в состав каркаса ворот (не являются его продолжением) (частный случай – тросы могут крепиться не к стойкам, а к ограждениям или другим хозяйственно-инженерным конструкциям стадиона). Этим исключается возможность травматизма забежавшего внутрь площади ворот футболиста (по причине отсутствия за линией ворот металлических частей). Стойки, посредством тросов поддерживающие сетку, не должны располагаться слишком близко к сетке (дабы исключалась возможность контакта с ними через сетку). Ранее использовавшиеся на футбольных матчах ворота также были вкопаны в землю, но сетку поддерживали «непосредственным (прямым) образом» металлические стойки, шедшие от крестовин. На тренировках же, часто используются переносные («цельно-объединённые» с «дополнительными» стойками) ворота (в том числе — на колёсиках).
каждая: три ряда по три квадрата. Каждому квадрату присваивается условный номер от 0 до 9. Все квадраты центральной зоны ворот имеют условное обозначение "0", и поэтому эта зона никогда и не размечается. В крайних, боковых зонах ворот счёт квадратов начинается с нижнего ряда так, что над первым квадратом (тем, который ближе всего к центру ворот) располагается четвёртый, над четвёртым — седьмой, и т. д. Эта нумерация происходит от разметки на тренировочном щите, на котором футболисты отрабатывают удары по воротам.
Размер ворот во двор. Правила выбора
Не последнюю роль для комфортного въезда автотранспорта играет угол заезда и обеспечение безопасности движения по дороге для других машин. Например, подъезд к участку может быть затруднен из-за узкой проезжей части, проходящей перед участком широкополосной трассы со сложной разметкой и малым радиусом поворота, растущего дерева или других механических помех. Если запаса свободного пространства мало, то необходимо учесть не менее 1–1,3 метра на разворот даже при условии выбора ворот откатного типа.
Наименьший радиус поворота для легковых машин равен 5-6 метров, для грузовых – 6-7 м. Величину определяют практическим способом: отсчет ведется от выпирающей части автомобиля при повороте. Главное, чтобы при проезде оставалось свободное пространство по обе стороны проема. Когда зазора не достаточно, движущийся под углом автомобиль может тереться о бордюр или столбы, что грозит повреждениями или царапинами на кузове. Во избежание подобных неприятностей стоит выбирать ширину проезда не менее 4 метров.
Если установлена распашная конструкция , обязательно нужно обратить внимание на сторону открывания створок. На узких дорогах лучше отдавать предпочтение воротам, которые открываются внутрь двора, или все-таки установить раздвижную систему.
В остальном, ширина ворот подбирается с учетом размеров автомобиля и расположения участка по отношению к близлежащим объектам.
Легковые автомобили
В среднем, легковые авто имеют ширину от 1,5 до 1,7 метров. Внедорожники могут быть несколько шире, но все равно меньше 2 м. Для комфортного проезда желательно оставить по 40 см с каждой стороны. Если автомобиль имеет размеры 1,6 м, добавляем плюсом 80 см. Итого проем должен составлять не менее 2,4-2,5 м, а лучше 3 метра.
Грузовые авто
Грузовики имеют ширину, начиная от 2,5 метров и выше. Соответственно, габариты проема должны составлять 3,5 м и больше. Чтобы водитель чувствовал себя максимально уверенно и мог легко заезжать на территорию участка, желательно выбирать модель ворот с полотном от 4 метров и больше.
Оптимальная ширина ворот в заборе. Размеры ворот: ширина и оптимальная высота в заборе с калиткой частного дома
Большинство владельцев дач или частных домов сталкивались с проблемой, как правильно выбрать размер ворот. Помимо прочего, месторасположение и различные варианты въездных створок играют важную роль, от этого зависит, насколько удобным будет подъезд к частному дому. Ширина ворот должна быть достаточной, чтобы в них смогли заехать как легковое авто, так и грузовик.

Въезд на участок частного дома
Особенности месторасположения
Если строительство дачи или дома лишь на стадии разработки, то нужно подобрать оптимальное месторасположение воротной конструкции. Изначально нужно определить, осложнят ли ворота въезд автомобилям с остальных участков, перекроют ли движение транспорта, находясь рядом с проезжей частью.

Откатная створка
Не советуют устанавливать ворота для заезда в частный дом, створки которых открываются на улицу. Это может препятствовать остальным участникам движения.
Размеры ворот и калитки для частного дома
Размер проема въезда легковых машин можно начинать делать в ширину от 250 см. Но необходимо учитывать, что на участок в дальнейшем также, возможно, будет заезжать грузовой транспорт либо спецтехника. К примеру, трактор, ширина которого более 250 см. Именно поэтому желательно установить ворота начиная от 330 см.

На даче
Практичность заезда
Насколько удобным и практичным будет въезд, значительно зависит от рядом находящейся дороги, а также от максимального радиуса разворота автомобиля. Если расстояние между дорогой и въездом на территорию равно радиусу разворота авто либо больше этого значения, то в данном случае машина, проезжающая перпендикулярно по центру ворот, будет заезжать с запасом с двух сторон от автомобиля до проема ворот.

Около частного дома
В случае если проем более узкий, чем радиус поворота машины, то будет необходимо проезжать под углом, срезая поворот, так появляется высокая вероятность врезаться в бордюрное ограждение либо столб.
В данной ситуации желательно сделать более широкий проезд через ворота, в пределах 3,5–5,2 м. Если все равно не обеспечивается должный проезд, то желательно переместить воротную конструкцию во двор на 1,3–1,7 м.
Это решение особенно актуально для домов и жилых зданий с узкими улочками, постоянным потоком автомобилей, когда, чтобы проехать на территорию, необходимо пересекать ось проезжей части.
Чаще всего средний радиус разворота легковых машин составляет приблизительно 5,7–6,8 м, для грузовиков и длинномерных фур – около 7–9 м, для пожарной машины – до 10 м.

Створки из металла
Расчет размера калитки
Прежде чем установить калитку для забора из кирпича или профнастила, необходимо определить, какая будет конструкция и какого размера.

На участке
Расчет высоты калитки из профлиста:
- Стандартная высота – 190 см.
- С учетом требований калитка поднимается над уровнем земли на 10 см.
- Общая высота – 180 см.
- Сверху и снизу каркаса делается допуск для обшивки по 2 см.
- Общая высота рамы без обшивки – 1760 мм.

Схема с размерами
Какая требуется ширина калитки в заборе:
- Чаще всего ширина проема между кирпичными опорами составляет 1,1 м.
- К опорам фиксируют брусья для крепления калитки толщиной 50 мм.
- 1100 − 50 − 50 = 1000 мм.
- Учитывается зазор с двух сторон по 15–25 мм.
- Ширина рамы – 950–970 мм.

Калитка в кирпичном ограждении
Размеры калитки для инвалидов-колясочников
Как правило, стандартная по ширине коляска для инвалидов составляет 630–680 мм. Минимальный проем должен составлять 710 мм. Этого должно хватить для проезда.

Сварная калитка в заборе
Но стоит учесть, что инвалиды передвигаются, вращая колеса руками. И если коляска помещается между проемом вплотную, то можно травмировать руку. Чтобы не допустить этого, минимальная ширина калитки должна составлять 810–850 мм.
Размеры ворот для забора
Первое, от чего необходимо отталкиваться при определении размера ворот, какой транспорт будет въезжать на дачный участок либо на территорию частного дома. Одно дело – если на территорию заезжают исключительно легковые авто, иное дело – грузовики.
Ворота на даче - это не только украшение, но и функциональный элемент, который обеспечивает безопасность и комфорт проживания. Когда выбирается ширина въездных ворот, стоит учитывать несколько факторов, включая вид конструкции, размер участка и финансовые возможности.
Размеры ворот
Ширина въездных ворот может варьироваться от 2 до 6 метров, а высота - от 2 до 4 метров. Самые популярные варианты:
- 2x2 метра - минимальный размер, подходящий для маленьких участков и гаражей.
- 2x3 метра - популярный размер для стандартных дач и гаражей.
- 3x3 метра - идеальный размер для средних и больших участков.
- 4x4 метра - максимальный размер, подходящий для больших участков и гаражей.
Выбор ширины ворот зависит от размера участка, количества машин, которые будут парковаться, и личных предпочтений.
Виды ворот
Ворота делятся на откатные (створчатые) и распашные (раздвижные). Откатные ворота состоят из двух частей, которые удерживаются при помощи щеколды или замка. Распашные ворота - это одна сплошная створка, которая перемещается по роликовым направляющим вдоль забора.
Выбор между этими видами ворот зависит от размера участка, финансовых возможностей и личных предпочтений.
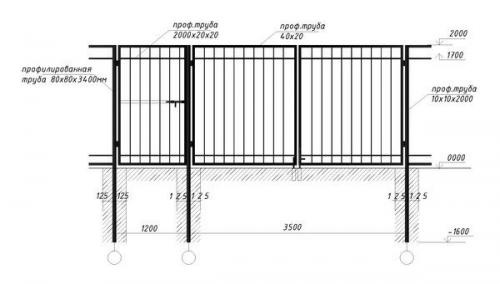
Чертеж для изготовления створок из профнастила
Ширина ворот на участок выбирается для различных автомобилей, естественно, разная. То есть необходимые размеры въездных ворот будут отличаться. Желательно изначально рассчитывать на грузовики (к примеру, типа КамАЗ).

Створки из профнастила частного дома
Легковые машины
Как правило, ширина этих авто находится в пределах 1,6–1,8 м. Джипы и Газели имеют чуть большую ширину. Но чаще всего эта величина составляет не более чем два метра.
То есть для этих авто стандартные размеры ворот – 2,6 м. Если заезжать на территорию осторожно, то этого запаса (зазор остается примерно по 35 см) вполне хватит.
Грузовики
В этом случае ситуация другая. К примеру, ЗИЛ по ширине – 2,5 м. Соответственно, для въезда на дачу этого транспортного средства минимального вышеуказанного проема ворот не хватит.
