Оптимальная высота ворот для частного дома. Высота конструкции
- Оптимальная высота ворот для частного дома. Высота конструкции
- Стандартные размеры ворот и калитки. Ворота
- Ширина ворот для проезда Камаза. Размеры ворот для Камаза | Ширина ворот
- Стандартная высота ворот во двор. Размеры ворот: Ширина и оптимальная высота в заборе с калиткой частного дома
- Размер ворот во двор. Правила выбора
Оптимальная высота ворот для частного дома. Высота конструкции
Большинство считает, если высота створки, которая примыкает к забору загородного дома, составляет два метра, то и ее высота должна равняться 2 метрам. Это неверно. Следует обратить внимание на стандартные размеры въездных ворот и такие факторы:
- Например, построена изгородь из профнастила высотой 2 м, при этом профлист не имеет зазора снизу.
- Изготавливая раму створки, многие берут в расчет этот же профнастил, имеющий размер, как и у заборной конструкции – 2 м.
На загородной даче
Так учитывается одинаковая высота профилированного настила, но не берется в расчет, что в случае с ограждением профнастил идет непосредственно от уровня земли и чистый размер составляет 2 м. Однако во время устройства ворот существует одна особенность: низ створки не должен касаться земли, он приподнимается примерно на 10 см.
Максимальный зазор между уровнем земли и створкой можно отрегулировать специальными рычагами, которые стандартно должны идти в комплекте. Ролики прикручиваются к регулировочной планке болтами, которыми можно регулировать высоту в пределах 7–12 см.
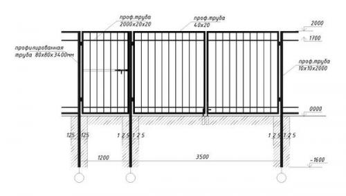
Чертеж с указанием ширины и высоты
Также, в отличие от заборной конструкции, профнастил ворот требуется встраивать в профиль сваренной рамы. При этом профиль собирается из профтрубы сечением 4.5х6 см. Так получается высота: 10 + 4.50 + 200 + 4.5 = 216 см.
Но также к полотну снизу крепится балка, которая будет направлять полотно. Она имеет высоту 6 см. Так, с наличием балки, дистанция от уровня земли до верхнего края уже равняется 219 + 6 = 225 см. С учетом вышеописанной схемы верх створки будет на 25 см выше верха заборной конструкции.
Стандартные размеры ворот и калитки. Ворота
Размеры изделий выбираются с учетом того, какой транспорт проезжает через ворота. Ширина транспортных средств отечественных изготовителей составляет приблизительно 1,5–1,6 м, а внедорожники могут достигать 2,1 м. Потому даже с учетом данного параметра необходимо сделать проем шириной не меньше 2,6 м. Также нужно не забывать, что над этой конструкцией нельзя устанавливать горизонтальную перекладину, так как, вероятно, потребуется заезд более габаритного транспорта.
Высоту конструкции чаще всего устанавливают такой же, как калитку, либо делают в уровень с закрепленным опорным столбом.

Ворота и калитка из профнастила
Также, выбирая габариты въездных ворот, необходимо учитывать то, какой заезд – под прямым углом или для въезда требуется сделать определенный маневр. В последнем случае ширина проема делается немного больше в отличие от прямого заезда.
Это тем более актуально, если было решено выбрать размер проема 2,9–3,2 м или меньше.
Стандарт ворот – 3,5 м. Этого проема вполне хватает, чтобы заехала легковая машина, внедорожник или микроавтобус, а во время прямого заезда сможет проехать даже КамАЗ. Если частный дом находится довольно далеко от проезжей части и необходимо себя обезопасить от непредвиденных ситуаций при пожаре, то нужно знать, что стандартный размер для въезда пожарной машины составляет 6 м.

Ворота из профлиста
Для удобства можно взять в расчет следующие параметры проема:
- грузовые автомобили, сельскохозяйственная техника – минимальный проем 4 м;
- легковые автомобили, внедорожники и микроавтобусы – не менее 3,5 м;
- только легковые машины – от 3 м.
Чтобы рассчитать габариты изделия на этапе проектирования, нужно учитывать такие моменты:
- определиться с облицовкой каркаса. Обшивку можно выполнить из профнастила, штакетника, сетки-рабицы;
- выбрать конструктивное исполнение и необходимость установки автоматической системы. Ворота можно сделать с одной либо двумя створками. При этом они могут быть откатными или распашными;
- нарисовать чертеж с указанием габаритов и конструктивного решения (ребра жесткости, петли и точки их крепления);
- произвести требуемые замеры. Размеры въезда гаражных или въездных ворот должны обеспечивать свободный въезд транспортного средства определенных габаритов. Причем нужно учитывать свободную площадь, задействованную для открытия распашных створок.

Около дома
С учетом предварительно созданного проекта определяется общее количество профильной металлической трубы и материала для облицовки.
Разрабатывая проект, необходимо учитывать такие моменты:
- стандартная ширина калитки, если она входит в конструкцию ворот, обязана быть 80–110 см;
- для беспрепятственного заезда легкового авто достаточно сделать проем 3 метра;
- для распашного типа необходимо учитывать расстояние от створок до установленных петель. Это расстояние должно не мешать свободному открытию. Дистанцию рекомендуют выдерживать около 1 см;
- стойки из бруса или профтрубы 60х60 мм необходимо установить в предварительно выкопанную лунку и залить бетонным раствором;
- высоту створок входных конструкций рекомендуют делать с учетом высоты установленного забора. Допустимое отклонение – не больше 25 см, при этом высота должна быть не более 1,6 м.

Калитка на даче
При выборе секционных (панельных) гаражных ворот нужно учитывать следующее. Ширина легковой машины составляет примерно 1,6 м. К этому параметру добавляется боковое расстояние, 30 см с каждой стороны, вследствие чего длина проема составит 1,9 м. Это минимальная предпочтительная длина проема.

Схема ворот и калитки
Далее определяют комфортную высоту секционных ворот из сэндвич-панелей: высота легковой машины – 1,6 м, внедорожника – около 2,1 м. Наименьшая высота должна быть примерно 2,3 м. В этот проем сможет заехать практически любая машина и, не нагибаясь, зайдет человек.
Можно воспользоваться готовым проектом и адаптировать его к определенным условиям, установив реальные габариты проема.

Конструкция из дерева
Заграждения для спортивных площадок регламентированы СНиП 2.07.01-89. С учетом этого высота ограждения должна быть не менее 2,5 м, ширина ворот – 3,5 м.
Ширина ворот для проезда Камаза. Размеры ворот для Камаза | Ширина ворот
Грузовые автомобили КамАЗ идеально подходят для транспортировки различных грузов по российским дорогам. Транспортные средства хорошо адаптированы под отечественные условия эксплуатации: характеризуются отличной проходимостью, прекрасной грузоподъемностью, мощностью. В зависимости от модели машины могут перевозить товары, масса которых варьируется от 5 до 30 тонн.
Для эффективной защиты транспортируемого груза приобретают задние распашные ворота, состоящие из двух створок. Конструкции служат для запирания продукции и опломбирования.
Размеры ворот для КамАЗа подбираются под конкретную модель машины, учитываются габариты фургона или полуприцепа. Например, ширина модели 4308 достигает 255 см, а высота автомобиля составляет 267 см. При этом габариты кузова, на который будет устанавливаться конструкция, отличаются от размеров транспортного средства. В этом случае ширина ворот для КамАЗа составит 247 см.
Перед производством конструкции специалисты должны осуществить точные замеры и правильно определить высоту и ширину створок:
- Исходя из их габаритов, подбирается фурнитура.
- Размеры ворот для КамАЗа также влияют на количество петель. Чем выше створки, тем больше петель понадобится для их удержания.
- Каркас изготавливается из профильной трубы 40х60. Часто для его производства также применяется швеллер 10.
- Все ворота комплектуются замочным механизмом.
После изготовления конструкции ее покрывают специальной трехкомпонентной краской, которая устойчива к ультрафиолетовому излучению и влажности, хорошо защищает материал от непогоды, перепада температуры, солнца, мороза.
Как видим, высота и ширина ворот для КамАЗа определяется в каждом случае индивидуально, учитываются габариты фургона либо же полуприцепа.
Стандартная высота ворот во двор. Размеры ворот: Ширина и оптимальная высота в заборе с калиткой частного дома
Большинство владельцев дач или частных домов сталкивались с проблемой, как правильно выбрать размер ворот. Помимо прочего, месторасположение и различные варианты въездных створок играют важную роль, от этого зависит, насколько удобным будет подъезд к частному дому. Ширина ворот должна быть достаточной, чтобы в них смогли заехать как легковое авто, так и грузовик.

Въезд на участок частного дома
Особенности месторасположения
Если строительство дачи или дома лишь на стадии разработки, то нужно подобрать оптимальное месторасположение воротной конструкции. Изначально нужно определить, осложнят ли ворота въезд автомобилям с остальных участков, перекроют ли движение транспорта, находясь рядом с проезжей частью.

Откатная створка
Не советуют устанавливать ворота для заезда в частный дом, створки которых открываются на улицу. Это может препятствовать остальным участникам движения.
Размеры ворот и калитки для частного дома
Размер проема въезда легковых машин можно начинать делать в ширину от 250 см. Но необходимо учитывать, что на участок в дальнейшем также, возможно, будет заезжать грузовой транспорт либо спецтехника. К примеру, трактор, ширина которого более 250 см. Именно поэтому желательно установить ворота начиная от 330 см.

На даче
Практичность заезда
Насколько удобным и практичным будет въезд, значительно зависит от рядом находящейся дороги, а также от максимального радиуса разворота автомобиля. Если расстояние между дорогой и въездом на территорию равно радиусу разворота авто либо больше этого значения, то в данном случае машина, проезжающая перпендикулярно по центру ворот, будет заезжать с запасом с двух сторон от автомобиля до проема ворот.

Около частного дома
В случае если проем более узкий, чем радиус поворота машины, то будет необходимо проезжать под углом, срезая поворот, так появляется высокая вероятность врезаться в бордюрное ограждение либо столб.
В данной ситуации желательно сделать более широкий проезд через ворота, в пределах 3,5–5,2 м. Если все равно не обеспечивается должный проезд, то желательно переместить воротную конструкцию во двор на 1,3–1,7 м.
Это решение особенно актуально для домов и жилых зданий с узкими улочками, постоянным потоком автомобилей, когда, чтобы проехать на территорию, необходимо пересекать ось проезжей части.
Чаще всего средний радиус разворота легковых машин составляет приблизительно 5,7–6,8 м, для грузовиков и длинномерных фур – около 7–9 м, для пожарной машины – до 10 м.

Створки из металла
Расчет размера калитки
Прежде чем установить калитку для забора из кирпича или профнастила, необходимо определить, какая будет конструкция и какого размера.

На участке
Расчет высоты калитки из профлиста:
- Стандартная высота – 190 см.
- С учетом требований калитка поднимается над уровнем земли на 10 см.
- Общая высота – 180 см.
- Сверху и снизу каркаса делается допуск для обшивки по 2 см.
- Общая высота рамы без обшивки – 1760 мм.

Схема с размерами
Какая требуется ширина калитки в заборе:
- Чаще всего ширина проема между кирпичными опорами составляет 1,1 м.
- К опорам фиксируют брусья для крепления калитки толщиной 50 мм.
- 1100 − 50 − 50 = 1000 мм.
- Учитывается зазор с двух сторон по 15–25 мм.
- Ширина рамы – 950–970 мм.

Калитка в кирпичном ограждении
Размеры калитки для инвалидов-колясочников
Как правило, стандартная по ширине коляска для инвалидов составляет 630–680 мм. Минимальный проем должен составлять 710 мм. Этого должно хватить для проезда.

Сварная калитка в заборе
Но стоит учесть, что инвалиды передвигаются, вращая колеса руками. И если коляска помещается между проемом вплотную, то можно травмировать руку. Чтобы не допустить этого, минимальная ширина калитки должна составлять 810–850 мм.
Размеры ворот для забора
Первое, от чего необходимо отталкиваться при определении размера ворот, какой транспорт будет въезжать на дачный участок либо на территорию частного дома. Одно дело – если на территорию заезжают исключительно легковые авто, иное дело – грузовики.
Чертеж для изготовления створок из профнастила
Ширина ворот на участок выбирается для различных автомобилей, естественно, разная. То есть необходимые размеры въездных ворот будут отличаться. Желательно изначально рассчитывать на грузовики (к примеру, типа КамАЗ).

Створки из профнастила частного дома
Легковые машины
Как правило, ширина этих авто находится в пределах 1,6–1,8 м. Джипы и Газели имеют чуть большую ширину. Но чаще всего эта величина составляет не более чем два метра.
То есть для этих авто стандартные размеры ворот – 2,6 м. Если заезжать на территорию осторожно, то этого запаса (зазор остается примерно по 35 см) вполне хватит.
Грузовики
В этом случае ситуация другая. К примеру, ЗИЛ по ширине – 2,5 м. Соответственно, для въезда на дачу этого транспортного средства минимального вышеуказанного проема ворот не хватит.
Большинство владельцев дач или частных домов сталкивались с проблемой, как правильно выбрать размер ворот. Помимо прочего, месторасположение и различные варианты въездных створок играют важную роль, от этого зависит, насколько удобным будет подъезд к частному дому.
Въезд на участок частного дома
Если строительство дачи или дома лишь на стадии разработки, то нужно подобрать оптимальное месторасположение воротной конструкции. Изначально нужно определить, осложнят ли ворота въезд автомобилям с остальных участков, перекроют ли движение транспорта, находясь рядом с проезжей частью.
Откатная створка
Не советуют устанавливать ворота для заезда в частный дом, створки которых открываются на улицу. Это может препятствовать остальным участникам движения.
Размер проема въезда легковых машин
Размер проема въезда легковых машин можно начинать делать в ширину от 250 см. Но необходимо учитывать, что на участок в дальнейшем также, возможно, будет заезжать грузовой транспорт либо спецтехника. К примеру, трактор, ширина которого более 250 см. Именно поэтому желательно установить ворота начиная от 330 см.
Влияние радиуса разворота автомобиля
Насколько удобным и практичным будет въезд, значительно зависит от рядом находящейся дороги, а также от максимального радиуса разворота автомобиля. Если расстояние между дорогой и въездом на территорию равно радиусу разворота авто либо больше этого значения, то в данном случае машина, проезжающая перпендикулярно по центру ворот, будет заезжать с запасом с двух сторон от автомобиля до проема ворот.

Размер ворот во двор. Правила выбора
Не последнюю роль для комфортного въезда автотранспорта играет угол заезда и обеспечение безопасности движения по дороге для других машин. Например, подъезд к участку может быть затруднен из-за узкой проезжей части, проходящей перед участком широкополосной трассы со сложной разметкой и малым радиусом поворота, растущего дерева или других механических помех. Если запаса свободного пространства мало, то необходимо учесть не менее 1–1,3 метра на разворот даже при условии выбора ворот откатного типа.
Наименьший радиус поворота для легковых машин равен 5-6 метров, для грузовых – 6-7 м. Величину определяют практическим способом: отсчет ведется от выпирающей части автомобиля при повороте. Главное, чтобы при проезде оставалось свободное пространство по обе стороны проема. Когда зазора не достаточно, движущийся под углом автомобиль может тереться о бордюр или столбы, что грозит повреждениями или царапинами на кузове. Во избежание подобных неприятностей стоит выбирать ширину проезда не менее 4 метров.
Если установлена распашная конструкция , обязательно нужно обратить внимание на сторону открывания створок. На узких дорогах лучше отдавать предпочтение воротам, которые открываются внутрь двора, или все-таки установить раздвижную систему.
В остальном, ширина ворот подбирается с учетом размеров автомобиля и расположения участка по отношению к близлежащим объектам.
Легковые автомобили
В среднем, легковые авто имеют ширину от 1,5 до 1,7 метров. Внедорожники могут быть несколько шире, но все равно меньше 2 м. Для комфортного проезда желательно оставить по 40 см с каждой стороны. Если автомобиль имеет размеры 1,6 м, добавляем плюсом 80 см. Итого проем должен составлять не менее 2,4-2,5 м, а лучше 3 метра.
Грузовые авто
Грузовики имеют ширину, начиная от 2,5 метров и выше. Соответственно, габариты проема должны составлять 3,5 м и больше. Чтобы водитель чувствовал себя максимально уверенно и мог легко заезжать на территорию участка, желательно выбирать модель ворот с полотном от 4 метров и больше.