Как самостоятельно сварить ворота из профильной трубы. Распашные ворота для загородного дома
- Как самостоятельно сварить ворота из профильной трубы. Распашные ворота для загородного дома
- Сварка ворот из профильной трубы поэтапно. Выбираем материалы
- Ворота из профильной трубы 40х20 своими руками. Чертежи распашных металлических ворот из профлиста и требуемые материалы
- Ворота из профильной трубы своими руками. Как сварить ворота из профильной трубы своими руками: чертежи и расчет, фото
- Ворота из профильной трубы 40х40. Как сварить ворота на забор из профильной трубы своими руками
- Ворота из круглой трубы своими руками. Устройство
- Красивые ворота из профильной трубы. Раздвижные ворота своими руками
- Как сварить ворота, чтобы не повело. Изготовление гаражных ворот
- Самый простой способ сварить ворота. Разновидности
Как самостоятельно сварить ворота из профильной трубы. Распашные ворота для загородного дома
После того как масштабный чертёж полностью составлен и весь нужный материал закуплен мы приступаем к следующим этапам работы.
- Подготавливаем материалы и трубы к последующей обработке. Если вы приобрели не новые профильные трубы, то их надо тщательно очистить от коррозии и окалины с помощью болгарки и специального шлифовального круга. Можно взять и обыкновенную наждачную крупнозернистую бумагу, но ней работать придётся очень долго. Новые трубы надо будет просто хорошо обезжирить обычным растворителем.
- Далее происходит полная разметка и дальнейшая нарезка труб и металла. Для того чтобы сделать правильно конструкцию необходимо трубы с большим сечением нарезать ровно (одинакового размера) попарно. Такие действия необходимо произвести для того, чтобы будущая сварная конструкция была симметричной, а также для исключения неровной и неправильной нарезки профиля.
нарезка профильных труб для ворот
- Для установки опор надо выкопать 2 глубокие ямы размером примерно в 1 метр вглубь и габаритами 50х50 см. Опорные столбы устанавливаются только строго вертикально по отвесу и заливаются раствором цемента с бутовым камнем. Время застывания цемента около 7 дней при оптимальной температуре +25С.
Установка опорных столбов для ворот
- Все разрезанные профильные трубы свариваем в единый каркас. Во время сваривания труб необходимо уголком все время проверять ровность сваривания углов конструкции иначе ворота получатся с перекосом. После окончания сварочных работ все швы надо хорошо отшлифовать. Для ровного расположения профиля можно воспользоваться специальным столом или любой ровной поверхностью.
Свареный каркас распашных ворот
- После того как каркас готов можно начинать приваривать петли. Для того чтобы они были приварены правильно данную работу лучше всего делать с помощником. Вначале их приваривают к опорам, а затем к самому каркасу. Во время проведения сварочных работ необходимо пользоваться защитными средствами.
Приваривание петли к металлическому профилю
- В качестве обшивки каркаса можно использовать цветной профнастил, прочный поликарбонат, металлопрокат или дерево. Профлист можно крепить как снаружи каркаса, так и изнутри его. Листы располагаются в зависимости от пожелания владельца дома. Их можно прикрутить саморезами или прикрепить заклёпками.
Профнастил для обшивки ворот
- Обычно прокатный лист приваривается к каркасу и поперечным рёбрам жёсткости. Так как листы железа достаточно тяжёлые, то их необходимо приваривать. Такие распашные ворота будут очень прочными, но при этом очень громоздкими и тяжёлыми. Это нужно учесть ещё при покупке петель, иначе они просто не выдержат нагрузки.
Листовой металл для обшивки ворот
- Деревянная обшивка намного хуже прокатного или профилированного листа, так как она менее долговечная. Для того чтобы прикрутить доски к каркасу необходимо в нём сделать специальные отверстия. Использовать можно саморезы или специальные шурупы.
Сварка ворот из профильной трубы поэтапно. Выбираем материалы
Самое главное, что нужно сделать — правильно выбрать материалы. Ведь именно от них во многом зависит прочность и долговечность всей конструкции.
Вы можете сварить гаражные ворота из уголков или профильных труб. Второй вариант более надежный и долговечный, по нашему опыту. Именно поэтому сейчас мы не будем рассказывать, как сварить ворота на гараж из уголков. Это тема для отдельной статьи.
Профильная труба может быть квадратной, овальной или прямоугольной. Лучше использовать квадратную. Из квадратной трубы получаются надежные и красивые ворота, и с таким профилем легче работать. Конечно, можно сварить ворота на гараж из круглой трубы, но такая работа сложнее и дороже.
С профилем разобрались. Теперь нужно выбрать материал, из которого изготовлена наша профтруба. Если бюджет совсем ограничен, то можно купить трубы из углеродистой стали, они стоят дешевле. Самый лучший вариант — трубы из нержавейки, но придется потратиться. Оптимальный выбор — трубы из низколегированной стали.
Далее нужно определиться с толщиной стенки трубы. Производители предлагают изделия с толщиной от 1 до 20 мм. В нашем случае 2 мм будет достаточно. Брать трубы с большей толщиной стенки нецелесообразно при сборке гаражных ворот.
Что касается размеров, то подготовьте трубы 40х20 мм. Это универсальный размер, его легко найти в продаже, стоит относительно недорого, отлично выдерживает нагрузки.
В качестве облицовки мы используем металлические листы толщиной 2 мм. Также можно использовать профнастил или дерево.

Дополнительно створки можно утеплить с помощью пенопласта. Если вы зимой подолгу проводите время в гараже, то утепление существенно снизит затраты на отопление. Пенопласт стоит дешево и отлично подходит для этих целей.
После сборки и монтажа ворота можно покрасить, чтобы защитить от преждевременной коррозии. Выбирайте краску для наружных работ.
Ворота из профильной трубы 40х20 своими руками. Чертежи распашных металлических ворот из профлиста и требуемые материалы
Итак, пришло время рассказать, какую конфигурацию я выбрал для своих ворот. Размеры определялись просто. Высоту каждого полотна я назначил в соответствии с высотой профлиста – 2000 мм. Ширину – 2030 мм,с учетом сантиметровых зазоров для свободного хода створок. Если сделать впритык, летом они могли и не закрыться, увеличившись от нагрева. Коэффициент температурного расширения у металла достаточно велик.
Как я уже указывал, основную роль в обеспечении жесткости должны взять на себя листы профнастила. Это позволило отказаться от длинных диагональных раскосов, сэкономив почти шесть метров металлической профтрубы (см. чертеж).
Металлические раскосы окажутся бесполезными после того, как к каркасу будут прикреплены профлисты
А вот горизонтальные планки на середине высоты створки придется установить, иначе при высоте 2 метра жесткости листа будет недостаточно
Я просто укрепил каркас по углам небольшими отрезками. Заоднополучилось и вес ворот уменьшить, снизив нагрузку на петли. А вот промежуточный горизонтальный прогон посередине каждого полотна пришлось поставить, иначе листы могли не выдержать ветровую нагрузку и погнуться.
Уже в процессе изготовления мне вдруг пришла в голову мысль, что неплохо было бы дополнить ворота калиткой. Открывать каждый раз наружу даже одну из створок, чтобы пройти пешком, неудобно. Сняв каркас одного из полотен, я вварил в него еще и каркас калитки.
Итак, для работы мне потребовались следующие материалы:
труба профильная 40 х 20 х 2 мм для распашных ворот – 22,0 пог. м;
труба профильная 40 х 20 х 2 мм для установки калитки – 10,0 пог. м;
профилированный стальной лист 1200 х 2000 мм – 4 штуки;
саморезы заборные 5,5 х 19 мм – около 120 (в т. ч. около 20 шт. пришлось добавить из-за устройства калитки) шт;
петли – 3 пары (в т. ч. 1 пара для калитки).
Я намеренно указал отдельно расход материалов на калитку – если делать ворота без нее, получится еще более бюджетный вариант. Однако, как показывает практика, дешево – не всегда хорошо.
Инструменты я использовал вполне доступные:
угловую шлифмашину с шлифовальным и отрезными дисками;
сварочный аппарат с парой килограмм электродов;
шуруповерт (его можно заменить низкооборотистой электродрелью) ;
молоток;
угольник;
рулетка;
карандаш;
уровень;
отвес;
струбцины.
Все материалы необходимо подготовить заранее – в процессе изготовления может потребоваться подгонка «по месту».
Ворота из профильной трубы своими руками. Как сварить ворота из профильной трубы своими руками: чертежи и расчет, фото
Ворота из профильной трубы отличаются высокой прочностью, простотой в самостоятельном монтаже и доступной ценой. Неудивительно, что подобные изделия пользуются большой популярностью среди владельцев загородной недвижимости. Как сделать ворота из профильной трубы своими руками, описано ниже в статье.

На даче
Достоинства и недостатки профилированных труб
- высокую прочность при легком весе;
- возможность самостоятельного монтажа (металлопрофиль легко режется, сваривается и соединяется самонарезающими шурупами).

На участке
К недостаткам профильных изделий относят:
- подверженность ржавлению при взаимодействии с атмосферными осадками, обусловливающими образование коррозии;
- неудобство в грунтовании и окрашивании поверхности трубопроката, что влечет за собой увеличение временных затрат на установку труб.

Фигурный металлоштакетник
Как видно выше, достоинства профильных труб с лихвой компенсируют их недостатки.
Как сварить ворота на забор из профильной трубы своими руками
Технология изготовления конструкции достаточно простая. Чтобы сварить ворота из профильных труб, нужно подобрать вид изделия, оптимально подходящий под конструкцию створок.

Установка запоров
Выбор труб
Профтрубу под ворота предпочтительней выбрать квадратного либо прямоугольного сечения. Трубы такой формы легче монтируются и транспортируются на участок. Наиболее прочные профильные трубы производятся из следующих видов стали:
- нержавейки;
- оцинковки;
- углеродистой.
На фото представлены металлические створки.

Кованые элементы
Цена трубных заготовок зависит от материала, из которого они изготовлены. Наиболее бюджетным вариантом являются изделия из углеродистой стали. Впрочем, при выборе труб из углеродного сплава учитывается низкая прочность и короткий эксплуатационный срок такой продукции.
Сварные холоднокатаные и оцинкованные профили – оптимальный вариант под створки, но их стоимость выше. Трубы равнозначного диаметра могут вдвое отличаться по толщине стенок.
Под створки используются трубы квадратного либо прямоугольного сечения. Сделать работу правильно и своими руками возможно при наличии сварочного аппарата и вспомогательных инструментов.
На фото изображена конструкция после установки.

После монтажа
Подготовка участка
На стадии подготовки учитываются габариты въезжающего в проем ворот автотранспорта. Определяется общая площадь, занимаемая распашными или откатными створками. Стандартные размеры ворот составляют:
- по общей ширине – 2,5–3,5 м;
- по высоте (ворот и калитки) – 1м 50 см;
- по ширине калитки – 0,75–1 м.
На фото изображены ворота на даче.

Металлический штакетник на профтрубе
С учетом калитки общая ширина участка под ворота должна составлять 3,5 или 4,5 м. Конструкция, монтируемая на ранее установленное заграждение, ставится по соответствующей изгороди высоте. Иногда допустима меньшая высота створок, но не менее 40 сантиметров.
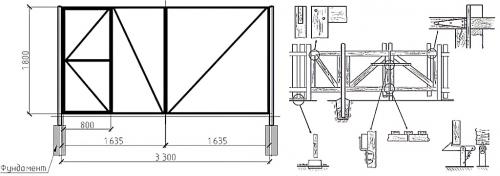
Чертежи и расчет
Перед проведением работ на бумагу наносится чертеж. Изображают прямоугольный проем с прямоугольником меньшего размера внутри, обозначающим раму из профиля с указанием длины и ширины будущей конструкции. Также проводится расчет финансовых затрат на приобретение необходимых материалов и набора инструментов для работы.

Схема установки с размерами
Ворота из профтрубы собираются из различных элементов, отличающихся сечением. Диаметр стальной трубы под несущие створки опоры составляет 80х80 или 100х100 мм. Каркас ворот из профтрубы выполняется из изделий 50х50 мм.
Перемычки и продольные полосы сваривают из отрезков профиля 20–40 мм.
Кроме основных величин, на рисунке чертежа указывают размеры зазоров между створками, грунтом и опорами. На сторонах с петлями приблизительная ширина зазора составляет 5 мм. Учитывая возможное провисание ворот и их подклинивание в будущем, на стороне с замками оставляют просвет в 10 мм.

Эскиз металлического каркаса
На участке, не подверженном снегу и мусору, внизу створок учитывается просвет, но не меньше 20 мм. При учете негативного воздействия внешних факторов высота зазора предусматривается в 50–150 мм (решается индивидуально).
Подготовка инвентаря
Работа выполняется посредством следующих инструментов:
- оборудования для сварки и электродов;
- угловой шлифовальной машины (болгарки) с абразивными и отрезными кругами;
- измерительных приборов: рулетки, строительного уровня, отвеса, угольника;
- винтоверта с самонарезающими шурупами по металлу;
- бура или лопаты;

Чертеж каркаса из металла
Используемые материалы:
- Профильные трубы. Из профиля изготавливается каркас. Для сваривания рамы и перемычек используют трубы сечением 50х50, 20х40 или 20х20 мм.
- Материал для обшивки. Створчатая рама отделывается профлистом, деревом, коваными элементами. При планировании оригинального дизайна обшивка комбинируется.
На фото ниже изображена дача.
Ворота из профильной трубы 40х40. Как сварить ворота на забор из профильной трубы своими руками
Технология изготовления конструкции достаточно простая. Чтобы сварить ворота из профильных труб, нужно подобрать вид изделия, оптимально подходящий под конструкцию створок.
Установка запоров
Выбор труб
Профтрубу под ворота предпочтительней выбрать квадратного либо прямоугольного сечения. Трубы такой формы легче монтируются и транспортируются на участок. Наиболее прочные профильные трубы производятся из следующих видов стали:
- нержавейки;
- оцинковки;
- углеродистой.
На фото представлены металлические створки.
Кованые элементы
Цена трубных заготовок зависит от материала, из которого они изготовлены. Наиболее бюджетным вариантом являются изделия из углеродистой стали. Впрочем, при выборе труб из углеродного сплава учитывается низкая прочность и короткий эксплуатационный срок такой продукции.
Сварные холоднокатаные и оцинкованные профили – оптимальный вариант под створки, но их стоимость выше. Трубы равнозначного диаметра могут вдвое отличаться по толщине стенок.
Под створки используются трубы квадратного либо прямоугольного сечения. Сделать работу правильно и своими руками возможно при наличии сварочного аппарата и вспомогательных инструментов.
На фото изображена конструкция после установки.
После монтажа
Подготовка участка
На стадии подготовки учитываются габариты въезжающего в проем ворот автотранспорта. Определяется общая площадь, занимаемая распашными или откатными створками. Стандартные размеры ворот составляют:
- по общей ширине – 2,5–3,5 м;
- по высоте (ворот и калитки) – 1м 50 см;
- по ширине калитки – 0,75–1 м.
На фото изображены ворота на даче.
Металлический штакетник на профтрубе
С учетом калитки общая ширина участка под ворота должна составлять 3,5 или 4,5 м. Конструкция, монтируемая на ранее установленное заграждение, ставится по соответствующей изгороди высоте. Иногда допустима меньшая высота створок, но не менее 40 сантиметров.
Чертежи и расчет
Перед проведением работ на бумагу наносится чертеж. Изображают прямоугольный проем с прямоугольником меньшего размера внутри, обозначающим раму из профиля с указанием длины и ширины будущей конструкции. Также проводится расчет финансовых затрат на приобретение необходимых материалов и набора инструментов для работы.
Схема установки с размерами
Ворота из профтрубы собираются из различных элементов, отличающихся сечением. Диаметр стальной трубы под несущие створки опоры составляет 80х80 или 100х100 мм. Каркас ворот из профтрубы выполняется из изделий 50х50 мм.
Перемычки и продольные полосы сваривают из отрезков профиля 20–40 мм.
Кроме основных величин, на рисунке чертежа указывают размеры зазоров между створками, грунтом и опорами. На сторонах с петлями приблизительная ширина зазора составляет 5 мм. Учитывая возможное провисание ворот и их подклинивание в будущем, на стороне с замками оставляют просвет в 10 мм.
Эскиз металлического каркаса
На участке, не подверженном снегу и мусору, внизу створок учитывается просвет, но не меньше 20 мм. При учете негативного воздействия внешних факторов высота зазора предусматривается в 50–150 мм (решается индивидуально).
Подготовка инвентаря
Работа выполняется посредством следующих инструментов:
- оборудования для сварки и электродов;
- угловой шлифовальной машины (болгарки) с абразивными и отрезными кругами;
- измерительных приборов: рулетки, строительного уровня, отвеса, угольника;
- винтоверта с самонарезающими шурупами по металлу;
Чертеж каркаса из металла
Используемые материалы:
- Профильные трубы. Из профиля изготавливается каркас. Для сваривания рамы и перемычек используют трубы сечением 50х50, 20х40 или 20х20 мм.
Ворота из круглой трубы своими руками. Устройство
Калитка состоит из опорных столбов и дверного полотна на раме, которое крепится к столбам при помощи петель. Столбы могут быть кирпичные (каменные), деревянные или металлические. В кирпичные при кладке замуровывают небольшие куски толстого металла или толстый металлический прут, к которым впоследствии приваривают раму.
Необычные калитки с деревянным каркасом и оригинальным заполнением
Металлические столбы делают из круглой или профилированной трубы с толстыми стенками. Круглые трубы используют все реже: к ним сложнее приваривать, крепить что-либо. Профилированная труба при том же сечении (диагональ по сравнению с диаметром) и толщине стенки выдерживает большие ветровые нагрузки, к плоским граням проще приваривать или крепить при помощи саморезов, болтов. Поэтому именно ее все чаще используют при устройстве калиток. Еще один вариант — к каркасу из профильной трубы приварить металлический уголок. В этом случае заполнение получится как бы в рамке.
Устройство калиток с деревянной и металлической рамой одинаково
Деревянные столбы обычно используют если забор деревянный. Чаще всего столбы — это сосновый брус, обработанный защитными пропитками. Они предотвращают (или замедляют) разрушение древесины. Но бывают и такие случаи, когда столбы ставят металлические, а калитка и ограда при этом деревянные. Это потому что древесина в земле быстро сгнивает, даже после защитной обработки.
Немного о конструкции опорной рамы. Это может быть просто два столба вкопанных в землю — вариант подходит, если грунт не склонен к пучению (пески, супеси, плодородные, но не глинистые почвы).
Столбы повело. Если вверху и внизу будут перемычки, вероятность такой неприятности намного снизится
Для пучинистых грунтов (глина, суглинки) желательно чтобы столбы были соединены вверху и внизу. В таком случае вероятность перекоса калитки после зимы очень мала. Если вы не хотите делать порожек в проеме, нижнюю перемычку можно опустить ниже уровня земли (на штык–полтора). Ее надо будет тщательно покрыть антикоррозионным составом, прогрунтовать, и покрасить в несколько слоев. А еще чтобы избежать перекоса, следует закапывать столбы ниже уровня промерзания хотя бы на 15-20 см.
Каркас калитки делают из металлической трубы или деревянных брусков. Древесина используется для деревянных заборов, металл — во всех остальных случаях.
Красивые ворота из профильной трубы. Раздвижные ворота своими руками
Раздвижные ворота – это отличный вариант для дома или дачи. Они обладают надежной конструкцией и имеют длительный срок службы. Раздвижные ворота изготавливаются из профильной трубы и обшиваются различными материалами, в том числе, металлопрофилем.
Раздвижные ворота бывают двух видов:
- Рельсовые – устаревшая модель, применяемая в основном на промышленных предприятиях.
- Консольные – наиболее распространённый вариант. Данная конструкция предусматривает наличие консоли, которая является продолжением ворот и спрятана за забором. Благодаря ей ворота перемещаются по откатным тележкам, прикрепленным к фундаменту. Каждый откатной механизм снабжен подшипниками с полимерными или металлическими катками. Сами тележки находятся в направляющей, что защищает их от загрязнения и атмосферных осадков.
Столбы для забора из профнастила: применяемые материалы, от чего зависит расстояние и глубина, этапы монтажа
При использовании в частном доме такая конструкция прослужит более 20 лет. Она рассчитана на 60000 циклов открывания-закрывания.
Достоинства раздвижных ворот:
- возможность ручного и автоматического управления;
- отсутствие ограничений по высоте и тяжести проходящего транспорта;
- лёгкость в изготовлении;
- отсутствие необходимости обслуживания.
Недостатки:
- необходимость в более мощных несущих опорах;
- требуется большая ширина забора для открытия створки.
Основные элементы раздвижных ворот:
- Верхний улавливатель.
- Поддерживающая шина.
Для дистанционного управления дополнительно приобретаются: пульт ДУ, фотодатчики или световые датчики для приема сигнала пульта ДУ, препятствующие закрытию ворот, если в проеме находится какой либо предмет.
Как сварить ворота, чтобы не повело. Изготовление гаражных ворот
Думая, как сварить ворота гаражные, надо сразу задуматься о комплектующих. В продаже можно найти комплекты, предназначенные для самостоятельной сборки подобной конструкции с подробной инструкцией. Рулонные (см. Рулонные ворота для гаража: правильный монтаж ) и секционные виды гаражных ворот лучше всего покупать заводские и заказывать работы по установке у профессионалов.
Требования к воротам
Если вы решили сделать все самостоятельно, необходимо помнить, что качественные ворота должны соответствовать некоторым требованиям:
- Обеспечение легкого и беспрепятственного выезда. Их размеры должны быть оптимальными по отношению к габаритам автомобиля;
- От стойки ворот до бока транспортного средства расстояние не должно быть меньше тридцати сантиметров. Если транспортное средство небольшое, то постарайтесь расширить эту область на тот случай, если вы решитесь покупать внедорожник;
- Для простых легковых автомобилей оптимальная высота составляет два метра;
- Стандартные размеры проемов: от 2,4х2,1 до 5,4х2,4 метра;
- Ворота должны защищать помещение от взломов (см. Как укрепить ворота гаража и защитить помещение ). Самыми прочными являются те, которые сделаны из оцинкованных стальных листов не тоньше двух – пяти миллиметров. Укрепить ворота можно с помощью запоров. Они предназначаются для внешних колодок, можно использовать и бронированные накладки;
- Важно защитить строение от негативного влияния окружающей среды. Защиту от осадков и ветра призвано обеспечивать крепление ворот. Чтобы полотно держалось крепко необходимо применять вертикальные запоры, способные предотвращать перекос. Рекомендуется также использовать уплотнитель (он обеспечивает лучший контакт рамы и створок).
Самый простой способ сварить ворота. Разновидности
Существует множество конфигураций распашных ворот. Необходимая конфигурация подбирается исходя из свободного места на участке или за его пределами. Ведь при открывании створки занимают немало места, и эту особенность нужно предусмотреть.

Всего разделяют три основных разновидности:
- Одностворчатые распашные ворота. Вариант редко используемый, но все-таки встречающийся на участках с большим количеством свободного места. В таком варианте ворота состоят из одной створки, открывающейся в правую или левую сторону, в зависимости от ваших пожеланий. Такая конструкция проще в сборке, но сложнее в монтаже и эксплуатации. Поскольку створка держится на петлях только с одной стороны, для таких ворот требуется усиленная опора и усиленные петли. Нередко одностворчатые ворота провисают и деформируются, если длина створки сильно превышает ее высоту.
- Двустворчатые распашные ворота. Самый популярны вариант ворот среди всех разновидностей в принципе. Экономично, надежно, занимает мало места, нет проблем с монтажом и ремонтом. Такие ворота состоят из двух створок, открывающихся в разные стороны.
- Одностворчатые/двустворчатые ворота с врезной калиткой в створке. Если вариант сварить ворота и калитку рядом кажется вам недостаточно удобным, можно прорезать отверстие в самой створке и установить калитку туда. Выбор спорный, но некоторым умельцам он нравится. Учтите, что в таком случае порог будет достаточно высоким, что не всегда удобно для детей и пожилых.