Профильная труба для изготовления каркаса для ворот. Что важно знать о самостоятельном изготовлении ворот?
- Профильная труба для изготовления каркаса для ворот. Что важно знать о самостоятельном изготовлении ворот?
- Размер профильной трубы для ворот. Как сделать ворота из профильной трубы своими руками
- Профильная труба для гаражных ворот. Что понадобится для создания чертежа
- Ворота из профильной трубы 40х40. Расчёт и необходимые инструменты
- Толщина профильной трубы для столбов ворот. Варианты установки столбов для металлических ворот
Профильная труба для изготовления каркаса для ворот. Что важно знать о самостоятельном изготовлении ворот?
Самостоятельно сварить ворота из профильных труб в домашних условиях может любой домашний мастер, имеющий инструмент и минимальный опыт обращения со сварочным аппаратом. Если сварки нет, эти услуги можно заказать опытному сварщику, а своими руками выполнить остальной фронт работ.
Окончательный результат во многом зависит от нескольких аспектов:
- удачный выбор дизайна ворот;
- грамотно сделанный чертеж (эскиз);
- качественный металл;
- хорошая фурнитура.
Внимание! Очень важны строго вертикально установленные опорные столбы, что исключит перекосы и самопроизвольное открывание ворот под собственным весом.
Самодельные ворота на металлическом каркасе изготавливают для гаража и на въезде во двор. В идеале, они должны быть выполнены в едином ключе . Даже простой дизайн, выполненный аккуратно, будет гармонировать, когда двое ворот похожи и окрашены одной и той же краской. Даже если одни ворота раздвижные, другие – распашные, но с похожей отделкой, это смотрится эстетично. Хотя они разные конструктивно, в закрытом виде смотрятся как одинаковые.

На въезде во двор можно установить откатные ворота, если для распашных недостаточно места
Изготовление ворот из профильных труб своими руками – трудоемкий процесс, предполагающий транспортировку, резку и сварку металла. Отдельно придется заниматься вкапыванием столбов. Важный момент – входные ворота лучше делать с калиткой, закрывающейся автономно, ею придется пользоваться чаще, чем воротами. Не стоит всё делать наспех, примитивно – ворота должны служить долгое время.
Размер профильной трубы для ворот. Как сделать ворота из профильной трубы своими руками
Самостоятельное изготовление ворот, устанавливаемых на въездах на территорию приусадебного участка или иных местах, обуславливается такими факторами, как сложность транспортировки и установки готовой конструкции, простота изготовления и доступность расходных материалов. Чтобы изготовить ворота из профильной трубы своими руками, потребуется минимальный набор инструментов и умение работать со сварочным аппаратом.
Распашные ворота, изготовленные из профильной трубы
Как выбрать профильную трубу
Профильная труба – это труба прямоугольного или квадратного сечения, имеющая различные размеры и применяемая для изготовления каркасов и иных изделий, например,.
Труба со стандартным размером 25*25
Профильная труба для ворот может быть изготовлена из:
- углеродистой стали любой марки;
- нержавеющей стали;
- оцинкованной стали.
Для изготовления ворот чаще всего применяют трубы из углеродистой или оцинкованной стали. Трубы из нержавейки более подходят для изготовления мебельных каркасов, так как они более легкие и не способны выдерживать большие нагрузки.
Все профильные трубы различаются по методу их производства. Выделяют:
- сварные трубы, которые в свою очередь подразделяются на:
- горячекатаные трубы, которые преимущественно используются для каркасов изделий, располагающихся на улице и не требующих большой точности конструкции, например, качелей ;
- холоднокатаные трубы изготавливаются с более высокой точностью и применяются для мебельных каркасов;
- бесшовные. Являются более качественными изделиями, так как самым слабым местом сварных труб считается именно шов. Бесшовные трубы отличаются пластичностью, устойчивостью к высокому давлению и большой стоимостью, поэтому для изготовления ворот и калиток применяются крайне редко.
Для изготовления ворот оптимально подходят недорогие горячекатаные профильные трубы.
Этапы изготовления ворот
Чтобы сделать ворота из профильной трубы, надо:
- произвести замеры;
- подготовить чертеж;
- собрать и установить конструкцию.
Параметры ворот
Каркас ворот из профильной трубы должен быть сооружен таким образом, чтобы автомобиль мог спокойно проехать. Оптимальными считаются размеры:
- длина ворот 3 м;
- высота – 1,5 м.
Если совместно с воротами устанавливается и калитка, то ее высота должна соответствовать высоте ворот, а ширина не должна быть менее 0,75м

Оптимальная ширина и высота ворот для въезда на садовый участок
Если ворота устанавливается на ранее построенный забор, то параметры выбираются следующим образом:
- высота ворот и калиток должна быть аналогичной высоте общего забора. В некоторых ситуациях, например, дизайнерское решение, допускается уменьшение высоты на 20-40 см;
- ширина ворот должна определяться расстоянием между двумя столбами, на которые предполагается крепление каркаса.
Определение размеров ворот необходимо для подсчета количества профтрубы и других материалов.
Чертеж ворот
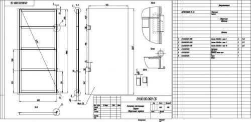
На следующем этапе необходимо выполнить чертеж ворот из профильной трубы, на котором помимо основных параметров ворот и калитки будут указаны размеры дополнительных элементов, например, для придания конструкции жесткости, и габариты применяемых труб.
Чертеж разрабатывается на бумаге и позволяет, также как параметры ворот, правильно рассчитать количество необходимых материалов.

Чертеж распашных ворот для загородного участка
Если предполагается установка автоматических ворот, то на чертеже дополнительно необходимо отразить места установки систем открывания и фиксации.
Чертеж распашных ворот с дополнительной калиткой
Необходимые материалы и инструменты
После того, как сняты основные размеры, построен чертеж и определено количество необходимых материалов, надо приобрести составляющие элементы и подготовить инструмент для выполнения работы.
Для ворот потребуются:
- профтрубы различных размеров;
Для основных столбов применяются трубы 100*100. Для каркаса можно использовать трубы не менее 50*50. Для перемычек, придающих конструкции жесткость, достаточно использовать профильные трубы размером 25*25.
- материал, который будет применяться в качестве обшивки (наиболее часто используется профлист различных цветов);

Материал для обшивки каркаса ворот и калиток
- петли для крепления ворот к столбам;
- саморезы, предназначенные для металла;
- грунтовка и краска (если используются неоцинкованные трубы).
Профильная труба для гаражных ворот. Что понадобится для создания чертежа
Главное из того, что понадобится для создания качественного чертежа ворот (кроме бумаги, а также пишущих, или чертёжных, принадлежностей), это время.

Для того чтобы составляемый чертёж был максимально качественным и давал максимально качественное представление о будущем объекте, а также обо всех подробностях и деталях будущего строительства, следует внимательно изучить все варианты такого строительства.

Проще всего, изучать это с помощью тех материалов, которые в изобилии есть в свободном доступе в сети интернет (также, при определении дизайна будущих ворот, следует применить свою собственную фантазию).

Для каких ворот нужен чертёж
Перед тем, как начинать строительство такого объекта, как ворота, нужно оставить план такого строительства, в который обязательно входит чертёж ворот.

Ни они, будь то откатные или распашные ворота, а также несмотря на то, из какого материала они изготовлены (дерево, профильный лист, обычный листовой металл, или ажурные кованые прутья).
- Для того чтобы сделать грамотный чертёж будущих ворот, потребуется изучив варианты строительства таких объектов (которые применяются в данное время) а также то, из каких именно материалов они большей частью строятся, ну и конечно то, какой внешний вид сейчас в моде.
- Ведь ворота, это то, что первым видит всякий посетитель, а также то, что он видит последним. Поэтому, кроме всего прочего, они должны быть красивыми.
- Поэтому, нужно определиться не только с их конструкцией будущих ворот, но и с тем, какой внешний вид они должны иметь.
- Ведь от этого зависит не только и не столько то, какое впечатление возникнет у посетителей о воротах, но также и то, какое именно мнение, они сложат об имидже владельца.
Когда и для чего нужен чертёж
Чертёж, пригодится вам не только при создании откатных ворот, но и при создании любой другой, даже самой простой их конструкции.

Таким образом, качественный чертёж, способен значительно облегчить процесс будущего строительства ворот (как, впрочем, и любого другого объекта).

Чертёж ворот, должен включать в себя, все детали будущего сооружения, а также все основные детали. Такой подробный чертёж будущих ворот, сильно облегчит их строительство.

К тому же, подробный чертёж ворот, позволит увидеть то, насколько хорошо, данная конструкция ворот впишется в окружающий ландшафт.
- Итак, создание подробного чертежа ворот, это один из важнейших шагов в их постройке.
- Чертёж, должен включать в себя, как чертёж самих ворот, так и чертежи всех объектов, которые будут их окружать.
- Таким образом, создание чертежа, является не просто, одним из важных действий при постройке ворот, по также и тем действием, которое способно сильно упростить их постройку, а также, поможет им гармонично вписаться в окружающую среду.

Множество проблем, а также возможных ошибок станут видны после того, как будет составлен подробный чертёж будущих ворот (или любого другого объекта).
Что обязательно нужно отобразить на чертеже
На чертеже, должны быть отображены все наиболее важные узлы будущих ворот, а также все те объекты, которые будут их окружать. Это поможет не только избежать многих ошибок при строительстве, но и гармонично вписать ворота в окружающий пейзаж, а также обеспечить их полную функциональность.
- То есть их полное открывание и закрывание, при этом на пути не будет оказываться никаких препятствий.
- Кроме этого если предполагается оснащение ворот любыми средствами автоматики, то при разработке их чертежа, необходимо предусмотреть и отобразить пути прокладки всех коммуникаций (как силовых, так и информационных, то есть кабелей от разнообразных датчиков).
- Это тоже может помочь избежать одной из наиболее распространённых ошибок, а именно прокладки кабелей там, где они будут мешать движению ворот при их открывании и закрывании.
- И избавит вас от изменения маршрута прокладки кабелей в процессе выполнения строительных работ, или даже после их завершения.

Таким образом, детальная разработка чертежа, является одним из важнейших этапов строительства любого объекта, в том числе и ворот, который поможет избежать ошибок на более поздних этапах строительства.

Любые ошибки, которые могут возникнуть при возведении ворот, гораздо проще предотвратить на этапе создания чертежа, нежели устранять их при строительстве, а также намного проще, чем устранять их последствия после постройки ворот.
Плюсы тщательного выполнения чертежа
К тому же на этой стадии, гораздо проще внести изменения в их конструкцию, нежели сделать это на более поздней стадии, стадии строительства, а тем более после её завершения.

Ворота из профильной трубы 40х40. Расчёт и необходимые инструменты
Определившись с типоразмером профильной трубы и грамотно разработав чертёж, можно приступать к определению потребности в материалах, приобретению покупных комплектующих, подготовке инструментов и оборудования для постройки.
Обобщённый перечень материалов для изготовления ворот включает:
- трубы профильного сечения, соответствующие чертёжным размерам;
- обшивочный материал, который будет крепиться к полотнам, например, профильный лист, поликарбонат, древесина или металл;
- подвесные петли для соединения полотен с опорными столбами или роликовый механизм для ворот откатного типа;
- замок и элементы фиксации полотен (скобы, щеколды, защёлки);
- элементы крепления, предназначенные для фиксации отделочного материала;
- декоративные детали (например, кованные элементы), если они предусмотрены чертежом;
- грунт для защиты от коррозии и предварительной покраски металлоконструкции;
- эмаль для наружных работ, предназначенная для окончательной отделки и обеспечения товарного вида изделия.
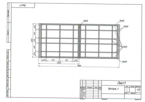
На примере распашных ворот с двумя створками выполним расчёт потребности в материалах.

Определение потребности в материалах производится согласно эскизу с размерами
Для изображённых на эскизе ворот понадобится:
- труба профильного сечения 40х60 мм для изготовления опорных стоек, которые не бетонируются, а крепятся к имеющимся на въезде столбам. Суммарная потребность в трубе размером 40х60 мм — четыре метра (две стойки по 2 метра);
- профтруба 40х40 для изготовления двух каркасов. Зная размеры одной створки 1,5х2 метра, несложно посчитать периметр и прибавить к нему одну горизонтальную перемычку, расположенную посередине створки, равную 1,5 метра: 1,5+2+1,5+2+1,5= 8,5 метра. Для двух полотен потребуется 8,5х2=17 метров трубы;
- квадратная труба сечением 20х20 мм для изготовления раскосов, придающих полотнам жёсткость. Используя теорему Пифагора, несложно рассчитать длину гипотенузы треугольника с катетами 1 и 1,5 метра. Корень квадратный из суммы квадратов катетов составляет 1,8 метра. Для четырёх раскосов потребуется 1,8х4+7,2 метра профильной трубы;
- угловые косынки, представляющее собой прямоугольный треугольник из стали толщиной 2–2,5 мм со сторонами по 10 см. На каждую створку понадобится по 4 косынки для обеспечения жёсткости угловых зон;
- профнастил для зашивки каркаса ворот. Потребуется 2 листа размером 1,5х2 метра;

Цвет профнастила можно выбрать по вкусу
- саморезы для фиксации профлиста. Разделив длину опорной поверхности профтрубы, равную 17 м, на шаг крепления саморезов (0,3–0,4 метра), получим 42–56 саморезов. Необходимо иметь пару запасных, поэтому 60 штук будет достаточно;

Цвет саморезов соответствует окраске профлиста
- петли диаметром 25 мм в количестве 4 штук;
- два стопорных фиксатора и задвижка;
- грунтовка по металлу и краска для финишной отделки.
Толщина профильной трубы для столбов ворот. Варианты установки столбов для металлических ворот
Установка столбов для ворот — непростая работа. Если не владеть опытом правильной установки столбов для ворот, то результат будет плачевным. Столбы ворот со временем будут наклоняться, ворота будут подклинивать или вовсе перестанут нормально работать. Всего этого можно избежать. Что необходимо знать, перед тем как начать монтаж столбов для ворот.
Первое, это обратить внимание на материал столбов для ворот. Подходящим материалом будет являться толстостенный металлопрокат
Например, горячекатаный швеллер 14, 16 или швеллер меньшего сечения, предварительно сваренный в короб. Металлическими столбами для ворот могут служить и профильные трубы сечением от 100 х 100 мм и стенкой не меньше 5 мм. Чем больше толщина стенки трубы, тем прочнее столб для ворот.
Второе, в конструкции металлических столбов для ворот должны в основании присутствовать нижние поперечины. В идеальном варианте, столб перед бетонировкой должен опираться на крестовину уголка 50, 63. А другая крестовина должна быть притоплена на 100 – 200 мм от поверхности земли. Длина поперечин крестовины варьируется от 500 мм до 1 метра.
Третье, это обязательная заливка бетоном основания металлических столбов для ворот. При этом столб для ворот нужно устанавливать на глубину не менее полутора метров, а где-то и больше. Все зависит от состава и свойств грунта, куда будут установлены столбы для ворот.
Четвертое, не пренебрегайте заливкой в столб для ворот, жидкого бетонного раствора. Это позволит сделать из пустотелой трубы прочный железобетонный столб с наружным армированием, достигая тем самым самой жесткой конструкции столба из возможных.
Пятое, надежнее, если фундамент столбов ворот, будет частью общего фундамента забора. И бетонирование при установке столбов для ворот будет осуществляться одновременно с общей заливкой фундамента.
Шестое, целесообразней предусмотреть дополнительное крепление между столбом ворот и забором в его верхней части. Если вы выкладываете забор из кирпича, то кирпичный столб внутри которого спрятан столб для ворот, должен быть дополнительно перевязан толстой металлической полосой с самим забором. Не редко случается так, что кирпичный столб от нагрузки ворот наклоняется и отрывается от кладки забора, образовывая трещину между ними.>
Седьмое, иногда, в сложных глинистых грунтах, невозможно установить столбы для ворот в строго вертикальном положении и надежно их зафиксировать. В этом случае, нужно использовать дополнительные верхние и нижние поперечины (перемычки) между столбами ворот. Нижняя перемычка выполняется из металла, аналогичному тому, что был использован на столбы для ворот, и закапывается в землю на глубину 300 – 400 мм. В дальнейшем, поверх нижней перемычки устраивается обычный проезд. Верхняя поперечина устанавливается по верхним окончаниям столбов ворот. Разумеется, что верхняя перемычка не добавит красоты и аккуратности воротам, но это вынужденная мера и очень эффективная. Верхнюю поперечину необходимо сделать съемной для обеспечения проезда при случае высокой машины или провоз крупногабаритного груза через ворота.
- Установка опорных столбов
- Изготовление створок ворот
- Установка створок на опорные столбы
Ворота, устанавливаемые при въезде на загородный участок, отличаются многообразием конструкций используемых материалов и имеют различную функциональность. К основным типам ворот для дач и загородных участков относятся подъемные, откатные и распашные. Наиболее распространены распашные ворота. По сравнению с другими видами они достаточно просты в монтаже и установка их менее затратна. Распашные ворота можно выполнить из различных материалов, оформить разнообразными декоративными элементами. Сборку и установку ворот такого типа можно провести самостоятельно.
На загородном участке возникает необходимость в установке ворот. Они повышают уровень Вашей безопасности и безусловно являются красивым дополнением к дому.
Его можно выполнить на бумаге или на экране компьютера. На этом этапе рассчитываются размеры сооружения, соответствующие условиям эксплуатации. Определяются конструктивные особенности устройства, перечень и количество необходимых материалов. На эскизе следует изобразить створки ворот в закрытом и открытом положениях для точного отображения размеров. Основные инструменты, которые понадобятся для работы: сварочный аппарат, болгарка, угольник, рулетка, строительный уровень.

