Противопожарные шторы для пожарной безопасности ТЦ. Область использования противопожарных штор
Противопожарные шторы для пожарной безопасности ТЦ. Область использования противопожарных штор
Эти специализированные устройства отделяют пути эвакуации, закрывают ворота и лифтовые проемы, а также могут закрепляться на окнах и в других технологических проемах высотой до 8 м и шириной до 40 м. С помощью таких конструкций, оснащенных многовальной системой, можно разделить большой объем внутри здания на несколько безопасных отсеков с улучшенной противопожарной защитой. Огнестойкие преграды не нарушают дизайн и не уменьшают полезный объем помещения. Их даже можно использовать в световых проемах и на фасадах, чтобы не позволить пламени перекинуться от одного близко расположенного здания к другому.
Предлагая своим клиентам купить противопожарные шторы в Санкт-Петербурге, мы используем самые современные технологии и материалы, а также изготавливаем конструкции с разными принципами действия и с различными пределами огнестойкости. Цена противопожарных штор зависит, в первую очередь, от их габаритов.





Почему стоит использовать противопожарные завесы?
- 1 Полотно в намотанном состоянии полностью скрыто и не нарушает эстетику проема.
- 2 Металлические элементы конструкции могут окрашиваться порошковыми красками в разных цветах по RAL.
- 3 Электропривод шторы комплектуется дополнительными автоматическими приводами для питания и управления, что позволяет конструкции автоматически опускаться при получении сигнала о начале пожара.
- 4 Можно выбрать любые размеры в рамках предельно допустимых габаритов: 8 м в длину и 40 – в ширину. Изготовление выполняется индивидуально с учетом требований заказчика.
- 5 Дополнительно можно укомплектовать кнопочной панелью для активации режима аварийного подъема (время подъема задается настройками и может составлять 30-120 сек). Для выхода людей можно также предусмотреть внутренние калитки.
- 6 Возможна комплектация приводом с аккумуляторами, чтобы штора срабатывала даже при отключении общего питания.
Противопожарная штора fireshield. Противопожарная штора EI 60

Артикул:
art5Цена:
от 6720 руб./кв.м.
Предел огнестойкости:
EI 60
Модель:
FireShield-EI60
Гарантия до 10 лет*
Доставка по Москве и России
Установка и монтаж
Категория:
Противопожарные шторы
Автоматические противопожарные шторы
Противопожарные шторы на окна
Противопожарные шторы с лазейкой
Рулонные противопожарные шторы
Противопожарные экраны
Назначение
Автоматические противопожарные шторы типа FireShield-EI60 (без орошения) предназначены для предотвращения распространения пожара из одной части здания, сооружения, строения в другую или между зданиями, сооружениями, строениями.
В соответствии с Федеральным законом №123-ФЗ огнезащитные шторы являются как заполнением противопожарных преград, так и непосредственно противопожарными преградами.
Конструктив
Основными конструктивными элементами противопожарных штор являются:
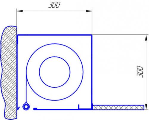
- Короб квадратного сечения (300х300).
- Намоточный вал.
- Полотно.
- Направляющие боковые шины.
- Электродвигатель, 220В.
- Блок управления с Н/З «сухим контактом».
Короб

Короб противопожарных штор состоит из гнутых, из оцинкованной листовой стали толщиной 1,5мм, панелей. Для построения длинных коробов штор, панели состыковываются друг с другом. Оба конца короба закрыты крышками, которые герметично замыкают контур. Боковые консоли служат также для восприятия крутящего момента мотора.
Полотно

- Полотно противопожарной шторы изготовлено из стекловолокна и армирована тонкой нержавеющей проволокой, наматывается на стальной вал, размещенный в корпусе из листовой стали.
- Внутренний слой полотна состоит из термоактивных композиционных материалов, которые при 160-180 градусах Цельсия расширяются до 50 мм и обеспечивают надежную защиту от теплового потока.
- На нижней кромке полотна закреплена отсекающая шина, которая держит полотно в развернутом состоянии, в верхнем положении утоплена в углублении корпуса.
Электродвигатели
Внутривальный трубчатый мотор, 220В.
Опускание и поднятие от 220В.

Блок управления

- Питание 220В.

Противопожарные шторы на окна. Особенности
Основными особенностями противопожарных штор являются:
Основными особенностями противопожарных штор являются:
- Высокая огнестойкость: противопожарные шторы изготавливаются из материалов, которые не воспламеняются при контакте с огнем.
- Увеличенный период горения: шторы могут поддерживать огонь на себе в течение продолжительного периода времени, что обеспечивает безопасность людей и имущества.
- Легкость в установке и демонтаже: противопожарные шторы имеют простую систему монтажа, что упрощает процесс установки и демонтажа.
- Длительный срок службы: противопожарные шторы изготавливаются из материалов, которые могут использоваться на протяжении многих лет без необходимости в замене.
- Сравнительно небольшой вес – полотно изготавливается из особой огнестойкой ткани, вес которой во много раз меньше веса полотна противопожарных ворот или дверей аналогичной площади. Преимущества невысокого веса полотна особенно очевидны, если представить, что речь идет об установке шторы площадью в 100 квадратных метров;
- Универсальность форм и размеров – огнестойкая ткань позволяет придавать конечной конструкции практически любую форму. Поэтому, противопожарные шторы могут иметь замкнутую форму. Они могут быть цилиндрического или квадратного вида и представляют собой своеобразный чехол, которым можно оградить нужную зону по периметру. Например, изолировать эскалаторы в торговом центре от основного помещения. Иначе такой вид конструкций называют «гармошкой»;
- Универсальность и простота монтажа – в силу того, что ткань противопожарных штор легкая, может быть любых размеров и форм, а также сравнительно легко монтируется, эти конструкции могут быть установлены практически на любую поверхность. Какие либо ограничения по размеру или высоте проема, весу, а также размеру или высоте самой конструкции – практически полностью отсутствуют;
- Цена на огнестойкие шторы также является значимым преимуществом – стоимость квадратного метра полотна в разы ниже, чем стоимость полотна противопожарных ворот аналогичного предела огнестойкости и колеблется в районе 8-10 тысяч рублей.