Гараж ворота. Изготовление и установка ворот для гаража своими руками
Гараж ворота. Изготовление и установка ворот для гаража своими руками
При строительстве гаража всегда на первом месте стоят его защитные функции, прочность материалов и механизмов.

Он должен быть устойчивым к взлому, чтобы не пустить непрошенных гостей.
Гаражные ворота — это ключевое звено в защите автомобиля от угона или порчи. Даже малейшая ошибка в монтаже со временем может сыграть с владельцем злую шутку. Поэтому к их установке нужно отнестись с максимальной ответственностью, внимательностью.
Пользователи часто ищут:
- Каркас ворот из профильной трубы
Варианты конструкций гаражных ворот
В зависимости от способа открывания, принципа работы створок ворота бывают нескольких типов.
Распашные
Традиционный для частного сектора формат ворот в гараже.

Распашная конструкция хороша следующим:
- Монтаж, стройматериалы и фурнитура в разы дешевле, чем у других видов.
- Их удобно утеплять, что позволяет сохранять тепло внутри помещения даже зимой.
- Такие ворота несложно сделать самому.
- Для установки не требуется много пространства.
- Возможен монтаж электрического двигателя для подключения автоматической системы управления воротами.
Делают одну или две створки. Открывать их можно как наружу, так и внутрь (на выбор хозяина).
Недостатком считается то, что зимой придется расчищать въезд от снега.
Подробную инструкцию по.
Откидные (подъемно-поворотные)
На вид это цельный щит из профилированного, железного или стального листа, который полностью закрывает дверной проем.

При открытии створка поднимается, делает поворот под прямым углом и заезжает под потолок гаража горизонтально.
Регулируется работа системой рычагов, электродвигателем и редуктором.
Пользователи отмечают достоинства таких ворот:
- надежные;
- не занимают свободного пространства;
- поддаются теплоизоляции;
- автоматизируются.
Но и минусов ус поворотным механизмом достаточно.
- Не подходят для частой эксплуатации.
- Уменьшают высоту проема в среднем от 20 до 30 см.
- Важна точность установки, поэтому рисковать делать их самому не стоит .
По этим причинам откидные ворота не столь популярны среди домовладельцев.
Откатные
Состоят из одной створки. Фиксируются к направляющему верхнему профилю. Работают за счет движения роликов по нижнему рельсу.
При открытии ворота механическим (вручную) путем или с помощью дистанционного управления (автоматика) откатываются по направлению вдоль стены.
Плюсы:
- Откатные ворота обладают повышенной взломостойкостью.
- Во время работы не занимают свободного места.
- Могут быть автоматизированы.
- Открытие не зависит от наличия снега на участке.
Минусы:
- Существенный недостаток в том, что стена, по которой смещается створка, должна быть больше по ширине, чем сама створка.
- При интенсивном использовании отмечается быстрый износ набора роликов.
Раскладные (подъемно-секционные)
Насчитывают несколько горизонтальных секций, соединенных между собой петлями. Подъемный механизм расположен на потолке помещения.
Материал секций – сэндвич-панели.
При открытии створка поднимается вверх по направляющим профилям, расположенным по бокам, и фиксируется в горизонтальном положении на потолке.

Простой конструкцию назвать сложно. ЭТО не самый лучший вариант самодельных ворот. Монтаж рекомендуется заказывать у специалистов.
Из плюсов таких дверей:
- автоматизированная система управления;
- аккуратный внешний вид;
- шумоизоляция;
- теплоизоляция;
- экономия свободного пространства;
Из минусов:
- высокая цена материалов, установки;
- плохая устойчивость к взлому.
Секционные ворота нуждаются в постоянном уходе, что включает смазку направляющих профилей, петель. Периодически необходимо проверять исправность автоматики.
Гаражные ворота с калиткой. Почему в гаражных воротах калитка, а не дверь, и зачем она?
Есть мнение, что дверь это всегда в доме, или там сарае, а вот калитка в заборе, или в воротах. Впрочем, мы не про это. Мы обсудим особенности конструкции таких гаражных ворот, на примере нескольких вариантов. Стандартные ворота, рассматривать не будем, как правило, в них особых недочётов нет. Наличие дополнительного проёма в створке это часть металлической обшивки рамы, целостность которой нарушена вырезом. Именно про это забывают чаще всего, когда делают ворота сами. Отсюда главное отличие – рама створки с калиткой должна быть дополнительно усилена как горизонтальной, так и вертикальной балками. Можно взять стандартный чертёж распашных ворот, и самостоятельно добавить недостающие балки, если двери в воротах не предусмотрены. Наиболее правильно, если балки по длине совпадают с высотой и шириной ворот. Второй важный момент – усиление балок как со стороны петель для калитки, так и со стороны расположения замка. При этом учитываем, что надёжность запирания калитки должна соответствовать уровню надежности запирания гаражных ворот, иначе она будет легко открыта. Преимущества наличия у ворот входа, не требующего открывания створки понятны. Не всегда нужно открывать ворота, иногда просто что-то забрать. Открыть калитку проще (и быстрее кстати), чем створку. Если калитку хорошо запирать, то, выходя после закрытия створок можно блокировать ворота изнутри дополнительными запорами. Кстати чертёж такого рода засова гуляет по Интернету, и это очень надёжное приспособление. К недостаткам отнесём менее значительное сопротивление проникновению, (поэтому отнеситесь к вопросу безопасности очень серьезно), появление дополнительных механизмов требующих ухода, необходимость в гаражных условиях делать смотровое оконце. Это тоже элемент безопасности, всегда стоит посмотреть на улицу, прежде чем выходить, однако им часто пренебрегают. Во всем остальном ворота с калиткой не отличаются от более простых вариантов, разве что чертёж нужен обязательно. С допусками, по всем правилам – простым эскизом ограничиваться не стоит. Мы просто перечислим несколько вариантов, возможно, Вас удивит, что в таком простом деле такое разнообразие. Если есть готовый чертёж (для гаражных ворот их много), не стоит сразу вносить изменения – посмотрите, можно ли расположить калитку внутри предложенной конструкции. Для этого уточним – где лучше расположить её в створке? Варианта на самом деле три: Экзотические виды вроде двустворчатых (ворота внутри ворот) рассматривать не будем. Направление открытия – наружу, или внутрь. С одной стороны считается, что открывание наружу увеличивает прочность (тянуть сложнее, чем толкать), с другой стороны, если внутренний размер гаража позволяет, почему бы нет? Правильный подход позволяет даже замаскировать, куда именно она открывается, видели мы чертёж, из которого видно, что даже понять на какой стороне петли очень сложно. Организация надёжного запирания калитки, позволяет широкое поле для деятельности. Приходилось встречать в гаражных кооперативах такие двери в воротах, по которым непонятно не только, как и куда они открываются, но и чем, ни замочных скважин, ничего снаружи нет. Вернее есть, но они ничего не открывают. Никакой фантастики, это автоматические замки с дистанционным управлением, типа центрального замка машины с брелком, работающие от аккумулятора. Главное следить за зарядкой, чтобы дверь отпиралась. На этих примерах хотелось показать, что на обычной калитке, петли которой приварены снаружи, смонтированной в центральной части ворот, запертой висячим замком, свет клином не сошёлся. Поэтому, прежде чем приступить к изготовлению ворот с калиткой, обдумайте все варианты, простор для творчества широкий. В заключение отметим ещё раз, главное при обустройстве калитки учесть некоторое нарушение прочности и жёсткости створки, особое внимание уделить надёжности запирания, предусмотреть запасные способы вскрытия. При обдумывании конструкции предусмотреть маскировку направления открытия, мест нахождения петель, замков, секретов. Увеличить прочность самой калитки (грубая ошибка – простой четырёхугольник, обшитый металлом), рама должна иметь несколько балок. После этого можно делать, а, закончив работу, быть спокойным за то, что никто не откроет ворота, вскрыв калитку так же просто, как это делаете Вы, подойдя к гаражу.Основное отличие рамы ворот, плюсы и минусы калитки

Несколько примеров, которые могут помочь выбрать свой вариант
Пример первый
Пример второй
Пример третий
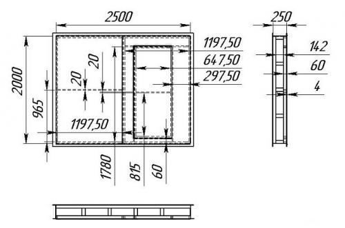
Гаражные ворота своими руками: пошаговая инструкция изготовления + монтаж
Гараж – строение, которому уделяется особое внимание, особенно в плане взломостойкости. А такой элемент, как ворота, должен обладать удвоенной прочностью и надежностью, и конечно, привлекательным внешним видом. Традиционно гаражные ворота – это распашная конструкция из двух створок, навешенные на коробку. Изготовить их своими руками – не проблема, если владеть навыками работы с несложным слесарным инструментом и сварочным аппаратом. Об этом и пойдет речь в статье: о вариантах распашных ворот, о технологии изготовления и нюансах монтажного процесса. Кроме того что распашные ворота для гаража являются традиционными и очень надежными, есть у них и другие преимущества. Единственный большой недостаток – требуется свободное пространство, чтобы открыть створки конструкции. Это иногда проблематично зимой, когда снег наваливает сугробы перед гаражом. Поэтому приходится махать лопатой. Минус распашных ворот – перед ними приходиться очищать от снега площадкуВиды гаражных ворот
Кроме распашных ворот в гаражах устанавливают и другие разновидности.
Складные
Это секционный тип ворот, элементы которого устанавливаются вертикально и соединяются между собой шарнирным способом. Крайние секции крепятся, как и распашные, к коробу петлями. Дополнительное крепление – по верхней или нижней направляющей. Изготавливают секции из разных материалов, чаще из алюминиевых сплавов или дерева.
Плюсы конструкции:
- необычный внешний вид,
- удобство открытия и закрытия,
- не занимают в открытом состоянии много места,
- секции по отдельности можно менять, ремонтировать,
- невысокая цена.
Минусы: быстрый износ и низкие защитные функции.
Складные ворота
Подъемно-поворотные
Чисто конструктивно это цельный щит, который собой закрывает весь въездной проем. Для открытия ворота поднимаются и поворачиваются на 90° так, чтобы они оказались вверху в горизонтальной плоскости. Для этого используется система рычагов, редуктор и электродвигатель.
Плюсы модели:
- высокая надежность,
- в открытом виде ворота не занимают никакого места,
- поддаются утеплению,
- поддаются автоматизации.
Минусы:
- требуется высокая точность установки,
- ворота остаются в проеме, уменьшая его высоту на 20-30 см,
- не рекомендуется использовать их интенсивно.
Подъемно-поворотные ворота
Подъемно-секционные
Это конструкция из нескольких секций, расположенных горизонтально и соединенных между собой специальными петлями. С помощью подъемного механизма, находящегося на потолке, ворота поднимаются по направляющим профилям и располагаются горизонтально вдоль потолка. Секции в основном изготавливают из сэндвич-панелей.
Плюсы модели:
- универсальность в плане размеров проема,
- экономия свободного места при открытии,
- неплохая устойчивость к деформациям и механическим нагрузкам,
- полная автоматизация,
- презентабельный внешний вид,
- высокие тепло- и звукоизоляционные качества,
- долгосрочная эксплуатация.
Минусы:
- высокая цена,
- требуется постоянное обслуживание: смазка петель и направляющих, проверка электрики и автоматики,
- низкая взломоустойчивость.
Подъемно-секционные ворота
Рулонные
Свое название эти гаражные ворота получили по способу открытия. Чисто конструктивно – это несколько полос (ламелей), собранных в одно полотно, которое закручивается в рулон. Поэтому в состав ворот входят кроме полотна две направляющие, удерживающие конструкцию в проеме, вал, на который ламели наматываются, и электропривод.
Преимущества:
- компактность,
- приемлемая цена,
- простота монтажа,
- долгосрочная служба,
- презентабельный внешний вид,
- возможность автоматизации.
Минусы:
- практически нулевая взломостойкость,
- нет возможности провести утепление, потому что между ламелями всегда остаются зазоры,
- плохо работают при низких температурах.
Рулонные ворота
Откатные
В этой конструкции одна створка, которая держится на направляющем профиле, расположенном сверху, и упирается снизу в рельс. Открывается устройство откатыванием в сторону вдоль стены.
К плюсам можно отнести:
- функциональность е зависит от сугробов,
- не занимает места при открытии,
- высокая взломостойкость,
- возможность провести автоматизацию.
Минусы:
- быстрый износ роликов,
- ширина стены, вдоль которой смещаются ворота, должна быть больше ширины створки.