Подготовка к монтажу секционных ворот. Как установить секционные ворота в гараже своими руками, подготовка проема, монтаж и регулировка
- Подготовка к монтажу секционных ворот. Как установить секционные ворота в гараже своими руками, подготовка проема, монтаж и регулировка
- Монтаж автоматики для секционных ворот своими руками. Ресурс на 10 лет
- Каркас для секционных ворот. Реализация
- Подготовка проема для установки секционных ворот. Проем имеет значение
- Установка секционных ворот алютех своими руками. Новая видеоинструкция: монтаж гаражных ворот Prestige с пружинами растяжения
- Обрамление гаражных ворот. Замеры и создание чертежа
- Минимальная притолока для секционных ворот. Конструкция проема
Подготовка к монтажу секционных ворот. Как установить секционные ворота в гараже своими руками, подготовка проема, монтаж и регулировка
Ворота секционно-подъемного типа часто устанавливают в гаражах для хранения автомобилей и в других технических зданиях. Такие конструкции очень удобны, так как они открываются вверх и не занимают пространство при открытии. Также они обладают теплоизоляционными свойствами, которые помогают сохранить тепло внутри помещения. Прежде чем заняться установкой секционных ворот, надо разобраться с основными нюансами данного процесса.
Расчет размеров
Чтобы правильно установить ворота, придется заранее рассчитать все необходимые размеры. При этом измеряются следующие параметры:
Также определенные расчеты проводятся перед установкой привода конструкции. Прежде чем поставить его, определяют глубину помещения, которая должна находиться в диапазоне 3-4 метров. Если здание слишком маленькое, придется устанавливать более компактный привод осевого типа.
Перечень необходимых инструментов
Для установки ворот секционного типа требуются не только умения с навыками, но и строительные инструменты. Монтажные работы проводятся при помощи специальных инструментов, к которым относят:
Подготавливаем дверной проем
После предварительной подготовки рабочих инструментов и расчета размеров подготавливают дверной проем, на который будут устанавливать секционные ворота. Людям, которые ранее не работали с проемами, лучше доверить подготовку опытным строителям, которые смогут сделать все качественно.
Сначала придется покрыть все стены тонким штукатурным слоем, который защитит стенки от влаги и появления плесени. Строители советуют заниматься оштукатуриванием перед монтажом, так как после установки направляющих поверхность стен станет недоступной.
Затем уровнем проверяют ровность стены в проеме. Если она будет неровной, установить ворота не получится, и поэтому лучше заранее все выровнять. Даже незначительные погрешность в разы усложняют выполнение монтажных работ. Опытные строители могут установить конструкцию и на искривленной поверхности, однако из-за неровностей плотность крепежей будет низкой.
В конце подготовки дверного проема притолока и стенки отделываются защитными уголками из металла.
Установка торсионного механизма и направляющих
На начальном этапе монтажных работ должны установиться направляющие с торсионным механизмом.
Монтаж вертикальных направляющих
Крепление начинается с монтажа и последующей подрезки вставок для уплотнения конструкции. Специалисты советуют пользоваться вставками, которые продавались вместе с воротами, так как их не придется подрезать.
Когда уплотнительные материалы будут установлены, занимаются прикреплением нащельника с опорными стойками. При установке направляющих следят за тем, как расположен профиль. Его перекос по вертикали не должен превышать 1-2 миллиметра.
Монтаж горизонтальных направляющих
При выполнении монтажа придерживаются такой последовательности действий:
- Прикрепление направляющих горизонтального типа к стойкам опор.
- Соединение профилей к поверхности потолка при помощи подвеса.
- Передний профиль удаляют от проема на 850 миллиметров, а задний — на 400 миллиметров.
- Элементы, выступающие за пределы конструкции, осторожно подрезаются болгаркой.
Монтаж торсионного механизма
Монтажные работы должны выполняться с соблюдением инструкции, состоящей из нескольких этапов:
- Монтаж механизма в опорные кронштейны.
- Прикрепление к валу подшипников, состоящих из двух пружин.
- Просверливание в барабане отверстия, в которое будет пропускаться трос.
Монтаж автоматики для секционных ворот своими руками. Ресурс на 10 лет
Удачным примером таких изделий может послужить автоматика для секционных ворот Алютех: в модельном ряду ProPlus представлены 10 модификаций механизмов, способных поднять-опустить секционное полотно 100 тысяч раз. При этом сами секции могут быть 7 м длинной и 8 шириной, весить полтонны, но благодаря мощному торсионному механизму Алютех для их перемещения достаточно приложить усилие 26 кг.

Автоматика для гаражных секционных ворот в безотказном режиме способна совершить 10–15 тысяч подъемно-возвратных рабочих движений. При двух- или четырехкратном открывании в день полный период ее использования будет равняться, минимум, семи годам, максимум – двадцати. Для передачи момента вращения на подвижные секции небольшого размера – порядка 10 м2, служит цепной или ременной механизм. Гравитационное усилие в нем часто нейтрализуют с помощью растягивающихся пружин. Подобные доработки значительно удешевляют конструкцию и упрощают ее обслуживание.
На рынке представлена автоматика для секционных ворот от множества компаний в разных вариантах. Корпорация Came предлагает две модели для гаражных конструкций и семь – для производственных объектов. Приводы от Nice представлены четырьмя наименованиями, способными перемещать секции площадью до 10,5 м и пятью – для управления тяжелыми воротами, высота которых достигает 5,5 м.
Установка автоматики не составляет труда: порядок действий описан в руководствах по установке, которыми комплектуются изделия. Работа требует аккуратности и точности. Алгоритм операций можно проследить на примере монтажа привода подъемно-секционных полотен Дорхан.

Каркас для секционных ворот. Реализация
Как и всегда, рабочий процесс начинается с составления чертежа секционных ворот. Своими руками по нему все гораздо проще потом будет заготавливать, потом устанавливать и соединять. С учетом моих вычислений список необходимых материалов у меня получился таким:
| Часть конструкции | Составные материалы |
| Опорный каркас | Для формирования рельсового пути я решил взять металлический профиль с прямоугольным сечением 30*50 мм. В одной из широких стенок нужно будет прорезать болгаркой полосу вдоль центральной оси под штыри, к которым закреплены колесики (размер полосы – 15 мм). |
| Две заготовки из того же профиля понадобятся для установки распорок в верхней и нижней части каркаса. Низ дополнительно пойдет под установку антивандального замка. | |
| Каркас для секций | Для основной части я выбрал профильную трубу с квадратным сечение 15*15 мм. Это периметр и две диагональные перемычки для усиления. Дополнительно скреплю углы стальными пластинками толщиной 2 мм. Конструкция в результате получится сварной. |
| Обшивка секций | Чтобы это было легко и практично я остановился на стеновом профлисте толщиной 0,45 мм. |
| Утепление ворот в моем случае не обязательно, так как в зимний период я гаражом не пользуюсь. Однако на будущее я все же решил обшить каркас с двух сторон и запенить пространство между листами строительной пенополиуретановой пеной в баллончиках. В итоге получится что-то вроде сэндвич-панелей для секционных ворот своими руками. | |
| Колесики | Нашел я в интернете интересный вариант из подшипников и полипропиленовой трубы. Но первых у меня не нашлось свободных, поэтому было решено приобрести сами колеса с жестким пластиковым ободком – 4 шт. |
| Противовес | Сам груз можно сделать из любого тяжелого подручного материала. Мне показалось более простым решением обычное плоское ведро и бетон. Так при необходимости вес противовеса можно корректировать. |
| Металлических тросов для противовеса будет у меня 2, чтобы секции с обеих сторон равномерно поднимались. Так колесики внизу не будут заклинивать. | |
| Чтобы система исправно работала долгое время понадобятся еще 3 колеса с внутренней выемкой под тросы и монтажный короб для них. Последний будет собран из листового металла с помощью сварочного аппарата. |
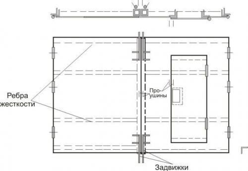
Подготовка проема для установки секционных ворот. Проем имеет значение
Первым этапом при заказе секционных ворот станет подготовка проема для них, только зная точные мерки, можно быть уверенным, что ворота подойдут лучшим образом и установятся без проблем. Если же будут допущены какие-то ошибки или неточности, то ворота не будут функционировать должным образом, и могут выйти из строя гораздо быстрее заявленного срока.
Размеры проема под секционные ворота включают такие замеры:
- Высота проема;
- Высота притолоки (перемычка над проемом);
- Ширина проема;
- Ширина левого и правого бокового пространства.
При подготовке проема для секционных ворот важно учитывать все типы замеров
Важно, чтобы высота перемычки составляла минимум 21-25 см – это значение, на которое рассчитан стандартный тип установки. Больше можно, а вот если меньше, то придется использовать низкую установку.
Специально под малую высоту перемычки производятся секционные ворота, собранные на пружинах растяжения. Они предусматривают установку при минимальной высоте в 10 сантиметров. Стоимость изготовления ворот с нестандартной высотой установки всегда дороже.
Требования к ширине бокового пространства немного проще – не менее 12 см, а лучше – 15. Выполнив измерения стены, в которую будет выполняться установка, и убедившись, что они соответствуют требованиям, можно приступать к подготовке проема для секционных ворот.
Для установки дополнительного оборудования: цепных редукторов или осевых приводов, потребуется боковое расстояние от 24 см.
Общие требования к помещению
Хорошо, если стены кирпичные, из бетонных панелей или массива дерева – они ровные и лежат в одной плоскости, а это обязательное требование к проему под секционные ворота. Крепления в такой стене будет держаться очень надежно. Для остальных материалов потребуется укрепление металлическими уголками.
Случается, что ремонт в помещении еще не закончен, а ворота уже заказаны. Если полы еще не залиты, то лучше не спешить. Их точная высота поможет заказать ворота максимально точного размера, в противном случае возникнут проблемы с монтажом направляющих. Как вариант – можно добавить страховочную погрешность около 1 см.
Несущую функцию выполняет потолок и поперечная перемычка над проемом, поэтому легкая конструкция потолка не подойдет для секционных ворот. Его глубина должна быть больше высоты ворот:
- 0.5 м для механических ворот;
- 1 м для ворот с электроприводом.
Для секционных ворот с электроприводами обязательно предусматривается розетка для подключения к сети питания. Кабель должен отвечать требованиям производителя ворот, а разводку нужно доверять только специалисту.
Потолки из литых бетонных плит могут иметь неровности. В таком случае, высотой помещения считается минимальное значение расстояния от потолка до пола. По такому же принципу рассчитывают размеры проема под секционные ворота, если на потолке есть коммуникации, которые невозможно перенести, балки перекрытия или скосы.
Если притолока подходит под установку секционных ворот, но неравномерна по высоте, то ее выравнивают доступным способом: срезка болгаркой, закладка брусом, штукатурка.
Обобщив требования, можно вывести составляющие подготовки, чтобы установка была быстрой и качественной:
- Соблюдение требований по высоте и ширине;
- Прочные и ровные стены из кирпича или бетона;
- Предварительная корректировка размеров проема с отделочными работами;
- Заказ с учетом точной высоты пола.
Установка секционных ворот алютех своими руками. Новая видеоинструкция: монтаж гаражных ворот Prestige с пружинами растяжения
Предлагая качественные и надежные секционные ворота Prestige , Группа компаний «АЛЮТЕХ» стремится максимально упростить процесс их установки, сделать его более понятным для специалистов монтажных бригад и конечных потребителей.
Именно с этой целью разрабатываются видеоинструкции, описывающие особенности различных типов монтажа защитных конструкций. Так, вслед за роликом, посвященным стандартному монтажу секционных ворот, был выпущен еще один — в нем отражены ключевые операции, позволяющие установить без ошибок ворота с пружинами растяжения.
- Сборка и крепление вертикальных и горизонтальных направляющих.
- Установка нижней секции ворот Prestige.
- Монтаж полотна ворот без калитки.
- Установка элементов управления воротами и пружин растяжения, их регулировка.
- Установка фиксатора, ограничителя хода полотна (для автоматических ворот), блока ручного подъема.
Актуальные публикации
В видеотеке Группы компаний «АЛЮТЕХ» пополнение: в копилку обучающих роликов добавилась видеоинструкция «Низкий монтаж гаражных ворот Prestige». 10-минутное видео, описывающее основные этапы установки ворот новой премиальной серии, будет полезно в первую очередь специалистам монтажных бригад.
Группа компаний «АЛЮТЕХ» презентует новую пошаговую видеоинструкцию по стандартному монтажу секционных ворот серии Prestige. 9-минутный видеоролик представляет собой наглядное пособие, позволяющее выполнить все необходимые операции оперативно и без риска совершить ошибку.
Обрамление гаражных ворот. Замеры и создание чертежа
Перед составлением чертежа необходимо определить оптимальные размеры гаражных ворот. Основные параметры выбирают с учетом следующих требований:
- Минимальная ширина проема отталкивается от размеров авто и превышает их на 0,3 м с каждой стороны. Большая величина способствует удобному въезду, меньшая создает риск порчи машины.
- Ширина проема ограничивается габаритами гаража. От ворот до стены, перпендикулярной въезду, должен оставаться промежуток не менее 0,8 м.
- Для легкового авто достаточно высоты гаражных ворот в пределах 2,0-2,2 м. Владельцам микроавтобусов стоит позаботиться о более высоком проеме, порядка 2,5 м.
Приступая к созданию чертежа, учитывайте, что створки гаражных ворот меньше внутренних габаритов рамы. Небольшой зазор способствует удобному открытию конструкции.
Чертеж можно создать самостоятельно с нуля или воспользоваться готовой схемой, изменив отдельные параметры в соответствии с собственными замерами.
Совет! Для работы удобно иметь несколько эскизов, описывающих отдельные элементы гаражных ворот.
Создание чертежа начинают с прорисовки рамы. Она может состоять из двух одинаковых элементов – внешней и внутренней части, которые соединены между собой перемычками. Еще один вариант представлен на фото, когда одиночная рама оснащена специальными крепежами для монтажа.

Затем приступают к прорисовке каркаса для створок. Данные чертежа учитывают все нюансы, от места расположения калитки и балок усиления, до точки монтажа петель, замков и ручек. Пример грамотного чертежа приведен ниже:
Не забудьте о зазорах между каркасом створок и рамой гаражных ворот, эти миллиметры играют очень важную роль в процессе эксплуатации металлической конструкции.
На основе имеющегося чертежа делают расчет потребности в материалах. Наиболее подходящим считается следующий набор:
- рама гаражных ворот формируется из стального уголка толщиной 65 мм;
- каркас для створок обладает меньшей мощностью, для него подойдет металлический уголок сечением 50 мм или профильная труба аналогичных параметров;
- обшивать конструкцию гаражных ворот с калиткой принято листовой сталью, минимальная толщина начинается с 2 мм.
Чем толще берется материал, тем большей прочностью характеризуются гаражные ворота, но и вес их растет пропорционально. Говорить о надежной конструкции можно, когда толщина стали превышает 3 мм. Если гараж не предназначен для стоянки дорогого авто, а служит лишь для хозяйственных целей, в качестве обшивки ворот можно использовать легкий профнастил.
Минимальная притолока для секционных ворот. Конструкция проема
Скорее всего, при строительстве вы не учитывали технические параметры для установки ворот и работаете с имеющимся проемом. Если же вы строили гараж непосредственно под подъемно-секционный механизм, то переходите к следующему пункту.
При выезде на объект замерщик сначала измеряет перемычку и пристенок. Исходя из этого, он определяет, какой вид монтажа вам подойдет.

Перемычка - расстояние от верхнего края проема до потолка. Она крайне важна при монтаже ворот, так как ее размер определяет возможность установки того или иного подъемного механизма. Минимальная высота притолоки для гаражных секционных ворот составляет 100 мм при ручном управлении и 125 мм при автоматическом.
Минимальная высота притолоки для ворот с врезной калиткой - 150 мм.
Боковое расстояние от края проема до стены называется заплечником. В большинстве случаев необходимо иметь запас в 140 мм.
Часто заказчики забывают про важную величину измерения - глубину вхождения ворот. При планировании этот момент ускользает от строителей, но при недостаточной глубине гаража и большой высоте проема ворота могут упереться в заднюю стену помещения. Для комфортного использования ворот нужно, чтобы глубина гаража была больше высоты проема не менее чем на 400 мм.
Если планируете автоматизировать ворота, не забывайте, что электроприводу тоже требуется место.
Подводя итог, повторим, что размеры гаражного проема должны составлять:
- высота перемычки - от 100 мм при ручном управлении и от 125 мм при автоматическом;
- высота перемычки для ворот со встроенной калиткой – от 150 мм;
- ширина заплечника - от 100 мм;
- глубина гаража должна быть больше высоты ворот не менее чем на 400 мм.
Если запутались с измерениями, позвоните в нашу компанию. Мы пришлем опытного сотрудника, который поможет разобраться с замерами и проконсультирует по поводу установки и монтажа.