Как сварить каркас ворот из профтрубы своими руками. Как сварить ворота на забор из профильной трубы своими руками
- Как сварить каркас ворот из профтрубы своими руками. Как сварить ворота на забор из профильной трубы своими руками
- Какую профильную трубу использовать для ворот. Подготовительные работы
- Сварить ворота своими руками. Делаем каркас
- Как сварить ворота, чтобы не повело. Повело при сварке —, что делать
- Как сварить ворота из профильной трубы. Сварка ворот
- Как сварить ворота из уголка. Описание и классификация распашных ворот
- Ворота из круглой трубы своими руками. Устройство
Как сварить каркас ворот из профтрубы своими руками. Как сварить ворота на забор из профильной трубы своими руками
Технология изготовления конструкции достаточно простая. Чтобы сварить ворота из профильных труб, нужно подобрать вид изделия, оптимально подходящий под конструкцию створок.
Установка запоров
Выбор труб
Профтрубу под ворота предпочтительней выбрать квадратного либо прямоугольного сечения. Трубы такой формы легче монтируются и транспортируются на участок. Наиболее прочные профильные трубы производятся из следующих видов стали:
- нержавейки;
- оцинковки;
- углеродистой.
На фото представлены металлические створки.
Кованые элементы
Цена трубных заготовок зависит от материала, из которого они изготовлены. Наиболее бюджетным вариантом являются изделия из углеродистой стали. Впрочем, при выборе труб из углеродного сплава учитывается низкая прочность и короткий эксплуатационный срок такой продукции.
Сварные холоднокатаные и оцинкованные профили – оптимальный вариант под створки, но их стоимость выше. Трубы равнозначного диаметра могут вдвое отличаться по толщине стенок.
Под створки используются трубы квадратного либо прямоугольного сечения. Сделать работу правильно и своими руками возможно при наличии сварочного аппарата и вспомогательных инструментов.
На фото изображена конструкция после установки.
После монтажа
Подготовка участка
На стадии подготовки учитываются габариты въезжающего в проем ворот автотранспорта. Определяется общая площадь, занимаемая распашными или откатными створками. Стандартные размеры ворот составляют:
- по общей ширине – 2,5–3,5 м;
- по высоте (ворот и калитки) – 1м 50 см;
- по ширине калитки – 0,75–1 м.
На фото изображены ворота на даче.
Металлический штакетник на профтрубе
С учетом калитки общая ширина участка под ворота должна составлять 3,5 или 4,5 м. Конструкция, монтируемая на ранее установленное заграждение, ставится по соответствующей изгороди высоте. Иногда допустима меньшая высота створок, но не менее 40 сантиметров.
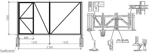
Чертежи и расчет
Перед проведением работ на бумагу наносится чертеж. Изображают прямоугольный проем с прямоугольником меньшего размера внутри, обозначающим раму из профиля с указанием длины и ширины будущей конструкции. Также проводится расчет финансовых затрат на приобретение необходимых материалов и набора инструментов для работы.
Схема установки с размерами
Ворота из профтрубы собираются из различных элементов, отличающихся сечением. Диаметр стальной трубы под несущие створки опоры составляет 80х80 или 100х100 мм. Каркас ворот из профтрубы выполняется из изделий 50х50 мм.
Перемычки и продольные полосы сваривают из отрезков профиля 20–40 мм.
Кроме основных величин, на рисунке чертежа указывают размеры зазоров между створками, грунтом и опорами. На сторонах с петлями приблизительная ширина зазора составляет 5 мм. Учитывая возможное провисание ворот и их подклинивание в будущем, на стороне с замками оставляют просвет в 10 мм.
Эскиз металлического каркаса
На участке, не подверженном снегу и мусору, внизу створок учитывается просвет, но не меньше 20 мм. При учете негативного воздействия внешних факторов высота зазора предусматривается в 50–150 мм (решается индивидуально).
Подготовка инвентаря
Работа выполняется посредством следующих инструментов:
- оборудования для сварки и электродов;
- угловой шлифовальной машины (болгарки) с абразивными и отрезными кругами;
- измерительных приборов: рулетки, строительного уровня, отвеса, угольника;
- винтоверта с самонарезающими шурупами по металлу;
Чертеж каркаса из металла
Используемые материалы:
- Профильные трубы. Из профиля изготавливается каркас. Для сваривания рамы и перемычек используют трубы сечением 50х50, 20х40 или 20х20 мм.
Какую профильную трубу использовать для ворот. Подготовительные работы
Для правильного расчета, составления проекта, чертежей и смет на материалы и монтажные работы по производству и установке ворот, следует тщательно продумать все нюансы:
- Выбрать конструкцию, определить надобность установки автоматики. Ворота можно сделать цельными, на несколько створок, откатными.
- Продумать обшивку и цветовой тон каркаса.
- Выполнить необходимые замеры. Во двор должен беспрепятственно въехать не только личный автомобиль владельца, но и машины различных коммунальных, медицинских, пожарных служб. Кроме этого, учесть нужно площадь, необходимую воротам для распахивания.
- Разработать подробный чертеж с указанием размера и месторасположения калитки, дополнительными петлями, элементами усиления, подключение автоматических устройств.
- Согласно выполненному эскизу, определяется метраж трубы и необходимое количество обшивки, закупается материал.

Рекомендации по выбору материала
При выборе профильной трубы в качестве материала для выполнения ворот встает вопрос, какой сорт, вид и размер трубы будет оптимальным для конструкции.
Чаще всего для производства въездных ворот применяют квадратные или круглые трубы, овальная конфигурация используется крайне редко.

Ценовая политика определяется тем, из какого материала изготовлена трубная продукция. Так углекислая сталь – это более бюджетный вариант, но надо отдавать себе отчет, что выбирая трубы из этого материала, нельзя рассчитывать на то, что конструкция ворот будет прочной и прослужит долго. Оцинкованные трубы стоят дороже, но устойчивы к коррозии, поэтому имеют больший срок службы.
Для ворот оптимальным будет приобретение сварных холоднокатаных профилей. Толщина стенки труб при одинаковом диаметре может различаться вдвое.
Обратите внимание! Для изготовления каркаса забора, наилучшей и обеспечивающей прочность будет толщина 1,5-2 мм. Большая, сделает изделия дороже и тяжелее, что нецелесообразно в данном случае.
Как сделать необходимые расчеты для конструкции?
Для изготовления опор обычно используют стальную трубу, диаметром 100 х 100 мм, а устройство каркаса выполняют трубами 50 х 50 мм. Для сваривания перемычек и продольных полос, нужно подготовить куски труб 40 х 20 мм.

Обратите внимание! Распашные ворота сделать легче, поэтому больше подойдет для новичков в строительном деле.
Согласно разработанному плану, необходимо закупить материал, кроме этого понадобятся мелкие детали, фурнитура и вещества для обработки поверхности: грунтовка, краска и кисточка для покрытия всех деталей, цемент и песок для приготовления раствора, сварочный аппарат с электродами в комплекте, болгарка, молоток, уровень, строительный уголок, петли, замок, саморезы.
После покупки всех необходимых материалов и подготовки строительных инструментов, можно приступать к подготовке деталей и монтажу.
Сварить ворота своими руками. Делаем каркас
Раму желательно делать из того же материала, что и опоры. Чаще всего стойки и каркас изготавливаются из металлических изделий. Мы собираем раму из профилированной трубы.
Для сборки каркаса находим горизонтальную площадку, способную свободно вместить хотя бы одну створку.
Процесс предельно простой: нам нужно сварить прямоугольную раму из предварительно нарезанного на куски необходимых размеров трубы (профиля). Углы должны быть строго прямыми. Убеждаемся в этом с помощью угольника.
Разметка и сварка углов каркаса
Разметка и сварка углов каркаса
Разметка и сварка углов каркаса
Сварив каркас, укрепляем его в углах при помощи стальных уголков. Для придания раме дополнительной жесткости, разделяем ее по высоте на 3 примерно одинаковые части и привариваем по меткам параллельные горизонтальные перемычки. Места соединения перемычек с рамой также укрепляем при помощи стальных уголков. В этих же точках привариваем воротные петли.
Когда рама готова, по периметру привариваем стальную полосу для крепления профнастила
Полезный совет! Существует и другой популярный вариант упрочнения каркаса. Для этого в центре рамы к ее вертикальным сторонам приваривается горизонтальная перемычка, разделяющая каркас на 2 одинаковых прямоугольника. После этого углы каждого из таких прямоугольников соединяются диагональными перемычками. Выбирайте любой из двух рассмотренных способов упрочнения, они оба хороши.
Каркас для калитки собирается аналогичным образом. Если же вы хотите сделать калитку прямо в воротной створке, собирайте раму в несколько ином порядке. Для этого приварите к прямоугольной раме выбранной створки поперечные и продольные металлические перемычки, формируя тем самым раму калитки. Средние габариты калитки – 80х180 см. По возможности придерживайтесь именно этих значений. Места крепления петель на створке смещаем к верхней и нижней кромкам рамы.
Как сварить ворота, чтобы не повело. Повело при сварке —, что делать
Ведёт профильную трубу при сварке — что делать?
Профильная труба является одним из самых популярных видов металлопроката на сегодняшний день. Используя профильную трубу и сварку можно собрать множество полезных и легких конструкций из металла.
Единственная проблема, с которой приходится сталкиваться сварщикам в процессе работы, это температурные деформации при сварке. Толщина стен профильной трубы незначительная, что становится причиной возникновения деформаций и прожогов.
Нередко конструкцию из профильной трубы ведёт, а в самом металле образуются прожоги. Чтобы этого не случилось нужно понимать, как варить тонкие профильные трубы, толщина стен которых не более 2 мм. Какие правила существуют и как не допустить температурной деформации.
Что делать, если при сварке ведёт профильную трубу
Конструкции из профильной трубы чаще всего ведёт по швам, они уходят внутрь вследствие деформаций. Происходит это по причине неправильной технологии сваривания, либо из-за спешки и ошибок. Поэтому главное правило при сварке профильных труб — абсолютно никакой спешки.

Нагреваясь, металл ведёт в сторону, но если не спешить и давать время на остывание, как правило, он возвращается назад. Также при сварке тонкостенных профильных труб рекомендуется придерживаться следующего:
- Осуществлять сварку на малых токах (10-60 А);
- Не использовать толстые электроды. Максимальный диаметр электрода в данном случае должен быть не более 2 мм;
- Точечно прихватывать конструкцию и лишь затем, осуществлять сварку в один проход.

При сварке профильной трубы следует выдерживать короткую дугу. Сильный разрыв и удлинение сварочной дуги, непременно приведёт к образованию прожога. Также, нельзя сильно перегревать металл, нужно давать время на то, чтобы он остыл.
Какие электроды для сварки профильной трубы использовать
Варить профильную трубу рекомендуется электродами, которые предназначены для сварки низкоуглеродистых и углеродистых сталей. Самыми распространёнными марками электродных стержней являются УОНИ, МР-3, ОЗС и другие.

Перед свариванием металлоконструкций рекомендуется прокалить электроды в печи. Это позволит улучшить качество сварного соединения, а также облегчит работу сварщика по разжиганию электродных стержней и получению стабильной дуги.
Как бороться с температурной деформацией при сварке
Чтобы профильную трубу не вело при сварке, нужно заранее предугадать все нюансы:
- Сварные швы накладывать, таким образом, чтобы они компенсировали возникающее напряжение;
- Предварительно осуществлять изгиб конструкций в противоположную сторону от возникающих деформаций. Температурная усадка позволит выгнуть металл в обратную сторону;
- Охлаждать конструкцию естественным путем;
- Выбрать правильный режим сварки;
- Осуществлять тепловую правку после сваривания заготовок.

В общем, при сварке профильной трубы не нужно спешить. Сначала следует собрать всю конструкцию на прихватках, затем вывести геометрию, и лишь после этогом можно будет всё обварить по углам.
Как сварить ворота из профильной трубы. Сварка ворот
Перед тем как сварить ворота нужно профиль разрезать на части необходимого размера, чтобы не было ошибок. Детали к распашным двустворчатым воротам режутся попарно, так можно получить практически одинаковые створки. Стыки на углах делают либо прямые (свариваются внахлест) либо зарезаются под углом в 45 градусов (свариваются встык). Первый вариант намного легче и с ним справиться даже новичок. Делать стыки под углом 45 градусов намного дольше и сложнее, поэтому и делают их в основном опытные мастера.
После того как все детали нарезаны можно приступать к сварочным работам. Есть определенная последовательность, как правильно сварить ворота из профильной трубы, чтобы не допустить перекосов. Каркас из профильных труб выкладывают на плоскость и проверяют (регулируют) уровнем с помощью подставок. Затем аккуратно стыкуются под углом 90 градусов при помощи строительного уголка. Так как уголок не позволяет выставить детали точно, рулеткой нужно проверить диагонали (их размер должен совпадать плюс-минус 5 мм). Что бы более ясно представлять себе этот процесс рекомендуется посмотреть
После проверки всех размеров делаются прихватки на стыках, и перед тем как варить, проверят диагонали, так как сварка тянет металл и размер может измениться. Прихватки хоть и держат детали, но с небольшим усилием можно подправить размер. После окончательной подгонки размеров полностью проваривают швы. Когда сваренный каркас готов, к нему приваривают ребра жесткости и перемычки. Тут особой точности не требуется и можно делать как угодно.
Как сварить ворота из уголка. Описание и классификация распашных ворот
Распашная конструкция ворот — это самая элементарная подвижная ограждающая конструкция, обеспечивающая связь гаража с прилегающей территорией. Полотно ворот имеет щитовую конструкцию, шарнирно соединённую с обрамлением проёма. Обрамление проёма сваривают из металлических профилей, профили имеют замкнутую или п-образную форму. Профили жёстко крепят к стенам в проёме с помощью анкеров. Распашные гаражные ворота традиционно имеют две створки, в одной из которых может быть организована калитка для входа. Конструктивное решение распашных ворот предусматривает беспрепятственный доступ владельца гаража, а также защищает гараж от несанкционированного проникновения посторонних лиц.

Металлические ворота с дверьюдля входа
Такие ворота классифицирую в основном по четырём параметрам.
По способу открывания:
- ворота с полотнами, открывающимися наружу;
- ворота с полотнами, открывающимися внутрь гаража.
По направлению открывания:
- левое направление;
- правое направление;
- симметрично открывающиеся ворота.
По ориентации полотна относительно гаражного проёма:
- снаружи установленное полотно;
- внутри установленное полотно;
- полотно установлено в проёме.
По механизму открывания:
- ворота с ручным приводом;
- ворота с автоматическим приводом.
Конструкция оснащена электроприводом
Помимо перечисленных параметров, распашные ворота различаются между собой вариантами исполнения полотна. Полотно может быть цельным глухим, решетчатым или резным. Полотно может иметь дверь для прохода, элементы остекления, вентиляционные решётки, декоративные элементы и т. п. В зависимости от требуемых теплоизоляционных свойств ворот, полотно может быть утеплено или не утеплено. Выбор применяемых материалов также неограничен, полотна изготавливают из дерева, металла, сэндвич-панелей или пластика. Разнообразие внешнего вида ворот позволяет сочетать их с различными архитектурными стилями зданий и сооружений.
Ворота из круглой трубы своими руками. Устройство
Калитка состоит из опорных столбов и дверного полотна на раме, которое крепится к столбам при помощи петель. Столбы могут быть кирпичные (каменные), деревянные или металлические. В кирпичные при кладке замуровывают небольшие куски толстого металла или толстый металлический прут, к которым впоследствии приваривают раму.
Необычные калитки с деревянным каркасом и оригинальным заполнением
Металлические столбы делают из круглой или профилированной трубы с толстыми стенками. Круглые трубы используют все реже: к ним сложнее приваривать, крепить что-либо. Профилированная труба при том же сечении (диагональ по сравнению с диаметром) и толщине стенки выдерживает большие ветровые нагрузки, к плоским граням проще приваривать или крепить при помощи саморезов, болтов. Поэтому именно ее все чаще используют при устройстве калиток. Еще один вариант — к каркасу из профильной трубы приварить металлический уголок. В этом случае заполнение получится как бы в рамке.
Устройство калиток с деревянной и металлической рамой одинаково
Деревянные столбы обычно используют если забор деревянный. Чаще всего столбы — это сосновый брус, обработанный защитными пропитками. Они предотвращают (или замедляют) разрушение древесины. Но бывают и такие случаи, когда столбы ставят металлические, а калитка и ограда при этом деревянные. Это потому что древесина в земле быстро сгнивает, даже после защитной обработки.
Немного о конструкции опорной рамы. Это может быть просто два столба вкопанных в землю — вариант подходит, если грунт не склонен к пучению (пески, супеси, плодородные, но не глинистые почвы).
Столбы повело. Если вверху и внизу будут перемычки, вероятность такой неприятности намного снизится
Для пучинистых грунтов (глина, суглинки) желательно чтобы столбы были соединены вверху и внизу. В таком случае вероятность перекоса калитки после зимы очень мала. Если вы не хотите делать порожек в проеме, нижнюю перемычку можно опустить ниже уровня земли (на штык–полтора). Ее надо будет тщательно покрыть антикоррозионным составом, прогрунтовать, и покрасить в несколько слоев. А еще чтобы избежать перекоса, следует закапывать столбы ниже уровня промерзания хотя бы на 15-20 см.
Каркас калитки делают из металлической трубы или деревянных брусков. Древесина используется для деревянных заборов, металл — во всех остальных случаях.