Сборка кухни своими руками. Сборка навесных шкафов
- Сборка кухни своими руками. Сборка навесных шкафов
- Сборка кухни верхних шкафов. Этапы сборки кухонной мебели
- Сборка кухни Леруа Мерлен. Самостоятельная сборка кухни Леруа Мерлен
- Сборка кухни для чайников. Содержание:
- Сборка нижних шкафов кухни. Подготовка к сборке
- Сборка кухни инструкция. Собираем кухонный гарнитур своими руками, как конструктор
- Собрать кухню самому онлайн. Онлайн конструктор кухни. Спроектируйте собственную кухню в 3D
- Как собрать кухню из модулей. Дизайн и конструкция – две стороны одной монеты
Сборка кухни своими руками. Сборка навесных шкафов
Наилучший вариант – это начать работы со сборки навесных шкафов. Навесные шкафы состоят из боковых панелей, верхних панелей, нижних панелей, а также задних стенок, в том числе и из фасада, который представляет две дверки, как правило, ламинированных. Как правило, в набор входит различная фурнитура, вроде петель, ручек, направляющих и т.д.
Установка петель
Как правило, дверки, которые отличаются наличием декора, монтируются в последнюю очередь, после того, как шкафы будут установлены на свои места. Петли могут быть врезными (более надежные) и накладными.

Виды петель — врезные накладные
Как правило, под петли уже имеются посадочные места, а под крепления насверлены отверстия. Сначала можно установить половину петли на боковую стенку, а другую половину на дверку, после чего они соединяются вместе. Остается только отрегулировать петли так, чтобы дверки закрывались свободно, без перекосов.
Чтобы разобрать петлю на две половинки, достаточно открутить всего один винт, хотя там есть еще один регулировочный винт.
Сборка корпуса
Сборка корпуса заключается в том, чтобы соединить вместе боковины, верх и низ, а также закрепить заднюю стенку, которая представляет отрезок ДВП, в то время как остальные элементы корпуса представляют отрезки ламинированного ДСП. Разница в том, что ДВП более тонкая. Соединение боковых стенок, верха и низа осуществляется с помощью специальных мебельных шурупов, которые называются конфирматами. Как правило, они идут в комплекте с остальными элементами. Головка этого шурупа сделана под шестигранный ключ, поэтому закрутить его обычными отвертками не получится.

Как собрать кухонный гарнитур: сборка корпуса шкафов
Как правило, на мебельной фабрике сверлятся все необходимые отверстия под различные винты и шурупы, поэтому остается только соединить все вместе и закрутить крепежные элементы.
Задняя стенка изготавливается из отрезка ДВП (она тоньше, по сравнению с боковыми стенками, верхом и низом). Крепится задняя стенка с помощью маленьких гвоздиков (L=20 мм или L=25мм). Гвозди прибиваются с помощью небольшого молотка, на расстоянии не больше 10 см друг от друга.
Фурнитура, которая применяется при изготовлении мебели, может быть разной, поэтому ее монтаж может отличаться, хотя и несущественно. Наиболее просто монтируются держатели полок – они просто вставляются в уже просверленные отверстия и добиваются молотком. Чтобы регулировать установку высоты полок на боковых стенках могут сверлиться несколько отверстий, например, с шагом в 10 сантиметров.

Держатели для полок
Чтобы наглядно увидеть весь процесс сборки навесных шкафов, предлагается посмотреть видео. Напольные шкафы собираются по такой же технологии. Единственное отличие – это общая для всех шкафов столешница, которая монтируется после полной сборки и крепления между собой всех шкафов. Кроме этого, нижние шкафы монтируются на ножках. Как правило, высота ножек регулируется по высоте, поэтому мебель допустимо выставить по уровню на любой поверхности.
Сборка кухни верхних шкафов. Этапы сборки кухонной мебели
Как собрать кухонную мебель? Процедура установки кухни реализуется в нескольких последовательных этапах. Начинается процесс со сборки короба, после чего собираются выдвижные ящики и монтируются верхние шкафы. Только потом устанавливаются нижние ящики конструкции.
Сборка короба
Сборка мебели начинается с формирования короба. Для этого выполняются последовательные действия:
- боковая стенка ящика устанавливается на прочную и ровную поверхность торцом, причем фасады должны располагаться вверху;
- стенка шкафа правильно стыкуется с дном, причем исключительно под прямым углом, после чего они соединяются друг с другом, для чего используются конфирматы, а для евровинтов в кухнях, сделанных в заводских условиях, уже имеются отверстия;
- с другой стороны фиксируется вторая боковая стенка таким же образом;
- монтируется две верхние планки с каждой стороны конструкции, если собираются нижние ящики, а для навесных устанавливается крышка;
- укладывается шкаф фасадом вниз, после чего с помощью линейки измеряется его диагональ, так как не допускается, чтобы полученные значения в разных шкафах отличались друг от друга больше, чем на 1,5 мм;
- прикрепляется к шкафам задняя стенка, для чего используются обычно скобы или маленькие гвозди;
- для напольных шкафов ко дну прикрепляются ножки, причем они могут быть сделаны из пластика или металла.
При процессе работы надо проверять, чтобы торцы всех боковых стенок ящиков находились вровень с дном и крышкой, для чего используется измерительное оборудование.

Установка боковой стенки

Установка второй боковой стенки

Две верхние планки короба

Укладка шкафа

Фиксируем заднюю стенку
Сборка выдвижных ящиков
Следующий этап установки кухни заключается в правильной сборке выдвижных ящиков, используемых в этой конструкции обязательно. Без них любая кухня становится неудобной и невместительной. Для этого выполняются последовательные действия:
- делается короб, для чего под прямыми углами фиксируются друг с другом четыре планки;
- у всех таких заготовок должна быть одинаковая диагональ;
- к боковым стенкам каждого полученного ящика прикрепляются направляющие;
- с помощью шурупов фиксируются фасады;
- на дне ящика монтируются специальные ответные защелки, позволяющие прикрепить ящики к направляющим.
Как только выдвижные ящики будут готовы, начинается монтаж верхних навесных шкафов.

Создаем короб

Крепим направляющие

Фиксируем фасады

Фиксируем защелки
Установка верхних шкафов
Они должны надежно и качественного прикрепляться к стене помещения. При этом применять мебель для кухни по ее назначению не составит труда. Этот процесс делится на последовательные этапы:
- первоначально отмечаются места крепления всех шкафчиков, для чего от пола откладывается оптимальная высота, определяющая расстояние от него до нижней полки шкафа;
- при процессе выбора оптимальной высоты учитывается рост человека, выступающего в качестве постоянного пользователя кухни;
- также заранее определяется высота столешницы, чтобы от нее до верхнего шкафа оставалось расстояние, не меньше 0,6 м;
- от нанесенных отметок откладываются линии, показывающие на места расположения будущих крепежей, причем уровнем следует удостовериться в том, что линия является идеально ровной;
Если планируется через верхний шкаф прокладывать какие-либо трубопроводы, то для них в задней стенке непременно заблаговременно делаются соответствующие отверстия лобзиком.


Сборка кухни Леруа Мерлен. Самостоятельная сборка кухни Леруа Мерлен
- Цена гарнитура: 848$
- Цвет мебели: Бело-зеленая
Ваш репост изменит интернет :)
Мы долго искали, где купить кухню, так как наш предыдущий опыт был печальным. Кухню я хотела мятного цвета в сочетании с белым. Такую увидела на сайте Леруа. Продавец-консультант вместе с нами составил проект, и так как все необходимые детали были в наличии, можно было сразу забрать наш заказ или оформить доставку. Так как у нас нет необходимого транспорта, мы заказали доставку. Кухню привезли на следующий день.

Для монтажа кухонных шкафов нам понадобились инструменты:
- крестообразная отвертка;
- шуруповерт;
- дрель;
- мебельный ключ (идет в комплекте);
- лобзик.
Наша Сборка нижних фасадов
Естественно, сначала мы проверили наличие всех шкафов. Первым делом приступили к сборке нижних. Установка занимает немного времени.

1. Определяем где верх, а где низ. Вставляем в пазы верхнюю и нижнюю крышку. Закрепляем с помощью мебельного ключа шурупы с одной стороны, затем вставляем заднюю стенку. Следом вставляем вторую сторону и закрепляем.
2. Вставляем в отверстия дверцы петли, закручиваем полуоборотный механизм. Прикручиваем дверцу к шкафу.
3. Прикручиваем саморезами ножки.
4. Вставляем полки.
Благодаря хорошему заводскому производству, если собирать своими руками, ничего не испортишь. Иногда приходится обращаться к инструкции, но это бывает крайне редко.
У нас есть посудомойка, она на 40 см, а дверцу мы заказали на 60, чтобы кухня доходила до холодильника. Установили дверцу посередине. Оставили сверху небольшой зазор, чтобы дверца беспрепятственно открывалась и закрывалась.

У выдвижных шкафов выдвижной механизм фиксируется снизу.
Столешница
Устанавливаем столешницу. Есть несколько вариантов: измерить отвесом уровень, с помощью лазерного уровня, либо по плитке — у нас уже была выложена по уровню.
1. В угловой кухне пользуемся соединительной планкой, чтобы в дальнейшем в стык не попадала вода.
2. Затем вырезаем отверстие под раковину и варочную панель.
Совет: Запаситесь заранее несколькими лезвиями для лобзика. Столешница толстая, и при поворотах лезвие может сломаться. А как выбрать столешницу, можно почитать.

3. Регулируем ножками высоту, особенно это важно, если в доме неровные полы. Регулируем уже со столешницей, ножки хорошо поддаются.
Верхние фасады
1. Определяем, где верх, а где низ. Прикручиваем подвесной механизм на каждую стенку.

2. Вставляем в пазы верхнюю и нижнюю крышку. Закрепляем с помощью мебельного ключа шурупы с одной стороны.

3. Вставляем заднюю стенку, следом вставляем вторую сторону и закрепляем.
4. Вставляем в отверстия дверцы петли, закручиваем полуоборотный механизм. Прикручиваем дверцу к шкафу, саморезами прикручиваем ножки.

5. Вставляем полки.
Если у вас, то уровень уже автоматически имеется. Также можно мерить по верху плитки или использовать уровень. Все работы обязательно должны быть выполнены ровно, иначе будут погрешности в сборке.
Намечаем и высверливаем отверстия под каждый шкафчик. Угловой очень тяжелый, его лучше поднимать вдвоем.
6. Вешаем полки на стену.

Нижняя крышка, которая закрывает ножки, соединяется специальным гибким механизмом, который гнется как в одну, так и в другую сторону. Вставляем в полосу зажим напротив ножки и фиксируем, хлопнув по панели, т.е. защелкиваем.
Сборка кухни для чайников. Содержание:
Когда на кухне закончен ремонт, задумываются о замене старого гарнитура. Покупая мебель для кухни, многие заказывают сборку и установку, да и продавцы мебели рекламируют своих сборщиков. Однако собрать кухню самому и остаться при сэкономленных деньгах возможно. Самостоятельная сборка – процесс не самый простой, но выполнимый. Практические рекомендации, изложенные в статье, помогут самому собрать и установить кухонный гарнитур, избежав ошибок.

Сборка
Перед началом монтажа и установки мебели для кухни, изучите инструкцию. Большинство производителей мебели снабжают свою продукцию подробными схемами сборки, что существенно облегчает задачу.
Стандартный набор для кухни состоит из: каркаса – детали ЛДСП разного размера, задних стенок шкафов в виде ДВП, фасадов, столешниц и комплекта мебельной фурнитуры. Проверив комплектность гарнитура по инструкции, можно начинать сборку.
Необходимый набор инструментов
Понадобится стандартный набор инструментов для сборки мебели:
- Шуруповерт
- Перфоратор
- Уровень для установки шкафчиков
- Шестигранный ключ
- Молоток
- Рулетка
Если столешница из цельного полотна, а не отдельных модулей на каждый рабочий стол, то лучше всего запастись электрическим лобзиком или ножовкой.

Сборка рабочих столов
Специалисты советуют начать установку кухни с нижнего яруса. Это необязательно, но может упростить задачу.
Вначале собираются мебельные каркасы, установку фасадов и сборку выдвижных ящиков можно оставить на потом.
Если в комплект входит угловой шкафчик, то он собирается первым, прямой вариант кухни можно начать со стола под мойку.
Используя мебельный крепеж, идущий в комплекте, с помощью насадки под шестигранник или самого ключа, соединяются боковины, дно и верх шкафа. Место для крепления всегда намечено на мебельных деталях. Собирать корпус можно в такой последовательности: соединить боковину с дном изделия, затем присоединить вторую боковину, а верхние планки крепить под столешницу.
Затем, для большей устойчивости, положить каркас фасадной частью на ровную поверхность и установить заднюю стенку. Панель ДВП прибивается небольшими гвоздиками, скобами мебельного степлера или другими крепежами, идущими в комплекте. Расстояние между крепежами задней стенки приблизительно 10 см. Начать лучше от угла, и двигаться вниз, постоянно выравнивая край.
Стол под мойку чаще не имеет задней стенки, чтобы был свободный доступ к трубам. Если под мойку предназначен угловой шкафчик, то для него вместо задних стенок предусмотрены соединительные планки, придающие изделию необходимую устойчивость.
Перевернув каркас вниз головой, устанавливаются мебельные ножки. На дне должны быть специально обозначенные места, к которым с помощью самореза длиной 15 мм (если толщина листа ЛДСП стандартная), крепится регулируемая опора. Если на дне, по каким-то причинам не нанесена наметка, то ножки устанавливаются на расстоянии 5-8 см от края.
На стандартный шкафчик устанавливается 4 опоры, в угловой 5, а в случае, если в комплект входит пенал, высотой более 80 см, ставиться 6 опор. Узкие модули шириной до 200мм, оборудуются всего двумя опорами, это могут быть выдвижные корзинки – бутылочницы.

Сборка нижних шкафов кухни. Подготовка к сборке
Перед тем, как собрать кухонный гарнитур, нужно подготовить необходимый комплект инструментов:
- Перфоратор, бур диаметром 6 и 8 мм, дрель (переходник на дрель) и соответствующие сверла;
- Шуруповерт (ОБЯЗАТЕЛЬНО!);
- Электролобзик или ножовка по металлу для того, чтобы отпилить столешницу;
- Шестигранный ключ (прилагается к комплекту);
- Инструменты: угольник и уровень, рулетка, молоток, плоскогубцы и ножик-резак.

Совет! Недостающий электроинструмент можно одолжить, а лучше приобрести. Шуруповерт и перфоратор – вещи необходимые в каждом доме.
Потребуются и крепежи разных типов:
- Мебельные гвозди;
- Евровинт;
- Крепежная полоса (рейка) для навешивания;
- Герметик на силиконовой основе;
- Стяжки, скрепляющие секции между собой;
- Саморезы: 15-16 мм для фурнитуры и 70 мм – чтобы повесить кухонные шкафы;
- Уголки, шканты, анкерные болты (прилагаются в гарнитуру);
- Кондуктор для шкантов (желательно).

Если есть инструкция по сборке, то внимательно ее изучите. В руководстве пронумерованы все детали и описан порядок работы. Удостоверьтесь, что комплектация гарнитура полная и рассортируйте все элементы по тумбам. Дальше вы будете собирать свой шкаф как конструктор, ведь большинство современных гарнитуров состоят из модулей.
Как правило, вначале собирают нижние шкафы и устанавливают на них столешницу, потом собирают и вешают верхние модули, рисуют разметку на стене, а далее модули можно уставить и подвесить.
В каком порядке производится установка кухонного гарнитура? Сначала повесить верхние секции или, наоборот, нижние? У того и другого способа есть свои приверженцы. Многие мастера устанавливают сначала верхние шкафы, чтобы нижние тумбы не мешали в процессе монтажа.
Имейте в виду, что верхние шкафчики монтируются без фасадов, так их установка будет проще. Кроме того, так вы сможете проконтролировать зазоры между фасадами непосредственно на стене.
Сборка кухни инструкция. Собираем кухонный гарнитур своими руками, как конструктор

Услуга сборщика стоит около 6-10 % от стоимости гарнитура, поэтому, если вы располагаете временем и некоторым опытом, то собрать самому кухонный гарнитур не составит особой сложности, при этом вы не переплатите лишних денег.
Перед тем, как самому начать сборку кухонного гарнитура, нужно убедиться, что все работы по выравниванию стен, пола, отделке (в том числе и по монтажу фартука ), а также работы по устройству электропроводки , подключению розеток, водоснабжения уже проведены и закончены. Ведь когда установка кухни будет завершена, проводить все эти мероприятия будет затруднительно.
Подготовка к сборке
Перед тем, как собрать кухонный гарнитур, нужно подготовить необходимый комплект инструментов:
- Перфоратор, бур диаметром 6 и 8 мм, дрель (переходник на дрель) и соответствующие сверла;
- Шуруповерт (ОБЯЗАТЕЛЬНО!);
- Электролобзик или ножовка по металлу для того, чтобы отпилить столешницу;
- Шестигранный ключ (прилагается к комплекту);
- Инструменты: угольник и уровень, рулетка, молоток, плоскогубцы и ножик-резак.

Совет! Недостающий электроинструмент можно одолжить, а лучше приобрести. Шуруповерт и перфоратор – вещи необходимые в каждом доме.
Потребуются и крепежи разных типов:
- Мебельные гвозди;
- Евровинт;
- Крепежная полоса (рейка) для навешивания;
- Герметик на силиконовой основе;
- Стяжки, скрепляющие секции между собой;
- Саморезы: 15-16 мм для фурнитуры и 70 мм – чтобы повесить кухонные шкафы;
- Уголки, шканты, анкерные болты (прилагаются в гарнитуру);
- Кондуктор для шкантов (желательно).

Если есть инструкция по сборке, то внимательно ее изучите. В руководстве пронумерованы все детали и описан порядок работы. Удостоверьтесь, что комплектация гарнитура полная и рассортируйте все элементы по тумбам. Дальше вы будете собирать свой шкаф как конструктор, ведь большинство современных гарнитуров состоят из модулей.
Как правило, вначале собирают нижние шкафы и устанавливают на них столешницу, потом собирают и вешают верхние модули, рисуют разметку на стене, а далее модули можно уставить и подвесить.
В каком порядке производится установка кухонного гарнитура? Сначала повесить верхние секции или, наоборот, нижние? У того и другого способа есть свои приверженцы. Многие мастера устанавливают сначала верхние шкафы, чтобы нижние тумбы не мешали в процессе монтажа.
Имейте в виду, что верхние шкафчики монтируются без фасадов, так их установка будет проще. Кроме того, так вы сможете проконтролировать зазоры между фасадами непосредственно на стене.
Собираем нижние модули
Монтаж кухни своими руками логично начать со сборки тумб, устанавливаемых на полу. Стоит знать, что базовые тумбы классифицируются по типам конструкции, каждый из которых имеет свои особенности сборки:
- Собрать шкаф с дверцами своими руками достаточно просто.


- Шкаф с ящиками собрать тоже не сложно.


- При сборке своими руками совмещенного шкафа, первая задача – установить направляющие правильно.

Правила сборки навесных элементов
Сборка своими руками навесных шкафов производится по аналогии с нижними, но есть и 2 существенных отличия:
- Монтаж выдвижных ящиков здесь не производится;
- Фасады устанавливаются только на этапе крепления шкафов на стену;
- В верхних углах необходимо вешать навесы с регулировкой – для них вырезаются отверстия сзади.
Особенности сборочного этапа
Как собрать кухню своими руками правильно? Нужно непременно учесть ряд основных моментов:
- Монтаж шкафа под раковину осуществляется без задней стенки. В нем также нужно загерметизировать все вырезы, чтобы находящаяся рядом влага не могла повредить структуру ДСП.
- Крепление шкафа, где установлен посудосушитель, не предусматривает монтаж дна. Если же такая конструкция невозможна, то стоит предусмотреть крепление защитного прорезиненного полотна.
- Сборка и установка кухни производится с максимальной осторожностью. Самые уязвимые части гарнитура – это торцы фасадов. Отреставрировать поврежденную конструкцию не представляется возможным.
Устанавливаем напольные и навесные шкафы
После сборки кухонного гарнитура, можно приступать к этапу крепления.
Вначале нужно произвести крепление нижних шкафов – работы ведут от угла помещения.
Собрать кухню самому онлайн. Онлайн конструктор кухни. Спроектируйте собственную кухню в 3D
Чтобы не потерять, сохраните в своей соц.сети:
Представленный на этой странице конструктор BPlanner — простой и легкий в использовании, позволяет спроектировать помещение и расставить шкафы кухонного гарнитура в течение 10-15 минут. Возможности:
- продумать планировку кухни
- нарисовать дизайн-проект в 3D
- сохранить проект на компьютер/флешку
- продолжить рисование, когда удобно
- получить стоимость из калькулятора (кнопка "Отправить на расчет")
- скачать проект в PDF и детализацию в Excel
- сделать визуализацию (рендер проекта)
Как пользоваться? => Инструкция из 12 пунктов +
Вы можете рисовать с нуля, либо использовать один из готовых дизайн-проектов вили в самом конструкторе (последний пункт в левом меню).
Важно! После нажатия кнопки "Отправить на расчет", с вами свяжется менеджер для подтверждения заявки. Актуально только для Москвы.
Хотите узнать, сколько будет стоить гарнитур как в вашем проекте?в онлайн-чате от мебельной компании в Москве.
Поддерживаемые браузеры: Chrome (самая стабильная работа), IE 11, Firefox, Opera.
Есть вопросы? Пишите на kitchen2work@gmail.com
Понравилась наша программа? Делитесь своими проектами и ссылкой на конструктор в соц сетях - для нас это лучшая благодарность.
5 проектов-шаблонов, нарисованных в этом конструкторе
Если кликнуть на картинку, откроется страница с подробным описанием и файлом проекта. Вы сможете использовать предложенный дизайн, и на его основе нарисовать собственную кухню, меняя расположение или цвет шкафов и техники.
Прежде чем начать, посмотрите. Дополнительно можно указать цвет, стиль или планировку. Найдите кухню вашей мечты, и сделайте свой проект!
Как собрать кухню из модулей. Дизайн и конструкция – две стороны одной монеты

Эскиз угловой модульной кухни
Отдайте предпочтение модульной мебели, а также конструкциям в которых предусмотрена упрощенная сборка кухонного гарнитура. Перед покупкой составьте подробный план помещения, на котором обязательно укажите (желательно в миллиметрах):
- высоту, ширину и длину помещения в разных частях кухни – наверняка они будут различаться;
- расположение и размеры двери;
- точное положение электропроводки, канализации, водо- и газопровод;
- точное расположение вентиляции;
- высоту подоконника и расстояние от оконного проема до углов кухни.

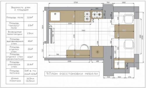
Детальный проект дизайна кухни с точными размерами и расстановкой мебели и техники
Теперь смело идите в мастерскую или мебельный магазин. Опытные специалисты с помощью компьютерных программ 3D-моделирования подберут подходящую конструкцию и дадут совет, как собрать кухонный гарнитур. При выборе руководствуйтесь правилами.
- Кухня делится на зоны варки, разделки продуктов с мойкой и складирования продуктов с холодильником. Переход между ними происходит по кратчайшему пути – «золотому треугольнику».
- Мойка, варочная поверхность и холодильник нужно расположить на расстоянии не менее полуметра друг от друга – брызги воды могут привести к выходу варки из строя, а холодильник в зоне высокой температуры будет съедать больше электричества.
- Стиральную машину и посудомойку расположите поближе к водопроводу и канализации.
Дизайн гарнитура зависит от размеров кухни. Варианты расположения элементов гарнитура буквой Г и П применяются в помещениях малого размера. Островной вариант подходит для просторных комнат.