Какой ширины должны быть ворота. Оптимальный размер распашных ворот
- Какой ширины должны быть ворота. Оптимальный размер распашных ворот
- Оптимальная Ширина ворот в заборе. Размеры ворот: Ширина и оптимальная высота в заборе с калиткой частного дома
- Ширина ворот футбольных. Футбольное поле
- Ширина ворот для проезда Камаза. Размеры ворот для Камаза | Ширина ворот
- Ширина ворот откатных. Оптимальный размер откатных ворот
- Ширина откатных ворот на 2 машины. МИНИМАЛЬНЫЕ ТРЕБОВАНИЯ К РАЗМЕРАМ ОТКАТНЫХ ВОРОТ
- Оптимальная Ширина распашных ворот. Размеры распашных ворот. Оптимальная Ширина въездных ворот
Какой ширины должны быть ворота. Оптимальный размер распашных ворот
Нет такой вещи, как универсальная ширина распашных ворот, это фундаментально индивидуальная величина, которую подбирают под конкретные требования, условия эксплуатации, под габариты автомобиля, который будет ежедневно заезжать во двор и выезжать из него. Поэтому имеет смысл заказывать ворота и калитки одновременно с установкой ограждения — по персональным замерам.
На что нужно обратить внимание:
Ширина автомобиля.
Если у вас легковое авто, хватит ширины в 2,5 метра, если планируется, что туда-сюда будут выезжать грузовики, — как минимум 3,5 метра, а лучше больше. В целом, всегда лучше ориентироваться на максимальные размеры автомобиля. Вдруг вы затеете стройку, где потребуется тяжёлая техника. Куда проще открыть распашные ворота, чем снимать их с петель или, того хуже, разбирать новенькое ограждение.
Расположение относительно других объектов.
Бывает, что проектировщик учитывает буквально всё, вплоть до особенностей рельефа, но забывает о расположенном рядом палисаднике. Створки упёрлись в деревья — пришлось спешно их спиливать. Вместо растений на пути ворот может находиться что-то более капитальное, например, трансформаторная будка.
Резюмируя: мы рекомендовали бы остановиться на ширине от 3,5 метров и больше, но нужно учитывать и то, что находится вокруг. Наш замерщик подскажет и место, где лучше всего расположить ворота/калитки, — которые, к слову, мы изготавливаем самостоятельно по совершенно индивидуальным проектам.
Оптимальная Ширина ворот в заборе. Размеры ворот: Ширина и оптимальная высота в заборе с калиткой частного дома
Большинство владельцев дач или частных домов сталкивались с проблемой, как правильно выбрать размер ворот. Помимо прочего, месторасположение и различные варианты въездных створок играют важную роль, от этого зависит, насколько удобным будет подъезд к частному дому. Ширина ворот должна быть достаточной, чтобы в них смогли заехать как легковое авто, так и грузовик.

Въезд на участок частного дома
Особенности месторасположения
Если строительство дачи или дома лишь на стадии разработки, то нужно подобрать оптимальное месторасположение воротной конструкции. Изначально нужно определить, осложнят ли ворота въезд автомобилям с остальных участков, перекроют ли движение транспорта, находясь рядом с проезжей частью.

Откатная створка
Не советуют устанавливать ворота для заезда в частный дом, створки которых открываются на улицу. Это может препятствовать остальным участникам движения.
Размеры ворот и калитки для частного дома
Размер проема въезда легковых машин можно начинать делать в ширину от 250 см. Но необходимо учитывать, что на участок в дальнейшем также, возможно, будет заезжать грузовой транспорт либо спецтехника. К примеру, трактор, ширина которого более 250 см. Именно поэтому желательно установить ворота начиная от 330 см.

На даче
Практичность заезда
Насколько удобным и практичным будет въезд, значительно зависит от рядом находящейся дороги, а также от максимального радиуса разворота автомобиля. Если расстояние между дорогой и въездом на территорию равно радиусу разворота авто либо больше этого значения, то в данном случае машина, проезжающая перпендикулярно по центру ворот, будет заезжать с запасом с двух сторон от автомобиля до проема ворот.

Около частного дома
В случае если проем более узкий, чем радиус поворота машины, то будет необходимо проезжать под углом, срезая поворот, так появляется высокая вероятность врезаться в бордюрное ограждение либо столб.
В данной ситуации желательно сделать более широкий проезд через ворота, в пределах 3,5–5,2 м. Если все равно не обеспечивается должный проезд, то желательно переместить воротную конструкцию во двор на 1,3–1,7 м.
Это решение особенно актуально для домов и жилых зданий с узкими улочками, постоянным потоком автомобилей, когда, чтобы проехать на территорию, необходимо пересекать ось проезжей части.
Чаще всего средний радиус разворота легковых машин составляет приблизительно 5,7–6,8 м, для грузовиков и длинномерных фур – около 7–9 м, для пожарной машины – до 10 м.

Створки из металла
Расчет размера калитки
Прежде чем установить калитку для забора из кирпича или профнастила, необходимо определить, какая будет конструкция и какого размера.

На участке
Расчет высоты калитки из профлиста:
- Стандартная высота – 190 см.
- С учетом требований калитка поднимается над уровнем земли на 10 см.
- Общая высота – 180 см.
- Сверху и снизу каркаса делается допуск для обшивки по 2 см.
- Общая высота рамы без обшивки – 1760 мм.

Схема с размерами
Какая требуется ширина калитки в заборе:
- Чаще всего ширина проема между кирпичными опорами составляет 1,1 м.
- К опорам фиксируют брусья для крепления калитки толщиной 50 мм.
- 1100 − 50 − 50 = 1000 мм.
- Учитывается зазор с двух сторон по 15–25 мм.
- Ширина рамы – 950–970 мм.

Калитка в кирпичном ограждении
Размеры калитки для инвалидов-колясочников
Как правило, стандартная по ширине коляска для инвалидов составляет 630–680 мм. Минимальный проем должен составлять 710 мм. Этого должно хватить для проезда.

Сварная калитка в заборе
Но стоит учесть, что инвалиды передвигаются, вращая колеса руками. И если коляска помещается между проемом вплотную, то можно травмировать руку. Чтобы не допустить этого, минимальная ширина калитки должна составлять 810–850 мм.
Размеры ворот для забора
Первое, от чего необходимо отталкиваться при определении размера ворот, какой транспорт будет въезжать на дачный участок либо на территорию частного дома. Одно дело – если на территорию заезжают исключительно легковые авто, иное дело – грузовики.
Чертеж для изготовления створок из профнастила
Ширина ворот на участок выбирается для различных автомобилей, естественно, разная. То есть необходимые размеры въездных ворот будут отличаться. Желательно изначально рассчитывать на грузовики (к примеру, типа КамАЗ).

Створки из профнастила частного дома
Легковые машины
Как правило, ширина этих авто находится в пределах 1,6–1,8 м. Джипы и Газели имеют чуть большую ширину. Но чаще всего эта величина составляет не более чем два метра.
То есть для этих авто стандартные размеры ворот – 2,6 м. Если заезжать на территорию осторожно, то этого запаса (зазор остается примерно по 35 см) вполне хватит.
Грузовики
В этом случае ситуация другая. К примеру, ЗИЛ по ширине – 2,5 м. Соответственно, для въезда на дачу этого транспортного средства минимального вышеуказанного проема ворот не хватит.

Ширина ворот футбольных. Футбольное поле
Матчи могут проводиться на полях с естественным и искусственным покрытием. Согласно официальным правилам игры в футбол, искусственное покрытие должно быть зелёного цвета.
. Боковая линия обязательно должна быть длиннее линии ворот.
Размеры поля: : минимум 90 м (100 ярдов), максимум 120 м (130 ярдов) : минимум 45 м (50 ярдов), максимум 90 м (100 ярдов)
— от 4050 мдо 10 800 м
Размеры поля при проведении международных матчей: : минимум 100 м (110 ярдов), максимум 110 м (120 ярдов) : минимум 64 м (70 ярдов), максимум 73.2 м (80 ярдов)
— 7140 м
Разметка поля делается линиями шириной не более 12 см (5 дюймов); эти линии входят в площади, которые они ограничивают. Все линии должны быть одинаковой ширины.
Две длинные линии, ограничивающие поле для игры, называются боковыми линиями ; две короткие линии — линиями ворот .
средней линии , соединяющей середины боковых линий. Посередине средней линии делается отметка центра поля — сплошной круг диаметром 0.3 м (1 фут). Вокруг центра поля проводится окружность радиусом 9,15 м (10 ярдов). С отметки центра поля в начале каждого из таймов основного и дополнительного времени, а также после каждого забитого, выполняется начальный удар. При исполнении начального удара все игроки должны находиться на своих половинах поля, а соперники выполняющей удар команды — и за пределами центрального круга.
площадь ворот — зона, из пределов которой выполняется.
Из точек, находящихся на расстоянии 5,5 м (6 ярдов) от внутренней стороны каждой стойки, под прямым углом к линии ворот вглубь поля проводятся две линии. На расстоянии 5,5 м (6 ярдов) от линии ворот эти линии соединяются другой линией, параллельной линии ворот. Таким образом, размеры площади ворот — 18,32 м (20 ярдов) на 5,5 м (6 ярдов).
штрафная площадь — зона, в которойможет играть руками, а в ворота команды, совершившей в своей штрафной площади нарушение, наказуемое, будет назначен.
Из точек, находящихся на расстоянии 16,5 м (18 ярдов) от внутренней стороны каждой стойки ворот, под прямым углом к линии ворот вглубь поля проводятся две линии. На расстоянии 16,5 м (18 ярдов) от линии ворот эти линии соединены другой линией, параллельной линии ворот. Размеры штрафной площади, таким образом — 40,32 м (44 ярда) на 16,5 м (18 ярдов). В пределах штрафной площади, по центру линии ворот и на расстоянии 11 м (12 ярдов) от неё, наносится одиннадцатиметровая отметка — сплошной круг диаметром 0,3 м (1 фут). За пределами штрафной площади проводится дуга окружности радиусом 9,15 м (10 ярдов), центр которой находится на одиннадцатиметровой отметке. Данная дуга используется для расположения игроков команд при пробитии одиннадцатиметрового удара.
В каждом из четырёх углов поля проводится дуга радиусом 1 м (или 1 ярд) с центром в углу поля, ограничивающая сектор для исполнения.
На расстоянии 9,15 м (10 ярдов) от границ угловых секторов у боковых линий и линий ворот могут быть нанесены отметки (с внешней стороны линий, примыкающих к ним под прямым углом), используемые для определения расстояния, на котором находятся игроки при исполнении углового удара.
Ширина ворот для проезда Камаза. Размеры ворот для Камаза | Ширина ворот
Грузовые автомобили КамАЗ идеально подходят для транспортировки различных грузов по российским дорогам. Транспортные средства хорошо адаптированы под отечественные условия эксплуатации: характеризуются отличной проходимостью, прекрасной грузоподъемностью, мощностью. В зависимости от модели машины могут перевозить товары, масса которых варьируется от 5 до 30 тонн.
Для эффективной защиты транспортируемого груза приобретают задние распашные ворота, состоящие из двух створок. Конструкции служат для запирания продукции и опломбирования.
Размеры ворот для КамАЗа подбираются под конкретную модель машины, учитываются габариты фургона или полуприцепа. Например, ширина модели 4308 достигает 255 см, а высота автомобиля составляет 267 см. При этом габариты кузова, на который будет устанавливаться конструкция, отличаются от размеров транспортного средства. В этом случае ширина ворот для КамАЗа составит 247 см.
Перед производством конструкции специалисты должны осуществить точные замеры и правильно определить высоту и ширину створок:
- Исходя из их габаритов, подбирается фурнитура.
- Размеры ворот для КамАЗа также влияют на количество петель. Чем выше створки, тем больше петель понадобится для их удержания.
- Каркас изготавливается из профильной трубы 40х60. Часто для его производства также применяется швеллер 10.
- Все ворота комплектуются замочным механизмом.
После изготовления конструкции ее покрывают специальной трехкомпонентной краской, которая устойчива к ультрафиолетовому излучению и влажности, хорошо защищает материал от непогоды, перепада температуры, солнца, мороза.
Как видим, высота и ширина ворот для КамАЗа определяется в каждом случае индивидуально, учитываются габариты фургона либо же полуприцепа.
Ширина ворот откатных. Оптимальный размер откатных ворот
Часто возникает вопрос - какой ширины сделать проём откатных ворот? Для объектов различного назначения оптимальная ширина проёма будет разной, такой подход позволяет рационально использовать материалы, место во дворе и соответственно деньги.

Итак, сначала рассмотрим оптимальную ширину проёма для частного дома. Наиболее предпочтительно в данном случае делать проём 4-4.3 метра. В этом случае будет обеспечен комфортный заезд-выезд практически любого автотраспорта, который по правилам не шире 2,7 метра, а также мы будем иметь рациональную конструкцию с оптимальным расходом материала. Ширина проёма в 4 метра позволяет сделать откатные ворота на стандартной 6-ти метровой направляющей до 500 кг без доваривания дополнительных кусков. Проёмы шириной около 3 метров имеет смысл делать при недостатке места для отката ворот, следует отметить, что въезд в такие ворота менее комфортен. Ворота с шириной проёма 4 метра:

В некоторых случаях хозяин хочет установить откатные ворота с шириной проёма 5 метров. Хочу отметить, что без крайней необходимости делать такой проем не стоит. Дело в том, что такая ширина подразумевает общую длину ворот (вместе с противовесом) 7,5 метров. Направляющие выпускаются максимальной длиной 7м и потому придется доваривать, что добавляет довольно скурпулезной работы. Кроме того проём 5 м является пределом использования комплекта фурнитуры для откатных ворот до 500 кг. И если зашивка тяжелее нежели профнастил или есть встроенная калитка, то придется использовать комплект на 800 кг цена которого почти в 2 раза больше. Т.е погоня за этим одним лишним метром может вылиться в кругленькую сумму, плюс работы по довариванию направляющей. Ворота с шириной проёма 5 метров со встроенной калиткой:

Далее рассмотрим оптимальную ширину проёма откатных ворот для промышленного предприятия или коллективного въезда. Здесь разумным размером будет проём порядка 6метров. Такой проём позволит разъехаться двум автомобилям и проехать большегрузному и спецтранспорту. Откатные ворота с проёмом 6 метров.


Следующий случай это агрокомплексы, фермы, тракторные станы, и другие объекты на которые заезжает транспорт нестандартной ширины, например комбайны. Здесь уже в зависимости от конкретных задач ширина проема может варьироваться от 7 до 10 метров - собственно это максимальная ширина откатных ворот. Конструкция каркаса таких ворот обязательно должна представлять собой несущую ферму с диагоналями.


Остались вопросы? Звоните, и наши менеджеры с удовольствием проконсультируют Вас по всем вопросам! Звоните или закажите консультацию.
Для объектов различного назначения оптимальная ширина проёма будет разной, такой подход позволяет рационально использовать материалы, место во дворе и соответственно деньги.
Оптимальная ширина проёма для частного дома
Наиболее предпочтительно в данном случае делать проём 4-4.3 метра. В этом случае будет обеспечен комфортный заезд-выезд практически любого автотраспорта, который по правилам не шире 2,7 метра, а также мы будем иметь рациональную конструкцию с оптимальным расходом материала.
Ширина проёма в 4 метра позволяет сделать откатные ворота на стандартной 6-ти метровой направляющей до 500 кг без доваривания дополнительных кусков. Проёмы шириной около 3 метров имеет смысл делать при недостатке места для отката ворот, следует отметить, что въезд в такие ворота менее комфортен.
Ворота с шириной проёма 4 метра:
- Позволяют использовать стандартную 6-ти метровую направляющую
- Максимальная нагрузка 500 кг
В некоторых случаях хозяин хочет установить откатные ворота с шириной проёма 5 метров. Хочу отметить, что без крайней необходимости делать такой проем не стоит. Дело в том, что такая ширина подразумевает общую длину ворот (вместе с противовесом) 7,5 метров. Направляющие выпускаются максимальной длиной 7м и потому придется доваривать, что добавляет довольно скрупулезной работы.
Кроме того, проём 5 м является пределом использования комплекта фурнитуры для откатных ворот до 500 кг. И если зашивка тяжелее нежели профнастил или есть встроенная калитка, то придется использовать комплект на 800 кг цена которого почти в 2 раза больше. Т.е. погоня за этим одним лишним метром может вылиться в кругленькую сумму, плюс работы по довариванию направляющей.
Ворота с шириной проёма 5 метров со встроенной калиткой:
- Общая длина ворот (вместе с противовесом) 7,5 метров
- Потребует доваривания направляющей
- Нужно использовать комплект фурнитуры на 800 кг
Ширина откатных ворот на 2 машины. МИНИМАЛЬНЫЕ ТРЕБОВАНИЯ К РАЗМЕРАМ ОТКАТНЫХ ВОРОТ
При проектировании откатных ворот обязательно учитывают размеры пространства необходимого для открытия ворот. Вдоль забора (куда предпологается откатывать полотно) должно быть свободное пространство длиной минимум 1,5 длины проема и шириной, минимум, 0,5 метра (необходимо в том числе для обслуживания ворот, привода).
Если откатные ворота установлены вплотную к строению и скат крыши направлен в сторону ворот, необходимо обеспечить защиту всей конструкции (особенно автоматики) от осадков.





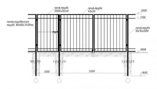
Оптимальная Ширина распашных ворот. Размеры распашных ворот. Оптимальная Ширина въездных ворот
Об этом нужно задуматься сразу, как только настал черёд обустройства въездной зоны. На этом этапе многие допускают главную ошибку — делают въезд, как у соседа, или по общим рекомендациям, без учета конкретной ситуации.
По мнению ПаниМарина, проём шириной 3500 мм слишком неудобен, но многое зависит от угла разворота, с которого заезжает машина.
Хотя есть и противоположное мнение.
А вот у пользователя портала krust четырехметровые распашные ворота, и он хотел бы сделать их ещё шире, но уже поздно.
Итак, сколько людей, столько и мнений. Одни считают, что ширина ворот 3.5-4 метра достаточна, тогда как бывают ситуации, что может не хватить и 6-ти метров. От чего это зависит? Чтобы это понять, нужно ответить на следующие вопросы:
- Какая ширина подъездной дороги.
- Какой транспорт (легковые машины или грузовики) будет заезжать в ворота.
- Под каким углом будут въезжать машины (45 или 90 градусов).
- Есть ли площадка и свободное место для въезда, чтобы покрутиться, или грузовик должен заезжать «с колес».
- Какие планируется ставить ворота: откатные или распашные.
- Сколько места отведено под парковку.
На первый взгляд кажется, что всё это лишнее, и можно взять усреднённое значение в 4 метра и не заморачиваться, т.к. ворота длиной свыше 4000 мм (нестандартные) автоматически приводят к удорожанию всей конструкции въездной зоны.
Ворота и въездная зона на участок — это те вещи, которые нужно сделать один раз и навсегда, т.к. любые переделки бьют по карману.
Важно: конструкция ворот сильно влияет на возможность беспрепятственного въезда. Например, предварительные расчеты показали, что достаточно ширины проема в 4 метра, но надо учесть, что откатные ворота отъезжают в сторону, а у распашных есть створки, которые сильно сужают пространство для маневра
Например, створки в идеале должны открываться на 180 градусов. Если распашные ворота снабжены автоматикой, то привод заужает проём, а кроме этого, автоматика (привод) не позволяет открыть створки более чем на 110 градусов.
Т.е. при одинаковых условиях откатные ворота открывают полный проём, а распашные создают коридор. Также створки у распашных ворот могут открываться наружу или, если позволяет место, внутрь участка. Но это означает, что придется чистить в два раза больше снега — перед воротами и на участке.