Откатные ворота в частном доме. Общие правила выбора комплектующих и фурнитуры в зависимости от веса ворот
- Откатные ворота в частном доме. Общие правила выбора комплектующих и фурнитуры в зависимости от веса ворот
- Ворота в частный дом. Ворота для дома своими руками: поэтапная инструкция с описанием и советами, что можно сделать для загородного дома, 150 фото-идей
- Откатные ворота пошаговая инструкция. Как построить откатные ворота своими руками — пошаговая инструкция с фото, видео, схемами, эскизами и чертежами
- Ворота для гаража. Гаражные ворота — выбираем правильно! Разновидности, плюсы и минусы конструкций, тонкости изготовления своими руками
- Распашные ворота для частного дома. Виды
- Откатные ворота на роликах. Как сделать консольные откатные ворота
- Ворота для дома своими руками. Что понадобится для создания чертежа
Откатные ворота в частном доме. Общие правила выбора комплектующих и фурнитуры в зависимости от веса ворот
Откатные ворота с разными размерами – это, в первую очередь, разный вес изделия. Именно по последнему параметру выбираются комплектующие, у которых отличаются технические и эксплуатационные характеристики. Ниже характеристики фурнитуры для разных ворот консольного типа от компании “ALUTECH”.
1100-1500 кг
Самые тяжелые ворота, которые на частных участках не устанавливаются. Их монтируют на производственных объектах.
Характеристики фурнитуры:
- Ролики. Предлагаемые габаритные размеры: 190х480х175 мм. Диаметр роликов – 100 мм. Здесь учитывается, что первая опора будет выдерживать нагрузку в 3,4 т, вторая в 1,5 т.
- Уловитель нижний, изготовленный из стали толщиною 5 мм. Предлагаемые размеры: 188х153х100 мм.
- Уловитель верхний из стали толщиною 4 мм. Размеры те же.
- Опорная балка. Сделана из стали толщиною 5 мм. Высота и ширина – 130х135 мм.
800-1000 кг
Все те же размеры по порядку:
- Ролики – 100х251х138,5 мм. Диаметр колес – 61 мм.
- Уловитель нижний – толщина стали 4 мм. Размеры: 140х101х95 мм.
- Уловитель верхний – толщина 3,5 мм.
- Опорная балка – толщина 4,5 мм. Размеры высоты и ширины: 89х74.
600-700 кг
Характеристики фурнитуры в том же порядке:
- Ролики – 80х167х112 мм. Диаметр колес – 55 мм.
- Уловитель нижний – толщина металла 3,5 мм. Размеры: 100х82х80 мм.
- Уловитель верхний – толщина 3-3,5 мм.
- Опорная балка – толщина 3,5-4 мм. Высота, ширина: 70х60 мм.
300-500 кг
Характеристики фурнитуры:
- Ролики – 178х90х117,8 мм. Диаметр колес — 43 мм.
- Размеры нижнего уловителя – 100х96х67 мм. Толщина металла – 3 мм.
- Уловитель верхний – толщина 3 мм.
- Опорная балка – толщина стенки 3,6 мм. Размеры 60х55 мм.
Единственное, на что надо обратить особое внимание, это материал, из которых комплектующие изготовлены. Это должна быть высокопрочная сталь, к примеру, марки S355.
Ворота в частный дом. Ворота для дома своими руками: поэтапная инструкция с описанием и советами, что можно сделать для загородного дома, 150 фото-идей
Ворота для дома – это, по сути то, с чего он начинается. Это первый элемент, который встречает гостей и хозяев. От удобства и красоты ворот зависит весь образ участка и строений на нем.

Ворота несут также и охранную функцию, препятствуя проникновению на участок посторонних людей и бродячих животных. Чтобы ворота были удобны и практичны важно разобраться в многообразии и выбрать для себя оптимальную модель.

Классификация ворот для дома
Ворота для частного дома могут устанавливаться в забор, в гараж, в сам дом. Вне зависимости от того, куда устанавливаются ворота, конструкции у них похожи.

Прежде всего ворота делятся между собой по способу открывания створок:
- Распашные, где створки открываются как обычные двери.
- Откатные ворота, где одна створка задвигается за полотно забора.
- Раздвижные, где две створки разводятся в разные стороны.
- Подъемные ворота, где створка поднимается на верх и уходит под потолок навеса или гаража.
- Рулонные ворота, которые по своему принципу похожи на рольставни.
Это основная классификация ворот. Кроме того, ворота различаются по материалам изготовления.

Основа ворот обычно делается из профильной трубы. А материал полотна может быть разным:
- Дерево;
- Профнастил;
- Пластик;
- Поликарбонат;
- Кованые решетки.
Створки ворот в зависимости от того, какой материал используется, створки могут быть сплошными, прозрачными или комбинированными. Здесь выбор зависит от того, хотят ли скрыть хозяева двор от чужих глаз или, наоборот, сделать его визуально более просторным за счет улицы. Сплошные створки дают наибольшую защиту от внешнего вторжения.

Комбинированный вариант предполагает, что в полотне створок присутствуют резные, прозрачные элементы. Такой вариант делает ворота более нарядным и красивым.

- Различаются ворота и по способу управления. Оно может быть ручным, когда их нужно открыть самостоятельно, или автоматическим.
- Ручной способ управления – самый простой и дешевый не только в установке, но и в эксплуатации.
- Такие ворота достаточно лишь смазывать периодически. Автоматика требует большего внимания.

Также ворота различаются и по способу устройства калитки. Если въезд в дом устроен без калитки, то при каждом входе-выходе придется открывать ворота. Это весьма неудобно.
Калитка может обустраиваться отдельно, что займет больше места в общем заборе. Может быть встроена в ворота, тогда калитка неизбежно будет иметь верхние ограничения.

Виды ворот по способу открывания створок
Прежде всего ворота различаются по способы открывания створок, так как от этого зависят большинство дальнейших разновидностей управления и конструкций.

Основные виды ворот по способу открывания:
- Распашные. Самый простой, дешевый и одновременно самый неудобный вид створок. Они могут открываться внутрь, что требует большого пространства во дворе, либо во вне. Створки, которые открываются на внешнюю сторону, могут создавать существенные ограничения по обзору или неудобства при распахивании.
- Откатные ворота. Этот вид позволяет не учитывать место внутри двора или во вне при открытии створок. Также этот способ позволяет сделать проем более узким без потери удобства при въезде. Такая конструкция более сложная, а значит более дорогая. Ее необходимо регулярно чистить от снега, листвы и мусора.
- Раздвижные ворота. Они отличаются от откатных лишь наличием двух створок. Благодаря этому проем таких ворот может быть максимально широким. Однако конструкция требует серьезных вложений сил и последующего ухода, так как необходимо устанавливать выдвижные механизмы с обеих сторон и затем ухаживать за ними. Раздвижная конструкция уменьшает парусность каждой створки, а значит их проще использовать в местности с большими ветрами.
- Подъемные ворота больше подходят для гаражей или домов, так как они ограничивают не только ширину, но и высоту транспортного средства. Также эта конструкция требует установки наиболее сложных, подъемных механизмов. Однако она не нуждается в дополнительных стенах по бокам для отвода створок или в дополнительном пространстве для их распахивания.
- Рулонные ворота похожи в своем устройстве на подъемные. Но здесь створка не задвигается дальше, а складывается в рулон. По конструкции ворота похожи на обычную рольставню. Такой вариант лучше всего подходит для гаражей и ворот с навесом.
Откатные ворота пошаговая инструкция. Как построить откатные ворота своими руками — пошаговая инструкция с фото, видео, схемами, эскизами и чертежами
Виды и принцип работы
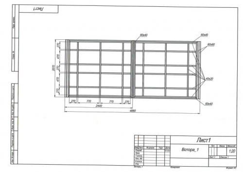
Все разновидности откатных ворот функционируют благодаря роликовым каретками и специальному направляющему рельсу. Механизм обеспечивает не только подвижность полотна, но и передачу нагрузки на несущие балки и опоры. По типу конструкции ворота бывают подвесные, с опиранием на наземный рельс и консольные, то есть с системой крепления на одном из концов.
Подвесные
Такие ворота чаще используют на промышленных предприятиях. Полотно с роликами подвешивают на горизонтальную балку, опирающуюся в трех точках. При движении ворота сдвигаются в сторону как шторы. Все нагрузки воспринимаются несущей конструкцией, которая должна быть достаточно мощной и устойчивой.
Преимущества подвесных ворот — высокий ресурс работоспособности, небольшое пространство для отката. Недостаток — верхний рельс строго ограничивает габариты транспорта, что заставляет ставить высокие столбы. В загородном строительстве такие системы не очень популярны, поскольку требуют достаточно больших затрат материалов и труда.
Но если входная зона оборудована навесом, необязательно делать новые опоры. Можно использовать готовые стойки, а верхнюю балку сконструировать разборной. Тогда для проезда грузовика достаточно снять съемную часть, а затем поставить ее на место.
С опорой на нижний рельс
Эта конструкция проста и надежна. Полотно на роликах перемещается по направляющей, установленной в уровне дороги. Нет несущих балок, вся нагрузка передается на наземный рельс и боковые опоры. Наверху столба закреплен дополнительный ролик для удержания ворот при движении.
Для хорошего скольжения и бесперебойной работы механизма нужно тщательно очищать въезд от снега, льда, мусора, наносимого ветром или колесами автомобилей. Просвет дороги в условиях частной застройки не всегда возможно поддерживать в идеальном состоянии, поэтому откатные ворота с нижним рельсом устанавливают в районах с малоснежной зимой.
Консольные
Конструкции этого типа сложнее в изготовлении, чем другие, но не имеют таких недостатков, как ограничения по высоте или контакт с наземным рельсом. Роликовый механизм и удерживающая его опора расположены сбоку проема и закреплены на отдельном фундаменте. Консольная балка с приваренным к ней полотном движется по роликам. На ответном столбе находятся ловители. От раскачивания ворот удерживает верхнее направляющее устройство.
Чаще всего несущая балка крепится чаще внизу, но бывают разновидности с консолью сверху или посередине. Такое решение удобно, если электропривод зимой часто заметает снегом. Приподняв его над землей, можно избавится от этой проблемы.
По степени механизации
Выделяют два основных вида: механические и с автоматическим приводом.
Механические (ручной откат)
Открываются вручную, и на это тратится много времени. При необходимости такие ворота можно сделать самому.

Есть у этой конструкции плюс ‒ ворота будут работать даже при отсутствии электричества.
Автоматические (с электроприводом)
Движение створок осуществляется за счет работы электромеханизма. Управление выполняется дистанционно с помощью специальной панели, пульта.
Любые механические ворота получится автоматизировать. Но для этого необходимо на этапе строительства забора предусмотреть расположение электрической проводки.

Не рекомендуется ставить на участках, где есть перебои с подачей электроэнергии.
Плюсы и минусы откатных ворот
Главное преимущество — удобство применения. Достаточно широкие ворота можно открыть без затруднений. Нет необходимости в обустройстве большой подъездной площадки, поскольку полотно сдвигается вбок.
Даже при сильном ветре отсутствует риск самопроизвольного закрывания и повреждения автомобиля. К тому же конструкция легко оборудуется электрическим приводом. Не выходя из машины, можно открыть ворота и заехать на участок.
Отдельно о преимуществах консольных откатных ворот:
- не имеют ограничений по высоте;
- внизу остается небольшой просвет, поэтому снег, лед или налетевший песок не затрудняют их работу;
- высокое сопротивление ветровым нагрузкам.
Ролики, обеспечивающие движение полотна, находятся внутри балки, что защищает механизм от внешних воздействий, а также позволяет пользоваться воротами без лишних усилий.
Недостатки ворот-консолей:
- сложность изготовления;
- длина бокового пространства для отката не менее 1,4-1,5 ширины проема.
Если нет возможности обеспечить необходимый откат, консольным воротам некуда сдвигаться. Установить их на коротком участке не удастся.
Ворота для гаража. Гаражные ворота — выбираем правильно! Разновидности, плюсы и минусы конструкций, тонкости изготовления своими руками
Гаражные ворота давно перестали быть только средством противоугонной защиты. Сегодня, кроме декоративных элементов, они также различаются по методам открытия.
Рассмотрим наиболее распространённые материалы для ворот и оценим надёжность каждого механизма открытия, так как это важный вопрос для будущего владельца гаража.
Металлические или деревянные ворота — что лучше?
Традиционно для гаражных ворот используют либо дерево, либо металл. Чаще всего выбирают металл, так как он более надёжен.

Дерево же склонно воспламеняться, служит меньшее кол-во лет и сильнее подвержено коррозии.
- Из металлов берут профнастил или нержавеющую сталь. Они прочные и дешевле других аналогов.
- Также производители выпускают на них гарантию сроком от 15 лет.
- Выбор материала напрямую зависит от множества факторов, среди которых основным будет безопасность.

Если район охраняется, то можно позволить не сильно утруждаться защитой и обратить больше внимания на декорирование. Особым вниманием пользуются въездные кованые ворота.
Современное производство и автоматика позволяют создавать их эстетически красивыми и комфортными в использовании.

Механизмы открытия\закрытия ворот в гараж
6 видов самых популярных механизмов:
- Распашные ворота — Обыкновенные двери, только для гаражей шире и выше. К ним можно подключить автоматику, которая сделает их ещё безопаснее и комфортнее. Самый распространённый тип ворот. Популярность объясняется простотой монтажа и лёгкостью ухода. Перед воротами должно быть достаточное место для их открытия.
- Откатные ворота — Уходят в сторону с помощью роликового механизма. Достойная альтернатива распашным воротам, если нет большого пространства перед гаражом. Также не надо будет расчищать снег перед выездом. Минусом будет цена таких ворот и необходимость пространства в стороне от гаража для их открытия.
- Складчатые ворота — Принцип работы как у жалюзей — складываются гармошкой вертикально или горизонтально. Цена таких ворот в среднем по рынку невысока. Но назвать их надёжными нельзя — створки выбиваются с пары ударов. Такие ворота можно устанавливать на хорошо охраняемых территориях, где они могут радовать владельца своей необычностью и декором.
- Подъёмно-поворотные — Тоже один из классических видов ворот. Цельная створка обеспечивает взломостойкость и надёжность. Но она же является их минусом — если часть створки повредится, то починить будет невозможно. Придётся менять створку целиком. Такие ворота лучше не ставить в холодном климате — гараж будет холодным, а утепление не принесёт большого смысла.
- Секционные ворота — Считаются самыми надёжными и тёплыми среди прочих. Панель поднимается вертикально, а затем складывается горизонтально к потолку. Эти бесшумные ворота также оставляют пространство перед гаражом и нет надобности расчищать снег перед ними.
Распашные ворота для частного дома. Виды
Разновидностей распашных ворот сегодня насчитывается огромное множество, это объясняется бурным развитием строительных технологий, производством инновационных материалов с необходимыми техническими характеристиками, широким ассортиментом фактур и обширной цветовой палитрой, способной удовлетворить самый взыскательный вкус.
Разделяются они по количеству створок и бывают одностворчатые и двухстворчатые.


Могут быть и со встроенной в одну из створок калиткой, это экономит пространство в небольших помещениях (гаражах, небольших территориях).

Если проезд необходимо сделать широким, то используют складные ворота. Их складывающиеся пополам или гармошкой створки не загораживают территорию. Можно сделать складчатой и только одну из них.

По внешнему оформлению различают односторонние, декорированные только с лицевой стороны двери и двусторонние, имеющие две украшенные стороны.

По материалам изготовления ворота отличаются металлические, деревянные – тяжелые и основательные, из металлопрофиля, поликарбоната, сэндвич-панелей – более легкие. Бывают прозрачные из кованых элементов либо из комбинаций различных материалов.
Современные въезды различаются по способу управления: механические, которые нужно открывать руками, и автоматические – с электроприводом, они позволяют водителю открывать и закрывать ворота, не выходя из автомобиля.


Любые распашные ворота, в том числе самодельные, можно оборудовать комплектом автоматизации.
По назначению и области применения различают ворота производственные, въездные, уличные, которые ограничивают проезд машин во дворы многоэтажных домов и обычно управляются автоматикой. На расположение въезда также влияют противопожарные нормативы и требования к безопасности.


Откатные ворота на роликах. Как сделать консольные откатные ворота
Эта конструкция хороша тем, что над проездом нет балок. Но она — самая дорогая в устройстве. Дело не столько в системе роликов, сколько в необходимости устройства фундамента с металлическими закладными, к которым затем будет крепиться консольная балка. Если столбы уже есть, фундамент заливается перед ним и вдоль забора на длину технического выноса, который необходим для компенсации нагрузки, создаваемой полотном.

Комплектация консольных ворот
Даже если делают консольные откатные ворота своими руками, комплект, состоящий из направляющей балки, роликов, концевых роликов и уловителей покупают обычно в фирме. Все запчасти рассчитываются исходя из размеров полотна, материала каркаса и типа обшивки: вес имеет существенное значение. Потому желательно со всеми этими параметрами определиться заранее.
Зная длину несущей балки, вы сможете рассчитать необходимый размер фундамента. По типу — это ленточный фундамент, котлован под него копают ниже глубины промерзания грунта (для каждого региона она своя), в который закладывают армированные опоры под пластины с роликами, а также устанавливают стойки. К этим стойкам затем крепится комплект верхних роликов, удерживающих полотно и не дающих ему раскачиваться.
Как рассчитать фундамент под крепление для консольной балки
Сложного при расчете ничего нет. Фундамент по длине равен почти половине длины пролета. Если пролет 4 метра (ширина проезда или расстоянием между столбами), то фундамент должен быть 1,8-2 м. Ширина его 40-50 см, глубина — ниже глубины промерзания грунта для региона.

Фундамент под консольную балку при строительстве откатных ворот
Котлован выкапывают еще на 10-15 см глубже — под гравийно-песчаную подушку. Этот фундамент армируют (по типу ленточного ), в верхней его части к арматуре приваривается швеллер (18 или 20) и все это заливают бетоном. Швеллер выставляется в «нулевой» уровень, то есть он должен стоять на одном уровне с уровнем грунта или материалом, которым отделан двор.

Подготовленное армирование и закладной швеллер
Есть более дешевый и быстрый вариант, но по надежности он уступает описанному выше. В грунт вкручивают три винтовых металлических сваи, к ним приваривают швеллер.
Установка роликовых опор
К закладному швеллеру привариваются шпильки, к ним потом на болтовых соединениях крепятся платформы с роликами. Иногда можно встретить варианты, когда платформы приварены сразу к закладной. Это неправильно. Существует довольно большая вероятность того, что фундамент или столб забора даст усадку. Даже небольшое смещение — и ваши ворота работать не будут. Если ролики со шпилек можно снять, шпильки переварить и все собрать на место, то как корректировать если платформа приварена? Срезать? Сложно, долго, без гарантий. Так что лучше в этом случае делать все по правилам.

Пример крепления роликовых площадок
При покупке обратите внимание на роликовые каретки и на сами ролики. Это обязательно закрытые подшипники качения. Они обычно располагаются в два ряда по 4 штуки в каждом. Смазка в них должна быть морозостойкой — нижний предел температур -60°C. Осмотрите платформу, на которой они крепятся. Она должна быть стальной, литой, хорошего металла с оцинкованной поверхностью, покрыта защитной смазкой.

На ролики накатывается опорная балка, потому основную нагрузку несут они
Покатайте ролики. Все должны кататься без усилий, и не должны иметь люфта (не должны шататься из стороны в сторону). Тогда можно быть уверенным, что ворота будут ездить легко и откатной механизм будет работать продолжительное время (некоторые фирмы дают гарантию 10 лет). Ведь большая часть нагрузки приходится именно на ролики, потому их качество ключевой момент, как и сбалансированная конструкция полотна.
Остальные этапы монтажа более понятно будут описаны в фото-отчете: ворота собраны самостоятельно, без привлечения специалистов.
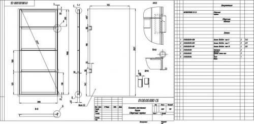
Ворота для дома своими руками. Что понадобится для создания чертежа
Главное из того, что понадобится для создания качественного чертежа ворот (кроме бумаги, а также пишущих, или чертёжных, принадлежностей), это время.

Для того чтобы составляемый чертёж был максимально качественным и давал максимально качественное представление о будущем объекте, а также обо всех подробностях и деталях будущего строительства, следует внимательно изучить все варианты такого строительства.

Проще всего, изучать это с помощью тех материалов, которые в изобилии есть в свободном доступе в сети интернет (также, при определении дизайна будущих ворот, следует применить свою собственную фантазию).

Для каких ворот нужен чертёж
Перед тем, как начинать строительство такого объекта, как ворота, нужно оставить план такого строительства, в который обязательно входит чертёж ворот.

Ни они, будь то откатные или распашные ворота, а также несмотря на то, из какого материала они изготовлены (дерево, профильный лист, обычный листовой металл, или ажурные кованые прутья).
- Для того чтобы сделать грамотный чертёж будущих ворот, потребуется изучив варианты строительства таких объектов (которые применяются в данное время) а также то, из каких именно материалов они большей частью строятся, ну и конечно то, какой внешний вид сейчас в моде.
- Ведь ворота, это то, что первым видит всякий посетитель, а также то, что он видит последним. Поэтому, кроме всего прочего, они должны быть красивыми.
- Поэтому, нужно определиться не только с их конструкцией будущих ворот, но и с тем, какой внешний вид они должны иметь.
- Ведь от этого зависит не только и не столько то, какое впечатление возникнет у посетителей о воротах, но также и то, какое именно мнение, они сложат об имидже владельца.
Когда и для чего нужен чертёж
Чертёж, пригодится вам не только при создании откатных ворот, но и при создании любой другой, даже самой простой их конструкции.

Таким образом, качественный чертёж, способен значительно облегчить процесс будущего строительства ворот (как, впрочем, и любого другого объекта).

Чертёж ворот, должен включать в себя, все детали будущего сооружения, а также все основные детали. Такой подробный чертёж будущих ворот, сильно облегчит их строительство.

К тому же, подробный чертёж ворот, позволит увидеть то, насколько хорошо, данная конструкция ворот впишется в окружающий ландшафт.
- Итак, создание подробного чертежа ворот, это один из важнейших шагов в их постройке.
- Чертёж, должен включать в себя, как чертёж самих ворот, так и чертежи всех объектов, которые будут их окружать.
- Таким образом, создание чертежа, является не просто, одним из важных действий при постройке ворот, по также и тем действием, которое способно сильно упростить их постройку, а также, поможет им гармонично вписаться в окружающую среду.

Множество проблем, а также возможных ошибок станут видны после того, как будет составлен подробный чертёж будущих ворот (или любого другого объекта).
Что обязательно нужно отобразить на чертеже
На чертеже, должны быть отображены все наиболее важные узлы будущих ворот, а также все те объекты, которые будут их окружать. Это поможет не только избежать многих ошибок при строительстве, но и гармонично вписать ворота в окружающий пейзаж, а также обеспечить их полную функциональность.
- То есть их полное открывание и закрывание, при этом на пути не будет оказываться никаких препятствий.
- Кроме этого если предполагается оснащение ворот любыми средствами автоматики, то при разработке их чертежа, необходимо предусмотреть и отобразить пути прокладки всех коммуникаций (как силовых, так и информационных, то есть кабелей от разнообразных датчиков).
- Это тоже может помочь избежать одной из наиболее распространённых ошибок, а именно прокладки кабелей там, где они будут мешать движению ворот при их открывании и закрывании.
- И избавит вас от изменения маршрута прокладки кабелей в процессе выполнения строительных работ, или даже после их завершения.

Таким образом, детальная разработка чертежа, является одним из важнейших этапов строительства любого объекта, в том числе и ворот, который поможет избежать ошибок на более поздних этапах строительства.

Любые ошибки, которые могут возникнуть при возведении ворот, гораздо проще предотвратить на этапе создания чертежа, нежели устранять их при строительстве, а также намного проще, чем устранять их последствия после постройки ворот.
Плюсы тщательного выполнения чертежа
К тому же на этой стадии, гораздо проще внести изменения в их конструкцию, нежели сделать это на более поздней стадии, стадии строительства, а тем более после её завершения.
