Как сделать ворота своими руками. Как сделать ворота — пошаговая инструкция, как сделать своими руками быстро и просто ворота (20 фото)
- Как сделать ворота своими руками. Как сделать ворота — пошаговая инструкция, как сделать своими руками быстро и просто ворота (20 фото)
- Как сделать ворота своими руками из дерева. Делаем ворота
- Красивые ворота своими руками. Что понадобится для создания чертежа
- Ворота своими руками дешево и красиво. Ворота для дома своими руками: поэтапная инструкция с описанием и советами, что можно сделать для загородного дома, 150 фото-идей
- Как сделать ворота своими руками из профиля. Установка столбов под ворота
- Сварные ворота своими руками. Сварные ворота, схема изготовления
- Ворота своими руками из металла. Особенности изготовления
Как сделать ворота своими руками. Как сделать ворота — пошаговая инструкция, как сделать своими руками быстро и просто ворота (20 фото)
Ворота в частном загородном доме считаются не таким роскошным элементом экстерьера помещения, как всем кажется на первый раз. Существует множество моделей на любой вкус и бюджет, а главное, что этот элемент можно собрать своими руками.
Какими бывают ворота, из каких материалов изготавливаются — обо всех тонкостях поговорим в этой статье.
Виды ворот для вашего дома

Наверняка вы уже видели множество вариантов, проезжая по городу и некоторые из них несомненно вас заинтересовали. Но поверьте, это лишь малая часть того, что популярно в мире.
В нашей стране в большей степени делается акцент на уют для себя самого, нежели на красоту.
С нашим климатом и проезжими частями не всегда удаётся поставить ворота, которые не вызовут проблем при эксплуатации. Поэтому какие ворота желаем поставить, разберёмся поподробнее.
Как сделать ворота своими руками из дерева. Делаем ворота

Проём для створок
Начнём с проёма – безусловно, вы оставили его при строительстве помещения, но теперь вам нужно сделать коробку, которая будет рамой для ваших деревянных ворот , так что вы можете делать её из бруса.
Для стоек по сторонам b1и b2вам придётся использовать профиль с поперечным сечением не менее 100×100 мм, так как на эти части коробки ляжет основная нагрузка, а вот перемычку между ними можно будет сделать из бруса сечением 100×50 мм.
Комли опор нужно вкопать в грунт и залить бетоном, но кроме этого их ещё нужно будет зафиксировать к участкам стены b1и b2для создания дополнительной жёсткости. Точно так же вам нужно будет зафиксировать перемычку к притолоке – для этого можно использовать длинные болты сечением 14 мм с пластиковыми дюбелями (для кирпичных или блочных сооружений) или длинные саморезы.
Буква П, которая получается для коробки, должна быть установлена строго по уровню – вертикальному и горизонтальному, чтобы створки ворот точно подходили при закрывании. По периметру коробки нужно будет прикрутить притворную планку – для этого можно использовать брусок 40×40 мм или 50×50 мм – он перекроет зазор, который непременно будет оставаться в закрытом положении.

Подборка досок для щита
Готовый проём, с установленной там коробкой, нужно замерить — деревянные распашные ворота своими руками должны получиться меньше на 10 мм в каждую сторону – этот зазор будет служить деформационным швом, так как древесина будет набухать при сырой погоде.
Точно такой же зазор нужно будет оставлять между створками, а чтобы там не было щели. На одну из половинок прикручивают притворную планку. Как мы уже говорили, сборку щита лучше всего производить из шпунтованной доски, но при этом его лучше делать на 50-60 мм больше в каждую сторону, а лишнее обрезать ручной дисковой пилой или, в крайнем случае, ножовкой.
Толщина доски здесь будет зависеть только от вашего выбора, так как сделать ворота из дерева своими руками можно любой толщины, но при этом, лучше не использовать материал менее 25 мм, чтобы створка не прогибалась, но и не более 40-50 мм, иначе они будут слишком тяжёлыми.
Доски между собой сгоняйте киянкой, чтобы при вхождении шипа в паз не оставалось зазора, но вы также можете использовать доску с односторонним шипом, но при их сборке вам понадобится ровная площадка. Для создания ровной площадки вы можете задействовать такие же доски или брус, сделав из них раму, которая по периметру будет меньше створки, так вы сможете делать щит на ровном месте.
Примечание. В тех случаях, когда используется стыковка в «гладкую фугу», делаете из досок мебельный щит, склеивая их между собой ПВА. Но здесь основной проблемой будут струбцины, так как створки достаточно широкие. Но эти приспособления можно сделать своими руками из обычной верёвки, используя для стягивания петли какой-либо металлический стержень или брусок.

Окантовка щита
После сборки щита разметьте его периметр, чтобы все углы получились точно 90⁰ удобнее всего для этого использовать длинный строительный угольник – отклонений от прямого угла на створке не должно быть вообще.
После расчерчивания, для того чтобы убедиться в непогрешимости своих расчётов, замеряйте диагонали – максимально допустимая разница ±2 мм, но и таких отклонений лучше всего избегать.
Если с периметром всё в порядке, то прикрутите саморезами окантовку, как это показано на верхнем фото – для таких рёбер жёсткости можно использовать ту же доску, из которой сделан щит, только предварительно распустить её по ширине на полосы по 70-80 мм.

Треугольники придадут створке жёсткость
Теперь перейдём к треугольникам и будем делать их из тех же планок, из которых было сделано обрамление, а как это осуществить на практике – хорошо видно на верхней фотографии. Сначала прикладываете одну диагональ и размечаете места среза, затем подрезаете лишнее и прикручиваете её саморезами.
После этого поверх первой, прикладываете вторую диагональ и отмечаете место пересечения, потом разрезаете эту планку пополам и делаете пересекающее ребро жёсткости из двух половинок, прикручивая их по отдельности.
Примечание. Если вы хотите как-то раскрасить створки, то лучше покрасьте щит отдельно, а планки отдельно. Только рейки сначала подрежьте по размерам, чтобы они точно подходили к месту установки.

На створках использованы петли типа «стрела»
Даже если вы производили сборку щитов из дюймовой доски, они всё равно будут тяжёлыми и обычные навесы здесь не подойдут – слишком велика нагрузка на отрыв и нужна большая площадь для фиксации.
Поэтому, лучше всего использовать петли типа «стрела», которые вы видите на гаражных воротах на верхней фотографии. Они не только надёжно будут удерживать массу створок, но и изменят эстетичный вид гаража в лучшую сторону, хотя их цена не так уж и велика.
Красивые ворота своими руками. Что понадобится для создания чертежа
Главное из того, что понадобится для создания качественного чертежа ворот (кроме бумаги, а также пишущих, или чертёжных, принадлежностей), это время.

Для того чтобы составляемый чертёж был максимально качественным и давал максимально качественное представление о будущем объекте, а также обо всех подробностях и деталях будущего строительства, следует внимательно изучить все варианты такого строительства.

Проще всего, изучать это с помощью тех материалов, которые в изобилии есть в свободном доступе в сети интернет (также, при определении дизайна будущих ворот, следует применить свою собственную фантазию).

Для каких ворот нужен чертёж
Перед тем, как начинать строительство такого объекта, как ворота, нужно оставить план такого строительства, в который обязательно входит чертёж ворот.

Ни они, будь то откатные или распашные ворота, а также несмотря на то, из какого материала они изготовлены (дерево, профильный лист, обычный листовой металл, или ажурные кованые прутья).
- Для того чтобы сделать грамотный чертёж будущих ворот, потребуется изучив варианты строительства таких объектов (которые применяются в данное время) а также то, из каких именно материалов они большей частью строятся, ну и конечно то, какой внешний вид сейчас в моде.
- Ведь ворота, это то, что первым видит всякий посетитель, а также то, что он видит последним. Поэтому, кроме всего прочего, они должны быть красивыми.
- Поэтому, нужно определиться не только с их конструкцией будущих ворот, но и с тем, какой внешний вид они должны иметь.
- Ведь от этого зависит не только и не столько то, какое впечатление возникнет у посетителей о воротах, но также и то, какое именно мнение, они сложат об имидже владельца.
Когда и для чего нужен чертёж
Чертёж, пригодится вам не только при создании откатных ворот, но и при создании любой другой, даже самой простой их конструкции.

Таким образом, качественный чертёж, способен значительно облегчить процесс будущего строительства ворот (как, впрочем, и любого другого объекта).

Чертёж ворот, должен включать в себя, все детали будущего сооружения, а также все основные детали. Такой подробный чертёж будущих ворот, сильно облегчит их строительство.

К тому же, подробный чертёж ворот, позволит увидеть то, насколько хорошо, данная конструкция ворот впишется в окружающий ландшафт.
- Итак, создание подробного чертежа ворот, это один из важнейших шагов в их постройке.
- Чертёж, должен включать в себя, как чертёж самих ворот, так и чертежи всех объектов, которые будут их окружать.
- Таким образом, создание чертежа, является не просто, одним из важных действий при постройке ворот, по также и тем действием, которое способно сильно упростить их постройку, а также, поможет им гармонично вписаться в окружающую среду.

Множество проблем, а также возможных ошибок станут видны после того, как будет составлен подробный чертёж будущих ворот (или любого другого объекта).
Что обязательно нужно отобразить на чертеже
На чертеже, должны быть отображены все наиболее важные узлы будущих ворот, а также все те объекты, которые будут их окружать. Это поможет не только избежать многих ошибок при строительстве, но и гармонично вписать ворота в окружающий пейзаж, а также обеспечить их полную функциональность.
- То есть их полное открывание и закрывание, при этом на пути не будет оказываться никаких препятствий.
- Кроме этого если предполагается оснащение ворот любыми средствами автоматики, то при разработке их чертежа, необходимо предусмотреть и отобразить пути прокладки всех коммуникаций (как силовых, так и информационных, то есть кабелей от разнообразных датчиков).
- Это тоже может помочь избежать одной из наиболее распространённых ошибок, а именно прокладки кабелей там, где они будут мешать движению ворот при их открывании и закрывании.
- И избавит вас от изменения маршрута прокладки кабелей в процессе выполнения строительных работ, или даже после их завершения.

Таким образом, детальная разработка чертежа, является одним из важнейших этапов строительства любого объекта, в том числе и ворот, который поможет избежать ошибок на более поздних этапах строительства.

Любые ошибки, которые могут возникнуть при возведении ворот, гораздо проще предотвратить на этапе создания чертежа, нежели устранять их при строительстве, а также намного проще, чем устранять их последствия после постройки ворот.
Плюсы тщательного выполнения чертежа
К тому же на этой стадии, гораздо проще внести изменения в их конструкцию, нежели сделать это на более поздней стадии, стадии строительства, а тем более после её завершения.

Ворота своими руками дешево и красиво. Ворота для дома своими руками: поэтапная инструкция с описанием и советами, что можно сделать для загородного дома, 150 фото-идей
Ворота для дома – это, по сути то, с чего он начинается. Это первый элемент, который встречает гостей и хозяев. От удобства и красоты ворот зависит весь образ участка и строений на нем.

Ворота несут также и охранную функцию, препятствуя проникновению на участок посторонних людей и бродячих животных. Чтобы ворота были удобны и практичны важно разобраться в многообразии и выбрать для себя оптимальную модель.

Классификация ворот для дома
Ворота для частного дома могут устанавливаться в забор, в гараж, в сам дом. Вне зависимости от того, куда устанавливаются ворота, конструкции у них похожи.

Прежде всего ворота делятся между собой по способу открывания створок:
- Распашные, где створки открываются как обычные двери.
- Откатные ворота, где одна створка задвигается за полотно забора.
- Раздвижные, где две створки разводятся в разные стороны.
- Подъемные ворота, где створка поднимается на верх и уходит под потолок навеса или гаража.
- Рулонные ворота, которые по своему принципу похожи на рольставни.
Это основная классификация ворот. Кроме того, ворота различаются по материалам изготовления.

Основа ворот обычно делается из профильной трубы. А материал полотна может быть разным:
- Дерево;
- Профнастил;
- Пластик;
- Поликарбонат;
- Кованые решетки.
Створки ворот в зависимости от того, какой материал используется, створки могут быть сплошными, прозрачными или комбинированными. Здесь выбор зависит от того, хотят ли скрыть хозяева двор от чужих глаз или, наоборот, сделать его визуально более просторным за счет улицы. Сплошные створки дают наибольшую защиту от внешнего вторжения.

Комбинированный вариант предполагает, что в полотне створок присутствуют резные, прозрачные элементы. Такой вариант делает ворота более нарядным и красивым.

- Различаются ворота и по способу управления. Оно может быть ручным, когда их нужно открыть самостоятельно, или автоматическим.
- Ручной способ управления – самый простой и дешевый не только в установке, но и в эксплуатации.
- Такие ворота достаточно лишь смазывать периодически. Автоматика требует большего внимания.

Также ворота различаются и по способу устройства калитки. Если въезд в дом устроен без калитки, то при каждом входе-выходе придется открывать ворота. Это весьма неудобно.
Калитка может обустраиваться отдельно, что займет больше места в общем заборе. Может быть встроена в ворота, тогда калитка неизбежно будет иметь верхние ограничения.

Виды ворот по способу открывания створок
Прежде всего ворота различаются по способы открывания створок, так как от этого зависят большинство дальнейших разновидностей управления и конструкций.

Основные виды ворот по способу открывания:
- Распашные. Самый простой, дешевый и одновременно самый неудобный вид створок. Они могут открываться внутрь, что требует большого пространства во дворе, либо во вне. Створки, которые открываются на внешнюю сторону, могут создавать существенные ограничения по обзору или неудобства при распахивании.
- Откатные ворота. Этот вид позволяет не учитывать место внутри двора или во вне при открытии створок. Также этот способ позволяет сделать проем более узким без потери удобства при въезде. Такая конструкция более сложная, а значит более дорогая. Ее необходимо регулярно чистить от снега, листвы и мусора.
- Раздвижные ворота. Они отличаются от откатных лишь наличием двух створок. Благодаря этому проем таких ворот может быть максимально широким. Однако конструкция требует серьезных вложений сил и последующего ухода, так как необходимо устанавливать выдвижные механизмы с обеих сторон и затем ухаживать за ними. Раздвижная конструкция уменьшает парусность каждой створки, а значит их проще использовать в местности с большими ветрами.
- Подъемные ворота больше подходят для гаражей или домов, так как они ограничивают не только ширину, но и высоту транспортного средства. Также эта конструкция требует установки наиболее сложных, подъемных механизмов. Однако она не нуждается в дополнительных стенах по бокам для отвода створок или в дополнительном пространстве для их распахивания.
- Рулонные ворота похожи в своем устройстве на подъемные. Но здесь створка не задвигается дальше, а складывается в рулон. По конструкции ворота похожи на обычную рольставню. Такой вариант лучше всего подходит для гаражей и ворот с навесом.
Как сделать ворота своими руками из профиля. Установка столбов под ворота
Представьте створку ворот, навешенную на столбе, как флаг с жёстким полотном. Здесь действует обычное правило рычага, точка опоры которого расположена близко к поверхности земли. При этом нагрузка на «флагшток» возрастает соразмерно с удалением от оси, то есть чем длиннее створка, тем сильнее будет выворачивать столб. Поэтому примем за правило, что подземная часть столба не должна быть меньше надземной, а если длина створки более чем в полтора раза больше высоты, разница этого расстояния добавляется к глубине заглубления.
Способ бетонирования опоры. 1. Опора — стальная труба. 2. Верхний блок фундамента с надземной частью. 3. Арматурный каркас. 4. Забутовка. 5. Нижний блок фундамента. 6. Арматурный каркас. 7. Песчаная подушка
В качестве столбов обычно используют круглые стальный трубы. Нельзя сказать, что это самый надёжный вариант, но для легковесных конструкций, коими ворота из профнастила и являются, он вполне уместен. Если ворота утяжелены, например, ковкой, следует позаботиться об усилении столба ребром жёсткости, приварив отрезок уголка с внешней стороны, где начинается каркас забора.
Проще всего использовать готовые стальные стойки для забора. В качестве опоры для ворот достаточно взять стойку на один или два размера больше
Более чем 99% своего жизненного срока ворота проводят в закрытом состоянии. Это значит, что смещение вектора силы при открывании учитывать не обязательно, а вот в плоскости ворот столбы для навески должны иметь максимальную жёсткость.
Лунки под столбы бурят шириной в 5–7 диаметров используемой трубы. На нижнем конце труб и на участке в 20–25 см сразу под поверхностью земли нужно предварительно сделать навивку 10 мм профильной арматуры для лучшего сцепления с бетоном. После на дно лунок нужно высыпать по ведру мелкого щебня и установить трубы, выровняв их в общей плоскости забора, используя шнуровку.

Сначала бетоном заливается только основание столба высотой около 40 см. Трубы тщательно выравниваются в общей плоскости и по высоте, в надземной части их временно укрепляют деревянными подпорками. На застывание бетона нужно отвести трое суток и обеспечить полную неподвижность столбов на этот период. После этого лунка засыпается щебнем до уровня в 35–40 см от поверхности, забутовка тщательно утрамбовывается.
Верхнюю часть столбов нужно заливать после предварительного расширения котлована до квадрата размерами 40х40 см и сооружения опалубки для надземной части высотой около 5 см. Учтите, что навешивать ворота можно только после набора бетоном максимальной прочности, то есть через 3–4 недели.
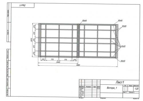
Сварные ворота своими руками. Сварные ворота, схема изготовления
На сегодня вариант изготовления ворот своими руками из профилированной трубы и облицовки из профнастила можно уверенно назвать наиболее оптимальным по затратам и полученному качеству, но при одном условии:правильно подобрать материал и режимы, позволяющие сварить с максимальной прочностью шва.
Понятно, что для изготовления воротной конструкции мало знать, как сварить ворота, потребуется выполнить несколько не менее важных этапов:
- Максимально точно по размеру раскроить трубу заготовки;
- Изготовить сварочный стапель или стол увеличенных размеров, чтобы подготовленный к сборке набор резаного профиля можно было бы сварить не «на коленке», а в нормальных условиях;
- Подобрать качественный сварочный аппарат, позволяющий сварить тонкий металл с максимальным контролем качества шва.
К сведению! Чтобы проще было сварить тонкие стенки профилированной трубы, специалисты советуют использовать сварочные щитки со стеклом мгновенного затемнения. Даже при отсутствии опыта варить металл и удерживать зазор между электродом и швом с таким «Хамелеоном» намного проще.
Как самому сварить каркас ворот
Все варианты ворот на каркасной основе варятся по одной схеме. Первоначально по размерам, указанным в чертеже, необходимо вырезать отдельные куски профиля для каждой стороны каркаса. Лучше всего резать заготовку тонким отрезным кругом с помощью угловой машинки. Чтобы правильно отрезать профиль, первоначально откладываем с помощью слесарной линейки необходимый размер и отмечаем линию реза тонкой риской закаленным острием разметчика. Далее с помощью слесарного уголка обводим линию реза вокруг тела трубы. В этом случае можно резать профиль по контуру, заглубляя тонкий диск на 2- 3 толщины стенки трубы.
Чтобы сварить все элементы рамы так, чтобы они располагались в одной плоскости, потребуется сделать стапель или подставку под каркас будущих ворот. Лучше всего для этих целей подойдет жесткая ровная поверхность железобетонной плиты или, сбитая из досок и крытая листовым металлом, деревянная столешница верстака.
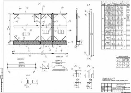
Ворота своими руками из металла. Особенности изготовления
У каждого типа ворот есть свои особенности в конструкции. Прежде чем приступать к процессу изготовления, следует изучить схемы строения полотна и проработать план действий. Распашные ворота не относятся к числу исключений в данном вопросе. Сделать своими руками ворота распашного типа из профнастила под силу даже новичку, который ранее не работал с металлическими изделиями.
Чтобы изготовить изделия, вам потребуются навыки по работе с буром, сваркой, шуруповертом, строительной рулеткой и болгаркой. Конструкция изделий создана таким образом, что эксплуатация свободного пространства должна сопровождаться максимальной функциональностью. За надежность ворот отвечают блоки роликов, которые располагаются в нижней части профильной балки и двигаются за счет открытия или закрытия створок.


Есть несколько особенностей ворот такого типа, которые отличают их от других конструкций:
- при сборке полотна используются кнопочные угловые соединители, благодаря которым можно исключить провисание створок во время использования;
- крепежи материала скрываются, тем самым сохраняют декоративные свойства ворот. Также такое решение не допускает попадания посторонних предметов в пространство между профилем;
- крепление створок производится при помощи трехсекционных петель. Детали позволяют продлить срок службы конструкции.


Изучая чертежи стандартного полотна, изготовленного из профлиста, вы сможете заметить, что в качестве основы конструкции используется каркас из металлического профиля квадратной формы. В качестве альтернативы применяется толстостенная труба, диаметр которой составляет 30 мм.
Чтобы усилить створки, используется металлическая прожилина. Она должна располагаться горизонтально. Подобное усиление позволяет удерживать геометрию полотна.

Закрепить створки вы сможете при помощи электросварки или саморезов по металлу. Так как профлист легкий, для него будет достаточно двух крепких петель с диаметром в 20 мм. В роли несущей опоры могут выступать трубы из металла диаметром в 60-100 мм.
Крепление воротных створок осуществляется на основе забора, который присутствует на участке. Если вы планируете установку кирпичной изгороди, предусмотрите заранее монтаж закладных швов между кирпичами . К ним будут привариваться навесные опоры.
