Как правильно сварить ворота из профильной трубы. Используемые материалы и их свойства
- Как правильно сварить ворота из профильной трубы. Используемые материалы и их свойства
- Красивые ворота из профильной трубы. Делаем фундамент
- Ворота из профильной трубы и профнастила. Основные достоинства
- Ворота из профильной трубы 40х20 своими руками. Как изготовить своими руками ворота из профильной трубы?
- Какую профильную трубу использовать для ворот. Выбираем профильную трубу
- Ворота из круглой трубы своими руками. Нюансы установки на опоры разного сечения
Как правильно сварить ворота из профильной трубы. Используемые материалы и их свойства
Ворота делают из разных профилей. Выбор зависит от размера и веса створок.
Профильная труба
Наиболее прочный вариант. Применяется в тех случаях, когда обшивкой служит профнастил или стальной лист. Чаще всего используется профтруба сечением 40х20х2 мм или 60х30х2 мм.
Ворота на гараж делают только из этого материала.
Металлические уголки
Более дешевый и менее прочный вариант. Из уголка делают ворота на забор с обшивкой из дерева или поликарбоната. Используется равнополочный профиль сечением 50х50х4 мм.
Евроштакетник для забора
Данная разновидность обшивки для ворот обладает рядом преимуществ:
- долговечностью;
- привлекательным видом;
- прочностью;
- малым весом;
- низкой парусностью.
Металлоштакетник
Евроштакетник представляет собой узкие полосы профилированного металла, покрытые цветным полимером. При открывании ворот пользователь часто надавливает на ламели либо берется за них.
Это обуславливает повышенные требования к прочности и безопасности:
- П-образное или полукруглое сечение.
- Высота профиля – 15-20 мм.
- Ширина – не менее 120 мм.
- Большое количество ребер жесткости.
- Стойкое полимерное покрытие – пурал или матовый полиэстер.
- Завальцованные (загнутые) кромки. Без этого о ламель можно порезаться, поскольку ее толщина составляет всего 0,5 мм.
Привлекательный вид имеет евроштакетник с текстурированным полимерным покрытием Printech. Оно имитирует рисунок, характерный для древесины.
Недостаток такой обшивки состоит в том, что она просматривается.
Красивые ворота из профильной трубы. Делаем фундамент
Первый шаг. Отмечаем места для установки вертикальных опор. Всего таких стоек будет 3: одна для крепления калитки и пара для монтажа створок.
Второй шаг. Выкапываем ямы диаметром порядка 20-25 см (в зависимости от размеров выбранных стоек, об этом далее) для установки опор. Глубину ям рассчитываем так, чтобы она составляла примерно 30-35% от высоты надземной части опор. Учитываем, что высота полотна ворот обычно делается на 50 см меньше высоты опор.
Благодаря такому запасу будет обеспечен необходимый 20-30-сантиметровый промежуток между землей и нижним краем створок, а остальной запас по желанию владельца можно будет использовать для монтажа различных декоративных элементов вверху конструкции.
Третий шаг. Засыпаем дно каждого углубления 10-15-сантиметровым слоем щебенки. Тщательно утрамбовываем подушку.
Четвертый шаг. Готовим раствор для заливки опор. Берем часть цемента М400, пару частей песка и 4 части мелкой щебенки. Смешиваем сухие ингредиенты, постепенно добавляя к ним воду до получения смеси вязкой консистенции.
Пятый шаг. Вставляем в ямы опорные стойки. Их можно делать из разных материалов, а именно:
- бруса сечением 15х15 см;
- круглого бревна диаметром от 20 см;
- швеллерной балки со стенками толщиной не менее 1,5 см;
- профильной трубы сечением 8х10 см со стенками не тоньше 7 мм.

Вставляем в ямы опорные стойки

Столб устанавливается в яму, его вертикальное положение достигается с помощью уровня
Опоры выставляем строго вертикально и заливаем раствором до верха ям. В случае использования деревянных стоек предварительно обрабатываем их заглубляемые части антисептиком и оборачиваем рубероидом либо просмаливаем.
Чтобы металлические опоры были более устойчивыми, мы можем предварительно прикрепить сваркой к их нижним концам по 3-4 горизонтальные планки из стальной арматуры, металлического уголка либо труб.
Даем бетону схватиться. На это ему нужно минимум 2-3 суток. По ГОСТу же бетон набирает прочность в среднем в течение месяца.
Пока бетон сохнет, займемся изготовлением каркаса.



Ворота из профильной трубы и профнастила. Основные достоинства
Профлист – это один из самых прочных стройматериалов, пользующийся огромной популярностью. За счет надежного покрытия материал устойчив к разным негативным погодным явлениям. Огромный ассортимент разных видов металлопрофиля позволяет хозяевам дач и частных домов возводить различные самоделки на свое усмотрение. Во время выбора профиля немаловажное значение имеет вес.
Так, ворота из профнастила получаются довольно легкими, а также удобными в эксплуатации.
На даче
Достоинства материала:
- Стойкость к коррозийным процессам. Это достигается благодаря применению новых современных защитных покрытий. Время эксплуатации ограждения из профильного листа может составлять больше 50 лет.
- Повышенная прочность листового металла. За счет этого въездные ворота могут выдержать высокие механические нагрузки, сильные порывы ветра.
- При наличии требуемых материалов изготовление конструкции ворот из профлиста занимает 2–3 дня.
- Небольшая толщина профнастила делает этот материал довольно легким, поэтому можно произвести самостоятельную установку.
- Простота ухода. За профлистом не требуется специальный уход.
- Доступная цена материала для изготовления воротных систем. Изготовленные калитка и ворота из профнастила своими руками обойдутся значительно дешевле, чем изделия из ковки.
- Экономия на отделке. Профлист не подвергается воздействию ультрафиолета, потому не теряет со временем цвет.
- Возможно строительство ограждения любой высоты, поскольку максимальный размер профильного листа может составлять до 12 м.
- Можно выбрать любую фактуру, рисунок, цветовую гамму с учетом разработанного проекта.
Ворота из профильной трубы 40х20 своими руками. Как изготовить своими руками ворота из профильной трубы?
Изготовление добротных ворот из металлической профильной трубы своими руками – это длительный и трудоемкий процесс, который не каждому по силам. Но, если все же приложить к этому терпение и старание, то в конечном итоге можно получить красивую ограждающую конструкцию с оригинальными элементами, которая создаст приятное первое впечатление о владельце частного строения.
Профильная труба как материал для ворот




Наиболее распространенным материалом для создания ворот своими руками считается профильная труба. Это неудивительно, ведь ее применяют для этих целей благодаря некоторым весомым преимуществам по сравнению со схожими аналогами:
- достаточно низкая стоимость;
- высокая прочность;
- легкий вес;
- удобство в обработке;
- эстетичный внешний вид;
- долговечность при эксплуатации.
Профильные трубы при использовании в качестве материала для ворот, помимо положительных качеств, имеют и недостатки, такие как склонность к коррозии в условиях повышенной влажности, а также неудобство при нанесении грунтовки и краски на поверхность. Однако, данные отрицательные стороны совсем не существенны по сравнению с преимуществами.
Как правильно выбрать?

Чтобы ворота из профильной трубы, сделанные своими руками, получились не только прочными, но и внешне привлекательными, необходимо подобрать для их изготовления качественный материал. Лучше всего для таких целей подойдут заготовки прямоугольной и квадратной формы, выполненные из углеродистого металла либо нержавеющей стали.
Бесшовные трубы используются для больших нагрузок, поэтому их чаще всего применяют для сварки каркасов, опор и рам ворот. Таким образом, выбирая профильные заготовки, необходимо учитывать сечение в зависимости от их предназначения:
- для опор – 100х100 мм;
- для рамы и каркаса – 40х40 мм или 50х50 мм;
- для перемычек и решетки – 40х20 мм.
Некоторые используют для возведения конструкции обрезки, оставшиеся после других сварочных работ, что делать крайне нежелательно, так как ворота будут тяжелыми и слишком громоздкими.
Для справки! Изделия из нержавеющей стали плохо выдерживают большие нагрузки, поэтому их лучше использовать в качестве отделки для ворот или калитки. К тому же трубы из этого материала будут стоить несколько дороже, чем те, которые выполняются из оцинковки или углеродистого металла.
Процесс выполнения работ





Перед тем как начать сооружение ворот своими руками из профильной трубы, необходимо определиться с их дизайном. Так, конструкция может выполняться по одному из следующих типов:
- ажурные;
- кованые;
- решетчатые;
- обшитые деревом, сайдингом или профлистом.
Если новичок решил самостоятельно сварить ворота, специалисты советуют остановить свой выбор на распашных. Их достаточно просто сделать, воспользовавшись заранее подготовленным проектом, материалом и специальным оборудованием.
Подготовка чертежей


Проект необходим для грамотного расчета объема материала и длины заготовок. При этом следует учитывать, что размер конструкции должен быть приемлем для частого использования автомобиля.
Таким образом, проем – не менее 3 м, а высота – более 1,6 м. В случае, если предполагается в конструкции калитка, то ее ширина должна составлять не менее 1 м, такое расстояние будет достаточным для входа-выхода человека с любой комплекцией.
В том случае, если новые ворота необходимо поставить на ранее возведенный забор, подготовить их эскиз все же следует. Делается это для того, чтобы тщательно продумать все детали будущей конструкции и выбрать для нее лучший вариант дизайна, который будет гармонично вписываться в общий вид приусадебного участка.
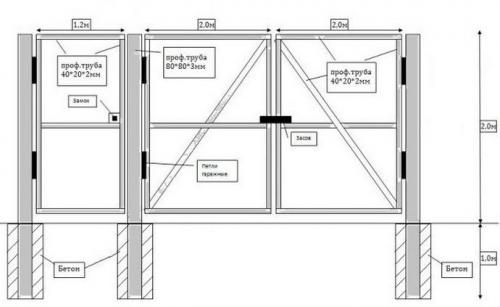
Какую профильную трубу использовать для ворот. Выбираем профильную трубу
Только при наличии качественного материала можно изготовить ворота, геометрическая форма которых не изменится в течение длительного промежутка времени.
Если на поверхности материала имеется глубокая коррозия, то от использование такого профиля следует отказаться. Поэтому, если нужно использовать материал, который остался от выполнения других видов строительных работ, его следует тщательно осмотреть перед использованием.
Самым правильным вариантом является приобретение профильной трубы на металлобазе. Для изготовления конструкции потребуется материал следующего сечения:
- Для изготовления опор — 80*80 мм.
- Для рамы — 60*40 или 40*20 мм.
- Для перемычек — 40*20 или 20*20 мм.

Толщина стенок металлической трубы не должна быть менее 2 мм.
Для выполнения сварочных и монтажных работ также понадобятся:
Когда все материалы и инструменты будут приготовлены можно приступать к непосредственному изготовлению сварной конструкции.
Процесс изготовления ворот из профильной трубы
Прежде чем приступить к практической части, составляются подробные чертежи и эскизы данного изделия. На бумаге следует обязательно указать длину и высоту сооружения, а также количество перемычек между горизонтальными плоскостями.
Если изготавливается распашная конструкция, то необходимо сварить две одинаковые по размеру створки.

При конструировании более сложной, откатной системы, ворота выполняются в виде одного длинного полотна прямоугольной формы.

Вне зависимости от типа конструкции, ширина не должна быть менее 3 метров, а высота — 1,6 м.
Ворота из круглой трубы своими руками. Нюансы установки на опоры разного сечения
Опорные столбы, на которые навешиваются створки, могут быть круглого, квадратного или, реже, прямоугольного сечения. Есть разница между тем, как правильно приварить петли на ворота к круглым столбам или опорам из профильных труб.
- Если профильная труба имеет ровные грани без изгибов и искривлений, то справиться с задачей, как правильно приварить петли на ворота к квадратным столбам, будет легко. Они устанавливаются на наружную плоскость опоры.
- В случае с опорой круглого сечения нужно сначала решить, в какую сторону будут открываться створки. Затем находят самую выступающую линию (середину столба относительно проема) и отступают от неё на несколько миллиметров наружу – в сторону распахивания. Достаточно 5-6 мм, чтобы калитка или створка ворот плавно и без рывков ходила вокруг оси навеса. Так как приварить петли на ворота к круглым столбам сложнее, чем к квадратным, здесь нужно быть особенно аккуратным и внимательным, выдерживая одинаковый размер отступа для всех петель.
Установочные и сварочные работы
Опытные сварщики рекомендуют сначала приварить навесы к створкам, уложив их на ровную горизонтальную поверхность. К ним приваривают половинку в виде полого цилиндра, а к опорам впоследствии – ответную часть со штырем (штырем вверх). От верхнего и нижнего края отступают примерно на 15 см.