ФУНДАМЕНТ под откатные ворота ПОДРОБНАЯ.. Характеристики фундамента под откатные ворота
- ФУНДАМЕНТ под откатные ворота ПОДРОБНАЯ.. Характеристики фундамента под откатные ворота
- Свайный фундамент под откатные ворота. Основные этапы установки откатных ворот на винтовых сваях. Пошаговая инструкция
- Закладные под откатные ворота. Закладная для откатных ворот: особенности монтажа
- Фундамент под откатные ворота размеры. Определение типа фундамента
- Столбчатый фундамент для откатных ворот. Конфигурация фундамента под откатные ворота
- Фундамент под откатные ворота на винтовых сваях. Откатные ворота на винтовых сваях. Че, как
- Закладная под откатные ворота размеры. Ша. Подготовка бетонного основания
- Глубина фундамента под откатные ворота. Типы фундамента
ФУНДАМЕНТ под откатные ворота ПОДРОБНАЯ.. Характеристики фундамента под откатные ворота
Залить фундамент под откатные ворота можно самостоятельно, если учесть все правила и рекомендации, а также составить проект. Надежность откатных ворот главным образом зависит от того, насколько качественно выполнена заливка фундамента. Выбрать подходящий вариант для себя не просто, так как разные компании предлагают не менее двух-трех вариантов основы для откатных ворот. Каждый вид фундамента имеет свои преимущества и недостатки и отличается размерами.
Чтобы сделать фундамент для ворот, необходимо выполнить небольшую подушку из щебня. Также на дно ямы можно набросать битый кирпич. Он выступит в роль дренажа. Одновременно с этим подушка будет противодействовать впитыванию молочка из бетона в землю. Тем самым можно очистить придомовую территорию от различных ненужных камней. Высота дренажа из кирпичей будет составлять около 10 см.
Собранная плита устанавливается в яму по уровню и фиксируется проволокой, чтобы она не двигалась во время заливки. Верх балки должен находится ниже уровня укладки брусчатки. Вся конструкция заливается бетоном, который готовится по следующему принципу:
- цемент – 1 часть;
- песок – 3 части;
- щебень – 3 части.
Выстаивается фундамент примерно 1 неделю. Перед его заливкой необходимо предусмотреть закладки под коммуникации в калитке откатных ворот. Для этого можно использовать остатки труб от теплых полов в доме. Затем устанавливается датчик закрытия ворот. Реле подсоединяется к мотору, который будет находиться в первой половине балки и приводить в движение створки откатных ворот.
Затем начинается процесс заливки. Для этого готовится бетонная смесь не слишком жидкой консистенции. В этот же момент нужно уложить одну гофру – для подвода питания к электродвигателю, а другую – для подключения фотоэлементов и сигнальной лампы. Вторые концы кабеля под фотоэлементы необходимо вывести на столбы проема на высоте 70 см от чистого пола и расположить напротив друг друга.
После того как пройдет 5 дней, необходимые для набора конструктивной прочности бетона, можно устанавливать ворота. Для этого к закладным приваривается опорная балка из швеллера, который входит в комплект откатных ворот.
Свайный фундамент под откатные ворота. Основные этапы установки откатных ворот на винтовых сваях. Пошаговая инструкция
При возведении ограждения важно соблюдать последовательность действий. Это лучший способ избежать ошибок – выполнять указания, которые дают опытные специалисты. Прежде всего, нужно подготовить эскиз, на основании которого составляются чертежи ворот на фундаменте с точным определением всех размеров. Важно избегать перекосов, погрешностей, т. к. это негативно скажется на движении воротного полотна. Основные этапы монтажа откатных ворот на винтовых сваях своими руками:
- Определить места установки свай и сделать разметку участка. Под ворота понадобится 2 сваи для фундамента и 1 шт. – под столб приема. С учетом этого определяются точки введения свай, но изначально нужно продумать, где будут проходить забор. Принимается решение, где лучше расположить ворота. Домовладелец должен учесть их конструкцию, высоту транспорта (если используется подвесной тип). Чтобы избежать ошибок, выполняется разметка, согласно чертежам.
- Сделать углубления под сваи. Чтобы облегчить работу, нужно подготовить участок, где будут ставиться ворота – делают углубления до 0,5 м ниже поверхности почвы, диаметр лунок должен быть немного меньше ширины сваи. Это можно сделать с помощью ручного/садового бура. Качество и точность установки будет намного выше в таком случае.
- Скручивание свай, с помощью винтовых опор, в том числе. Используют специальный инструмент, иначе будет сложно выполнить работу быстро и качественно. Вручную реально вкрутить сваи диаметром до 76 мм. Для этого используется два рычага. Более крупные изделия вводятся с помощью буровых установок. Они подвергаются достаточному давлению, занимают правильное положение даже на глубине до 12 м (если в местности, где устанавливаются ворота, значительные перепады высоты).
- Проверка положения опор. Ствол сваи должен располагаться строго вертикально, это проверяется по мере ввинчивания. Но важно контролировать и уровень введения каждой сваи, все они должны быть одной высоты. Верхняя часть свай возвышается над грунтом, что обеспечивает зазор между поверхностью почвы и нижней частью ворот. Владелец сам определяет, насколько большим он должен быть.
- Бетонирование полости свай. Это важно для выполнения разных задач: повышения прочности опор, а также обеспечение защиты от коррозии. В результате срок эксплуатации ворот увеличится, т. к. фундамент будет соответствовать основным требованиям.
- Сваркой закрепляют оголовки. Это поспособствует созданию опор, которые подходят для дальнейших работ. Как правило, используют цилиндрические изделия с плоской площадкой в верхней части, усиленные ребрами жесткости. Недостаточно просто установить их на сваи, нужно прихватить края по периметру сварным швом.
- Монтаж швеллера – закладного элемента. Здесь будут установлены конструкционные части ворот (роликовые механизмы и электрический привод).
- Установка роликового механизма. Используется метод сварки при монтаже. Роликовая каретка будет входить в направляющий рельс. Причем расстояние должно быть максимальным между двумя такими изделиями. Есть 2 варианта: крепление без монтажной пластины и с ней. Во втором из случаев используют элементы крепежа – регулировочные болты.
- Возведение ворот. Когда все этапы выполнены, можно переходить к установке воротного полотна и фурнитуры.
Закладные под откатные ворота. Закладная для откатных ворот: особенности монтажа
Здесь мы рассмотрим как устроить фундамент для откатных ворот. Откатные (сдвижные, раздвижные, отъездные) ворота устанавливаются на специальном фундаменте (закладной).
Установка закладной для откатных ворот не представляет собой особо сложную задачу, поэтому с ней сможет справиться любой мужчина “с руками”. Тем не менее, подходить к ней нужно с профессиональной стороны, поскольку данный тип ворот отличается значительным весом, особенностями перемещения (вертикальное, горизонтальное направления), а фундамент служит опорой для несущих балок консольного типа.
С чего начинать?
Весь процесс монтажа закладной можно разбить на 3 этапа:
- Земляные работы;
- Установка закладной;
- Заливка бетоном.
Начало: земляные работы
Шаг первый: роем яму в сторону отката ворот длиной половины ширины проёма (L\2). Если проем у Вас 4 м, то длина фундамента будет 2 м. Яму начинаем рыть от самого проема и вплотную к столбу. Ширина ямы 400-500 мм, глубина 1000-1200 мм – можно глубже, хуже не будет, но это если не жаль материалов.
Установка закладной
После того как котлован готов закрепляем в нем закладную. Выглядит она следующим образом:


Для бытовых ворот это швеллер №12-20 (то есть шириной 120-200 мм) с приваренной к нему пространственной арматурной сеткой. Арматура может быть диаметром 10, 12 или 14 мм, можно и 8 мм, но тогда сетка должна быть “гуще”. Кроме швеллера иногда используют те материалы, которые есть под рукой, например, уголки 100х100 или сваривают два швеллера №8 или 10, в целом конструкция должна быть адекватной.
Закладную выставляем так чтобы верхняя поверхность швеллера была на уровне чистого пола.
 
 
Если уровень чистого пола находится выше реального на данный момент уровня земли, то необходимо выставить опалубку до уровня чистого пола. 
После того как закладная зафиксирована, прокладываем гофры электропроводки и выводим их в нужном месте (~70-100 см от края проёма, вплотную к швеллеру), фиксируем их.
Заливаем фундамент
Далее заливаем котлован бетоном и даем время застыть и высохнуть. После заливки фундаменту нужно дать выстояться неделю, а по СНИПу 28 дней.
В конце у нас должно получиться так:

Закладные на кирпичных столбах
Далее рассмотрим часто задаваемый вопрос по поводу закладных на кирпичных столбах – как правильно их сделать. Закладные выводятся на поверхность столбов обращенную во двор. Размер закладной может быть любым, на наш взгляд это уголок 50 длиной 7 сантиметров, уложенный на кирпич внутренним углом, просто нужно понимать что к ним привариваются столбы с роликами и уловителями.
Где же располагать закладные? Две закладные устанавливаются по высоте примерно 30 и 180 см соответственно. Центр (осевая линия) закладной должна располагаться на расстоянии 100 мм от края проёма. Закладная обязательно должна быть связана сваркой с центральной трубой или арматурой столба, дабы исключить выпадение.
Здесь мы рассмотрим как устроить фундамент для откатных ворот. Откатные (сдвижные, раздвижные, отъездные) ворота устанавливаются на специальном фундаменте (закладной).
Установка закладной для откатных ворот
Установка закладной для откатных ворот не представляет собой особо сложную задачу, поэтому с ней сможет справиться любой мужчина “с руками”. Тем не менее, подходить к ней нужно с профессиональной стороны, поскольку данный тип ворот отличается значительным весом, особенностями перемещения (вертикальное, горизонтальное направления), а фундамент служит опорой для несущих балок консольного типа.
Процесс монтажа закладной
Шаг первый: роем яму в сторону отката ворот
Яму начинаем рыть от самого проема и вплотную к столбу. Ширина ямы 400-500 мм, глубина 1000-1200 мм – можно глубже, хуже не будет, но это если не жаль материалов.
Шаг второй: закрепляем закладную в яме
Для бытовых ворот это швеллер №12-20 (то есть шириной 120-200 мм) с приваренной к нему пространственной арматурной сеткой. Арматура может быть диаметром 10, 12 или 14 мм, можно и 8 мм, но тогда сетка должна быть “гуще”. Кроме швеллера иногда используют те материалы, которые есть под рукой, например, уголки 100х100 или сваривают два швеллера №8 или 10, в целом конструкция должна быть адекватной.
Шаг третий: выставляем закладную
Закладную выставляем так чтобы верхняя поверхность швеллера была на уровне чистого пола.
Фундамент под откатные ворота размеры. Определение типа фундамента
Фундамент для откатных воротслужит для удерживания консольных блоков, на которых фиксируется конструкция. Он возводится в форме многоугольника и располагается непосредственно в почве.
Для надежности основания необходимо правильно выбрать место под него и сделать точные расчеты. При этом следует учитывать:
- тип почвы на участке;
- предполагаемую нагрузку на ворота.
Под сдвижную конструкцию закладывают:

- свайный фундамент. Его используют на суглинистых, болотистых грунтах, или там, где подземные воды подходят близко к поверхности. Данное основание может быть монолитным (цельнозаливным) или винтовым (свайным, стержневым). Фундамент для откатных ворот на винтовых сваях быстро укладывается, его можно вбить за 1 день. Предварительно элементы основания обрабатывают средством от коррозии, а после монтажа дополнительно бетонируют. Цельнозаливной фундамент представлен швеллером, уложенным на армированные столбы, скрепленные общей канавкой из железобетона. Он не уступает в надежности свайному, но закладывается дольше;
- каркасно-монолитное основание. Оно используется на устойчивых грунтах или почве с незначительными сдвигами. Данное основание состоит из П-образного каркаса, на который опираются консольные блоки, удерживающие раздвижной механизм. Цельнолитой каркасный фундамент под откатные ворота длиной (4-5-6) метров должен иметь длину, составляющую не менее ½ ширины проема ворот, ширину — около 0,6 м, глубину — на 0,25 м ниже отметки промерзания почвы. Данные габариты позволяют избежать перекоса конструкции. На сооружение каркасно-монолитного основания уходит около 1 недели.

Столбчатый фундамент для откатных ворот. Конфигурация фундамента под откатные ворота
Из-за значительной длины вылета створки основание откатных ворот испытывает существенные нагрузки в виде продольного крена. Чтобы противодействовать им, фундамент должен обладать достаточной площадью соприкосновения с грунтом, правильной схемой распределения воздействий и высокой конструкционной прочностью. При этом важно обеспечить минимальный расход материалов — арматуры и бетонной смеси.
Как показала практика, наиболее выгодным форм-фактором фундамента для откатных ворот служит П-образная конструкция, состоящая из двух столбов и верхнего пояса, связывающего их между собой. Первый столб располагается параллельно столбу, ограничивающему проём ворот со стороны расположения приводного механизма. Второй столб удалён от проёма ровно на расстояние вылета нижней балки, соединённой со створкой раскосом. В общем случае производители откатных ворот делают вылет балки длиной не меньше половины ширины основной створки.
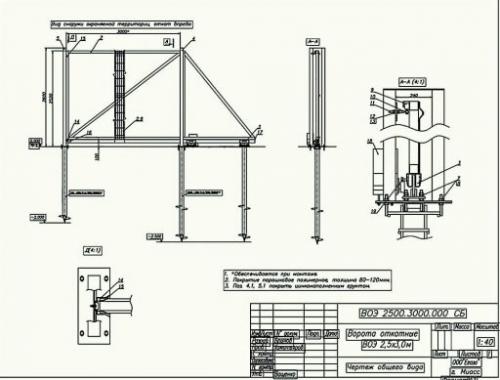
 1 — швеллер №20; 2 —арматурный каркас; 3 — электрический привод; 4 — роликовые опоры; 5 — поддерживающие ролики; 6 — створка ворот; 7 — зубчатая рейка; 8 — концевой ролик; 9 — нижний уловитель; 10 — верхний уловитель
 1 — швеллер №20; 2 —арматурный каркас; 3 — электрический привод; 4 — роликовые опоры; 5 — поддерживающие ролики; 6 — створка ворот; 7 — зубчатая рейка; 8 — концевой ролик; 9 — нижний уловитель; 10 — верхний уловитель 
Верхний связывающий пояс должен содержать закладные элементы анкеровки, предназначенные для крепления опорных роликов и приводного механизма. В ряде случаев можно рекомендовать укладку в верхнюю грань стального швеллера за номером от 16 до 20. При такой конструкции фундамента гораздо проще позиционировать привод с блоками опорных роликов и закрепить их при помощи сварки, но подобное устройство не лишено недостатков. Главным фактором риска считаются коррозионные процессы, возникающие из-за отсутствия защитного слоя бетона, при этом возможно разрушение структуры не только верхнего пояса, но и всего фундамента. Также гладкая поверхность швеллера не обеспечивает достаточно высокого сцепления с бетонной массой, поэтому армирование в любом случае должно присутствовать.

Если комплект приводных механизмов для откатных ворот закуплен до начала строительства фундамента, гораздо проще будет обойтись анкеровками, которые устанавливают в толщу бетонного изделия. Если точные установочные размеры для привода неизвестны, следует обустроить универсальную монтажную плоскость. В наиболее надёжном варианте устройства она представлена широкой металлической пластиной, имеющей множественные точки крепления к арматуре фундамента.
Фундамент под откатные ворота на винтовых сваях. Откатные ворота на винтовых сваях. Че, как
Добрый день.
Сегодня я хочу рассказать об откатных воротах с фундаментом на винтовых сваях
и ответить на часто задаваемые вопросы:
Что лучше бетонный фундамент или свайный?
Для ворот каких размеров какие сваи нужно использовать?
Сколько прослужит фундамент на винтовых сваях?
Начнем с конца.
Стоит ли вообще затевать разговор, если через год сваи сгниют?
Не сгниют. Ни через год, ни через 10 лет.
Скорость коррозии металла в грунте 0,02-0.03 мм в год.
При толщине стенки сваи 3,5 мм это 100 - 150 лет.
Плюс покрытие свай на основе эпоксидных смол
То есть на ваш "век" вполне хватит.
Откровенно говоря мечтаю дожить до того момента, когда мне позвонят и скажут что сваи закрученные нашей компанией сгнили.
Могут сваи расшататься и за счет 4-5 метрового рычага вылезти из земли?
Хороший вопрос. Тут одним "нет" не отделаешься. Нужен калькулятор.
Для начала какие откатные ворота будем рассчитывать?
Разумеется самые тяжелые.
Длина самого большого проема для бытовых нужд составляет 5 метров.
(больше можно, но это уже промышленный вариант)
Длина хвостовой части 2 метра. Итого весь каркас 7 метров.
Обошьем весь каркас самым тяжелым профильным листом С21 толщиной 0,45 с двух сторон.
Теперь возьмембезменкалькулятор и посчитаем общую массу.
Получается 283 кг.

Для информации общего развития вес самых простых откатных ворот на проем 4 метра составляет 150 кг, что почти вдвое меньше. Но мы же берем по максимуму ;)
Значит масса 5 метровой створки ворот, которая будет давать нагрузку составляет 200 кг.
Т.к. масса створки равномерно распределена по всей длине рычага, значит центр тяжести есть центр створки ворот.
=> рычаг 2,5 метра.
Следовательно нагрузка на сваю (вдавливание/выдергивание) составляет 250 кг.
Теперь посмотрим какие сваи выдержат такую страшную нагрузку?

Ответ: Любая.
Даже у самой маленькой сваи будет огромный запас прочности.
Теперь к вопросу что лучше. Бетон или сваи?
Сваи быстрее, надежнее и втрое дешевле.
Надежнее? как так то?
А вот так. Сваям пофиг на морозное пучение, а бетон это лотерея.
За сим все. Надеюсь кому то было полезно.
Если будут вопросы я весь ваш.
Закладная под откатные ворота размеры. Ша. Подготовка бетонного основания
Масса полотна «среднестатистических» откатных ворот, устанавливаемых на частной территории, может достигать полутонны. При открытии-закрытии конструкции всем весом воздействуют на закладную, по которой перемещаются ролики. Кроме того, к существенным нагрузкам стоит отнести и вес несущих консольных балок или рельс. С учетом этого, прежде чем устанавливать фундамент, необходимо подготовить надежную закладную деталь, а заодно — провести кабель-каналы под прокладку проводов автоматики.
Начнем с расчета уровня бетонного основания фундамента. Он зависит от уровня асфальта, плитки или любого другого покрытия в проезде. Расстояние между нижним краем воротного полотна и покрытием проезда должно быть не менее 5 см.
Определив уровень бетонного основания, приступаем к копке ямы, в которую будет устанавливаться закладная или опорная рама, а затем — бетонироваться. Специалисты советуют заглублять фундамент не менее чем на 1,3 м. При этом важно учитывать климат в регионе, в частности, насколько сильно грунт может промерзать зимой.
Выкопав яму, важно предусмотреть в ней специальную подушку из песка и гравия, которая защитит фундамент от разрушения из-за возможного проседания почвы или движения грунтовых вод. Подушки толщиной 30-40 см будет вполне достаточно.
Что касается ширины котлована под фундамент, как правило, она составляет 40-45 см. А чтобы рассчитать необходимую длину бетонного основания, проще всего вычесть из длины ворот длину проема. Например, чтобы сделать фундамент под откатные ворота длиной 4 метра, понадобится свободная площадка около 2 метров в длину.
Завершающий этап при подготовке ямы для закладной — установка опалубки и заведение кабель-каналов. Для лучшего понимания предлагаем изучить следующий рисунок:
Схема фундамента для откатных ворот
Специалисты рекомендуют заниматься подведением кабеля к месту монтажа автоматики заблаговременно. В первую очередь нужно подобрать местоположение всех элементов приводной системы и устройств безопасности, например, фотоэлементов, сигнальной лампы, пр. Затем — определить схему, в соответствии с которой будет выполняться подсоединение электропривода. И, наконец, проложить к месту установки привода кабель с соблюдением следующих правил:
- Для прокладки электрического кабеля в грунте и фундаменте должна использоваться металлическая труба диаметром не менее 30 мм. Внутрь трубы закладывается стальная проволока для проводки электрических кабелей в процессе установки ворот.
- Конфигурация трубы, места изгиба и сварные швы не должны мешать свободному прохождению кабелей.
- Труба должна размещаться на глубине не менее 300 мм. Конец трубы может выступать над поверхностью земли не более чем на 50 мм.
Глубина фундамента под откатные ворота. Типы фундамента
Широкое распространение два типа: фундамент для откатных ворот на винтовых сваях и каркасно-монолитный.

Фундамент на сваях
В первом случае в грунт вкручиваются сваи, состоящие из ствола и винтовых несущих лопастей, на которые и служат в дальнейшем фундаментом. Во втором случае сооружается классический бетонный параллелепипед, расположенный в предварительной вырытой яме.

Фундамент монолитный
Как сделать правильный выбор типа основания? Ответ на этот зависит от характеристики земли, на которой будет закладываться фундамент. Монолитный вариант хорош и надежен, если грунт твердый и не имеет склонности к сезонным подвижкам.
Если грунты проблемные, например, песчаные, глинистые, торфяные или с близким расположением к поверхности грунтовых вод, лучше выбрать основание не бетонное, а свайное под откатные ворота.
Связано это с тем, что сваи в среднем уходят в землю на глубину 2,5 метра, заходят в твердые слои, имеют меньшую площадь, следовательно, им не так страшны подвижки грунта.
Свайный фундамент располагает еще несколькими преимуществами по сравнению с монолитным – меньше трудозатрат, времени и стройматериалов. Соорудить такой фундамент можно за сутки, тогда как на монолитный придется потратить как минимум неделю, поскольку нужно время, чтобы бетон засох и набрал крепость. Вкручивать их можно и зимой, и осенью, и весной, а классический фундамент нужно закладывать летом.
Но есть у фундамента свайного типа и недостатки. Многое зависит от качества свай, их соответствия типу почвы. Закручивание может пойти не по плану – с отклонением от вертикали. Наконец, низкокачественная свая может сломаться во время закручивания или быстро проржаветь.
Перед тем, как определиться с типом фундамента, следует проконсультироваться у специалиста по почвам.
Это тот самый случай, когда совет профессионала поможет избежать многих проблем в будущем.
 
                 
                 
                 
                 
                 
                 
                 
                 
                 
                 
                