Сделать калитку своими руками. Изделие из профнастила
- Сделать калитку своими руками. Изделие из профнастила
- Калитка своими руками из дерева. Как выбрать материал
- Калитка своими руками из профтрубы. Устройство
- Калитка для забора из профнастила. Опорная конструкция
- Как сделать простую калитку. Содержание:
- Калитка из дерева своими руками чертежи. Сборка
- Калитка своими руками из металла. Конструкция строения
Сделать калитку своими руками. Изделие из профнастила
Данный способ используют для металлических конструкций. Здесь изделие получается прочным и долговечным. Калитка из профнастила может выступать как отдельный элемент ограждения, так и монолитным.

Создать калитку своими руками довольно просто. В отличие от деревянного изделия здесь придётся немного потрудиться. Готовый результат никого не оставит равнодушным.
Для работы понадобятся следующие инструмент и материалы:
- саморезы 40 шт.;
- ножовка по металлу;
- сварочный аппарат;
- дверная ручка 1 шт.;
- навесные петли 2 шт.;
- железные узоры в виде завитков;
- лист профнастила. Размер этой детали подбирается исходя из расчётов проекта;
- металлические пруты 3 шт.

Далее приступаем к рабочему процессу. Он состоит из:

Вырезаем необходимые размер калитки из металлического листа. Далее свариваем калитку своими руками. На изнаночной стороне фиксируем железные пруты. Они помогут усилить конструкцию.

После этого приступаем к декорированию металлического изделия. В профессиональных магазинах представлен большой выбор готовых деталей, выполненных по типу ковки. Они отличаются своими размерами и прочностью.

Для небольших ограждений рекомендуется выбирать простые элементы. Они добавят своеобразную изюминку в готовую композицию.

Когда весь декор зафиксирован на калитке приступаем к его покраске. Чаще всего их делают при помощи золотой или контрастной краски. Для этого необходимо приобрести специальные лакокрасочные составы, которые предотвратят появление ржавчины на поверхности железных деталей.

К металлическому каркасу привариваем навесные петли. На изнаночной стороне делаем сквозные отверстия, в которых будет крепить петли. На лицевой стороне фиксируем дверную ручку. Её располагаем на нужном расстоянии от земли.
Калитка своими руками из дерева. Как выбрать материал
Во время выбора многие руководствуются такими критериями, как стоимость материала и его долговечность. При должной обработке древесина может использоваться несколько десятков лет. При этом она имеет низкую стоимость.
Часто для создания створки выбирается сосна, так как этот материал имеет низкую цену. такая древесина достаточно легко обрабатывается и хорошо противостоит воздействиям внешней среды из-за насыщенности смолой. Если калитку из сосны покрыть лаком, она будет иметь достаточно привлекательный внешний вид.
Стоит отметить, что лиственница является более крепким материалом, который хорошо поддается обработке. Но при этом стоимость материала в несколько раз выше стоимости сосны. Часто используется кедр, так как такая древесина не растрескивается и является стойкой к гниению.
Лучшим вариантом является дуб, который можно приобрести по относительно низкой стоимости. Несмотря на то что осина легко обрабатывается и не растрескивается со временем, ее редко используют при создании ограждений для участка.
При создании створки можно использовать тополь. Но стоит помнить, что приобретать нужно только хорошо просушенный материал. Если он будет мокрым, при высыхании доски могут деформироваться.
Для создания калитки можно использовать и березу, но она имеет небольшой срок эксплуатации и подвержена растрескиванию. В случае когда создается калитка из дерева своими руками, важно правильно подобрать материал, учитывая погодные условия в определенном регионе. Чтобы выбрать определенный тип створки, стоит рассмотреть фото различных подобных изделий и определить, какое лучше будет смотреться на определенном участке.
Калитка своими руками из профтрубы. Устройство
Калитка состоит из опорных столбов и дверного полотна на раме или без, закрепленного на столбах при помощи петель (иногда называют навесы). Столбы могут быть кирпичные (каменные), деревянные или металлические. В кирпичные при кладке замуровывают небольшие куски толстого металла или металлического прута, к которым впоследствии приваривают петли.
Металлические столбы могут быть из круглой или профилированной трубы с толстыми стенками. Круглые трубы используют все реже: к ним сложнее приваривать, крепить что-либо. Профилированная труба при том же сечении (диагональ по сравнению с диаметром) и толщине стенки выдерживает большие ветровые нагрузки, к плоским граням проще приваривать или крепить при помощи саморезов, болтов. Поэтому именно её все чаще используют при устройстве калиток. Еще один вариант — к каркасу из профильной трубы приварить металлический уголок. В этом случае заполнение получится как бы в рамке.

Устройство калиток с деревянной и металлической рамой одинаково
Деревянные столбы обычно используют если забор деревянный . Чаще всего — это сосновый брус, обработанный защитными пропитками, предотвращающими (или по крайней мере замедляющими) разрушение древесины. Но бывают сочетание, когда столбы ставят металлические, а калитка и ограда при этом деревянные. Это потому что древесина в земле быстро сгнивает, даже после защитной обработки.
Немного о конструкции опорной рамы. Это может быть просто два столба вкопанных в землю — вариант подходит, если грунт не склонен к пучению (пески, супеси, плодородные, но не глинистые почвы).

Столбы повело. Если вверху и внизу будут перемычки (в данном случае можно сделать арку вверху), вероятность такой неприятности намного снизится
Для пучинистых грунтов (глина, суглинки) желательно, чтобы столбы были соединены вверху и внизу. В таком случае вероятность перекоса калитки после зимы очень мала. Если вы не хотите делать порожек в проеме, нижнюю перемычку можно опустить ниже уровня земли (на штык–полтора). Ее надо будет тщательно покрыть антикоррозионным составом, огрунтовать, и покрасить в несколько слоев.
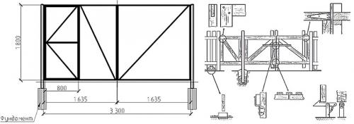
Калитка для забора из профнастила. Опорная конструкция
Калитка должна строиться на опоре. Обычно опорой выступают края забора, закрепленные столбиками. Но для надежности рекомендуется установить для калитки отдельные столбики.
Предварительно необходимо четко определить тип конструкции, затем замерить площадь, составить чертеж и подготовить необходимые инструменты.
Оптимальная ширина калитки – 1 метр. Через такую калитку легко переносить мебель или другие крупные предметы.
Если сделать шире, то калитка быстрее деформируется. Если сделать калитку уже, то петли на ней быстро изотрутся.
Оптимальная высота конструкции – от 2 до 2,2 метров.
Если каркас ворот или забор по высоте выше, то на верхнюю часть калитки устанавливаются металлические перемычки.
Оставшееся пространство следует зашивать всплошную. При возведении калитки больших размеров, конструкцию следует укреплять дополнительными рамками и петлями с усиленным эффектом.
На профилированный лист нельзя применять болгарку, так как это приведет к деформации полимерного покрытия с последующим появлением ржавчины.
В качестве опорных столбиков подходят:
Если выбор остановлен на профильных трубах, то их толщина должна быть 3-4 мм. Трубы устанавливаются в яму. Глубина ямы зависит от типа грунта.
Если грунт каменистый, то яма должна быть около 70 см, если рыхлая почва, то яма выкапывается около 1 метра. Диаметр ямы во всех случаях – около 30-40 см.
Каменная кладка и колонна из кирпича обходятся дороже по стоимости и дольше по времени. Предварительно необходимо залить фундамент с параметрами минимум 50х50 см.
Если сооружение кирпичное, то параметры должны быть около 39х39 или в полторы кладки. Фундамент сооружается на опорных металлических трубах, которые должны быть установлены в яму до заливки бетона.
Как сделать простую калитку. Содержание:
В любом заборе должен быть вход. Для въезда машин делают ворота, для прохода людей — калитки. Их делают на каркасе из дерева или металла, заполнение подбирают такое же как в ограде или что-то оригинальное. Если вход между двух кирпичных стен, заполнение можно выбрать по своему вкусу. Причем сделать калитку своими руками не так и сложно, во всяком случае, некоторые несложные варианты.
Устройство
Калитка состоит из опорных столбов и дверного полотна на раме, которое крепится к столбам при помощи петель. Столбы могут быть кирпичные (каменные), деревянные или металлические. В кирпичные при кладке замуровывают небольшие куски толстого металла или толстый металлический прут, к которым впоследствии приваривают раму.

Необычные калитки с деревянным каркасом и оригинальным заполнением
Металлические столбы делают из круглой или профилированной трубы с толстыми стенками. Круглые трубы используют все реже: к ним сложнее приваривать, крепить что-либо. Профилированная труба при том же сечении (диагональ по сравнению с диаметром) и толщине стенки выдерживает большие ветровые нагрузки, к плоским граням проще приваривать или крепить при помощи саморезов, болтов. Поэтому именно ее все чаще используют при устройстве калиток. Еще один вариант — к каркасу из профильной трубы приварить металлический уголок. В этом случае заполнение получится как бы в рамке.

Устройство калиток с деревянной и металлической рамой одинаково
Деревянные столбы обычно используют если забор деревянный. Чаще всего столбы — это сосновый брус, обработанный защитными пропитками. Они предотвращают (или замедляют) разрушение древесины. Но бывают и такие случаи, когда столбы ставят металлические, а калитка и ограда при этом деревянные. Это потому что древесина в земле быстро сгнивает, даже после защитной обработки.
Немного о конструкции опорной рамы. Это может быть просто два столба вкопанных в землю — вариант подходит, если грунт не склонен к пучению (пески, супеси, плодородные, но не глинистые почвы).

Столбы повело. Если вверху и внизу будут перемычки, вероятность такой неприятности намного снизится
Для пучинистых грунтов (глина, суглинки) желательно чтобы столбы были соединены вверху и внизу. В таком случае вероятность перекоса калитки после зимы очень мала. Если вы не хотите делать порожек в проеме, нижнюю перемычку можно опустить ниже уровня земли (на штык–полтора). Ее надо будет тщательно покрыть антикоррозионным составом, прогрунтовать, и покрасить в несколько слоев. А еще чтобы избежать перекоса, следует закапывать столбы ниже уровня промерзания хотя бы на 15-20 см.
Каркас калитки делают из металлической трубы или деревянных брусков. Древесина используется для деревянных заборов, металл — во всех остальных случаях.
Калитка из дерева своими руками чертежи. Сборка

Для крепления калитки удобнее всего использовать два бетонных столба. Работы начинаются с изготовления из сосновых досок двух боковин, на которых будет закрепляться ваша калитка. После выверки досок по вертикали (при помощи уровня) можно с помощью саморезов закрепить обе боковины на опорных столбах.
Затем приступаем к сборке рамы, которая набирается из четырёх хорошо прокрашенных досок из лиственницы. Углы конструкции укрепляются при этом защищенными от коррозии планками, устанавливаемыми на саморезы.

С целью придания всей полученной конструкции большей жесткости можно использовать особой формы металлозубчатые пластины, которые следует при установке слегка утопить в дерево. Теперь можно установить на подготовленную ранее опорную рамку петли будущей калитки.
После проверки вхождения готовой рамы в проём калитки, можно приступать к изготовлению специального подкоса, придающего дополнительную жесткость всей собираемой конструкции. Подкос этот закрепляется на основании при помощи тех же металлозубчатых пластин.

Прикрепляем готовую раму к петлям и устанавливаем на неё первую доску обшивки. Каждую из устанавливаемых досок необходимо закрепить как минимум на два самореза, причём угловые доски – на три. При этом под каждый саморез следует просверлить отверстие и отзенковать его так, чтобы можно было утопить головку.
Затем устанавливается ручка и задвижка, а по верху досок при помощи верёвки (используемой в качестве циркуля) и карандаша чертится овал верхнего среза досок. Обрезку досок по этому овалу осуществляем с помощью электролобзика.
Калитка своими руками из металла. Конструкция строения
Калитки, как правило, делают распашными.
Калитка состоит из опор в виде столбов и дверной створки на каркасе, который фиксируется к стойкам с помощью навесов. Для закрывания врезают запоры, замки. Столбы выполняют из кирпича, делают стальные, железобетонные или деревянные. Внутрь монолитных и каменных опор вставляют закладные детали из толстого металла, уголка или прута, чтобы приваривать к ним раму калитки из профтрубы.
Дверь выполняют в виде отдельного прохода в заборе или совмещают с воротами. В этом случае каркас калитки размещают в одной из створок. Если перед двором проходит тротуар, открывание делают внутрь, чтобы не мешать пешеходам. При этом учитывают величину полотна, чтобы было расстояние для полного распахивания створки.
Распашная или раздвижная
Первый вариант относят к недорогим конструкциям, которые проще варить и монтировать. Такая калитка не требует устройства основания для установки направляющих балок, ей не нужен противовес и роликовые элементы. Распашную систему совмещают с воротами и экономят место перед въездом. Внизу полотно подрезают по высоте в местностях с большими снегопадами. Так на открывание не влияет образовавшийся сугроб.
Раздвижные схемы сложнее, т. к. направляющие прогоны чаще ставят внизу, для них требуется ровный фундамент. Есть варианты с устройством консольного передвижения полотна, при котором балку навешивают так, чтобы она не ограничивала высоту пролета, а ролики ставят внутрь каркаса створки. Автоматику ставят на распашные и раздвижные системы.