Как собрать кухонный гарнитур своими руками. Содержание:
- Как собрать кухонный гарнитур своими руками. Содержание:
- Сборка кухонного гарнитура. Сборка кухни — пошаговый план со схемой сборки кухни своими руками + правила установки и выбора инструментов
- Как собрать кухню из модулей. Собираем кухонный гарнитур своими руками, как конструктор
- Установка кухни своими руками. Установка кухни: сборка кухонного гарнитура своими руками
- Собрать кухонный гарнитур онлайн. Онлайн 3D конструктор кухни — бесплатное проектирование своими руками
- Как собрать кухонный гарнитур мойку. Основные правила установки мойки
- Как собрать кухонный шкаф с выдвижными ящиками. Дизайн и конструкция – две стороны одной монеты
Как собрать кухонный гарнитур своими руками. Содержание:
Когда на кухне закончен ремонт, задумываются о замене старого гарнитура. Покупая мебель для кухни, многие заказывают сборку и установку, да и продавцы мебели рекламируют своих сборщиков. Однако собрать кухню самому и остаться при сэкономленных деньгах возможно. Самостоятельная сборка – процесс не самый простой, но выполнимый. Практические рекомендации, изложенные в статье, помогут самому собрать и установить кухонный гарнитур, избежав ошибок.

Сборка
Перед началом монтажа и установки мебели для кухни, изучите инструкцию. Большинство производителей мебели снабжают свою продукцию подробными схемами сборки, что существенно облегчает задачу.
Стандартный набор для кухни состоит из: каркаса – детали ЛДСП разного размера, задних стенок шкафов в виде ДВП, фасадов, столешниц и комплекта мебельной фурнитуры. Проверив комплектность гарнитура по инструкции, можно начинать сборку.
Необходимый набор инструментов
Понадобится стандартный набор инструментов для сборки мебели:
- Шуруповерт
- Перфоратор
- Уровень для установки шкафчиков
- Шестигранный ключ
- Молоток
- Рулетка
Если столешница из цельного полотна, а не отдельных модулей на каждый рабочий стол, то лучше всего запастись электрическим лобзиком или ножовкой.

Сборка рабочих столов
Специалисты советуют начать установку кухни с нижнего яруса. Это необязательно, но может упростить задачу.
Вначале собираются мебельные каркасы, установку фасадов и сборку выдвижных ящиков можно оставить на потом.
Если в комплект входит угловой шкафчик, то он собирается первым, прямой вариант кухни можно начать со стола под мойку.
Используя мебельный крепеж, идущий в комплекте, с помощью насадки под шестигранник или самого ключа, соединяются боковины, дно и верх шкафа. Место для крепления всегда намечено на мебельных деталях. Собирать корпус можно в такой последовательности: соединить боковину с дном изделия, затем присоединить вторую боковину, а верхние планки крепить под столешницу.
Затем, для большей устойчивости, положить каркас фасадной частью на ровную поверхность и установить заднюю стенку. Панель ДВП прибивается небольшими гвоздиками, скобами мебельного степлера или другими крепежами, идущими в комплекте. Расстояние между крепежами задней стенки приблизительно 10 см. Начать лучше от угла, и двигаться вниз, постоянно выравнивая край.
Стол под мойку чаще не имеет задней стенки, чтобы был свободный доступ к трубам. Если под мойку предназначен угловой шкафчик, то для него вместо задних стенок предусмотрены соединительные планки, придающие изделию необходимую устойчивость.
Перевернув каркас вниз головой, устанавливаются мебельные ножки. На дне должны быть специально обозначенные места, к которым с помощью самореза длиной 15 мм (если толщина листа ЛДСП стандартная), крепится регулируемая опора. Если на дне, по каким-то причинам не нанесена наметка, то ножки устанавливаются на расстоянии 5-8 см от края.
На стандартный шкафчик устанавливается 4 опоры, в угловой 5, а в случае, если в комплект входит пенал, высотой более 80 см, ставиться 6 опор. Узкие модули шириной до 200мм, оборудуются всего двумя опорами, это могут быть выдвижные корзинки – бутылочницы.

Сборка кухонного гарнитура. Сборка кухни — пошаговый план со схемой сборки кухни своими руками + правила установки и выбора инструментов
Вся мебель, поступающая с завода в магазин, идет в разобранном виде. Здесь фирмы-посредники предлагают платные услуги по сборке. Если покупатель хочет приобрести новый кухонный гарнитур, то он может воспользоваться сервисной помощью.
Сколько стоит сборка кухни можно узнать в магазине или найти по объявлению. Но самостоятельно собрать мебель не так уж и сложно. Главное следовать инструкции, прикрепленной к поставляемому товару.
Необходимые инструменты для сборки
Сначала следует собрать инструменты, которые пригодятся в работе. Даже сборка кухни ИКЕА пройдет быстрее и легче, если заранее все подготовить.
Для работы понадобятся:
- Отвертки разных размеров;
- Дрель с несколькими сверлами;
- Для крепежа ключ шестигранной формы может быть в наборе;
- Уровень;
- Линейка;
- Карандаш.
Можно использовать шуруповерт, который заменит сразу несколько инструментов.
Сборка шкафчиков на кухню
От производителя кухонный гарнитур поступает в виде плоских панелей разной величины. К набору еще добавляются крепежные детали и фурнитура. Из представленных форм следует собрать шкафы, которые стоят на полу и висящие на стене.
С каких следует начинать – это решается самостоятельно. Можно попарно устанавливать предметы мебели. Или заняться сначала верхними, а потом собирают нижние шкафы. Инструкция по сборке кухни – отличная помощь в работе.
План сборки шкафчиков
Для получения правильного собранного предмета, необходимо действовать по определенному алгоритму:
- На боковых стенках уже имеются отверстия, чтобы в них прикрепить крестоподобные детали для подвешивания дверец (понадобятся 2 самореза);
- К выдвижным ящичкам сразу прикручивают рельсы, так как потом будет труднее это сделать;
- В имеющиеся дырочки вставляются дюбеля, так будет основание крепче;
- Затем, убедившись в ровности стенок шкафа, вкручивают стягивающие болты;
- На каждый шуруп ставятся заглушки под цвет мебели;
- Дальше устанавливаются ножки, выставляется высота шкафа;
- К задней стенке прибивают гвоздями фанерный лист;
- Если шкаф навесной, то к нему прикручивают детали, которые будут держать его на стене.
Правила сборки навесного шкафчика
После предварительной подготовки можно переходить к основной работе. Если начать с навесных шкафов, то обычно в набор входят 2 боковых полотна, 1 верхнее 1 нижнее, две дверцы, задняя часть из ДВП.
Можно подробно рассмотреть, как происходит сборка кухни Леруа Мерлен:
- Сначала необходимо установить петли, на которых будут держаться дверцы. Они могут быть накладными или врезными. Второй вариант считается лучшим. Где эти детали крепить отмечают уже на заводе. Поэтому надо правильно сложить дверцу и боковую панель (лучше работу выполнять на ровной поверхности).
- Затем к боковым частям прикрепляются низ и верх. Крепежные детали поставляются вместе с кухней. Для работы потребуется шестигранник. Можно воспользоваться шуруповертом, если имеется нужная бита. На боковых частях шкафа уже есть отметки для установки крепежных деталей. После прикручивания держателей, надо перевернуть шкафчик лицом вниз. Задняя стенка будет из ДВП, с одной стороны ламинированной. Ее необходимо уложить ровно, чтобы не было перекосов. К шкафчику лист прибивается маленькими гвоздиками и скобами, чередуя их.
- Монтирование уголков и держателей для полочек. На боковинах внутри уже просверлены дырочки для металлических упоров. В основном их просто необходимо вставить в отверстия. Но бывают пластиковые чопики, которые надо намного забить молотком в дырочки. На задней части крепятся петли, которые будут держать шкаф на стене.
Как собрать кухню из модулей. Собираем кухонный гарнитур своими руками, как конструктор

Услуга сборщика стоит около 6-10 % от стоимости гарнитура, поэтому, если вы располагаете временем и некоторым опытом, то собрать самому кухонный гарнитур не составит особой сложности, при этом вы не переплатите лишних денег.
Перед тем, как самому начать сборку кухонного гарнитура, нужно убедиться, что все работы по выравниванию стен, пола, отделке (в том числе и по монтажу фартука ), а также работы по устройству электропроводки , подключению розеток, водоснабжения уже проведены и закончены. Ведь когда установка кухни будет завершена, проводить все эти мероприятия будет затруднительно.
Подготовка к сборке
Перед тем, как собрать кухонный гарнитур, нужно подготовить необходимый комплект инструментов:
- Перфоратор, бур диаметром 6 и 8 мм, дрель (переходник на дрель) и соответствующие сверла;
- Шуруповерт (ОБЯЗАТЕЛЬНО!);
- Электролобзик или ножовка по металлу для того, чтобы отпилить столешницу;
- Шестигранный ключ (прилагается к комплекту);
- Инструменты: угольник и уровень, рулетка, молоток, плоскогубцы и ножик-резак.

Совет! Недостающий электроинструмент можно одолжить, а лучше приобрести. Шуруповерт и перфоратор – вещи необходимые в каждом доме.
Потребуются и крепежи разных типов:
- Мебельные гвозди;
- Евровинт;
- Крепежная полоса (рейка) для навешивания;
- Герметик на силиконовой основе;
- Стяжки, скрепляющие секции между собой;
- Саморезы: 15-16 мм для фурнитуры и 70 мм – чтобы повесить кухонные шкафы;
- Уголки, шканты, анкерные болты (прилагаются в гарнитуру);
- Кондуктор для шкантов (желательно).

Если есть инструкция по сборке, то внимательно ее изучите. В руководстве пронумерованы все детали и описан порядок работы. Удостоверьтесь, что комплектация гарнитура полная и рассортируйте все элементы по тумбам. Дальше вы будете собирать свой шкаф как конструктор, ведь большинство современных гарнитуров состоят из модулей.
Как правило, вначале собирают нижние шкафы и устанавливают на них столешницу, потом собирают и вешают верхние модули, рисуют разметку на стене, а далее модули можно уставить и подвесить.
В каком порядке производится установка кухонного гарнитура? Сначала повесить верхние секции или, наоборот, нижние? У того и другого способа есть свои приверженцы. Многие мастера устанавливают сначала верхние шкафы, чтобы нижние тумбы не мешали в процессе монтажа.
Имейте в виду, что верхние шкафчики монтируются без фасадов, так их установка будет проще. Кроме того, так вы сможете проконтролировать зазоры между фасадами непосредственно на стене.
Собираем нижние модули
Монтаж кухни своими руками логично начать со сборки тумб, устанавливаемых на полу. Стоит знать, что базовые тумбы классифицируются по типам конструкции, каждый из которых имеет свои особенности сборки:
- Собрать шкаф с дверцами своими руками достаточно просто.


- Шкаф с ящиками собрать тоже не сложно.


- При сборке своими руками совмещенного шкафа, первая задача – установить направляющие правильно.

Правила сборки навесных элементов
Сборка своими руками навесных шкафов производится по аналогии с нижними, но есть и 2 существенных отличия:
- Монтаж выдвижных ящиков здесь не производится;
- Фасады устанавливаются только на этапе крепления шкафов на стену;
- В верхних углах необходимо вешать навесы с регулировкой – для них вырезаются отверстия сзади.
Особенности сборочного этапа
Как собрать кухню своими руками правильно? Нужно непременно учесть ряд основных моментов:
- Монтаж шкафа под раковину осуществляется без задней стенки. В нем также нужно загерметизировать все вырезы, чтобы находящаяся рядом влага не могла повредить структуру ДСП.
- Крепление шкафа, где установлен посудосушитель, не предусматривает монтаж дна. Если же такая конструкция невозможна, то стоит предусмотреть крепление защитного прорезиненного полотна.
- Сборка и установка кухни производится с максимальной осторожностью. Самые уязвимые части гарнитура – это торцы фасадов. Отреставрировать поврежденную конструкцию не представляется возможным.
Устанавливаем напольные и навесные шкафы
После сборки кухонного гарнитура, можно приступать к этапу крепления.
Вначале нужно произвести крепление нижних шкафов – работы ведут от угла помещения.
Установка кухни своими руками. Установка кухни: сборка кухонного гарнитура своими руками
Установить мебель на кухне может каждый. Для того чтобы в этом убедиться, вам понадобится совсем немного: инструмент, несколько часов свободного времени и хорошая инструкция. Попробуйте использовать наши советы и соберите кухонный гарнитур своими руками, это не так сложно, как кажется на первый взгляд.
Инструмент для сборки
- Дрель.
- Отвёртка.
- Рулетка.
- Столярный угольник.
- Молоток.
- Свёрла по дереву диаметром 3, 4, 5, 7 и 10 мм, плоское сверло по дереву 30 мм.
- Ключ для закручивания евровинтов.
- Уровень.
Сборка
Рассмотрим два самых распространённых вида крепёжной фурнитуры, применяемой для сборки кухонной корпусной мебели.
Накладные металлические уголки
Уголки крепятся винтами к резьбе уже установленных в панель корпуса круглых гаек (футорок).
1 — винты; 2 — футорки; 3 — уголок; 4 — монтажные отверстия
Как правило, отверстия для установки крепежа в деталях делает производитель мебели , если по какой-то причине этих отверстий нет, то их можно сделать самостоятельно.
Совмещаем две выбранные для монтажа панели, одна из них (первая) всегда будет расположена по отношению ко второй встык, другая (вторая) по отношению к первой внахлёст.
На первой панели отступаем 70 мм от бока, монтажные отверстия в крепёжном уголке расположены на высоте 18 мм от его основания, поэтому от верха откладываем именно 18 мм и ставим метку для отверстия под гайку.
Обычная толщина панелей для сборки 16 мм, прибавим к ней 18 мм на уголок, 16 + 18 = 34 мм. Исходя из этого вычисления, делаем разметку на второй панели, сбоку отступаем те же 70 мм, а от верха 34 мм.
Для упрощения разметки на других аналогичных деталях из обрезков дерева можно сделать два шаблона с просверленными по разметке отверстиями. В дальнейшем, прикладывая шаблон к нужному краю детали и выполняя сверловку уже по нему, можно увеличить точность и сэкономить время.
Отверстия под круглые гайки (футорки) должны быть глубиной не более 12 мм и на 0,5 мм меньше диаметра самой гайки. Потайной шлиц в гайках может иметь форму либо шестигранного шлица, либо прореза под плоскую отвёртку.
Для того чтобы ровно закрутить гайку, её вставляют в отверстие и сильным нажатием медленно закручивают в панель шестигранным ключом или отвёрткой за потайной шлиц, уголки крепятся винтами в резьбу уже установленных гаек.
Евровинты (конфирматы)
Крепление деталей корпусов евровинтами, по сравнению с металлическими уголками, надёжнее и проще.
Если крепёжные отверстия не предусмотрены производителем, то вы сможете их просверлить по представленной ниже схеме.
Для закручивания евровинтов в панелях сверлятся монтажные отверстия, с боков деталей сквозные диаметром 7 мм, а в торцах деталей на глубину 40 мм и диаметром 5 мм.
Сборка корпусов шкафов
К нижней горизонтальной панели монтируются две боковые, далее к боковым панелям прикручиваются рёбра жёсткости (царги). Монтажные узлы деталей фиксируются уголками или евровинтами и затягиваются с помощью ключа или отвёртки.
Перед установкой любой фурнитуры обратите внимание на отверстия в панелях под шурупы, если этого не сделал производитель, то дополнительная сверловка делается самостоятельно. Сверло должно быть на 1,5–2 мм тоньше диаметра шурупа.
Нижние опоры (ножки) располагаются с отступами по 4 см от краёв панели и прикручиваются к ней шурупами.
Крепление задних стенок
Задняя стенка крепится шурупами или гвоздями, перед тем как её установить, обязательно убедитесь в том, что диагонали корпуса одинаковы.
Навесные секции монтируются так же, как и нижние шкафы, меняется только расположение деталей при сборке.
Для установки полок используются полкодержатели, большинство из них с одного края имеют цилиндрический стержень для монтажа в панель, с другого плоскую, гранёную или круглую форму для установки полок.
Если для полок из ламинированного ДСП подойдут полкодержатели из любого твёрдого материала и любой формы, то для стекла в местах соприкасания с полкой они должны иметь плоскую форму и мягкую опору из резины или пластика.
Все виды полкодержателей с монтажным стержнем цилиндрической формы устанавливаются по одному принципу.
Собрать кухонный гарнитур онлайн. Онлайн 3D конструктор кухни — бесплатное проектирование своими руками
Функционал конструктора кухни дает возможность подобрать и расставить мебель исходя из размеров помещения, расположения окон и дверных проемов, а также все элементы кухни. Этот онлайн планировщик кухни позволит спроектировать: материал полов, цветовую гамму стен, освещение, коммуникации, мебельные модули и их фурнитуру.
Проектирование
Проектирование удобной кухни
Этот конструктор легко и просто позволит Вам нарисовать в Онлайн проект интерьера кухни своей мечты, сохранить и вернуться к нему в любой момент с любого компьютера, как и открыть один из предложенных ниже готовых проектов, внести изменения в цвет и материал фасадов, подобрать размеры и расставить кухонную мебель и гарнитур учитывая особенности планировки своего помещения.
Для расчета окончательной цены кухни сохраните Ваш проект или распечатайте в PDF и обратитесь к нашим-партнерам -, своего города.
В первую очередь необходимо выбрать место для мойка. При планировании кухни в частном доме оптимальное для нее место – у окна. Это позволит сэкономить электроэнергию и повысит комфортность помещения, но и здесь есть свои минусы.
Кухонный гарнитур и его фасад
Бюджетный и распространенный вариант — плита МДФ из прессованных древесных волокон. Фасады ДСП с ламинирующим покрытием более рыхлые по структуре и менее долговечные.
Дерево — дорогой, роскошный и экологичный материал, прерогатива классического интерьера. Альтернатива — шпон, тонкий слой натуральной древесины до 3 мм на плите МДФ.
Мебельные ручки для кухни
Распродажи Бывают накладные и врезные ручки кухонной мебели. Чаще всего проект кухни делают с накладной скобой (или рейлинги). Менее распространенные: кнопка, капля (серьги), кольцо, раковина. Материал изготовления: дерево, пластмасса, стекло, металл (нержавеющая сталь, сплав цинка и алюминия), керамика, фарфор, горный хрусталь и всевозможные их комбинации.
В последнее время популярны фасады без видимых ручек, с гладкой поверхностью — т. н. профильные ручки (или интегрированные). Профиль привинчивается к задней стенке или фрезеруется в торец.
Фактура
Добавьте в конструкторе матовые и глянцевые поверхности, которые создаются с помощью всевозможных составов: эмаль, акрил, ПВХ-пленка. Эффекта старения мебели достигают патинированием.
Объемный рисунок выполняется с помощью фрезеровки на МДФ-панели, дереве, пластике. Получаются четкие линии, простые и сложные узоры.
Бытовая техника
Бытовая техника разделяется на встраиваемую и традиционную. Вся крупная техника (и даже холодильник) может быть встраиваемая. Она отличается компактными формами, существенно экономит кухонное пространство, практически бесшумная и удачно вписывается в любой интерьер.
Корпус
Фаворит мебельного рынка — австрийская шлифованная плита ЛДСП компании EGGER толщиной 10, 16, 18 и 25 мм (самая распространенная — 18 мм). У них большая цветовая палитра (в том числе и с текстурой дерева), низкое содержание формальдегида в составе термореактивного клея и смол, а в производстве не используется хлор.
Столешница
Самый бюджетный и распространенный вариант — плита ДСП или МДФ со слоем постформинга или ламината сверху. Есть стыки между углами.
Искусственный камень (акрил или кварцевый агломерат) стоит дороже, но это абсолютно влагостойкая поверхность без стыков. Есть монолитные панели или в слой минеральной крошки и МДФ, ДСП или слоеной фанеры.
Натуральный камень (мрамор, гранит, известняк, травертин) очень тяжелый и дорогой материал. Цена зависит от рисунка, породы, цвета, способа обработки.
Как собрать кухонный гарнитур мойку. Основные правила установки мойки
Чтобы не наделать ошибок при установке, нужно знать и соблюдать правила.
- Изделие устанавливается отдельно от плиты, холодильника и другой кухонной бытовой техники. До розеток и осветительных приборов расстояние должно быть более 60 см. Причина проста: летящие брызги воды вызывают коррозию корпуса, оставляют некрасивые пятна, а, в случае с электроприборами, могут послужить причиной короткого замыкания и пожара.
- Между мойкой и плитой располагают рабочую поверхность. Она делит столешницу на «чистую» и «грязную» зоны. В одной работают с сырыми продуктами, в другой – с уже почищенными, готовыми к использованию.
- Не стоит устанавливать мойку вдали от плиты и холодильника: закон «рабочего треугольника» гласит, что между этими основными точками рабочей зоны расстояние должно составлять не более 150-200 см.
- Борта мойки не должны выступать над уровнем столешницы. Стандартная высота тумбы, на которой ее монтируют, составляет 80-90 см.
- В процессе установки необходимо использовать строительный или лазерный уровень, чтобы не было перекосов по горизонтали.
- Изделие ставят на место только после подводки водопроводных труб и канализации. Гибкие соединения должны висеть свободно, без изломов и резких изгибов.
- Крепежи должны плотно прижимать мойку к основанию, без щелей, зазоров. Недопустимо «ерзанье» чаши на тумбе, люфт.
- Резиновые уплотнители, идущие в комплекте с раковиной, лучше заменить качественным герметиком. Он обеспечивает лучшую водонепроницаемость, служит дольше, и продляет срок эксплуатации столешницы.
- Мойки, имеющие большой вес (каменные, литые стальные, стеклянные) устанавливают с помощником. В одиночку с ними справиться очень сложно.
- Раковина, установленная напротив окна, – это один из современных модных трендов. При таком использовании подоконного пространства заметно экономится полезная площадь кухни, а хозяйка имеет возможность наслаждаться успокаивающим видом за окном.
Как собрать кухонный шкаф с выдвижными ящиками. Дизайн и конструкция – две стороны одной монеты

Эскиз угловой модульной кухни
Отдайте предпочтение модульной мебели, а также конструкциям в которых предусмотрена упрощенная сборка кухонного гарнитура. Перед покупкой составьте подробный план помещения, на котором обязательно укажите (желательно в миллиметрах):
- высоту, ширину и длину помещения в разных частях кухни – наверняка они будут различаться;
- расположение и размеры двери;
- точное положение электропроводки, канализации, водо- и газопровод;
- точное расположение вентиляции;
- высоту подоконника и расстояние от оконного проема до углов кухни.

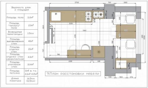
Детальный проект дизайна кухни с точными размерами и расстановкой мебели и техники
Теперь смело идите в мастерскую или мебельный магазин. Опытные специалисты с помощью компьютерных программ 3D-моделирования подберут подходящую конструкцию и дадут совет, как собрать кухонный гарнитур. При выборе руководствуйтесь правилами.
- Кухня делится на зоны варки, разделки продуктов с мойкой и складирования продуктов с холодильником. Переход между ними происходит по кратчайшему пути – «золотому треугольнику».
- Мойка, варочная поверхность и холодильник нужно расположить на расстоянии не менее полуметра друг от друга – брызги воды могут привести к выходу варки из строя, а холодильник в зоне высокой температуры будет съедать больше электричества.
- Стиральную машину и посудомойку расположите поближе к водопроводу и канализации.
Дизайн гарнитура зависит от размеров кухни. Варианты расположения элементов гарнитура буквой Г и П применяются в помещениях малого размера. Островной вариант подходит для просторных комнат.