Ворота откатные подвесные автоматические. Подвесные откатные ворота
- Ворота откатные подвесные автоматические. Подвесные откатные ворота
- Подвесные ворота чертеж. Как сделать подвесные ворота своими руками по чертежам
- Подвесные ворота. Где недорого заказать подвесные откатные ворота в Москве?
- Подвесные ворота на роликах. Плюсы и минусы подвесных ворот
- Откатные ворота с верхним подвесом конструкция. Подвесные ворота. Порядок монтажа
Ворота откатные подвесные автоматические. Подвесные откатные ворота
Каталог откатных ворот — от компании Vorota750. Установка, монтаж, доставка.
Подвесные откатные ворота – оптимальный вариант для промышленных объектов (доков, складов, пр.) и гаражей, а также въезда на частную территорию. Принцип работы такого оборудования: полотно передвигается по верхнему рельсу на роликах, а чтобы оно не раскачивалось, снизу, у опорного столба, используются два ролика, зажимающие створку между собой.
Стандартная ширина полотна обычно не превышает 3 м., что достаточно для легкового транспорта, но если планируется заезд грузовых авто или спецтранспорта, то добавляется еще 1 м. При потребности еще более увеличить проем, можно использовать двойное полотно, части которого раздвигаются в разные стороны.
Преимущества конструкции
- Занимает минимум полезного пространства – откатные ворота подвесного типа можно располагать даже в условиях плотной застройки.
- Чтобы открыть створку, нет потребности расчищать прилегающую территорию от листвы или снега.
- Отличная стойкость к ветру и механическим нагрузкам.
В качестве недостатка конструкций с верхним механизмом можно считать ограничение проема по высоте.
Откатные подвесные ворота для дачи можно сделать собственными руками, что значительно снижает их стоимость. Для этого необходимо иметь следующие материалы:
- металлические трубы квадратного сечения – для производства каркаса (20х20 и 40х40), опоры и верхней балки (120х120х4 мм);
- профнастил, сэндвич-панели или пр. – для создания полотна;
- направляющая – длина выбирается в два раза больше, чем ширина створки;
- подходящая фурнитура – для подвеса створки и пр.;
- автоматика (если это необходимо);
- врезной замок;
- «болгарка» и сварочный аппарат.
Подвесные ворота чертеж. Как сделать подвесные ворота своими руками по чертежам
Откатные подвесные ворота своими руками, чертежи которых тоже часто сделаны самостоятельно, устанавливаются в ангарах, гаражах, складах. Классические железные и деревянные самодельные двустворчатые ворота утеряли свою популярность. На смену им пришли новые конструкции, которые отличаются от откатных тем, что в подвесных есть направляющая. Она прикреплена к балке, находящейся в верхней части ворот. Откатные ворота имеют рельс, по которому способны передвигаться.

Изображение 1. Конструкция подвесных откатных ворот.
Особенности откатных ворот и инструменты для их установки
К основным особенностям можно отнести:
- подвесные конструкции экономят место, это очень важно, когда ширина проезда невелика (изображение № 1);
- нет необходимости зимой очищать въезд от выпавшего снега;
- ворота устойчивы к воздействию ветра;
- для установки конструкции места нужно не очень много;
- ограничение ворот в сторону их высоты;
- направляющую надо будет чистить от снега.
Для установки подобной конструкции нужны схемы и чертежи, некоторые инструменты:
- труба металлическая, желательно квадратного сечения, размеры ее — 40х40 мм;
- профнастил или другой материал для покрытия полотна;
- труба сечением 120х120х4 мм для изготовления балки;
- комплект фурнитуры для ворот;
- автоматика;
- аппарат сварочный;
- замок врезной;
- болгарка.
Как сделать бетонный забор из плит ?
Запор на гаражные ворота своими руками.
Станок для сетки рабицы. Подробнее>>
Изготавливаем ворота своими руками

Изображение 2. Схема монтажа роликов откатных ворот.
Изготавливаются ворота шириной не больше 3 м. Именно такой размер принят для обычного легкового автомобиля. При необходимости размер меняется. Трубы укладываются на земле, и тщательно измеряются все расстояния, особенно диагонали. В углах они слегка прихватываются сваркой и снова проверяются. После того как достигнуты все размеры, сварка делается прочно. Швы нужно накладывать таким образом, чтобы вода не попала внутрь рамы. После сварки основного размера полотен вставляются и свариваются внутренние перемычки.
После сварки все стыки обрабатываются болгаркой, конструкция окрашивается грунтовкой по металлу, привариваются внешние листы металла. Если это будет профнастил, то выбирать его надо будет с высотой волны до 20 мм. Листы можно прикреплять к раме саморезами. Замки нужно крепить сразу.
Концы вертикальных опор нужно вкопать в землю и забетонировать на глубину 120 см. При установке нужно обязательно использовать уровень. Можно укрепить полотно на стене над проемом. Направляющую крепят к стене на кронштейны. К раме крепятся роликовые опоры. Полотно подвешивается, ролики заводятся в направляющую, устанавливаются заглушки (изображение № 2). Автоматика и ручки монтируются при их наличии.
В целом процесс установки ворот представляет собой:
- Изготовление.
- Выбор способа установки.
- Ручная установка.
- Монорельс.
- Изготовление полотна.
- Установка привода.
Полотна могут быть изготовлены из металлических конструкций с помощью сварки. В этом случае нужен сварочный аппарат. Они могут собираться из пластика, тогда аппарат не пригодится.
Способ установки зависит от того, выбран ли ручной или автоматический способ управления воротами. Ручной способ проще и намного дешевле. Для него нужно приобрести специальную направляющую из нержавейки, которая будет выполнять роль монорельса. К ней нужно купить ограничители и металлические ролики. Монорельс выставляют с применением уровня и приваривают к закладным деталям. Ролики вставляются внутрь, торцы закрываются заглушками. Ворота такого типа могут устанавливаться при въезде на дачный участок.
http:
Самоделки, сделанные с использованием собственной схемы, да еще и работающие как надо — это повод для гордости хозяина.
Главное здесь, не забыть о том пути, который будут проходить ворота во время их закрывания и открывания. Дорога для них должна быть всегда свободна. Подвесные ворота, чертежи к которым разработаны самостоятельно, это не очень сложное дело. Пробуйте, делайте — все получится.
Откатные подвесные ворота, которые устанавливаются в ангарах, гаражах, складах, являются популярной альтернативой классическим железным и деревянным двустворчатым воротам.
Конструкция подвесных откатных ворот
Основные особенности подвесных откатных ворот:
- Направляющая, прикрепленная к балке в верхней части ворот
- Рельс, по которому вороты передвигаются
Установка подвесных откатных ворот
Для установки подвесных откатных ворот вам потребуется:
- Схемы и чертежи
- Некоторые инструменты
Ворота изготавливаются шириной не более 3 метров, что является стандартным размером для обычного легкового автомобиля. Если вам нужен другой размер, его можно изменить.
Трубы укладываются на землю, и все расстояния, особенно диагонали, тщательно измеряются. В углах они слегка прихватываются сваркой и снова проверяются. После достижения всех размеров, сварка делается прочно. Швы нужно накладывать так, чтобы вода не попала внутрь рамы.
После сварки основного размера полотен вставляются и свариваются внутренние перемычки.
После сварки все стыки обрабатываются болгаркой, конструкция окрашивается грунтовкой по металлу, привариваются внешние листы металла. Если это будет профнастил, то выбирать его нужно с высотой волны до 20 мм. Листы можно прикреплять к раме саморезами. Замки нужно крепить сразу.
Подвесные ворота. Где недорого заказать подвесные откатные ворота в Москве?
Компания «Стильстрой» занимается производством подвесных сдвижных ворот с 1998 года. У нас можно заказать сдвижные подвесные ворота любого размера, выбрать цветовое оформление и комплектующие.
Мы работаем напрямую с лучшими отечественными и европейскими поставщиками, располагаем обширным складом, поэтому материалы и запчасти всегда в наличии.
Обладая собственной производственной базой, заказы выполняем точно в срок и несём ответственность за качество продукции. Каждое изделие проходит многоступенчатую систему контроля, поскольку мы дорожим репутацией.
Можем изготовить откатные ворота с верхним подвесом для склада, автосервиса и любого другого объекта, подвесные автоматические ворота с электроприводом, в соответствии с заданными размерами и требованиями заказчика.
Доступная стоимость ворот с верхним подвесом, как и конструкций прочих типов в компании «Стильстрой», обусловлена большим потоком заказов. Благодаря значительным объёмам работы, мы получаем прибыль, не завышая цен.
Подвесные ворота на роликах. Плюсы и минусы подвесных ворот
Как театр начинается с вешалки, так и участок начинается с ворот. Подвесные ворота на роликах для участка используются вместе с другими конструкциями — консольными и откатными. Они представляют собой балку, жёстко закреплённую на столбах. Вдоль неё могут перемещаться ролики, на которых подвешена створка ворот. Балка при этом вынесена за плоскость столбов. Створка, отъезжая, располагается вдоль забора, освобождая проезд.
Ближайшие по конструкции к ним — откатные и консольные ворота. Они отличаются типами направляющих, по которым ходят ролики. Принципиальной разницы в конструкции створки нет. Используется одна или две створки, в зависимости от потребностей.
Консольные ворота имеют две балки, которые расположены в стороне от въезда. Створка жёстко закреплена между ними. При работе она выезжает в проезд и заезжает обратно, открывая и закрывая его. Подвесные ворота имеют перед такой конструкцией преимущество в цене и массе, а также надёжности работы. Система не нагружена большими изгибающими моментами, которые рано или поздно приведут в негодность ролики. Она имеет меньше шансов к заклиниванию. Более устойчива к непредвиденным увеличениям нагрузок на детали из-за обмерзания или коррозии подшипников — консольные ворота быстрее придут в нерабочее состояние из-за этого.
Откатные ворота отличаются от подвесных тем, что направляющая здесь расположена на земле. Они меньше нагружают столбы, ведь вес самой створки приходится на грунт. Вроде бы это должно удешевлять и упрощать конструкцию, позволяет применять более дешёвые ролики. Однако это не так.
Из-за нижнего расположения приходится использовать выпуклую направляющую, так как в швеллер будет набиваться грязь, снег, замерзать вода. Она будет чувствоваться при въезде, особенно для велосипеда или транспорта без рессор. Ролики для такой системы будут сложные, с буртиками. Они стоят дороже, чем для подвесной. Также сама нижняя направляющая должна быть свободна от снега, его придётся постоянно чистить. Для подвесных ворот даже наличие сугробов снега на въезде не является препятствием для открывания-закрывания.
Подвесные ворота имеют хорошее свойство — они увеличивают жёсткость столбов за счёт балки, которая их скрепляет в верхней части. Установка такого элемента часто делается для обычных распашных, правда, съёмного типа, чтобы позволить въезжать высокому транспорту. Отсюда недостаток подвесной системы — приходится делать её съёмной или с большим запасом по высоте. Например, в маленьком доме, где у владельцев только легковые машины, придётся делать ворота, которые по высоте больше грузовика, а также столбы к ним. Это более трёх метров. Для консольных или откатных можно обойтись небольшой высотой створок.
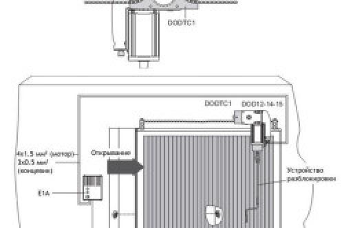
Откатные ворота с верхним подвесом конструкция. Подвесные ворота. Порядок монтажа
1. Перед установкой ворот почва, в сторону которой будет направлен откат, выравнивается.2. По обеим сторонам ворот крепятся вертикальные опоры – металлические трубы, имеющие квадратное сечение, диаметром 20-40 мм. Так как на такие опоры будет ложиться верхняя балка, расстояние от земли до верхней части опоры должно быть таким, чтобы в ворота смог свободно проехать автомобиль.3. Для монтажа опор выкапывается яма глубиной 120-150 см, в которую опускается металлическая труба, закладывается арматура, а затем яма бетонируется. Пространство между таким фундаментом и грунтом засыпается щебнем, при этом каждый его слой проливается водой и дополнительно уплотняется. Бетонирование опорных столбов
Совет. Для защиты от влаги в верхней части металлической опоры следует приварить металлические или вставить деревянные заглушки. Это позволит существенно увеличить срок службы опор и предохранит их от ржавчины.
4. Воротные опоры должны располагаться строго вертикально . В случае малейшего их перекоса движение ворот будет затруднено или, напротив, они будут открываться и прикрываться самопроизвольно. Поэтому при установке опор их расположение тщательно выверяется строительным уровнем.5. Для верхней подвесной балки используется гнутый профиль особой формы (см. фото). Размер его сечения зависит от веса подвешиваемых створок. Так, для створок массой до 300 кг достаточно приобрести профиль 40×35×2,5 мм. Тяжелые ворота весом до 1000 кг потребуют более мощного профиля размером 90×75×4,5 мм. При этом его прогибы недопустимы.
Профиль для верхней балки 6. Для полного отката створки длина такой балки должна быть в 2 раза больше ширины самого проема. Для стандартных гаражных ворот ее длина должна быть равна 6 м. При необходимости этот размер можно уменьшить. Схема устройства подвесных ворот 7. Для монтажа такой конструкции потребуется следующая фурнитура:• две тележки (консольных ролика) с резьбовой осью;• четыре кронштейна с винтом для крепления направляющей;• стопоры (ограничители).
Тележки с резьбовой осью
Комплектующие и фурнитура для изготовления подвесных ворот (кронштейны, подвесная балка и консольные ролики (тележки)) 8. Направляющая балка закрепляется на несущей опоре или верхней части стены здания с помощью подвесных кронштейнов так, чтобы ее нижняя рабочая часть, по которой будут перемещаться ролики, была обращена вниз.Совет. При наличии в балке сварного шва он может помешать свободному ходу каретки. Чтобы ролики проходили по балке свободно, ее можно расположить и так, чтобы шов оказался сбоку.
9. На одно полотно любого размера потребуется не более двух роликовых тележек. Разнос кареток при этом зависит лишь от ширины полотна. Вначале у них срезаются пятки (основания, на котором крепятся тележки), а лишь затем ролики приваривается к каркасу створок . Воротное полотно должно чуть перекрывать проем (на 20 см), а расстояние между почвой и створкой составлять не менее 5 см.10. Затем полотно ворот вставляется с помощью роликов в верхнюю подвесную балку. Для ограничения движения створки по краям балки с обеих сторон монтируются заглушки .
Подвесная откатная система 11. Чтобы избежать раскачивания створок при порывах ветра (это возможно при слишком большой высоте ворот), в верхней и нижней части ворот устанавливаются специальные ограничители . Их можно приобрести готовыми или попросту наварить куски арматуры на щели направляющей. Стопор-ограничитель 12. При наличии автоматики она подключается в соответствии с технической документацией и приложенной к ней схемой.