Как сварить гаражные ворота. Выбираем материалы
- Как сварить гаражные ворота. Выбираем материалы
- Как сварить ворота из уголка. Ворота из уголка – качественно и быстро своими руками
- Как сварить ворота из профиля. Как изготовить ворота из профильной трубы своими руками — пошаговая инструкция с фото и видео
- Как сварить гаражные ворота из профиля. Как сварить ворота на забор из профильной трубы своими руками
- Рамка для гаражных ворот. Ворота для гаража на даче своими руками
Как сварить гаражные ворота. Выбираем материалы
Самое главное, что нужно сделать — правильно выбрать материалы. Ведь именно от них во многом зависит прочность и долговечность всей конструкции.
Вы можете сварить гаражные ворота из уголков или профильных труб. Второй вариант более надежный и долговечный, по нашему опыту. Именно поэтому сейчас мы не будем рассказывать, как сварить ворота на гараж из уголков. Это тема для отдельной статьи.
Профильная труба может быть квадратной, овальной или прямоугольной. Лучше использовать квадратную. Из квадратной трубы получаются надежные и красивые ворота, и с таким профилем легче работать. Конечно, можно сварить ворота на гараж из круглой трубы, но такая работа сложнее и дороже.
С профилем разобрались. Теперь нужно выбрать материал, из которого изготовлена наша профтруба. Если бюджет совсем ограничен, то можно купить трубы из углеродистой стали, они стоят дешевле. Самый лучший вариант — трубы из нержавейки, но придется потратиться. Оптимальный выбор — трубы из низколегированной стали.
Далее нужно определиться с толщиной стенки трубы. Производители предлагают изделия с толщиной от 1 до 20 мм. В нашем случае 2 мм будет достаточно. Брать трубы с большей толщиной стенки нецелесообразно при сборке гаражных ворот.
Что касается размеров, то подготовьте трубы 40х20 мм. Это универсальный размер, его легко найти в продаже, стоит относительно недорого, отлично выдерживает нагрузки.
В качестве облицовки мы используем металлические листы толщиной 2 мм. Также можно использовать профнастил или дерево.
Дополнительно створки можно утеплить с помощью пенопласта. Если вы зимой подолгу проводите время в гараже, то утепление существенно снизит затраты на отопление. Пенопласт стоит дешево и отлично подходит для этих целей.
После сборки и монтажа ворота можно покрасить, чтобы защитить от преждевременной коррозии. Выбирайте краску для наружных работ.
Как сварить ворота из уголка. Ворота из уголка – качественно и быстро своими руками
Существует много материалов, из которых можно сделать ворота. Достаточно долго их делали в основном дома своими руками из стального уголка. Объясняется это довольно просто. Во времена дефицита очень сложно было «достать» какой-нибудь другой материал. А о том, что можно просто купить ворота, не могло быть и речи. Каркас ворот
А вот металлические листы можно было получить вполне реально. Также возможным было приобретение стального уголка. В наше время фирмы в основном отказываются выполнять конструкции такого плана, ведь работа это достаточно трудоемкая и длительная. Однако сделать такие ворота дома вполне реально.
Виды металлических уголков
Уголки выпускаются предприятиями, которые занимаются металлопрокатом. Они имеют технические характеристики, которые позволяют широко применять их во многих видах строительной деятельности.
Изделие получило такое название благодаря Г-образной форме, а производство уголка происходит методом горячего проката. Наряду с небольшим весом, уголки имеют высокие показатели жесткости, а их форма способствует возможности выдерживать большие нагрузки.
Все металлические уголки делят на 2 вида:
- Равнополочные. Они имеют одинаковые размеры сторон. К примеру, в уголка 40х40 обе стороны по 40 мм. Диапазон размеров таких уголков достаточно широкий: от 20 до 200 мм. При этом максимальная толщина – 16 мм, а длина зависит от цели применения.
- Неравнополочные. Это уголки с разными размерами сторон. Например, размеры уголка 130х75: одна сторона равна 130 мм, другая – 75 мм.
Изготовление ворот из уголка своими руками
Сделать ворота своими руками – это значит сэкономить денежные средства, которые ушли бы на их приобретение и установку. Поэтому такая перспектива привлекает многих, кто хотел бы установить металлические ворота у себя дома. Выполнение этой работы требует немалых усилий, зато результат порадует красивым видом новых ворот.
Изготовление каркаса
Изготовление конструкции ворот своими руками обычно начинают с выстраивания каркаса. В принципе это несложное дело, но требует знания особенностей работы:
- Для того чтобы определиться с размерами ворот, проводятся замеры.
- Выбор материала. Для каркаса можно использовать металлические уголки. Толщина материала выбирается в соответствии с габаритами будущих створок ворот.
- Подготовка основы. Для этого, исходя из выбранных размеров, нужно разрезать металл на составные части. Резка уголка производится болгаркой.
- С помощью сварки производится скрепление составных частей. Причем, вначале делаются прихватки (точечные соединения), и только когда точность окончательно выверена, делают окончательную приварку. Сварные стыки иногда мешают плотному прилеганию полотна ворот, поэтому есть смысл обработать их шлифовальным кругом или болгаркой. Когда делают каркас, для уголков можно использовать болтовые соединения.
- Профлист крепится к раме, не установленной на опоры. В этом случае каркас не будет деформироваться.
Итак, построить каркас для ворот вполне реально своими руками. Однако лучше пригласить пару помощников.

Сварочный стол
Cварка створок
Когда каркас на ворота готов, на них устанавливаются металлические листы. Для этого вначале определяются с их точными размерами, а затем обрезают по размеру створок. Очень важно сделать это с первого раза, ведь обрезать металл несколько раз нежелательно. Сварку нужно начинать с нижней части, а затем, еще раз проверив положение полотна, прикрепить его на каркас.
Навеска полотна и установка ворот
Главным элементом в навесной системе являются петли. От их качества и прочности зависит то, насколько хозяева дома обезопасят свой двор или гараж от взлома. Поэтому нужно обратить особое внимание на этот элемент конструкции.
Петли на ворота привариваются в два этапа:
- Нижнюю часть навеса приваривают к раме (нужно следить, чтобы не было зазоров). Навесы должны находиться в одной плоскости.
- Навес приваривают к створке с зазором. Для этого с внутренней стороны можно приложить кусок арматуры, служащий усилительным элементом. Снаружи створка соединяется с навесом с помощью пластины из металла.
Рама устанавливается отдельно, после того как с нее снимают створки. Крепление производится с помощью сварочного аппарата к вмонтированным заранее закладным частям.
Замки или засовы устанавливаются после полного окончания работ по установке ворот.
Как сварить ворота из профиля. Как изготовить ворота из профильной трубы своими руками — пошаговая инструкция с фото и видео
Преимущества профильной трубы для изготовления ворот
Труба из профиля, как основной материал для создания ворот, востребована, популярна и часто используется благодаря следующим достоинствам:
- низкая стоимость;
- высокая прочность и при этом небольшой вес;
- удобство монтажа – профиль податливый, легко вырезать детали, сваривать заготовки, соединять саморезами.

Но наряду с плюсами есть и недостатки:
- Слабая устойчивость к коррозии. Высокая влажность окружающей среды и жидкость, проникающая внутрь конструкции, постепенно приводит к образованию ржавчины.
- Наносить грунтовку и краску на поверхность труб неудобно, что значительно затягивает время установки.
- При неаккуратном обращении и ошибках при установке каркас часто деформируется.
Как изготовить ворота из профильной трубы своими руками
Ворота для дома или дачи могут быть изготовлены самостоятельно. Подходящим материалом для этой цели является металл.
Существует большое количество различных способов изготовления проезда из этого материала, но наиболее простым и практичным техническим решением, является использование профильной трубы. При наличии сварочного аппарата ворота из профильной трубы своими руками можно изготовить в течение одного дня.
Виды ворот из профильной трубы
Изготовление ворот из профильной трубы своими руками может осуществляться следующих видов:
- В виде решётки.
- Обшитые сайдингом, деревом либо профнастилом.
- С элементами ковки.
- Ажурные.

Если створки устанавливаются для того, чтобы скрыть двор от посторонних глаз, то из профиля изготавливается только рама ворот, а свободное пространство полностью закрывается с помощью любого сплошного материала.
В случае, когда необходимо установить ворота с элементами декора, то при сборке следует использовать кованые изделия, которые не закрывают обзор участка за ограждением. Ворота также могут быть изготовлены с использованием внутри рамы параллельно расположенных отрезков профильной трубы небольшого сечения.

Вне зависимости от вида ворот изготавливаемых самостоятельно из профильной трубы, необходимо правильно подобрать материал для изготовления опор, каркаса и внутреннего заполнения рамы.
Выбираем профильную трубу
Только при наличии качественного материала можно изготовить ворота, геометрическая форма которых не изменится в течение длительного промежутка времени.
Если на поверхности материала имеется глубокая коррозия, то от использование такого профиля следует отказаться. Поэтому, если нужно использовать материал, который остался от выполнения других видов строительных работ, его следует тщательно осмотреть перед использованием.
Самым правильным вариантом является приобретение профильной трубы на металлобазе. Для изготовления конструкции потребуется материал следующего сечения:
- Для изготовления опор — 80*80 мм.
- Для рамы — 60*40 или 40*20 мм.
- Для перемычек — 40*20 или 20*20 мм.

Толщина стенок металлической трубы не должна быть менее 2 мм.
Для выполнения сварочных и монтажных работ также понадобятся:
Когда все материалы и инструменты будут приготовлены можно приступать к непосредственному изготовлению сварной конструкции.
Процесс изготовления ворот из профильной трубы
Прежде чем приступить к практической части, составляются подробные чертежи и эскизы данного изделия. На бумаге следует обязательно указать длину и высоту сооружения, а также количество перемычек между горизонтальными плоскостями.
Если изготавливается распашная конструкция, то необходимо сварить две одинаковые по размеру створки.

При конструировании более сложной, откатной системы, ворота выполняются в виде одного длинного полотна прямоугольной формы.

Вне зависимости от типа конструкции, ширина не должна быть менее 3 метров, а высота — 1,6 м.
Как сварить гаражные ворота из профиля. Как сварить ворота на забор из профильной трубы своими руками
Технология изготовления конструкции достаточно простая. Чтобы сварить ворота из профильных труб, нужно подобрать вид изделия, оптимально подходящий под конструкцию створок.
Установка запоров
Выбор труб
Профтрубу под ворота предпочтительней выбрать квадратного либо прямоугольного сечения. Трубы такой формы легче монтируются и транспортируются на участок. Наиболее прочные профильные трубы производятся из следующих видов стали:
- нержавейки;
- оцинковки;
- углеродистой.
На фото представлены металлические створки.
Кованые элементы
Цена трубных заготовок зависит от материала, из которого они изготовлены. Наиболее бюджетным вариантом являются изделия из углеродистой стали. Впрочем, при выборе труб из углеродного сплава учитывается низкая прочность и короткий эксплуатационный срок такой продукции.
Сварные холоднокатаные и оцинкованные профили – оптимальный вариант под створки, но их стоимость выше. Трубы равнозначного диаметра могут вдвое отличаться по толщине стенок.
Под створки используются трубы квадратного либо прямоугольного сечения. Сделать работу правильно и своими руками возможно при наличии сварочного аппарата и вспомогательных инструментов.
На фото изображена конструкция после установки.
После монтажа
Подготовка участка
На стадии подготовки учитываются габариты въезжающего в проем ворот автотранспорта. Определяется общая площадь, занимаемая распашными или откатными створками. Стандартные размеры ворот составляют:
- по общей ширине – 2,5–3,5 м;
- по высоте (ворот и калитки) – 1м 50 см;
- по ширине калитки – 0,75–1 м.
На фото изображены ворота на даче.
Металлический штакетник на профтрубе
С учетом калитки общая ширина участка под ворота должна составлять 3,5 или 4,5 м. Конструкция, монтируемая на ранее установленное заграждение, ставится по соответствующей изгороди высоте. Иногда допустима меньшая высота створок, но не менее 40 сантиметров.
Чертежи и расчет
Перед проведением работ на бумагу наносится чертеж. Изображают прямоугольный проем с прямоугольником меньшего размера внутри, обозначающим раму из профиля с указанием длины и ширины будущей конструкции. Также проводится расчет финансовых затрат на приобретение необходимых материалов и набора инструментов для работы.
Схема установки с размерами
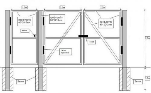
Ворота из профтрубы собираются из различных элементов, отличающихся сечением. Диаметр стальной трубы под несущие створки опоры составляет 80х80 или 100х100 мм. Каркас ворот из профтрубы выполняется из изделий 50х50 мм.
Перемычки и продольные полосы сваривают из отрезков профиля 20–40 мм.
Кроме основных величин, на рисунке чертежа указывают размеры зазоров между створками, грунтом и опорами. На сторонах с петлями приблизительная ширина зазора составляет 5 мм. Учитывая возможное провисание ворот и их подклинивание в будущем, на стороне с замками оставляют просвет в 10 мм.
Эскиз металлического каркаса
На участке, не подверженном снегу и мусору, внизу створок учитывается просвет, но не меньше 20 мм. При учете негативного воздействия внешних факторов высота зазора предусматривается в 50–150 мм (решается индивидуально).
Подготовка инвентаря
Работа выполняется посредством следующих инструментов:
- оборудования для сварки и электродов;
- угловой шлифовальной машины (болгарки) с абразивными и отрезными кругами;
- измерительных приборов: рулетки, строительного уровня, отвеса, угольника;
- винтоверта с самонарезающими шурупами по металлу;
Чертеж каркаса из металла
Используемые материалы:
- Профильные трубы. Из профиля изготавливается каркас. Для сваривания рамы и перемычек используют трубы сечением 50х50, 20х40 или 20х20 мм.
Рамка для гаражных ворот. Ворота для гаража на даче своими руками
Приобрести добротную гаражную конструкцию в наше время – удовольствие не из дешевых. Ворота для гаража своими руками сделать дешевле, но необходимы определенные знания и умения. Также желательно иметь навык сварочных работ. Поэтому, как сделать ворота для гаража своими руками, – вопрос, в котором нужно разобраться досконально. А вот тогда можно уже будет и приступать к выполнению поставленной задачи.
Виды гаражных ворот
Для начала необходимо определить, какая именно модель будет использована для гаража. В наше время немало их видов, и хозяину нелегко определиться с выбором.
Секционные ворота
Представляют собой набор панелей (сдвижных секций), соединенных между собой петлями. Крепятся и передвигаются по специальным направляющим вверх. При открывании поднимаются одна за другой и заходят в нишу под потолком. Секционные ворота для гаража очень удобны.
Секционные складные ворота используются в частных домах, на фермах, паркингах.
Около частного дома
Большинство пользователей выбирает их за компактный размер.
Преимущества: удобство, защита от взлома, универсальны в использовании. Недостатки: высокая стоимость, складывающиеся конструкции подвержены порче.
Распашные ворота
Распашная модель – классическая гаражная конструкция, состоящая из двух створок,. Самая распространенная модель. Существует 2 вида: простые и автоматические ворота. Основными достоинствами считают простоту конструкции и надежность.
Недостаток – трудности, связанные с открыванием зимой: необходима чистка снега. Также требуется систематическая смазка петель. Хозяину несложно сделать своими руками именно такие ворота для гаража.
На фото представлен распашной вариант конструкции.
На загородном участке
Откатные ворота
Новая. Выглядят эстетично и просты в использовании. Принцип действия: внизу и вверху проема крепятся направляющие, по которым 2 створки съезжаются и разъезжаются. Бывает 2 вида открывания: автоматический и ручной. Преимущества: компактные, не занимают много места, долгий срок службы, надежность.
Недостаток – нужен систематический уход за роликовой системой: необходимо исключить попадание снега, воды, посторонних предметов.
Откатной вариант
Подъемно-поворотные ворота
Это наиболее практичные и удобные вертикальные конструкции. При открывании лист металла поднимается вверх и ложится горизонтально в виде козырька. Конструкция такого механизма несложная. Полотно крепится на раму и движется вокруг оси, меняя горизонтальное положение на вертикальное. Откидные ворота удобны в эксплуатации.
Чертеж подъемной конструкции
Достоинства: стойкость к коррозии и взлому, не требуют дополнительного места.
Недостатки подъемно-поворотных конструкций: высокая стоимость, подходят для проемов только прямоугольной формы, в открытом виде уменьшают высоту проема на 25 см. Сделать подъемные ворота для гаража на даче своими руками будет достаточно проблематично, так же, как и подъёмно-поворотные.
Перечень элементов
Выбор
Разнообразие гаражных конструкций затрудняет выбор. Хозяин автомобиля прежде всего озабочен безопасностью своего транспорта. Только потом он учитывает остальные характеристики, такие, как удобство в эксплуатации, цена, габариты конструкции.
Таблица сравнения основных характеристик гаражных ворот.
Сравнение характеристик
Руководствуясь показателями в таблице, можно сказать, что выбор – только за покупателем. Все зависит от стоимости и надежности. Например, распашные и секционные модели хорошо ставить в домашнем гараже, но они не подойдут для гаражных кооперативов, так как имеют невысокую степень надежности.
Подъемно-поворотные ворота для гаража подойдут для любого строения, но их главный недостаток – высокая стоимость. Из-за невысокой цены для частного гаража подойдут распашные ворота. При необходимости их можно утеплить, автоматизировать и усилить дополнительным листом металла. К тому же несложно сварить ворота для гаража в домашних условиях.
В процессе установки
Установка своими руками
Распашные ворота для гаража – самый распространенный вид строительной конструкции. Их просто установить и несложно за ними ухаживать. При необходимости их можно модернизировать. Также опытному мастеру будет несложно сделать деревянные ворота для гаража своими руками. Откатные ворота или подъемно-поворотные изготовить и смонтировать намного сложнее. Тем не менее для установки данных ворот своими руками помогут чертежи, фото и
Каркас
Для изготовления каркаса необходимы точные длина и ширина проема гаража. Сначала определяют размеры будущих ворот. Также делают чертежи будущей конструкции. Чтобы сделать основу гаражной конструкции, нужен сварочный аппарат.
Схема устройства каркаса
Каркас выполняется из металлического уголка, который приваривается по всему периметру дверного проема. Таким образом отделывают откос внутри и снаружи. Между собой внутренние и наружные уголки сваривают металлическими полосками в нескольких местах. Должна получиться каркасная рамка.