Как сделать ворота из профнастила своими руками.. Размеры
- Как сделать ворота из профнастила своими руками.. Размеры
- Как сделать красивые ворота из профнастила. Как сделать ворота из профнастила
- Красивые ворота своими руками. Что понадобится для создания чертежа
- Чертеж ворот с калиткой из профнастила. Профнастил — преимущества и недостатки
- Ворота из профнастила в рамке своими руками. Основные достоинства
- Ворота из профнастила в рамке чертеж. Установка ворот из профнастила своими руками
- Как правильно сделать ворота и калитку. Как сварить металлические распашные ворота для дачи своими руками
Как сделать ворота из профнастила своими руками.. Размеры
Ширину въездной зоны определяют габаритами машины с учетом выступающих зеркал. Дополнительно рекомендуется брать запас в 100 см для маневров или проезда более крупной техники. Как правило, в итоге получается 3-5 м. Для калитки оставляют 0,9-1,2 м для свободного прохода двух людей среднего телосложения.
Высота, как правило, аналогична длине профлиста. Так, если полотно имеет размер 2 м, то ворота из профнастила с калиткой приподнимают на 20-50 см над землей для защиты кромки листа от осадков и растительности. На заказ некоторые изготовители предлагают разные варианты с шагом 0,5 м.
Столбы
Материалом для опорных элементов может служить металлический профиль квадратного или круглого сечения, деревянный массив. Первый вариант считается более надежным и долговечным решением. Как правило, это труба со стенками 3мм, поперечным сечением около 80 мм. Заготовки предварительно обрабатывают антикоррозионным составом длительного действия, который защищает металл при прямом контакте с грунтом.
Установка проводится на глубину не менее ⅓ от общей длины столба, но ниже уровня промерзания почвы. Заготовки должны иметь строго вертикальное положение. Для надежности дно лунки (ширина равна трем диаметрам столба) укрепляют утрамбованной насыпью из щебня с песком слоем 15-30 см. Остальное пространство заполняют цементным раствором (то же делают с полостью в профиле, если отсутствует верхняя герметичная заглушка). Стенки ямы рекомендуется укрыть рубероидом для защиты бетона.
Забор из профнастила: выбор подходящего материала, и основные этапы монтажа
Дополнительно опорные элементы можно задекорировать. Это может быть кирпичная кладка или обшивка с имитацией природных материалов. В таком случае будет заужен въездной пролет, поэтому в проекте нужно учитывать размеры готовых столбов заранее.
Каркас
Для каркаса ворот из профлиста применяется металлический профиль квадратного или прямоугольного сечения. Это могут быть заготовки размером 40*20 или 60*40 мм, – какую использовать, зависит от расчётов ветровой нагрузки. Для перемычек можно использовать трубы 20*20 мм. Толщина может составлять 2-3 мм.
Торцевой разрез проводится под прямым углом или в 45 градусов. Второй вариант увеличивает площадь сварного шва, что положительно сказывается на прочности соединения. Электроды, как правило, берут диаметром в 3 мм.
Усиление створок осуществляется посредством перемычек. Их приваривают горизонтально, по диагонали либо перекрестно. Дополнительно по периметру можно закрепить уголки из листового железа.
На готовой конструкции сварные швы зачищают и шлифуют. Всю конструкцию обезжиривают и покрывают грунтовочным составом. В завершение каркас окрашивают ЛКМ с антикоррозионными добавками.
Профнастил для забора: виды, характеристики, особенности выбора
Последовательность действий
Установка столбов проводится с применением бетонного раствора, на высыхание которого уходит не менее 28 дней. В результате проведение работ по монтажу ворот возможно не ранее, чем через 14 суток, чтобы набор прочности составлял минимум 50%.
Сначала приваривают петли (2 или 3 в зависимости от веса конструкции и нагрузки на ворота). Лучше использовать гаражные петли, так они справляются с высокой механической нагрузкой и долго служат. Расположение выбирается с учетом отступа от горизонтальных направляющих дверцы на 20-30 см. Для одностороннего открывания петли накладывают на опору и раму, для двухстороннего – монтируют встык к столбу.
Далее приступают к фиксации профнастила. Для этого используют кровельные саморезы с уплотнительными герметичными шайбами. Вкручивают их во все элементы каркаса, включая перемычки. Шаг равен ширине двух волн. Нахлест полотен проводится на 1 выступ.
Как сделать красивые ворота из профнастила. Как сделать ворота из профнастила

В настоящее время ассортимент каждого строительного магазина изобилует огромным количеством материалов, предназначенных для обустройства и монтажа ворот. Однако большинство застройщиков предпочитают использовать профнастил , поскольку он обладает рядом полезных свойств: долговечность, прочность, эстетичность и доступная стоимость. Сырье изготавливается на заводе посредством метода холодного проката стальных листов, обе стороны которых обрабатываются защитным слоем цинка, предохраняющим поверхность от пагубных воздействий окружающей среды и преждевременного разрушения. Для того чтобы более подробно ознакомиться с представленным материалом, а также ответить на вопрос, как сделать ворота из профнастила самостоятельно, следует разобраться в особенностях его использования и изучить технологию сборки.
Преимущества конструкций

Использование этого материала обусловлено рядом определяющих достоинств. Из них существенными признаются:
- продолжительный период эксплуатации;
- небольшой удельный вес конструкции;
- огромный выбор цветовой гаммы и текстуры;
- отсутствует необходимость проведения периодического ремонта;
- ценовая доступность;
- легкость монтажа.
Типы конструкций
Виды конструкций
Из множества имеющихся вариантов изготовления ворот стоит выделить два ярких представителя:
- Распашные – две створки, которые расходятся в противоположные друг от друга стороны.
- Откатные – одно полотно, перемещающееся вдоль ограждения.
Из представленного списка свой взор стоит остановить на втором виде, поскольку он экономит окружающее пространство и не прихотлив к воздействиям непогоды.
Для того чтобы возвести своими руками откатную конструкцию потребуется правильно рассчитать пропорции противовеса и подготовить надежный фундамент. В противном случае ворота могут деформироваться и выйти из строя.
Требуемые инструменты и приспособления

Абсолютно в любом строительном мероприятии предшествующим этапом всего хода работ является подбор необходимого инструмента. Чтобы изготовить откатные ворота потребуется:
- строительный уровень и рулетка;
- аппарат для сварки;
- болгарка или специальная ножовка;
- дрель с перфоратором и набором бит;
- угловая шлифмашина;
- резиновая киянка;
- клепальник;
- набор гаечных ключей;
- штыковая лопата;
- резервуар для приготовления бетонной или цементной смеси.
Структурные элементы конструкции

Предварительное проектирование и подбор оптимальных габаритов будущих ворот, от которых напрямую будет зависеть общий вес конструкции, – залог качественного и продолжительного срока службы. Составные детали подбираются с учетом общего веса, ширины проема и высоты облицовочного профнастила.
Кроме этого, важными элементами откатной конструкции являются консольные принадлежности, в состав которых входят:
- верхний страховочный ролик;
- нижние ролики;
- концевой ролик и заглушка балки;
- пара улавливателей;
- направляющая рейка.
Вместе с тем неотъемлемая часть ворот – надежная рама, которая выполняет важную опорную функцию. При ее изготовлении, как правило, используются металлические профильные трубы, размеры которых зависят от габаритов проема.
Если есть желание обустроить ворота автоматикой, то не забудьте приобрести в дополнение к расходным материалам электрический привод , дистанционные пульты, маяк, зубчатые рейки. Также для крепления профнастила потребуется использование саморезов по металлу или вытяжных кровельных заклепок из расчета 15 шт. на лист.
Технология сборки

Для того чтобы надлежащим образом возвести откатные ворота следует составить примерный чертеж конструкции, в котором осуществить расчет требуемых материалов и указать все составные элементы.
Далее стоит приступить к подготовке мест под основание ворот и опорных столбов. В большинстве случаев они выполняются в качестве траншеи под закладной элемент и углублений.
Для упрощения этого процесса нелишним будет выбрать в качестве опорных столбов уже имеющиеся удерживающие основания забора.
Обустройство фундамента

Названный пункт включает в себя изготовление основания под опорные столбы и сами ворота. При отсутствии возможности использования опор от забора стоит выкопать две ямы глубиной не ниже 1,5 м. Затем устанавливаем столб в углубление и фиксируем бетонным раствором. Воротное основание предусматривает оборудование траншеи с шириной 50 см и глубиной не менее 1,5 м.
Важной особенностью является расположение траншеи. Она должна быть обустроена вплотную к ограждению!
Обустройство фундамента предполагает использование П-образного металлического изделия или швеллера, длина которого должна совпадать с протяженностью подготовленной траншеи. Вместе с этим для усиления основания и придания ему требуемой прочности применяют элементы арматуры. С внутренней стороны швеллерной балки привариваются отрезки металлических прутьев на глубину траншеи, образуя некоторую подпору. Швеллер должен быть уложен таким образом, чтобы верхний его край находился на одном уровне с дорожным покрытием, а его концы плотно прилегали к опорным столбам.
Красивые ворота своими руками. Что понадобится для создания чертежа
Главное из того, что понадобится для создания качественного чертежа ворот (кроме бумаги, а также пишущих, или чертёжных, принадлежностей), это время.

Для того чтобы составляемый чертёж был максимально качественным и давал максимально качественное представление о будущем объекте, а также обо всех подробностях и деталях будущего строительства, следует внимательно изучить все варианты такого строительства.

Проще всего, изучать это с помощью тех материалов, которые в изобилии есть в свободном доступе в сети интернет (также, при определении дизайна будущих ворот, следует применить свою собственную фантазию).

Для каких ворот нужен чертёж
Перед тем, как начинать строительство такого объекта, как ворота, нужно оставить план такого строительства, в который обязательно входит чертёж ворот.

Ни они, будь то откатные или распашные ворота, а также несмотря на то, из какого материала они изготовлены (дерево, профильный лист, обычный листовой металл, или ажурные кованые прутья).
- Для того чтобы сделать грамотный чертёж будущих ворот, потребуется изучив варианты строительства таких объектов (которые применяются в данное время) а также то, из каких именно материалов они большей частью строятся, ну и конечно то, какой внешний вид сейчас в моде.
- Ведь ворота, это то, что первым видит всякий посетитель, а также то, что он видит последним. Поэтому, кроме всего прочего, они должны быть красивыми.
- Поэтому, нужно определиться не только с их конструкцией будущих ворот, но и с тем, какой внешний вид они должны иметь.
- Ведь от этого зависит не только и не столько то, какое впечатление возникнет у посетителей о воротах, но также и то, какое именно мнение, они сложат об имидже владельца.
Когда и для чего нужен чертёж
Чертёж, пригодится вам не только при создании откатных ворот, но и при создании любой другой, даже самой простой их конструкции.

Таким образом, качественный чертёж, способен значительно облегчить процесс будущего строительства ворот (как, впрочем, и любого другого объекта).

Чертёж ворот, должен включать в себя, все детали будущего сооружения, а также все основные детали. Такой подробный чертёж будущих ворот, сильно облегчит их строительство.

К тому же, подробный чертёж ворот, позволит увидеть то, насколько хорошо, данная конструкция ворот впишется в окружающий ландшафт.
- Итак, создание подробного чертежа ворот, это один из важнейших шагов в их постройке.
- Чертёж, должен включать в себя, как чертёж самих ворот, так и чертежи всех объектов, которые будут их окружать.
- Таким образом, создание чертежа, является не просто, одним из важных действий при постройке ворот, по также и тем действием, которое способно сильно упростить их постройку, а также, поможет им гармонично вписаться в окружающую среду.

Множество проблем, а также возможных ошибок станут видны после того, как будет составлен подробный чертёж будущих ворот (или любого другого объекта).
Что обязательно нужно отобразить на чертеже
На чертеже, должны быть отображены все наиболее важные узлы будущих ворот, а также все те объекты, которые будут их окружать. Это поможет не только избежать многих ошибок при строительстве, но и гармонично вписать ворота в окружающий пейзаж, а также обеспечить их полную функциональность.
- То есть их полное открывание и закрывание, при этом на пути не будет оказываться никаких препятствий.
- Кроме этого если предполагается оснащение ворот любыми средствами автоматики, то при разработке их чертежа, необходимо предусмотреть и отобразить пути прокладки всех коммуникаций (как силовых, так и информационных, то есть кабелей от разнообразных датчиков).
- Это тоже может помочь избежать одной из наиболее распространённых ошибок, а именно прокладки кабелей там, где они будут мешать движению ворот при их открывании и закрывании.
- И избавит вас от изменения маршрута прокладки кабелей в процессе выполнения строительных работ, или даже после их завершения.

Таким образом, детальная разработка чертежа, является одним из важнейших этапов строительства любого объекта, в том числе и ворот, который поможет избежать ошибок на более поздних этапах строительства.

Любые ошибки, которые могут возникнуть при возведении ворот, гораздо проще предотвратить на этапе создания чертежа, нежели устранять их при строительстве, а также намного проще, чем устранять их последствия после постройки ворот.
Плюсы тщательного выполнения чертежа
К тому же на этой стадии, гораздо проще внести изменения в их конструкцию, нежели сделать это на более поздней стадии, стадии строительства, а тем более после её завершения.

Чертеж ворот с калиткой из профнастила. Профнастил — преимущества и недостатки
Профнастил является достаточно прочным строительным материалом, который пользуется большой популярностью. Благодаря его прочному покрытию он имеет хорошую защиту от воды и снега. Большой выбор различных видов профнастила и цветов позволяет владельцам частных домов сооружать конструкции по своему усмотрению. При выборе профнастила большое значение имеет его вес. Конструкция ворот получается достаточно лёгкой и удобной для открывания.
Распашные ворота из профнастила на кирпичных опорах
Преимущества
- Высокая прочность материала, благодаря чему забор может выдерживать большие механические нагрузки, в том числе и сильные порывы ветра;
- Устойчивость к коррозии. Такой эффект достигается за счёт использования современных высокопрочных покрытий, срок службы которых может достигать более 40 лет. Защитный слой состоит из трёх покрытий: антикоррозийного, полимерного и водоотталкивающего;
- Небольшая толщина делает листы достаточно лёгкими, что упрощает процесс монтажа конструкции;
- Ворота можно сделать за несколько дней при наличии всех необходимых инструментов и дополнительных материалов;
- Невысокая стоимость профлистов;
- Долговечность материала. Конструкции ворот из профлиста могут простоять около 25 лет и при этом не требуют особенного ухода;
- Возможность выбора цветовой палитры и фактуры исходя из личных предпочтений;
- Возможность строительства забора любой высоты, так как максимальная длина листа составляет 12 метров;
- Экономия на отделочных материалах. Листы профнастила не подвержены воздействию солнечных лучей, поэтому не теряют свой цвет.
Ворота из профнастила в рамке своими руками. Основные достоинства
Профлист – это один из самых прочных стройматериалов, пользующийся огромной популярностью. За счет надежного покрытия материал устойчив к разным негативным погодным явлениям. Огромный ассортимент разных видов металлопрофиля позволяет хозяевам дач и частных домов возводить различные самоделки на свое усмотрение. Во время выбора профиля немаловажное значение имеет вес.
Так, ворота из профнастила получаются довольно легкими, а также удобными в эксплуатации.
На даче
Достоинства материала:
- Стойкость к коррозийным процессам. Это достигается благодаря применению новых современных защитных покрытий. Время эксплуатации ограждения из профильного листа может составлять больше 50 лет.
- Повышенная прочность листового металла. За счет этого въездные ворота могут выдержать высокие механические нагрузки, сильные порывы ветра.
- При наличии требуемых материалов изготовление конструкции ворот из профлиста занимает 2–3 дня.
- Небольшая толщина профнастила делает этот материал довольно легким, поэтому можно произвести самостоятельную установку.
- Простота ухода. За профлистом не требуется специальный уход.
- Доступная цена материала для изготовления воротных систем. Изготовленные калитка и ворота из профнастила своими руками обойдутся значительно дешевле, чем изделия из ковки.
- Экономия на отделке. Профлист не подвергается воздействию ультрафиолета, потому не теряет со временем цвет.
- Возможно строительство ограждения любой высоты, поскольку максимальный размер профильного листа может составлять до 12 м.
- Можно выбрать любую фактуру, рисунок, цветовую гамму с учетом разработанного проекта.
Ворота из профнастила в рамке чертеж. Установка ворот из профнастила своими руками
Распашные ворота – самая простая и распространенная конструкция ворот, используемая на частных земельных участках. Ворота из профлиста легко сварить и установить своими руками, имея даже минимум инструментов и навыков, нужно лишь четко следовать инструкции.
Стандартные распашные ворота состоят из двух опор и двух створок, которые соединяются между собой и закрываются на замок, задвижку или при помощи другого фиксатора.

ворота из профнастила. Чертежи
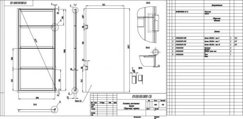
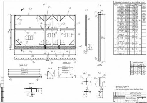
Чтобы приступить к изготовлению ворот, нужно составить чертежи ворот из профлиста, рассчитать количество необходимых материалов, крепежа и правильно подобрать инструменты. Мы рассмотрим как устанавливаются ворота на стандартный 4-хметровый проездной проем.

Чтобы сварить опорные столбы для ворот потребуется толстостенная труба 60х60х3х3000 мм. Сечение трубы можно выбрать любое, оно не влияет на качество опор и подбирается только исходя из их доступности.

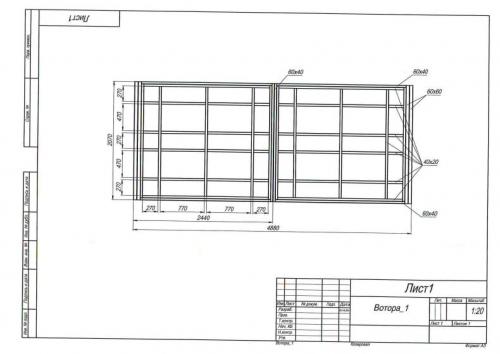
Для каркаса ворот потребуется труба прямоугольного сечения 40х25х2х6000 мм. Из нее варим прямоугольные рамы, к которым в будущем будет крепиться профнастил. После того, как рамки готовы, их прикрепляют на воротные петли к установленным столбам. В месте смыкания створок предусматривается запорное устройство.

После установки конструкции можно приступить к покраске каркаса ворот. Для этого зачищаем поверхности при помощи болгарки, покрываем грунтовкой в 2 слоя и краской такого же цвета, как выбранный профнастил для обшивки. Ту часть столбов, что будет находиться под землей, необходимо покрыть гидроизоляционной краской, чтобы защитить от коррозии при соприкосновении с влажной землей.

Столбы устанавливаются в подготовленные, пробуренные отверстия в грунте и бетонируются бетоном М200 или М250. Глубина фундамента для ворот из профлиста должна быть не менее 1,5 метров и диаметром от 25 см. Чтобы избежать перекоса ворот по прошествии некоторого времени, можно дополнительно соединить столбы монолитным бетонным ригелем.

После того как бетон высохнет, рама каркаса ворот с лицевой стороны зашивается профнастилом с нахлестом равным ширине одной волны. Об этом нужно помнить при расчете количества необходимых материалов. В качестве крепежа используются кровельные саморезы или заклепки из стали, чтобы избежать коррозии в месте соприкосновения разных металлов.

В последнюю очередь устанавливается з апорное устройство . При необходимости наносится краска на поврежденные при монтаже места ворот.


ворота из профнастила своими руками.
Как правильно сделать ворота и калитку. Как сварить металлические распашные ворота для дачи своими руками
Распашные металлические ворота для дачи создают, как правило, по одной схеме — из двух половин (створок) высотой 1,6—1,8 м при общей ширине пролета 2,4—3,5 м. Каждая створка представляет собой раму из металлической трубы 60 х 40 х 1,5—2 или 40 х 40 х 1,5—2 мм, обшитую каким-либо материалом. Для обшивки чаще всего используют профлист, поликарбонат, гладкий прокатный или оцинкованный лист. Вместо глухой обшивки створка может быть заполнена металлической сеткой или решеткой из профилированного или кованого металла.
Если проем дачных распашных металлических ворот, изготавливаемых своими руками, не превышает 3 м, то можно сделать их и одностворчатыми, но это создаст чрезмерно большую нагрузку на подвес.
Перед тем как сделать такие ворота из металла, первым делом необходимо снять точные размеры проема: ширину и высоту. Не стоит забывать, что технический просвет (расстояние между уровнем дороги и нижней кромкой ворот или калитки) должен составлять не менее 50 мм. При зазоре 100—150 мм ворота можно будет без труда открыть даже при достаточно большом снежном покрове.
Исходя из размеров, надо сделать эскиз конструкции металлических ворот, возводимых своими руками, и подсчитать количество необходимого материала. Для ограды 2 х 3,5 м (общий проем) понадобится примерно 23 м профильной трубы (с учетом внутренних перемычек). Иногда раму ворот делают усиленной, для этого понадобится еще 15 м трубы несколько меньшего сечения.
При изготовлении металлических ворот своими руками можно использовать не только профиль, но и водопроводные трубы 1\2 — 1, а также уголок с полкой от 40 мм. При использовании уголка перед сваркой следует вырезать в заготовках часть полки для стыковки их в одной плоскости.


С поверхности металла необходимо удалить всю ржавчину. Для этого понадобится болгарка со шлифовальным диском или обычная наждачная бумага. Если вы покупали новый, чистый профиль, то он обычно бывает смазан маслом, которое необходимо удалить тряпочкой, смоченной бензином.
Весь металл необходимо нарезать согласно разметке. Будьте внимательны при измерении необходимых отрезков. Если не уверены, оставьте небольшой запас по длине заготовок.


Перед тем как сварить металлические ворота, разложите на земле или сварочном столе все части и подгоните профили к нужному размеру. Но в любом случае сваривать раму нужно только на идеально ровной поверхности, не допуская ни малейших перекосов в плоскости створки, выверив их по горизонтали уровнем и проверяя каждое соединение угольником как до, так и после сварки.


Когда все отрезки профиля будут правильно стыковаться, зафиксируйте их струбцинами и приступайте к сварке внешней рамы. Затем измерьте и сравните диагонали рамы, чтобы убедиться в ее прямоугольности, после чего можно приваривать укосины или поперечины. Их рисунок может быть разным, главное — обеспечить створкам жесткость. Чтобы сделать металлические ворота своими руками как можно более прочными, дополнительно по углам рамы можно наварить треугольные косынки из листовой стали толщиной 3 мм. Затем еще раз пройдитесь болгаркой со шлифовальным диском, очистите места сварки и удалите шлак.

Если ворота будут устанавливаться в уже имеющийся забор с бетонными или кирпичными столбами, то еще на этапе проектирования следует учесть размеры боковых опорных стоек, которые нужно будет прикрепить к заборным столбам. Такие стойки изготавливают из профилированной трубы 60 х 60 х 2 мм или 40 х 60 х 2 мм. Если есть возможность вплотную к столбу вырыть котлован, стойки желательно забетонировать, приварив к ним внизу отрезки арматуры или полосы. Стойки строго вертикально выставляют с помощью отвеса или уровня и крепят к столбу с помощью анкеров, после чего заливают котлован бетоном. Если же забетонировать стойки невозможно (например, из-за имеющегося фундамента , который нежелательно взламывать) придется обойтись только анкерным креплением. В любом случае стойки не должны быть выше столбов — они должны располагаться на одном уровне с верхним обрезом ворот.
Если работа по установке распашных металлических ворот своими руками ведется с новым забором, целесообразно установить стойки из профилированной трубы 80 х 100 мм с толщиной стенок 7 мм. При желании впоследствии их можно обложить с трех сторон кирпичом или скрыть за настилом забора.