Как сделать калитку своими руками. Как сделать каркасную деревянную калитку своими руками
- Как сделать калитку своими руками. Как сделать каркасную деревянную калитку своими руками
- Калитка из дерева своими руками чертежи. Особенности калитки из дерева
- Калитка своими руками из профтрубы. Устройство
- Калитка своими руками из металла. Конструкция строения
- Калитка своими руками из дерева. Как выбрать материал
- Как сделать простую калитку. Содержание:
Как сделать калитку своими руками. Как сделать каркасную деревянную калитку своими руками
Из множества вариантов мы остановимся на самой простой каркасной конструкции. Подробно разберем процесс ее изготовления и установки.
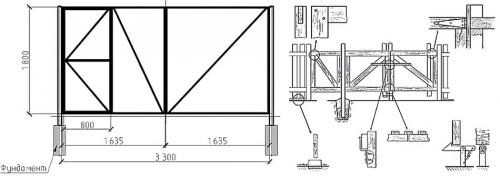
Начинают с выполнения проекта. Надо точно определить, какой будет дверца. Замеряют высоту и ширину прохода. Распашная конструкция не должна быть шире 1 200 мм, иначе она вывернет своим весом крепления. Не всегда помогают усиленные петли или увеличение их количества. Оптимальная ширина двери — 1 000 мм. Этого достаточно для свободного прохода в объемной теплой одежде. Для сада илиставят полотнище на 800 мм.
Высота теоретически может быть любой. Всесезонным моделям обязательно оставляют снизу зазор порядка 300 мм. Он нужен для свободного открывания в зимнее время. Если в регионе выпадает очень много снега, зазор увеличивают. Стандартная высота дверки — в пределах 2 000 мм. Она зависит от назначения изделия и желания хозяев.
После того как размеры определены, выбирают тип каркаса. Решают, сколько укосин надо поставить и как их расположить. На этом этапе можно сделать чертеж, чтобы проще было подсчитать количество материала. После подсчетов покупают бруски, фурнитуру и доски. Пиломатериал можно купить с небольшим запасом, на случай непредвиденной порчи.
Для основы потребуются бруски шириной 8-10 см и толщиной 2-4 см. Предлагаем пошаговую инструкцию по сборке изделия с каркасом в виде буквы Z.
- Готовим горизонтальные детали. Берем брусок, откладываем на нем величину, равную ширине проема минус 5 см. Отрезаем. Аналогично поступаем со второй деталью.
- Кладем заготовки на ровную поверхность параллельно друг другу. Между ними должно быть расстояние, заложенное в проекте.
- Берем брус, из которого будем делать укосину. Кладем его поверх горизонтальных деталей в форме буквы Z. Намечаем участки подрезки.
- Срезаем излишки по намеченным линиям.
- Снова выкладываем каркас, соединяем получившиеся стыки. Фиксируем их длинными винтами.
- Готовим планки для обшивки своими руками калитки из дерева. Нарезаем их по размерам в соответствии с чертежом.
- Поочередно выкладываем ламели на основу и фиксируем их к брускам. Перед установкой самореза окунаем его в воск или в олифу. Это убережет дерево от разрушения при скачках температур и от гниения.
Калитка из дерева своими руками чертежи. Особенности калитки из дерева
Дерево – традиционный и востребованный материал для заборов, из которого проще всего сделать калитку своими руками. Простая конструкция не требует специального инструмента и особых навыков.
С помощью пропиток можно придать любой оттенок
Молоток, ножовка и гвозди имеются у каждого на даче и в гараже. Хозяин сам решает, сделать вход так же, как у соседа, или придумать свою форму и декор для полотна с учетом собственных предпочтений. В качестве украшения подойдут декоративные петли и красивая ручка, кованые элементы. Также можно использовать резьбу по дереву.
Калитки из дерева, сделанные своими руками, имеют множество преимуществ перед изделиями из других материалов. На фото прекрасно видно, что каждый хозяин придумывает свой вариант, не похожий на другие.
Резная конструкция с узором
Достоинства
Классический материал не утратил своей актуальности. Деревянные конструкции на дачах и в оградах городских участков имеют преимущества:
- гармонично сочетаются с заборами любых типов;
- материал легко поддается обработке;
- доски имеют неповторимый рисунок и оттенок;
- экологически чистый материал не выделяет вредных веществ;
- сочетается с окружающей природой;
- малый вес и небольшая цена.
На фото видно, что деревянная конструкция выглядит как часть сада и украшает двор дачи.
Калитки с обшивкой в деревянной раме
Планки для забора, покрытые прозрачным лаком, демонстрируют природную красоту древесины. Дерево хорошо выглядит на фоне массивных каменных столбов, черных кованых прутов и холодного глянцевого металлопрофиля. Его можно красить в любой цвет и покрывать прозрачными лаками.
При выборе материала решающую роль играет невысокая стоимость доски и бруса.
Нет необходимости использовать сложный электрический инструмент. Ручные ножовка, долото и молоток есть у каждого мужчины, самостоятельно делающего простые вещи.
Внешний вид и эскиз простой дверцы
Недостатки
Основные отрицательные качества дерева связаны с реакцией на воздействие природных факторов:
- даже обработанное защитными составами, дерево со временем начинает впитывать влагу, пересыхать и выгорать;
- пожароопасное – горючий материал;
- разрушается острыми предметами;
- не выдерживает ударов и давления большой массы;
- малый срок службы.
Реечная входная группа
При хорошем уходе деревянная конструкция простоит 10–15 лет, затем ее надо менять частично или полностью. Без специального покрытия она уже через год потеряет свой вид: разбухнет от дождей, растрескается, ссохнется. В мороз влага превратится в лед и начнет разрушать ее изнутри, разрывая волокна. На солнце доски изменят цвет, пересохнут.
Дерево также опасно при возгорании. Оно не только поддерживает горение, но быстро воспламеняется, даже покрытое специальными составами, и полыхает.

При желании чужаков проникнуть на участок, деревянную створку легко сломать. В прочности она уступает металлопрофилю и кованым оградам.
Калитка своими руками из профтрубы. Устройство
Калитка состоит из опорных столбов и дверного полотна на раме или без, закрепленного на столбах при помощи петель (иногда называют навесы). Столбы могут быть кирпичные (каменные), деревянные или металлические. В кирпичные при кладке замуровывают небольшие куски толстого металла или металлического прута, к которым впоследствии приваривают петли.
Металлические столбы могут быть из круглой или профилированной трубы с толстыми стенками. Круглые трубы используют все реже: к ним сложнее приваривать, крепить что-либо. Профилированная труба при том же сечении (диагональ по сравнению с диаметром) и толщине стенки выдерживает большие ветровые нагрузки, к плоским граням проще приваривать или крепить при помощи саморезов, болтов. Поэтому именно её все чаще используют при устройстве калиток. Еще один вариант — к каркасу из профильной трубы приварить металлический уголок. В этом случае заполнение получится как бы в рамке.

Устройство калиток с деревянной и металлической рамой одинаково
Деревянные столбы обычно используют если забор деревянный . Чаще всего — это сосновый брус, обработанный защитными пропитками, предотвращающими (или по крайней мере замедляющими) разрушение древесины. Но бывают сочетание, когда столбы ставят металлические, а калитка и ограда при этом деревянные. Это потому что древесина в земле быстро сгнивает, даже после защитной обработки.
Немного о конструкции опорной рамы. Это может быть просто два столба вкопанных в землю — вариант подходит, если грунт не склонен к пучению (пески, супеси, плодородные, но не глинистые почвы).

Столбы повело. Если вверху и внизу будут перемычки (в данном случае можно сделать арку вверху), вероятность такой неприятности намного снизится
Для пучинистых грунтов (глина, суглинки) желательно, чтобы столбы были соединены вверху и внизу. В таком случае вероятность перекоса калитки после зимы очень мала. Если вы не хотите делать порожек в проеме, нижнюю перемычку можно опустить ниже уровня земли (на штык–полтора). Ее надо будет тщательно покрыть антикоррозионным составом, огрунтовать, и покрасить в несколько слоев.
Калитка своими руками из металла. Конструкция строения
Калитки, как правило, делают распашными.
Калитка состоит из опор в виде столбов и дверной створки на каркасе, который фиксируется к стойкам с помощью навесов. Для закрывания врезают запоры, замки. Столбы выполняют из кирпича, делают стальные, железобетонные или деревянные. Внутрь монолитных и каменных опор вставляют закладные детали из толстого металла, уголка или прута, чтобы приваривать к ним раму калитки из профтрубы.
Дверь выполняют в виде отдельного прохода в заборе или совмещают с воротами. В этом случае каркас калитки размещают в одной из створок. Если перед двором проходит тротуар, открывание делают внутрь, чтобы не мешать пешеходам. При этом учитывают величину полотна, чтобы было расстояние для полного распахивания створки.
Распашная или раздвижная
Первый вариант относят к недорогим конструкциям, которые проще варить и монтировать. Такая калитка не требует устройства основания для установки направляющих балок, ей не нужен противовес и роликовые элементы. Распашную систему совмещают с воротами и экономят место перед въездом. Внизу полотно подрезают по высоте в местностях с большими снегопадами. Так на открывание не влияет образовавшийся сугроб.
Раздвижные схемы сложнее, т. к. направляющие прогоны чаще ставят внизу, для них требуется ровный фундамент. Есть варианты с устройством консольного передвижения полотна, при котором балку навешивают так, чтобы она не ограничивала высоту пролета, а ролики ставят внутрь каркаса створки. Автоматику ставят на распашные и раздвижные системы.
Калитка своими руками из дерева. Как выбрать материал
Во время выбора многие руководствуются такими критериями, как стоимость материала и его долговечность. При должной обработке древесина может использоваться несколько десятков лет. При этом она имеет низкую стоимость.
Часто для создания створки выбирается сосна, так как этот материал имеет низкую цену. такая древесина достаточно легко обрабатывается и хорошо противостоит воздействиям внешней среды из-за насыщенности смолой. Если калитку из сосны покрыть лаком, она будет иметь достаточно привлекательный внешний вид.
Стоит отметить, что лиственница является более крепким материалом, который хорошо поддается обработке. Но при этом стоимость материала в несколько раз выше стоимости сосны. Часто используется кедр, так как такая древесина не растрескивается и является стойкой к гниению.
Лучшим вариантом является дуб, который можно приобрести по относительно низкой стоимости. Несмотря на то что осина легко обрабатывается и не растрескивается со временем, ее редко используют при создании ограждений для участка.
При создании створки можно использовать тополь. Но стоит помнить, что приобретать нужно только хорошо просушенный материал. Если он будет мокрым, при высыхании доски могут деформироваться.
Для создания калитки можно использовать и березу, но она имеет небольшой срок эксплуатации и подвержена растрескиванию. В случае когда создается калитка из дерева своими руками, важно правильно подобрать материал, учитывая погодные условия в определенном регионе. Чтобы выбрать определенный тип створки, стоит рассмотреть фото различных подобных изделий и определить, какое лучше будет смотреться на определенном участке.
Как сделать простую калитку. Содержание:
В любом заборе должен быть вход. Для въезда машин делают ворота, для прохода людей — калитки. Их делают на каркасе из дерева или металла, заполнение подбирают такое же как в ограде или что-то оригинальное. Если вход между двух кирпичных стен, заполнение можно выбрать по своему вкусу. Причем сделать калитку своими руками не так и сложно, во всяком случае, некоторые несложные варианты.
Устройство
Калитка состоит из опорных столбов и дверного полотна на раме, которое крепится к столбам при помощи петель. Столбы могут быть кирпичные (каменные), деревянные или металлические. В кирпичные при кладке замуровывают небольшие куски толстого металла или толстый металлический прут, к которым впоследствии приваривают раму.

Необычные калитки с деревянным каркасом и оригинальным заполнением
Металлические столбы делают из круглой или профилированной трубы с толстыми стенками. Круглые трубы используют все реже: к ним сложнее приваривать, крепить что-либо. Профилированная труба при том же сечении (диагональ по сравнению с диаметром) и толщине стенки выдерживает большие ветровые нагрузки, к плоским граням проще приваривать или крепить при помощи саморезов, болтов. Поэтому именно ее все чаще используют при устройстве калиток. Еще один вариант — к каркасу из профильной трубы приварить металлический уголок. В этом случае заполнение получится как бы в рамке.

Устройство калиток с деревянной и металлической рамой одинаково
Деревянные столбы обычно используют если забор деревянный. Чаще всего столбы — это сосновый брус, обработанный защитными пропитками. Они предотвращают (или замедляют) разрушение древесины. Но бывают и такие случаи, когда столбы ставят металлические, а калитка и ограда при этом деревянные. Это потому что древесина в земле быстро сгнивает, даже после защитной обработки.
Немного о конструкции опорной рамы. Это может быть просто два столба вкопанных в землю — вариант подходит, если грунт не склонен к пучению (пески, супеси, плодородные, но не глинистые почвы).

Столбы повело. Если вверху и внизу будут перемычки, вероятность такой неприятности намного снизится
Для пучинистых грунтов (глина, суглинки) желательно чтобы столбы были соединены вверху и внизу. В таком случае вероятность перекоса калитки после зимы очень мала. Если вы не хотите делать порожек в проеме, нижнюю перемычку можно опустить ниже уровня земли (на штык–полтора). Ее надо будет тщательно покрыть антикоррозионным составом, прогрунтовать, и покрасить в несколько слоев. А еще чтобы избежать перекоса, следует закапывать столбы ниже уровня промерзания хотя бы на 15-20 см.
Каркас калитки делают из металлической трубы или деревянных брусков. Древесина используется для деревянных заборов, металл — во всех остальных случаях.