Как правильно сварить гаражные ворота. Изготовление и монтаж створок
- Как правильно сварить гаражные ворота. Изготовление и монтаж створок
- Как сварить гаражные ворота из профиля. Процесс изготовления ворот из профильной трубы
- Гаражные ворота 4 метра. Типовые размеры гаражных ворот
- Подъемные гаражные ворота своими руками. Подъемные ворота своими руками: необходимые материалы для изготовления + поэтапная инструкция по сооружению и установке своими руками
- Распашные гаражные ворота своими руками чертежи. Сравнение гаражных ворот
- Как сварить ворота из уголка. Как пошагово сварить ворота из уголка своими руками
Как правильно сварить гаражные ворота. Изготовление и монтаж створок
Есть только один способ, как правильно сварить гаражные ворота – надо чётко рассчитать будущие размеры конструкции и запасные зазоры, необходимые для чёткого закрывания и открывания дверей. Опытные строители рекомендуют отступать от пола 2-3 см, от потолка 1-2 см и по 5 см от боковых стен для крепления петель. По полученным расчётам отрезают профильные трубы и делают на их краях срез под углом в 45 градусов.
Важно! Чтобы максимально упростить задачу можно сварить каркас из одной сплошной створки, и уже после установки разделить его при помощи болгарки.
На сварочном столе или подготовленной поверхности раскладывают металлические трубы, подгоняют их по длине и сверяют углы. При помощи сварочного аппарата создают монолитный прямоугольник подходящей формы. Прежде чем приступать к зачистке швов, готовую конструкцию будущих дверей прикладывают к раме с наваренными на неё петлями.
При совпадении размеров можно приступать к монтажу готовой конструкции. На трубах обозначают места крепления фурнитуры и приваривают её. Каркас ворот проверяют, надевая на петли рамы – если он встаёт как влитой, можно приступать к дальнейшему этапу. При помощи рулетки устанавливают середину горизонтальных поперечин. От неё отступают по 1 см и приваривают вертикальные поперечины, чтобы между ними было 2 см.
Полотно разрезают на 2 равные части, при помощи болгарки удаляют торчащие куски трубы. Для укрепления створок можно установить дополнительные горизонтальные или диагональные поперечины. Все сварочные швы зачищают, конструкцию красят и устанавливают на петли. Для предотвращения открывания дверей внутрь, к верхней части рамы наваривают контрольную профильную трубу, которая будет ограничивать их ход.
Обшивка створок металлическими листами
Недостаточно знать как сварить ворота на гараж из профильной трубы своими руками, важно и красиво обшить их, чтобы итоговый результат радовал глаз. Чаще всего для облицовки используют оцинкованные железные пластины толщиной в 2-3 мм. Их размечают и обрезают болгаркой, шлифуют края, удаляя металлические заусенцы и стружку. С боковых сторон листов также делают небольшие прорези под петли.
Как сварить гаражные ворота из профиля. Процесс изготовления ворот из профильной трубы
Прежде чем приступить к практической части, составляются подробные чертежи и эскизы данного изделия. На бумаге следует обязательно указать длину и высоту сооружения, а также количество перемычек между горизонтальными плоскостями.
Если изготавливается распашная конструкция, то необходимо сварить две одинаковые по размеру створки.

При конструировании более сложной, откатной системы, ворота выполняются в виде одного длинного полотна прямоугольной формы.

Вне зависимости от типа конструкции, ширина не должна быть менее 3 метров, а высота — 1,6 м.
После выбора типа ворот и указания основных размеров элементов конструкции, металлический профиль разрезается на отрезки нужной длины. При изготовлении распашных ворот для получения абсолютной симметрии двух створок, рекомендуется разрезать профиль, ориентируясь по длине отрезков сделанных ранее для одной из половинок. Вертикальные перемычки также должны быть идеально ровными и совпадать по длине.
Для сооружения опор используется профильная труба большого размера, длина которой должна составлять не менее 2,5 метров. Около 1/3 от длины опоры будет установлено в землю с обязательным бетонированием. Только при таком способе фиксации вертикальных опор можно добиться максимальной устойчивости всей конструкции.

Если при изготовлении ворот будут использованы декоративные кованые вставки, то при заказе данных элементов в кузнечной мастерской, следует указать мастеру точные размеры каркаса. Несмотря на высокую стоимость кованых деталей, применение таких элементов, позволит изготовить оригинальную конструкцию с красивым узором.
Когда все детали будут подготовлены, осуществляются сваривание ворот по заранее намеченному эскизу.
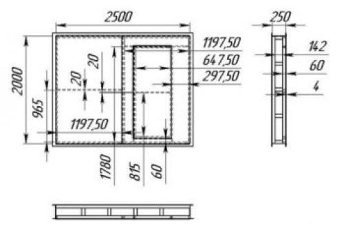
Гаражные ворота 4 метра. Типовые размеры гаражных ворот
В первую очередь рассмотрим стандартные размеры гаражных ворот, используемых для хранения одного автомобиля: минимальные размеры по ширине составляют 2,25 м, средние – 2,5 м. Минимальная высота гаража составляет 2 м.
Что же касается максимальных размеров такого сооружения, то они не ограничены и не регламентированы никакими стандартами.
Совет! Чтобы получить более точные размеры гаража на этапе планирования его постройки, следует измерить машину и добавить к полученным размерам по 30 см с каждой боковой стороны. В среднем, ширина легковушки без учета боковых зеркал составляет 180 см. Если прибавить к ним 60 см, то получится стандартный размер в 2,4 м.

Размеры гаражных ворот.
Стандартная ширина ворот для гаража зависит от вида транспортного средства, которое будет там находиться на хранении:
- если в гараже предполагается хранение мотоцикла, скутера, то ширина ворот должна составлять как минимум 1,8 метра;
- легковушке достаточно 2,5 метра;
- ширина воротного проема в гараже, где планируется хранение джипа, микроавтобуса должна быть не менее 4,8 метров.
Что касается возведения гаража для хранения одновременно двух автомобилей, то строительные нормы и регламенты не указывают четких границ и размеров воротного проема. На практике наиболее оптимальной шириной гаражных ворот в данном случае будет величина в 4,8 метра.
Пространство для проезда автомобиля будет меньше проема, поскольку некоторое место занимает каркас конструкции ворот. И этот момент следует учитывать на этапе проектирования данного элемента.
Кроме самого размера каркасной части ворот необходимо позаботиться о наличии дополнительного пространства для привода, направляющих, если гараж будет оборудован секционными воротами, либо короба в случае, если проектом предусмотрен рулонный тип воротного полотна.
На этапе изготовления любого типа гаражных ворот необходимо учитывать следующие показатели:
- ширина и высота проема;
- наличие свободного пространства для открытия/закрытия створок ворот – речь идет о распашном типе;
- высота притолоки – расстояние от потолка до проема;
- минимальный зазор от боковых стен постройки до проема.
Подъемные гаражные ворота своими руками. Подъемные ворота своими руками: необходимые материалы для изготовления + поэтапная инструкция по сооружению и установке своими руками
Любой гараж должен быть оборудован прочными и удобными воротами. Оптимальным вариантом являются гаражные ворота с подъёмным механизмом, изготовленные своими руками.

Такие конструкции имеют массу плюсов на практике, могут быть построены непосредственно владельцем, а также требуют минимальных вложений на расходный материал.

Фото различных вариантов подъёмных ворот для гаража, выполненные своими руками, можно найти на страницах журналов, веб порталах практического строительства.

Преимущества ворот с подъёмным механизмом
В условиях дефицита свободной площади (узкий частный двор или сектор, отведенный под строительство в многоквартирном дворе) подъёмные ворота для гаража являются наиболее практичным выбором.

Конструкции подобного типа не требуют дополнительного места для отката воротной пластины, которая в данном случае выводится в свободное пространство под потолочными балками.

Кроме того, к плюсам строительства подъёмных ворот в гараж своими руками следует отнести:
- Достаточно большое количество пошаговых инструкций и чертежей для самостоятельной работы.
- Надежная защита гаражного бокса от ветра, дождя. Гараж, оборудованный подъёмной дверью, может быть обустроен в виде теплого помещения. На практике используется не только монтаж внутреннего отопления, но и дополнительное утепление самой воротной пластины.
- Ворота на гараж отличаются достаточной прочностью, которая защитит помещение, автомобиль, инструментарий от незваных посетителей.
- Наружная сторона ворот для гаража, выполненных своими руками, может быть оригинально и стильно декорирована самим мастером (роспись красками по металлу или профилю).

К удобству владельцев, опытные умельцы помогают начинающим мастерам ценными советами по строительству ворот в гараж своими руками.
Недостатки подъёмных ворот
Несмотря на массу практических плюсов, секционные ворота, изготовленные своими руками, имеют и свои недостатки:
- Монтировать гаражные подъёмные ворота своими руками можно только на проём прямоугольной или квадратной формы.
- Особое внимание уделяется монтированию крепежей, направляющих пазов, системе противовеса. А в процессе эксплуатации потребуется тщательный контроль за состоянием всех элементов конструкции.
- Высота проёма уменьшается при поднятых воротах.

Мастеру потребуется качественный чертеж, правильно произведенные расчеты по системе противовесов (с обязательным расчетом максимальной нагрузки).

Принцип устройства подъёмных ворот
Перед началом строительных работ необходимо понять принцип устройства и действия конструкции подобного типа. Любые ворота с подъёмным механизмом имеют следующие составные детали:
- Центральная воротная панель, которая выполнена в виде цельной пластины. Чаще всего в качестве основного материала используется металлический профиль.
- Рама.
- Направляющие пазы, по которым воротная панель перемещается в свободное пространство под потолочными балками.
- Система противовеса, состоящая из симметрично расположенных грузов.

Вместо противовесной системы может использоваться рычажно-пружинный механизм, который позволяет центральной панели свободно перемещаться при минимальном воздействии.

Также в общей схеме конструкции различают ряд вспомогательных элементов: лебедки для удерживания грузов, рычаги и мощные пружины, крепежные детали.

Материалы и инструменты для работы
Для оптимальной работы необходимо организовать площадку достаточной площади. Кроме того, для изготовления подъёмных ворот на гараж понадобится следующий набор инструментов и материалов:
- Болгарка и сварка для работы с металлическими поверхностями.
- Профилированные трубы для строительства рамы.
- Крепежные детали.
- Гаечный ключ должного размера.
- Строительный карандаш, рулетка.
- Уровень.
- Лебедка и одинаковые грузы для монтирования системы противовесов.
- Швеллеры для изготовления направляющих конструкций.

Откатные ролики и рычажно-пружинный механизм можно приобрести в магазине строительных товаров, подбирая детали в соответствии с подготовленным чертежом. Понадобятся также инструкции, как построить подъёмные ворота своими руками.
Самостоятельное строительство подъёмных ворот
В первую очередь, мастеру необходимо произвести замеры гаражного проёма, высоту потолка, уровень заливки пола. Эти данные позволят определить, есть ли препятствия к строительству подъёмно-поворотных ворот своими руками.

Следующий этап – это изготовление оптимального чертежа, по которому весьма удобно проводить все работы. Далее устанавливают деревянную или металлическую коробку, являющуюся каркасом для подъёмных ворот, монтируют непосредственно саму раму и поворотный механизм (противовесы или пружины).

Обратите внимание!
Распашные гаражные ворота своими руками чертежи. Сравнение гаражных ворот
Есть несколько видов изделий, которые используются в наших местах для обеспечения надежности. Различают следующие виды конструкций:
- Распашные. Используются в любых местах, при самых сложных условиях эксплуатации. Прикрывать их можно хорошо, не оставляя никакой возможности для проникновения не только посторонних людей, но и даже холода. Для крепления используются петли и створки, держат коробку. У многих возникает вопрос, как сделать гаражные ворота своими руками . Проще всего изготавливать именно такого типа изделие, так как оно наиболее просто в конструировании.
Пример гаражных ворот
- Откатные. Использоваться начали с середины прошлого века. Имеется одна створка, выезжающая вбок к стенке, где остается до закрытия. Можно сделать двустворчатые, когда разъезжаются 2 половины конструкции, но это частный вариант данного изделия. Чтобы конструкция нормально функционировала, нужно много пустого пространства на территории, куда будет осуществляться разъезд изделия. Обычно устанавливаются не в гаражах, а на въездной территории.
Пример гаражных ворот
- Подъемно-поворотные. Новое поколение конструкций, которые имеют вид створки. При открытии исчезают под потолком, прячась вверху, становятся параллельными земле. Используется шарнирный механизм, который направляет изделие в нужном направлении. Они удобны, не требуют много свободного места. Использовать рекомендуется, если гараж отапливается, так как шарниры являются прихотливым механизмом, способным дать сбой при неверных условиях эксплуатации.
Пример поворотных гаражных ворот
- Секционные. Новый вид запирающего механизма. Изделие преломляется и заезжает под потолок автоматически. Используются пружины, имеющие цепную передачу. Значительно экономят место.
- Пример секционных гаражных ворот
5. Роллетные. Не очень надежны, потому редко применяются для гаражей. Пластинки из алюминия, соединяющиеся в одном месте под потолком. Ворота гаражные распашные своими руками, если есть чертежи, выполнить реально. Изделия роллетного типа сделать собственноручно не получится.
Как сварить ворота из уголка. Как пошагово сварить ворота из уголка своими руками
Зачастую у многих домовладельцев возникает желание установить крепкие металлические ворота или же калитку. Но не всегда есть возможность это сделать, к тому же монтаж и покупка таких ворот требует немалых денежных средств. Именно поэтому, часто возникает вопрос: как сварить своими руками ворота из уголка? Конечно, работа не из легких, и над шикарным внешним видом нового устройства придется упорно потрудиться, но это вполне реально. К тому же если провести данные мероприятия самостоятельно, вас порадует не только цена, но и их привлекательный вид.
Разновидность уголков для металлических ворот
В своем роде металлические уголки бывают всего двух видов: равнополочные и неравнополочные. Первые имеют одинаковые размеры всех сторон, они универсальны и практичны для любых видов ремонтных работ, поэтому применяются довольно часто в строительстве.
Вторые менее популярны, так как предназначены в основном для нестандартных работ, где основную роль играет асимметрия. Таких ремонтных работ гораздо меньше, потому соответственно ассортимент неравнополочных уголков менее широкий.
Изготовление ворот из уголка
Перед тем как приступить к первому шагу изготовления ворот, необходимо подготовить место для сварки, в идеале – это сварочный стол. Если же у вас его нет, это некритично, ведь его можно заменить листом ЦСП, установленным на земле. Используя специальные подкладки под ним. Основная задача такого стола – обеспечить ровную поверхность. Запомните, что это залог успеха при сварке, ведь если мы свариваем что-либо на неровной поверхности, это в любом случае будет выглядеть неаккуратно и очень нелепо. Следовательно, без заблаговременно подготовленного места для сварки, никак не получится изготовить идеальную калитку или ворота, а их вид точно не принесет вам желаемого результата.
Первый шаг, который предстоит сделать, – постройка каркаса для ваших ворот или калитки. Для постройки каркаса необходимо:
- Сделать замеры. Для этого нужно преждевременно определиться с желаемыми параметрами будущих ворот.
- Выбрать толщину материала. Используя металлические уголки для нашего каркаса, важно подобрать такие элементы, чтобы они соответствовали габаритам будущих створок.
- Подготовить основу. Сделав первоначальные замеры будущей конструкции, необходимо разрезать металл при помощи болгарки.
- Скрепить части будущего каркаса при помощи сварки.
- К готовой раме (неустановленной пока еще) прикрепить профлист, это поможет избежать деформации каркаса.
Второй шаг в изготовлении ворот из уголка – это установка петель и профлиста на створки. Для того чтобы упростить задачу и избежать трудностей, связанных с перекосом ворот, заполнение створок и покрытие необходимо устанавливать перед монтажом на раму. При помощи специальных стальных заклепок или сварного шва нужно закрепить покрытие, после чего приступаем к навеске петель.
Для ворот рекомендуется использовать шариковые или антивандальные петли, поскольку их будет сложнее снять, а значит, чем крепче они будут, тем больше вы обезопасите свой дом от воров и хулиганов. Уровень петель необходимо постоянно отслеживать, поскольку даже малейшие отклонения от одной плоскости может привести к сильному перекосу на створку. При сваривании наших ворот, в первую очередь монтируем нижнюю часть навески, а после – верхнюю. При этом не стоит также забывать прослеживать отсутствие зазоров сварочного шва между рамой и навеской, в противном случае сваренная калитка или ворота просто не будут открываться до конца.
Третий и последний шаг в изготовлении наших ворот из металлического уголка – навешивание и установка. Перед тем как устанавливать изделия, их необходимо обработать средством, защищающим от ржавчины и влажности. Это продлит срок
службы ваших ворот. Далее переходим к навешиванию. К металлическим анкерам, вбитым в откосы, привариваем раму. После того как рама установлена, навешиваем створки ворот. На этом установка ворот закончена и необходимо проверить то, как открываются и закрываются ворота.
На данном этапе техническая часть изготовления ворот из уголка окончена, и можно приступить к дизайну ваших ворот, а точнее к их окрашиванию. Для окраски ворот рекомендуется использовать краску по металлу для наружных работ.
Ну и напоследок, если вы изготавливали ворота для гаража, то их желательно будет утеплить, ведь металлические ворота практически никак не защитят ваш гараж зимой от холода и мороза, в связи с чем наличие гаража теряет всякий смысл. Кроме того, если он находится в доме, то его тем более необходимо утеплить, ведь весь холод будет идти прямиком в дом. Наиболее простой способ утепления гаража – при помощи полиэтиленовой пленки сделать тепловую завесу, равномерно прикрепив ее на ворота. Если же вам потребуется более качественное и надежное утепление, то можно использовать пенопласт.