Как подготовить процесс монтажа секционных гаражных ворот. Монтаж секционных ворот в гараже — все тонкости установки
- Как подготовить процесс монтажа секционных гаражных ворот. Монтаж секционных ворот в гараже — все тонкости установки
- Отделка проема гаражных ворот. Внутренние или наружные работы
- Монтаж автоматики для секционных ворот своими руками. Автоматика для секционных ворот своими руками
- Установка секционных ворот в газоблок. Когда гараж из пеноблока или газосиликата? Что можно и нужно сделать, прежде чем устанавливать ворота. Реальные ворота!
- Обрамление гаражных ворот. Замеры и создание чертежа
- Каркас для секционных ворот. Подготовка проёма к установке воротного каркаса
Как подготовить процесс монтажа секционных гаражных ворот. Монтаж секционных ворот в гараже — все тонкости установки
Как установить секционные ворота в гараже своими руками, подготовка проема, монтаж и регулировка
Ворота секционно-подъемного типа часто устанавливают в гаражах для хранения автомобилей и в других технических зданиях. Такие конструкции очень удобны, так как они открываются вверх и не занимают пространство при открытии. Также они обладают теплоизоляционными свойствами, которые помогают сохранить тепло внутри помещения. Прежде чем заняться установкой секционных ворот, надо разобраться с основными нюансами данного процесса.
Расчет размеров
Чтобы правильно установить ворота, придется заранее рассчитать все необходимые размеры. При этом измеряются следующие параметры:
Также определенные расчеты проводятся перед установкой привода конструкции. Прежде чем поставить его, определяют глубину помещения, которая должна находиться в диапазоне 3-4 метров. Если здание слишком маленькое, придется устанавливать более компактный привод осевого типа.
Перечень необходимых инструментов
Для установки ворот секционного типа требуются не только умения с навыками, но и строительные инструменты. Монтажные работы проводятся при помощи специальных инструментов, к которым относят:
Подготавливаем дверной проем
После предварительной подготовки рабочих инструментов и расчета размеров подготавливают дверной проем, на который будут устанавливать секционные ворота. Людям, которые ранее не работали с проемами, лучше доверить подготовку опытным строителям, которые смогут сделать все качественно.
Сначала придется покрыть все стены тонким штукатурным слоем, который защитит стенки от влаги и появления плесени. Строители советуют заниматься оштукатуриванием перед монтажом, так как после установки направляющих поверхность стен станет недоступной.
Затем уровнем проверяют ровность стены в проеме. Если она будет неровной, установить ворота не получится, и поэтому лучше заранее все выровнять. Даже незначительные погрешность в разы усложняют выполнение монтажных работ. Опытные строители могут установить конструкцию и на искривленной поверхности, однако из-за неровностей плотность крепежей будет низкой.
В конце подготовки дверного проема притолока и стенки отделываются защитными уголками из металла.
Установка торсионного механизма и направляющих
На начальном этапе монтажных работ должны установиться направляющие с торсионным механизмом.
Монтаж вертикальных направляющих
Крепление начинается с монтажа и последующей подрезки вставок для уплотнения конструкции. Специалисты советуют пользоваться вставками, которые продавались вместе с воротами, так как их не придется подрезать.
Когда уплотнительные материалы будут установлены, занимаются прикреплением нащельника с опорными стойками. При установке направляющих следят за тем, как расположен профиль. Его перекос по вертикали не должен превышать 1-2 миллиметра.
Монтаж горизонтальных направляющих
При выполнении монтажа придерживаются такой последовательности действий:
- Прикрепление направляющих горизонтального типа к стойкам опор.
- Соединение профилей к поверхности потолка при помощи подвеса.
- Передний профиль удаляют от проема на 850 миллиметров, а задний — на 400 миллиметров.
- Элементы, выступающие за пределы конструкции, осторожно подрезаются болгаркой.
Монтаж торсионного механизма
Монтажные работы должны выполняться с соблюдением инструкции, состоящей из нескольких этапов:
- Монтаж механизма в опорные кронштейны.
- Прикрепление к валу подшипников, состоящих из двух пружин.
- Просверливание в барабане отверстия, в которое будет пропускаться трос.
Отделка проема гаражных ворот. Внутренние или наружные работы
Натуральная древесина хорошо удерживает тепло
Наружное утепление считается вариантом более практичным. Чтобы внутри помещения сохранялся оптимальный температурно-влажностный режим, каждый следующий слой стенового пирога изнутри наружу должен обладать большей паропроницаемостью. Так как для теплоизоляции чаще всего берут материалы с высокой рыхлостью, с открытыми порами, это требование гораздо проще соблюсти, установив утеплитель снаружи.
Обшить снаружи ворота в гараже не всегда возможно. Исключения:
- Если гараж – не хозпостройка на даче, а один из боксов в общем кооперативном сооружении, сделать это попросту невозможно. Утеплять снаружи только створки, а остальное помещение внутри невыгодно.
- Металлический бокс обладает высокой теплопроводностью и нулевой паропроницаемостью. Неважно, где находится утеплитель, проблему вывода влаги из помещения все равно решают только с помощью вентиляции.
- Далеко не все материалы годятся для отделки снаружи. Минеральная вата чувствительна к влаге. Если утеплять ею снаружи, потребуется очень хорошая гидроизоляция, дополнительная пароизоляция и обрешетка с вентиляционным зазором. Изнутри маты можно крепить прямо на стенку.
- Если гараж пристроен и является частью здания, его внешняя отделка должна в точности повторять обшивку фасада. В этом случае утепление рациональнее делать изнутри.
Нередко гаражные ворота обшивают ради привлекательности. Утеплять изнутри, а отделывать снаружи нерационально.
Источник: https://proremont-dom.ru/novosti/kak-vybrat-avtomatiku-dlya-garazhnyh-podemnyh-vorot-osobennosti
Монтаж автоматики для секционных ворот своими руками. Автоматика для секционных ворот своими руками

Если мы спешим на работу или возвращаемся после тяжелого трудового дня на автомобиле, вряд ли хочется тратить свои силы на открывание замков, засовов в гараже. С этой проблемой отлично справляются секционные ворота. Но чтобы сделать их использование еще приятнее, понадобится автоматика для секционных ворот.
Среднестатистический гараж предусматривает установку подъемно-секционных ворот, т. е. секции ворот поднимаются в горизонтальном положении под потолок по направляющим. И такой вариант подходит большинству владельцев нынешних гаражей. Рассмотрим установку секционных и автоматических ворот своими руками.
Что учитывать, решая, какие ворота ставить
Секционные ворота достаточно просты в установке и использовании. Множество компаний предлагает установку таких ворот, делая всевозможные акции, оставляя листовки со своими контактами и информацией об услугах и ремонте. И это недешевое удовольствие, но все же доступнее автоматических. Что же касается автоматики для поднимаемых ворот, то она имеет ряд преимуществ. Вот некоторые:
- Подъезжая к дому или выезжая из гаража, вы не тратите время на открывание, а также закрывание ворот.
- Если на улице дождь или просто очень холодно, вам не придется мерзнуть, открывая ворота. Это впору сделать находящимся у вас брелоком-передатчиком, который подает сигнал на встроенный радиоприемник в узле ворот. Вы сразу сможете оказаться в гараже, где намного теплее, чем на улице.
- Внешний вид таких ворот смотрится намного солиднее.
- Такие конструкции могут использовать даже хрупкие и слабые девушки, ведь старые металлические ворота бывает не так уж и легко открыть даже мужчине.
«Что, если я хочу такие ворота?»
Подготовительные работы по выравниванию дверного проема можно сделать самому. Это очень важно, иначе не обойтись без постоянных ремонтов. Но если вы не уверены в том, что сможете качественно все сделать сами, лучше обратиться к специалистам, чтобы они провели эти работы. Немало внимания
требуется уделить полу в помещении, ведь это основа для регулирования торсионных пружин и всей автоматики.
Для гаражных секционных ворот обычно идет подобный комплект автоматики:
- привод;
- блок управления (плата);
- зубчатая рейка для механизма;
- приемник сигнала;
- фотоэлементы (сенсоры);
- сигнальная лампа;
- дистанционный пульт (брелок).
Обращайте внимание на качество автоматики поднимаемых ворот. Требуйте гарантию на покупаемый товар. Если вы приобрели фирменную автоматику, то зачастую в комплекте к ней идет подробная инструкция по установке. Также у популярных брендов много поклонников, которые выкладывают подробные инструкции установки. К примеру, вы можете написать в поисковой строке «Автоматика для секционных ворот своими руками: пошаговая
При выборе комплекта обязательно нужно помнить, что есть два типа автоматики: вальная и потолочная. Решая, какую систему лучше использовать, главным определителем служит проем и тип механизма. В большинстве случаев применима потолочная система. При ее установке обязательно нужно учитывать, чтобы потолочная автоматика располагалась точно по центру. Немаловажно, чтобы рычаг каретки был хорошо прикреплен к усиленному дополнительному краю полотна ворот, так как играет роль элемент движения и управляется с пульта-передатчика, т. е. брелока. Направляющие, а также сама автоматика крепятся к потолку очень надежно с помощью кронштейнов, которыми зачастую крепят к стене. В это время к потолку должно быть подведено питание. После того как провели установку автоматику, важно провести настройку и программирование самой системы автоматики. Можно привлечь специалиста, но мы рассматриваем вариант самостоятельной настройки. В наше время в Сети существуют сотни сайтов и форумов, где поднимаются, обсуждаются и решаются эти вопросы.
При установке обязательно придерживаться рекомендаций производителя, указанных в инструкции! Если неправильно установить и таким же образом эксплуатировать, то, придя в негодность, вам не удастся воспользоваться гарантией на систему.
Сама установка автоматики не вызывает больших трудностей и вполне может быть выполнена самостоятельно. Очень важно найти комплект автоматики хорошего производителя (иногда это решающий фактор). Из-за плохого качества продукта, вероятнее всего, придется чаще обслуживать и ремонтировать всю систему. Не ведитесь на слишком дешевые предложения, зачастую скупой платит дважды. Немаловажный фактор – это качество самих секционных ворот. В любом случае комфорт и удобство при использовании данной системы оправдают любые затраты и вложенные силы.
Установка секционных ворот в газоблок. Когда гараж из пеноблока или газосиликата? Что можно и нужно сделать, прежде чем устанавливать ворота. Реальные ворота!
Итак на фото видно что гараж из пеноблока, это удобно, быстро, практично. Есть один фактор, который многих смущает. Это хрупкость конструкции. Так как ворота, ходят по направляющим и крепятся изнутри проёма, в накладку. Места крепления попадают на края блоков, а это их хрупкие места. Расстояние простенков (места крепления направляющих) должны быть 100мм, так как ширина направляющей 80мм.
Фасад сбоку Фасад сбокуНа этом фото видно, как можно выкрутить, усилить так сказать, места крепления направляющих. Делается это соответственно, либо с помощью воротных магов либо самостоятельно. Ставится изнутри, металло-каркас, из уголка минимум 75мм*75мм, либо обжимает весь проём, как на фото. Таким образом, усилив проём, можем хоть царь пушку крепить.
Крепление к деревянному потолку Крепление к деревянному потолкуВид изнутри и крепление, направляющей к потолку, в комплекте поставляемых ворот, всегда идет монтажный уголок.
Вид изнутри. Вид изнутри.Где? - Ярославская область, Ракино,
Срок? - Три недели.
Цифра? Под ключ ( Ворота, автоматика, монтаж, выезд, доставка) -53 7000,00 рублей
Комплект секционных ворот ZAIGER - Classic Eco для проема шириной 2800 мм, высотой 2320 мм, притолока 320 мм, подъем стандартный, барабан спереди, цвет красно - коричневый (8017) , тип панели - стукко/стукко, вал c пазом под шпонку, задвижка, комплект крепежных элементов для: металл, металл, бетон, Без дополнительной обрешетки, Панели с комплектацией верхним П-образным профилем.
Обрамление гаражных ворот. Замеры и создание чертежа
Перед составлением чертежа необходимо определить оптимальные размеры гаражных ворот. Основные параметры выбирают с учетом следующих требований:
- Минимальная ширина проема отталкивается от размеров авто и превышает их на 0,3 м с каждой стороны. Большая величина способствует удобному въезду, меньшая создает риск порчи машины.
- Ширина проема ограничивается габаритами гаража. От ворот до стены, перпендикулярной въезду, должен оставаться промежуток не менее 0,8 м.
- Для легкового авто достаточно высоты гаражных ворот в пределах 2,0-2,2 м. Владельцам микроавтобусов стоит позаботиться о более высоком проеме, порядка 2,5 м.
Приступая к созданию чертежа, учитывайте, что створки гаражных ворот меньше внутренних габаритов рамы. Небольшой зазор способствует удобному открытию конструкции.
Чертеж можно создать самостоятельно с нуля или воспользоваться готовой схемой, изменив отдельные параметры в соответствии с собственными замерами.
Совет! Для работы удобно иметь несколько эскизов, описывающих отдельные элементы гаражных ворот.
Создание чертежа начинают с прорисовки рамы. Она может состоять из двух одинаковых элементов – внешней и внутренней части, которые соединены между собой перемычками. Еще один вариант представлен на фото, когда одиночная рама оснащена специальными крепежами для монтажа.

Затем приступают к прорисовке каркаса для створок. Данные чертежа учитывают все нюансы, от места расположения калитки и балок усиления, до точки монтажа петель, замков и ручек. Пример грамотного чертежа приведен ниже:
Не забудьте о зазорах между каркасом створок и рамой гаражных ворот, эти миллиметры играют очень важную роль в процессе эксплуатации металлической конструкции.
На основе имеющегося чертежа делают расчет потребности в материалах. Наиболее подходящим считается следующий набор:
- рама гаражных ворот формируется из стального уголка толщиной 65 мм;
- каркас для створок обладает меньшей мощностью, для него подойдет металлический уголок сечением 50 мм или профильная труба аналогичных параметров;
- обшивать конструкцию гаражных ворот с калиткой принято листовой сталью, минимальная толщина начинается с 2 мм.
Чем толще берется материал, тем большей прочностью характеризуются гаражные ворота, но и вес их растет пропорционально. Говорить о надежной конструкции можно, когда толщина стали превышает 3 мм. Если гараж не предназначен для стоянки дорогого авто, а служит лишь для хозяйственных целей, в качестве обшивки ворот можно использовать легкий профнастил.
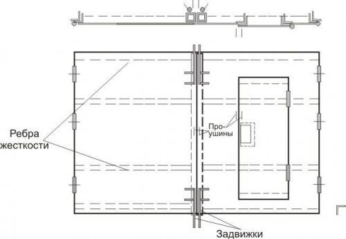
Каркас для секционных ворот. Подготовка проёма к установке воротного каркаса
Для облегчения работ при установке конструкции рекомендуется периметр проема создавать под стандартные указанные в инструкции размеры ворот. В случае несовпадения размеров изготовление нестандартных секционных поднимающихся ворот придется заказывать отдельно. Индивидуальный заказ стоит дороже серийного, а подгонка серийного комплекта тоже стоит денег.
Перед тем как начать устанавливать конструкцию для подъёма секционного полотна, нужно обеспечить свободное пространство стены вокруг дверного проема. Расстояние до потолка должно быть около 30 см, а по бокам – 45 см.
Подготовка проема начинается с удаления со стен облицовки. Если стены гаража построены из легких блоков, то стена укрепляется при помощи установки металлического каркаса.
Схема формирования проездного проёма
Для проведения строительных работ потребуются:
- Комплект монтажных инструментов.
- Перфоратор и шуруповерт.
- Победитовые сверла.
- Рулетка, уровень.
- Крепежные детали.
После подготовки стены и проёма на ней делают разметку согласно указаниям, размещенным в инструкции. Требуется указать места крепления вертикальных направляющих, горизонтальных профилей и несущих элементов, которые направляют и фиксируют перемещение панелей.
Запрещено! Нельзя применять монтажную пену или деревянные колышки с целью регулировки и выравнивания конструкции при установке ворот .
Для этого устанавливают металлические подкладки различных размеров, которые предназначены именно для этого и продаются в магазинах. Обязательно выверяются вертикали дверного проема и надежно фиксируются все детали конструкции, во избежание перекоса.