Технология изготовления распашных ворот. Изготовление ворот (из пиломатериалов): эскизы конструкций, схемы и чертежи для постройки распашных ворот на подвеске
- Технология изготовления распашных ворот. Изготовление ворот (из пиломатериалов): эскизы конструкций, схемы и чертежи для постройки распашных ворот на подвеске
- Ворота своими руками дешево и красиво. Популярные типы конструкций
- Чертеж металлических распашных ворот. Что понадобится для создания чертежа
- Автоматические распашные ворота своими руками чертежи. Как сделать автоматические распашные ворота своими руками
Технология изготовления распашных ворот. Изготовление ворот (из пиломатериалов): эскизы конструкций, схемы и чертежи для постройки распашных ворот на подвеске
Встреча с домом всегда происходит с забора, а точнее, с ворот. Поэтому и делать их нужно не только качественными, но и красивыми. Большое разнообразие материалов позволит это сделать.

Но также не стоит забывать о том, что входная группа должна обеспечивать безопасность. Поэтому при изготовлении нужно учесть и этот момент. 
Виды ворот
Есть несколько вариантов, как изготовить ворота. Выбор зависит не только от материала, но и сложности конструкции, стоимости готовой работы и конечного варианта. Можно сделать как простую, так и сложную конструкцию. 
В зависимости от этого ворота разделяются на следующие виды:
- Раздвижные – для этого варианта обязательно освобождать площадку вдоль ограждения, чтобы ворота спокойно открывались. Есть консольные, подвесные и откатные раздвижные ворота.
- Полотна в этом случае передвигаются по рельсам или металлическим направляющим. Подвесные для частного участка не очень хорошо подходят, потому что сверху ограничены верхним профилем, который иногда может затруднять проезд.
- Откатные перемещаются вдоль ограждения, это не всегда удобно, когда зимой выпадает много осадков. Потому что приходится чистить не только дорожку к воротам, но и место вдоль самого забора.
- Самый популярный вид – консольные. Полотно крепится к балке, а она уже движется по консольному узлу, что позволяет им открываться без особых усилий даже в зимнее время, соприкосновения с землей нет;
- Поворотно-откидные – идеальны для гаража, а вот для вот для двора нет, потому что по высоте будет иметься ограничение;
- Распашные – полотна крепятся на два столба, которые стоят по разные стороны;
- Рулонные – имеют гибкую конструкцию, они наматываются на вал и разматываются обратно при открытии и закрытии;
- Складные – открываются гармошкой как в стороны, так и вверх. Нужно обязательно предусмотреть уплотнительные прокладки между металлическими сетками. Чаще всего выбирают конструкцию, открывающуюся вверх.
Ворота своими руками дешево и красиво. Популярные типы конструкций

Среди самых популярных типов конструкций выделяют следующие:
- раздвижные;
- поворотно-откидные;
- распашные;
- рулонные;
- складные.
Раздвижные ворота считаются беспроигрышным вариантом, так как при эксплуатации они не вызывают проблем.
Легко открываются, требуют минимум пространства. Состоят из одного полотна, которое передвигается по рельсам. Пользуются наибольшим спросом в нашей стране.

Полотна двигаются вдоль стены, поэтому единственное что нужно будет делать — устранять мусор и лёд на пути движения полотна. Делаем откатные ворота из прочного метала, но не оказывая высокой нагрузки на рельсы.
Поворотно-откидные ворота скорее всего подходят для гаражных площадей или отдельных стоянок во дворе.
Если вы не планируете приобретать высокий автомобиль, высоты этих ворот всегда будет более чем достаточно. Тем не менее, такие ворота очень красиво смотрятся со стороны.
Как сделать подъемные ворота, чтобы они годами держались? Вопрос непрост, так как срок службы зависит как раз именно от качества выполненной работы.
Самым привлекающим вниманием вариантом являются всё-таки именно распашные ворота. Кроме этого, они являются идеальным вариантом для фантазий, можно выполнить абсолютно любую огромную конструкцию из разных материалов.
А главное, что они красиво открываются и привлекают внимание прохожих. Но несмотря на ряд своих приятных моментов, распашные зачастую создают ряд проблем зимой, необходимо постоянно убирать снег по обе стороны двора.

Рулонные ворота скорее являются бюджетным вариантом и самым простым в установке. Важно отметить, что рулон не занимает много пространства и легко открывается.
Кроме этого, они просты в ремонте, как и механизм их работы. Вы можете свободно выбирать цвет конструкции, подходят под любые дизайнерские решения.
Ещё один хороший вариант — складные. Их особенность в том, что они как бумага легко складываются в одну незаметную конструкцию. Вам может показаться, что ворот вообще нет в этом дворе.
На самом деле, здесь присутствует максимально высокий уровень удобства, кроме постоянного ухода. Ржавчина может легко уничтожить петли полотен, время от времени может понадобиться ремонт.
Определившись с конструкцией ворот, можно приступать к выбору материала, а также вникнуть во все тонкости этого «рукоделия».
Чертеж металлических распашных ворот. Что понадобится для создания чертежа
Главное из того, что понадобится для создания качественного чертежа ворот (кроме бумаги, а также пишущих, или чертёжных, принадлежностей), это время.

Для того чтобы составляемый чертёж был максимально качественным и давал максимально качественное представление о будущем объекте, а также обо всех подробностях и деталях будущего строительства, следует внимательно изучить все варианты такого строительства.

Проще всего, изучать это с помощью тех материалов, которые в изобилии есть в свободном доступе в сети интернет (также, при определении дизайна будущих ворот, следует применить свою собственную фантазию).

Для каких ворот нужен чертёж
Перед тем, как начинать строительство такого объекта, как ворота, нужно оставить план такого строительства, в который обязательно входит чертёж ворот.

Ни они, будь то откатные или распашные ворота, а также несмотря на то, из какого материала они изготовлены (дерево, профильный лист, обычный листовой металл, или ажурные кованые прутья).
- Для того чтобы сделать грамотный чертёж будущих ворот, потребуется изучив варианты строительства таких объектов (которые применяются в данное время) а также то, из каких именно материалов они большей частью строятся, ну и конечно то, какой внешний вид сейчас в моде.
- Ведь ворота, это то, что первым видит всякий посетитель, а также то, что он видит последним. Поэтому, кроме всего прочего, они должны быть красивыми.
- Поэтому, нужно определиться не только с их конструкцией будущих ворот, но и с тем, какой внешний вид они должны иметь.
- Ведь от этого зависит не только и не столько то, какое впечатление возникнет у посетителей о воротах, но также и то, какое именно мнение, они сложат об имидже владельца.
Когда и для чего нужен чертёж
Чертёж, пригодится вам не только при создании откатных ворот, но и при создании любой другой, даже самой простой их конструкции.

Таким образом, качественный чертёж, способен значительно облегчить процесс будущего строительства ворот (как, впрочем, и любого другого объекта).

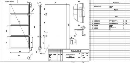
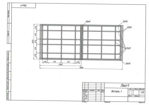
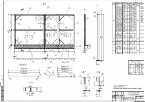
Чертёж ворот, должен включать в себя, все детали будущего сооружения, а также все основные детали. Такой подробный чертёж будущих ворот, сильно облегчит их строительство.

К тому же, подробный чертёж ворот, позволит увидеть то, насколько хорошо, данная конструкция ворот впишется в окружающий ландшафт.
- Итак, создание подробного чертежа ворот, это один из важнейших шагов в их постройке.
- Чертёж, должен включать в себя, как чертёж самих ворот, так и чертежи всех объектов, которые будут их окружать.
- Таким образом, создание чертежа, является не просто, одним из важных действий при постройке ворот, по также и тем действием, которое способно сильно упростить их постройку, а также, поможет им гармонично вписаться в окружающую среду.

Множество проблем, а также возможных ошибок станут видны после того, как будет составлен подробный чертёж будущих ворот (или любого другого объекта).
Что обязательно нужно отобразить на чертеже
На чертеже, должны быть отображены все наиболее важные узлы будущих ворот, а также все те объекты, которые будут их окружать. Это поможет не только избежать многих ошибок при строительстве, но и гармонично вписать ворота в окружающий пейзаж, а также обеспечить их полную функциональность.
- То есть их полное открывание и закрывание, при этом на пути не будет оказываться никаких препятствий.
- Кроме этого если предполагается оснащение ворот любыми средствами автоматики, то при разработке их чертежа, необходимо предусмотреть и отобразить пути прокладки всех коммуникаций (как силовых, так и информационных, то есть кабелей от разнообразных датчиков).
- Это тоже может помочь избежать одной из наиболее распространённых ошибок, а именно прокладки кабелей там, где они будут мешать движению ворот при их открывании и закрывании.
- И избавит вас от изменения маршрута прокладки кабелей в процессе выполнения строительных работ, или даже после их завершения.

Таким образом, детальная разработка чертежа, является одним из важнейших этапов строительства любого объекта, в том числе и ворот, который поможет избежать ошибок на более поздних этапах строительства.

Любые ошибки, которые могут возникнуть при возведении ворот, гораздо проще предотвратить на этапе создания чертежа, нежели устранять их при строительстве, а также намного проще, чем устранять их последствия после постройки ворот.
Плюсы тщательного выполнения чертежа
К тому же на этой стадии, гораздо проще внести изменения в их конструкцию, нежели сделать это на более поздней стадии, стадии строительства, а тем более после её завершения.

Автоматические распашные ворота своими руками чертежи. Как сделать автоматические распашные ворота своими руками

Современные технические приспособления значительно упрощают нашу жизнь, при этом существенно экономят время. Это же касается и автоматических ворот, которые являются достаточно практичными, так как процесс монтирования несложен, стоимость невелика, и к тому же есть возможность сделать автоматические распашные ворота самостоятельно, своими руками. О том, как это сделать и что для этого понадобится, разберемся дальше.
Принцип действия и особенности устройства
Автоматические распашные ворота зачастую имеют в своей комплектации калитку, кроме того, их размер может регулироваться, в зависимости от потребностей покупателя. Высота таких изделий способна достигать в отдельных случаях до 5 метров, что будет также выполнять функцию защиты дома. Что касается самого механизма действия, то ворота открываются либо наружу, либо же внутрь. Первый вариант считается более практичным и используется чаще.
Конструкция состоит из следующих основных элементов:
- петли и створки;
- опорные ручки и столбы;
- электропривод и упор.
При этом электропривод может быть либо линейного типа, либо рычажный. Автоматическое закрытие или открытие ворот происходит с помощью дистанционного управления, с использованием радиобрелока либо стационарного выключателя. Если по каким-то причинам отсутствует электропитание, то открытие происходит привычным путем.
Как сделать автоматические распашные ворота самостоятельно
Сразу скажем, что эта задача под силу каждому. Кроме того, в этом есть много преимуществ, главным из
которых считается экономия средств. Последние вы потратите на оплату монтирования ворот. Вы наперед можете просчитать, сколько вам понадобится для этого денег, рассчитав приблизительную стоимость рычажных приводных устройств, необходимых для распашных ворот.
Если же вы решились сделать самодельные автоматические ворота, то для этого в первую очередь вам понадобятся чертежи, которые надо подготовить и грамотно составить. Изготовление автоматических распашных занимает примерно около 3-х дней, если вы раньше не сталкивались с подобного вида работой.
Первым этапом в процессе монтирования является закладка основания для дальнейшей работы – фундамента. Его можно сделать либо сплошным, либо же залить под каждый столб отдельно. Прочности этой конструкции прибавляют опоры, выбирая которые не стоит экономить. Автоматические распашные ворота предполагают приобретение еще многих других деталей, без которых конструкция окажется неустойчивой. К ним относятся упоры и петли. Выбирая петли, учитывайте факт наличия подшипника, который обеспечит плавное открытие и полное отсутствие какого-либо скрипа.
Преимущества данного устройства
На столбах подобного вида оград используют специальные створки, которые отвечают за процесс открытия ворот. Каждая из них это в своем роде рама, для изготовления которой используется труба квадратной формы, предварительно проходящая процесс сварки. При оформлении облицовки используют чаще профнастил с покрытием из полимера, цвет которого вы можете подбирать на собственный вкус.
Среди преимуществ распашных ворот также стоит отметить:
- Отличный вариант при бюджетном виде строительства, так как стоимость такого устройства приемлема для всех, а для тех, кто делает врата собственноручно, экономия заключается еще и в процессе самого монтирования.
- Большой выбор материалов, применяемых для изготовления распашных ворот, к примеру, дерево либо металл.
- Отсутствует противовес, который встречается в откатных видах ворот.
- Створки гораздо меньше по размеру и, естественно, по весу, что облегчает процесс их установки.
Следует отметить, что подобные конструкции в виде распашных ворот являются достаточно надежными и прочными. Если же случится какая-либо неполадка, то ремонт не потянет за собой огромных финансовых вложений и не отнимет много времени, поэтому сделать это своими руками вполне реально и более экономично.
Если же оценить все достоинства данного устройства, то следует также отметить тот факт, что данная модель предоставляет возможность встраивать калитку, которую легко подключить к общему домофону, установив в ней замок электромеханического типа. С автоматическими распашными воротами вам достаточно всего одного нажатия кнопки, которое влечет за собой бесшумное их открытие, почти без вашего участия. Выбирайте только качественные детали для механизма, просматривайте тщательно чертежи, и тогда вы с легкостью сможете сделать такие ворота самостоятельно.