Как сделать ворота для частного дома и дачи своими руками. Как выбрать материал для ворот
- Как сделать ворота для частного дома и дачи своими руками. Как выбрать материал для ворот
 - Как сделать ворота своими руками из профиля. Конструкции створок
 - Ворота для дачи своими руками чертежи. Что понадобится для создания чертежа
 - Ворота своими руками дешево и красиво. Популярные типы конструкций
 - Ворота из профнастила своими руками чертеж. Установка ворот из профнастила своими руками
 - Ворота своими руками из металла. Делаем фундамент
 - Автоматические распашные ворота своими руками чертежи. Как сделать автоматические распашные ворота своими руками
 
Как сделать ворота для частного дома и дачи своими руками. Как выбрать материал для ворот
Часто на дачах устанавливаются металлические и деревянные ворота. Все более популярными становятся и комбинированные конструкции. Для изготовления металлических ворот применяются профильные трубы, арматура и уголки. Наиболее популярными являются конструкции из профнастила, так как они имеют следующие преимущества:
- приемлемая стоимость материала для облицовки;
 - скорость создания ворот;
 - простота создания створок из профнастила;
 - длительный срок использования ворот;
 - отсутствие коррозии на материале;
 - красота материала.
 

Стоит помнить, что на профнастиле не должно быть дефектов, так как из-за этого на материале может появиться ржавчина. К минусам описываемого материала можно отнести:
- Недостаточную прочность. Ворота из тонкого профнастила могут быть повреждены при сильном ветре или в других случаях, когда на полотно действует большая нагрузка.
 - Возможность появления коррозии. Чтобы облицовочный материал оставался целым, необходимо следить, чтобы его покрытие не было повреждено.
 
Деревянные ворота являются менее популярными, так как их заменяют более надежные и дешевые конструкции. Для изготовления ворот своими руками могут использоваться как дешевые доски, так и пиломатериалы из дорогих пород древесины.

Простые распашные ворота (как на фото) можно собрать собственными руками, имея стандартные инструменты. Если же создается сложная и красивая конструкция, стоит доверить проведение работ профессионалам. Это связано с тем, что многие работы в таком случае необходимо выполнять при помощи специального оборудования для обработки дерева.
К комбинированным изделиям относятся конструкции, при создании которых использовалось несколько материалов. Часто создаются следующие типы таких изделий:
- Кованые створки с поликарбонатом. Подобные изделия являются легкими и при этом красивыми. Стоит помнить, что сделать их самостоятельно не получится. Выбирать такой вариант стоит в случае, когда на участке создается каменный или кирпичный дом. На прилагающихся фото можно увидеть красивые кованые ворота и понять, что именно подходит для вашего участка.

 - Створки из пластиковых панелей. Данный материал закрепляется на металлическом основании. Создать описываемый тип конструкций можно собственными руками. При этом используемые материалы являются довольно дешевыми. Такой вариант выбирают многие владельцы участков, которые желают оформить ворота таким образом, чтобы они сочетались с оформлением дома.
 - Ворота из сетки. Данный бюджетный вариант выбирают владельцы участков, которые собираются потратить на создание ограждения минимальное количество денег. Такие створки изготавливаются из профильной трубы, на которой впоследствии закрепляется сетка. Перед тем как сделать такие ворота на даче своими руками, стоит создать чертеж, на котором будут отображаться размеры всех элементов.

 
Как сделать ворота своими руками из профиля. Конструкции створок
Даже в такую незамысловатую конструкцию, как створка ворот или калитка можно сделать по-разному, причем вариантов немало. В первую очередь различается расположение перемычек:
- наискосок;
 - горизонтально;
 - крестообразно.
 
Каждый способ проверен и работает, обеспечивая достаточную степень жесткости. Тут выбираете то, что кажется вам более правильным или надежным.

Конструкция ворот из металлопрофиля с укосинами
Есть разница в конструкции самих ворот — со стационарной рамой (верхней перекладиной) или без. С рамой ворота более стабильны, но тогда есть ограничения по высоте: не смогут заехать во двор высокие машины — грузовые или спецтехника. При грамотном усилении стоек (столбов) и нормально сделанных створках (с усилением по углам) ворота без рамы будут тоже надежны.

Конструкция ворот в верхней перекладиной и поперечными перемычками
При установке ворот с рамой расход металла больше — на длину перемычки, но при этом можно дополнительно столбы не усиливать: нагрузка на них меньше.

Крестообразные перемычки на воротинах из металлопрофиля
Чтобы удобнее было крепить профлист, по наружному (иногда, внутреннему, как на рисунке выше) периметру створок приваривают тонкостенный металлический профиль шириной 1 см. Это нужно учитывать при определении размеров заготовок под створки.
Чтобы сделать конструкцию как можно более жесткой, чтобы она не «гуляла» и не шумела при ветре, в углах делают усиление. И снова способов два. Первый — приварить вырезанные из листового металла уголки.

Усиление створок пластинами из металла
Второй — поставить короткие угловые укосины из той же трубы, что варили каркас створок.

Второй способ усиления створок ворот
Есть разница и во врем сборки: с местах стыков трубы соединяют под углом 45° или просто встык. Профессиональнее — под 45°, проще — встык. Некоторые способы сборки вообще не предусматривают возможности соединения под углом (если собирается цельными обе створки, и только навешенные на столбы они распиливаются на две части).

Разные способы стыковки труб
Еще одна тонкость, которая зависит от количества снега зимой. Как видите на фото, нижнюю планку створок поднимают на разную высоту от земли — где-то на несколько сантиметров, где-то на 20 см и выше. Зависит от высоты снежного покрова зимой: если навалит снега, а ворота от самой земли, вы их не откроете. Чтобы летом в этот зазор не лазила всякая живность, после схода снега на саморезы прикручивают планку, поздней осенью ее снова снимают.
На распашные ворота можно поставить автоматику . Тогда управлять ими можно с пульта и выходить под снег и дождь не нужно.
Ворота для дачи своими руками чертежи. Что понадобится для создания чертежа
Главное из того, что понадобится для создания качественного чертежа ворот (кроме бумаги, а также пишущих, или чертёжных, принадлежностей), это время.

Для того чтобы составляемый чертёж был максимально качественным и давал максимально качественное представление о будущем объекте, а также обо всех подробностях и деталях будущего строительства, следует внимательно изучить все варианты такого строительства.

Проще всего, изучать это с помощью тех материалов, которые в изобилии есть в свободном доступе в сети интернет (также, при определении дизайна будущих ворот, следует применить свою собственную фантазию).

Для каких ворот нужен чертёж
Перед тем, как начинать строительство такого объекта, как ворота, нужно оставить план такого строительства, в который обязательно входит чертёж ворот.

Ни они, будь то откатные или распашные ворота, а также несмотря на то, из какого материала они изготовлены (дерево, профильный лист, обычный листовой металл, или ажурные кованые прутья).
- Для того чтобы сделать грамотный чертёж будущих ворот, потребуется изучив варианты строительства таких объектов (которые применяются в данное время) а также то, из каких именно материалов они большей частью строятся, ну и конечно то, какой внешний вид сейчас в моде.
 - Ведь ворота, это то, что первым видит всякий посетитель, а также то, что он видит последним. Поэтому, кроме всего прочего, они должны быть красивыми.
 - Поэтому, нужно определиться не только с их конструкцией будущих ворот, но и с тем, какой внешний вид они должны иметь.
 - Ведь от этого зависит не только и не столько то, какое впечатление возникнет у посетителей о воротах, но также и то, какое именно мнение, они сложат об имидже владельца.
 
Когда и для чего нужен чертёж
Чертёж, пригодится вам не только при создании откатных ворот, но и при создании любой другой, даже самой простой их конструкции.

Таким образом, качественный чертёж, способен значительно облегчить процесс будущего строительства ворот (как, впрочем, и любого другого объекта).

Чертёж ворот, должен включать в себя, все детали будущего сооружения, а также все основные детали. Такой подробный чертёж будущих ворот, сильно облегчит их строительство.

К тому же, подробный чертёж ворот, позволит увидеть то, насколько хорошо, данная конструкция ворот впишется в окружающий ландшафт.
- Итак, создание подробного чертежа ворот, это один из важнейших шагов в их постройке.
 - Чертёж, должен включать в себя, как чертёж самих ворот, так и чертежи всех объектов, которые будут их окружать.
 - Таким образом, создание чертежа, является не просто, одним из важных действий при постройке ворот, по также и тем действием, которое способно сильно упростить их постройку, а также, поможет им гармонично вписаться в окружающую среду.
 

Множество проблем, а также возможных ошибок станут видны после того, как будет составлен подробный чертёж будущих ворот (или любого другого объекта).
Что обязательно нужно отобразить на чертеже
На чертеже, должны быть отображены все наиболее важные узлы будущих ворот, а также все те объекты, которые будут их окружать. Это поможет не только избежать многих ошибок при строительстве, но и гармонично вписать ворота в окружающий пейзаж, а также обеспечить их полную функциональность.
- То есть их полное открывание и закрывание, при этом на пути не будет оказываться никаких препятствий.
 - Кроме этого если предполагается оснащение ворот любыми средствами автоматики, то при разработке их чертежа, необходимо предусмотреть и отобразить пути прокладки всех коммуникаций (как силовых, так и информационных, то есть кабелей от разнообразных датчиков).
 - Это тоже может помочь избежать одной из наиболее распространённых ошибок, а именно прокладки кабелей там, где они будут мешать движению ворот при их открывании и закрывании.
 - И избавит вас от изменения маршрута прокладки кабелей в процессе выполнения строительных работ, или даже после их завершения.
 

Таким образом, детальная разработка чертежа, является одним из важнейших этапов строительства любого объекта, в том числе и ворот, который поможет избежать ошибок на более поздних этапах строительства.

Любые ошибки, которые могут возникнуть при возведении ворот, гораздо проще предотвратить на этапе создания чертежа, нежели устранять их при строительстве, а также намного проще, чем устранять их последствия после постройки ворот.
Плюсы тщательного выполнения чертежа
К тому же на этой стадии, гораздо проще внести изменения в их конструкцию, нежели сделать это на более поздней стадии, стадии строительства, а тем более после её завершения.

Ворота своими руками дешево и красиво. Популярные типы конструкций

Среди самых популярных типов конструкций выделяют следующие:
- раздвижные;
 - поворотно-откидные;
 - распашные;
 - рулонные;
 - складные.
 
Раздвижные ворота считаются беспроигрышным вариантом, так как при эксплуатации они не вызывают проблем.
Легко открываются, требуют минимум пространства. Состоят из одного полотна, которое передвигается по рельсам. Пользуются наибольшим спросом в нашей стране.

Полотна двигаются вдоль стены, поэтому единственное что нужно будет делать — устранять мусор и лёд на пути движения полотна. Делаем откатные ворота из прочного метала, но не оказывая высокой нагрузки на рельсы.
Поворотно-откидные ворота скорее всего подходят для гаражных площадей или отдельных стоянок во дворе.
Если вы не планируете приобретать высокий автомобиль, высоты этих ворот всегда будет более чем достаточно. Тем не менее, такие ворота очень красиво смотрятся со стороны.
Как сделать подъемные ворота, чтобы они годами держались? Вопрос непрост, так как срок службы зависит как раз именно от качества выполненной работы.
Самым привлекающим вниманием вариантом являются всё-таки именно распашные ворота. Кроме этого, они являются идеальным вариантом для фантазий, можно выполнить абсолютно любую огромную конструкцию из разных материалов.
А главное, что они красиво открываются и привлекают внимание прохожих. Но несмотря на ряд своих приятных моментов, распашные зачастую создают ряд проблем зимой, необходимо постоянно убирать снег по обе стороны двора.

Рулонные ворота скорее являются бюджетным вариантом и самым простым в установке. Важно отметить, что рулон не занимает много пространства и легко открывается.
Кроме этого, они просты в ремонте, как и механизм их работы. Вы можете свободно выбирать цвет конструкции, подходят под любые дизайнерские решения.
Ещё один хороший вариант — складные. Их особенность в том, что они как бумага легко складываются в одну незаметную конструкцию. Вам может показаться, что ворот вообще нет в этом дворе.
На самом деле, здесь присутствует максимально высокий уровень удобства, кроме постоянного ухода. Ржавчина может легко уничтожить петли полотен, время от времени может понадобиться ремонт.
Определившись с конструкцией ворот, можно приступать к выбору материала, а также вникнуть во все тонкости этого «рукоделия».
Ворота из профнастила своими руками чертеж. Установка ворот из профнастила своими руками
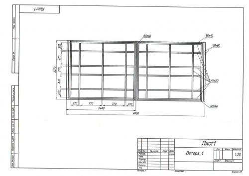
Распашные ворота – самая простая и распространенная конструкция ворот, используемая на частных земельных участках. Ворота из профлиста легко сварить и установить своими руками, имея даже минимум инструментов и навыков, нужно лишь четко следовать инструкции.
Стандартные распашные ворота состоят из двух опор и двух створок, которые соединяются между собой и закрываются на замок, задвижку или при помощи другого фиксатора.

ворота из профнастила. Чертежи
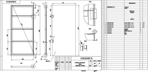
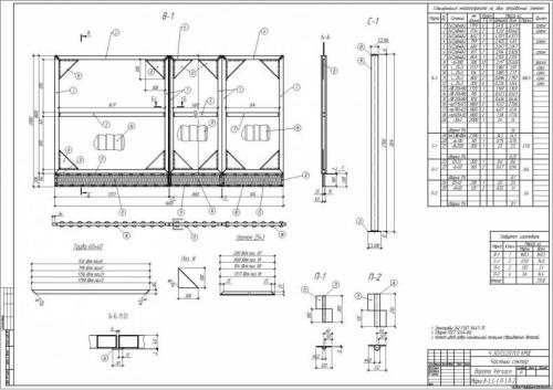
Чтобы приступить к изготовлению ворот, нужно составить чертежи ворот из профлиста, рассчитать количество необходимых материалов, крепежа и правильно подобрать инструменты. Мы рассмотрим как устанавливаются ворота на стандартный 4-хметровый проездной проем.

Чтобы сварить опорные столбы для ворот потребуется толстостенная труба 60х60х3х3000 мм. Сечение трубы можно выбрать любое, оно не влияет на качество опор и подбирается только исходя из их доступности.

Для каркаса ворот потребуется труба прямоугольного сечения 40х25х2х6000 мм. Из нее варим прямоугольные рамы, к которым в будущем будет крепиться профнастил. После того, как рамки готовы, их прикрепляют на воротные петли к установленным столбам. В месте смыкания створок предусматривается запорное устройство.

После установки конструкции можно приступить к покраске каркаса ворот. Для этого зачищаем поверхности при помощи болгарки, покрываем грунтовкой в 2 слоя и краской такого же цвета, как выбранный профнастил для обшивки. Ту часть столбов, что будет находиться под землей, необходимо покрыть гидроизоляционной краской, чтобы защитить от коррозии при соприкосновении с влажной землей.

Столбы устанавливаются в подготовленные, пробуренные отверстия в грунте и бетонируются бетоном М200 или М250. Глубина фундамента для ворот из профлиста должна быть не менее 1,5 метров и диаметром от 25 см. Чтобы избежать перекоса ворот по прошествии некоторого времени, можно дополнительно соединить столбы монолитным бетонным ригелем.

После того как бетон высохнет, рама каркаса ворот с лицевой стороны зашивается профнастилом с нахлестом равным ширине одной волны. Об этом нужно помнить при расчете количества необходимых материалов. В качестве крепежа используются кровельные саморезы или заклепки из стали, чтобы избежать коррозии в месте соприкосновения разных металлов.

В последнюю очередь устанавливается з апорное устройство . При необходимости наносится краска на поврежденные при монтаже места ворот.


ворота из профнастила своими руками.
Ворота своими руками из металла. Делаем фундамент
Первый шаг. Отмечаем места для установки вертикальных опор. Всего таких стоек будет 3: одна для крепления калитки и пара для монтажа створок.
Второй шаг. Выкапываем ямы диаметром порядка 20-25 см (в зависимости от размеров выбранных стоек, об этом далее) для установки опор. Глубину ям рассчитываем так, чтобы она составляла примерно 30-35% от высоты надземной части опор. Учитываем, что высота полотна ворот обычно делается на 50 см меньше высоты опор.
Благодаря такому запасу будет обеспечен необходимый 20-30-сантиметровый промежуток между землей и нижним краем створок, а остальной запас по желанию владельца можно будет использовать для монтажа различных декоративных элементов вверху конструкции.
Третий шаг. Засыпаем дно каждого углубления 10-15-сантиметровым слоем щебенки. Тщательно утрамбовываем подушку.
Четвертый шаг. Готовим раствор для заливки опор. Берем часть цемента М400, пару частей песка и 4 части мелкой щебенки. Смешиваем сухие ингредиенты, постепенно добавляя к ним воду до получения смеси вязкой консистенции.
Пятый шаг. Вставляем в ямы опорные стойки. Их можно делать из разных материалов, а именно:
- бруса сечением 15х15 см;
 - круглого бревна диаметром от 20 см;
 - швеллерной балки со стенками толщиной не менее 1,5 см;
 - профильной трубы сечением 8х10 см со стенками не тоньше 7 мм.
 

Вставляем в ямы опорные стойки

Столб устанавливается в яму, его вертикальное положение достигается с помощью уровня
Опоры выставляем строго вертикально и заливаем раствором до верха ям. В случае использования деревянных стоек предварительно обрабатываем их заглубляемые части антисептиком и оборачиваем рубероидом либо просмаливаем.
Чтобы металлические опоры были более устойчивыми, мы можем предварительно прикрепить сваркой к их нижним концам по 3-4 горизонтальные планки из стальной арматуры, металлического уголка либо труб.
Даем бетону схватиться. На это ему нужно минимум 2-3 суток. По ГОСТу же бетон набирает прочность в среднем в течение месяца.
Пока бетон сохнет, займемся изготовлением каркаса.



Автоматические распашные ворота своими руками чертежи. Как сделать автоматические распашные ворота своими руками

 Современные технические приспособления значительно упрощают нашу жизнь, при этом существенно экономят время. Это же касается и автоматических ворот, которые являются достаточно практичными, так как процесс монтирования несложен, стоимость невелика, и к тому же есть возможность сделать автоматические распашные ворота самостоятельно, своими руками. О том, как это сделать и что для этого понадобится, разберемся дальше.
Принцип действия и особенности устройства
Автоматические распашные ворота зачастую имеют в своей комплектации калитку, кроме того, их размер может регулироваться, в зависимости от потребностей покупателя. Высота таких изделий способна достигать в отдельных случаях до 5 метров, что будет также выполнять функцию защиты дома. Что касается самого механизма действия, то ворота открываются либо наружу, либо же внутрь. Первый вариант считается более практичным и используется чаще.
Конструкция состоит из следующих основных элементов:
- петли и створки;
 - опорные ручки и столбы;
 - электропривод и упор.
 
При этом электропривод может быть либо линейного типа, либо рычажный. Автоматическое закрытие или открытие ворот происходит с помощью дистанционного управления, с использованием радиобрелока либо стационарного выключателя. Если по каким-то причинам отсутствует электропитание, то открытие происходит привычным путем.
Как сделать автоматические распашные ворота самостоятельно
Сразу скажем, что эта задача под силу каждому. Кроме того, в этом есть много преимуществ, главным из которых считается экономия средств. Последние вы потратите на оплату монтирования ворот. Вы наперед можете просчитать, сколько вам понадобится для этого денег, рассчитав приблизительную стоимость рычажных приводных устройств, необходимых для распашных ворот.
Если же вы решились сделать самодельные автоматические ворота, то для этого в первую очередь вам понадобятся чертежи, которые надо подготовить и грамотно составить. Изготовление автоматических распашных занимает примерно около 3-х дней, если вы раньше не сталкивались с подобного вида работой.
Первым этапом в процессе монтирования является закладка основания для дальнейшей работы – фундамента. Его можно сделать либо сплошным, либо же залить под каждый столб отдельно. Прочности этой конструкции прибавляют опоры, выбирая которые не стоит экономить. Автоматические распашные ворота предполагают приобретение еще многих других деталей, без которых конструкция окажется неустойчивой. К ним относятся упоры и петли. Выбирая петли, учитывайте факт наличия подшипника, который обеспечит плавное открытие и полное отсутствие какого-либо скрипа.
Преимущества данного устройства
На столбах подобного вида оград используют специальные створки, которые отвечают за процесс открытия ворот. Каждая из них это в своем роде рама, для изготовления которой используется труба квадратной формы, предварительно проходящая процесс сварки. При оформлении облицовки используют чаще профнастил с покрытием из полимера, цвет которого вы можете подбирать на собственный вкус.
Среди преимуществ распашных ворот также стоит отметить:
- Отличный вариант при бюджетном виде строительства, так как стоимость такого устройства приемлема для всех, а для тех, кто делает врата собственноручно, экономия заключается еще и в процессе самого монтирования.
 - Большой выбор материалов, применяемых для изготовления распашных ворот, к примеру, дерево либо металл.
 - Отсутствует противовес, который встречается в откатных видах ворот.
 - Створки гораздо меньше по размеру и, естественно, по весу, что облегчает процесс их установки.
 
Следует отметить, что подобные конструкции в виде распашных ворот являются достаточно надежными и прочными. Если же случится какая-либо неполадка, то ремонт не потянет за собой огромных финансовых вложений и не отнимет много времени, поэтому сделать это своими руками вполне реально и более экономично.
Если же оценить все достоинства данного устройства, то следует также отметить тот факт, что данная модель предоставляет возможность встраивать калитку, которую легко подключить к общему домофону, установив в ней замок электромеханического типа. С автоматическими распашными воротами вам достаточно всего одного нажатия кнопки, которое влечет за собой бесшумное их открытие, почти без вашего участия. Выбирайте только качественные детали для механизма, просматривайте тщательно чертежи, и тогда вы с легкостью сможете сделать такие ворота самостоятельно.

