Как сварить ворота для гаража своими руками. Изготовление
- Как сварить ворота для гаража своими руками. Изготовление
- Как сварить гаражные ворота из профиля. Как изготовить ворота из профильной трубы своими руками — пошаговая инструкция с фото и видео
- Гаражные ворота из уголка своими руками. Изготовление рамы гаражных ворот
- Гаражные металлические ворота своими руками. Конструкции створок
Как сварить ворота для гаража своими руками. Изготовление
Металлические распашные ворота для гаража — наиболее доступный вариант. В конструкцию имеет смысл также включить калитку . Она позволит проходить в гараж, не открывая створки. Особых сложностей возникнуть с калиткой не должно. На чертеже она будет ограничена рамой и усилена дополнительными балками.
Первым шагом в изготовлении будет разработка чертежа . Как было отмечено выше, обычно берут стандартную схему и дополняют её по своему желанию, например, калиткой. Металлические распашные ворота будут состоять трёх элементов:
- Полотно из листов металла. Этот элемент будет самым тяжелым в конструкции.
- Каркас. Его выполняют из прокатного уголка.
- Крепеж. Из материалов вам будут необходимы стальные уголки 65 на 65 миллиметров, оцинкованная сталь/алюминий, профиль.
Рекомендуется брать сталь с толщиной от трёх миллиметров и больше. Помимо этого, для ворот понадобятся петли и замки . Из инструментов вам пригодится болгарка, сварочный аппарат, измерительные приборы.
После покупки стройматериалов можно начать изготовление внешней и внутренней рамы . Из уголка вырезают заготовки требуемого размера. Заготовки выкладывают на землю в виде будущей рамы. Форму измеряют уровнем. Обращайте внимание на отсутствие неровностей и перекосов. Они крайне негативно влияют на надежность конструкции и её долговечность.
Чтобы зафиксировать заготовки на земле, можно воспользоваться подручными материалами . Сделайте из них подкладки и еще раз проверьте форму на неровности.
Как сварить ворота в гараж?
После проверки следует приступать к сварке . Качество сварных швов будет сказываться на прочности будущих ворот, поэтому к процессу необходимо отнестись со всей серьезностью. Затем наступает очередь внутренней рамы. Её изготавливают аналогичным образом – раскладывают на земле заготовки, проверяют и сваривают их. Сварные швы в обязательном порядке отшлифовывают болгаркой .
Следующий шаг – работа с обшивкой . Как и в случае с рамой будет два элемента – правая и левая створка. Материал, например, оцинкованную сталь обрезают, исходя из размеров створок.
Обрезать следует, учитывая нахлёст . Достаточным нахлёстом является 1-2 сантиметра листа. После этого полотно начинают крепить к каркасу.
В первую очередь лист необходимо приваривать по углам и к середине. Потом переходят на низ листа и его периметр. Точки, оставшиеся по углам, обрезают .
Теперь можно приступать к петлям и замку. Нижние части петель приваривают к раме. Верхние на наружную створку. Чтобы усилить конструкцию, используют арматуру или металлические полоски. На ворота можно установить штыревой стопор или засов. Решения позволяют надежно закрывать гараж изнутри . Стопор легко изготовить самостоятельно из отрезка трубы.
После всех подготовительных и сварочных работ конструкцию нужно покрасить и на гараж. Для этого сначала скрепляют внешнюю и внутреннюю раму, использую пластины из металла. Пластины имеют толщину 4-5 сантиметра. Крепёжный шаг равен 50-60 сантиметрам. Затем ворота навешивают и утепляют.
Как сварить гаражные ворота из профиля. Как изготовить ворота из профильной трубы своими руками — пошаговая инструкция с фото и видео
Преимущества профильной трубы для изготовления ворот
Труба из профиля, как основной материал для создания ворот, востребована, популярна и часто используется благодаря следующим достоинствам:
- низкая стоимость;
- высокая прочность и при этом небольшой вес;
- удобство монтажа – профиль податливый, легко вырезать детали, сваривать заготовки, соединять саморезами.

Но наряду с плюсами есть и недостатки:
- Слабая устойчивость к коррозии. Высокая влажность окружающей среды и жидкость, проникающая внутрь конструкции, постепенно приводит к образованию ржавчины.
- Наносить грунтовку и краску на поверхность труб неудобно, что значительно затягивает время установки.
- При неаккуратном обращении и ошибках при установке каркас часто деформируется.
Как изготовить ворота из профильной трубы своими руками
Ворота для дома или дачи могут быть изготовлены самостоятельно. Подходящим материалом для этой цели является металл.
Существует большое количество различных способов изготовления проезда из этого материала, но наиболее простым и практичным техническим решением, является использование профильной трубы. При наличии сварочного аппарата ворота из профильной трубы своими руками можно изготовить в течение одного дня.
Виды ворот из профильной трубы
Изготовление ворот из профильной трубы своими руками может осуществляться следующих видов:
- В виде решётки.
- Обшитые сайдингом, деревом либо профнастилом.
- С элементами ковки.
- Ажурные.

Если створки устанавливаются для того, чтобы скрыть двор от посторонних глаз, то из профиля изготавливается только рама ворот, а свободное пространство полностью закрывается с помощью любого сплошного материала.
В случае, когда необходимо установить ворота с элементами декора, то при сборке следует использовать кованые изделия, которые не закрывают обзор участка за ограждением. Ворота также могут быть изготовлены с использованием внутри рамы параллельно расположенных отрезков профильной трубы небольшого сечения.

Вне зависимости от вида ворот изготавливаемых самостоятельно из профильной трубы, необходимо правильно подобрать материал для изготовления опор, каркаса и внутреннего заполнения рамы.
Выбираем профильную трубу
Только при наличии качественного материала можно изготовить ворота, геометрическая форма которых не изменится в течение длительного промежутка времени.
Если на поверхности материала имеется глубокая коррозия, то от использование такого профиля следует отказаться. Поэтому, если нужно использовать материал, который остался от выполнения других видов строительных работ, его следует тщательно осмотреть перед использованием.
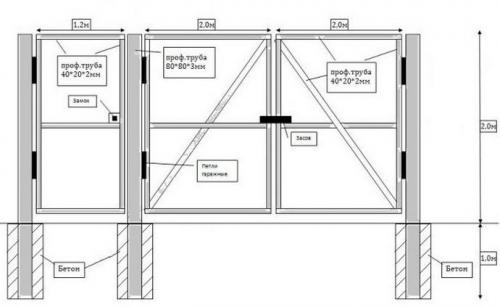
Самым правильным вариантом является приобретение профильной трубы на металлобазе. Для изготовления конструкции потребуется материал следующего сечения:
- Для изготовления опор — 80*80 мм.
- Для рамы — 60*40 или 40*20 мм.
- Для перемычек — 40*20 или 20*20 мм.

Толщина стенок металлической трубы не должна быть менее 2 мм.
Для выполнения сварочных и монтажных работ также понадобятся:
Когда все материалы и инструменты будут приготовлены можно приступать к непосредственному изготовлению сварной конструкции.
Процесс изготовления ворот из профильной трубы
Прежде чем приступить к практической части, составляются подробные чертежи и эскизы данного изделия. На бумаге следует обязательно указать длину и высоту сооружения, а также количество перемычек между горизонтальными плоскостями.
Если изготавливается распашная конструкция, то необходимо сварить две одинаковые по размеру створки.

При конструировании более сложной, откатной системы, ворота выполняются в виде одного длинного полотна прямоугольной формы.

Вне зависимости от типа конструкции, ширина не должна быть менее 3 метров, а высота — 1,6 м.
Гаражные ворота из уголка своими руками. Изготовление рамы гаражных ворот
Работы по созданию ворот для гаража своими руками начинаем с изготовления рамы. Удобнее всего ее делать в ходе сооружения фронтальной стены. Как только кладка достигнет полуметровой высоты, ставим каркас и продолжаем выкладку. На изготовление рамы потребуются материалы и оборудование:
- уголки стальные – 65 мм;
- куски стального арматурного прута;
- болгарка со сварочным аппаратом;
- угольник, измерительная лента, уровень;
- стальные полоски шириной 3 см и толщиной 4 мм.

Изготовление рамы для гаражных ворот — очень важный процесс!
Создаём раму для гаражных ворот поэтапно. Сначала разрежем уголок на 8 частей. 4 отрезка должны совпадать с шириной проёма, другие 4 куска – с высотой. Уголок рассекаем ровно с точным соблюдением расстояния или делаем 10-сантиметровый запас. Во втором случае сторону уголка, предназначенную для внутренней части проёма, вырезаем по размеру. По сторонам внутри и снаружи стены оставляем сверху и снизу 5-сантиметровые полоски либо срезаем их углом. Такой подход обеспечит удобную сварку полос.
На втором этапе выкладываем заготовки уголков на ровной поверхности и измеряем углы на предмет соответствия 90 градусам. В ходе работ регулярно контролируем этот параметр угольником.
Третий этап – сварка уголков до получения каркаса. Тут можно поступить по-разному:
- Наложить края уголков внахлёст и соединить их.
- Срезать край углом и сварить детали, но это соединение не такое прочное, как первое.

Изготовление рамы гаражных ворот
Отклонившийся в сторону уголок поправляют при помощи рычага, который является куском уголка. Приваривая его в нужном положении, деталь рамы ориентируют в запланированном направлении.
С наружной стороны рамки осторожно счищаем излишки сварки и приступаем к выполнению следующих работ.
Гаражные металлические ворота своими руками. Конструкции створок
Даже в такую незамысловатую конструкцию, как створка ворот или калитка можно сделать по-разному, причем вариантов немало. В первую очередь различается расположение перемычек:
- наискосок;
- горизонтально;
- крестообразно.
Каждый способ проверен и работает, обеспечивая достаточную степень жесткости. Тут выбираете то, что кажется вам более правильным или надежным.

Конструкция ворот из металлопрофиля с укосинами
Есть разница в конструкции самих ворот — со стационарной рамой (верхней перекладиной) или без. С рамой ворота более стабильны, но тогда есть ограничения по высоте: не смогут заехать во двор высокие машины — грузовые или спецтехника. При грамотном усилении стоек (столбов) и нормально сделанных створках (с усилением по углам) ворота без рамы будут тоже надежны.

Конструкция ворот в верхней перекладиной и поперечными перемычками
При установке ворот с рамой расход металла больше — на длину перемычки, но при этом можно дополнительно столбы не усиливать: нагрузка на них меньше.

Крестообразные перемычки на воротинах из металлопрофиля
Чтобы удобнее было крепить профлист, по наружному (иногда, внутреннему, как на рисунке выше) периметру створок приваривают тонкостенный металлический профиль шириной 1 см. Это нужно учитывать при определении размеров заготовок под створки.
Чтобы сделать конструкцию как можно более жесткой, чтобы она не «гуляла» и не шумела при ветре, в углах делают усиление. И снова способов два. Первый — приварить вырезанные из листового металла уголки.

Усиление створок пластинами из металла
Второй — поставить короткие угловые укосины из той же трубы, что варили каркас створок.

Второй способ усиления створок ворот
Есть разница и во врем сборки: с местах стыков трубы соединяют под углом 45° или просто встык. Профессиональнее — под 45°, проще — встык. Некоторые способы сборки вообще не предусматривают возможности соединения под углом (если собирается цельными обе створки, и только навешенные на столбы они распиливаются на две части).

Разные способы стыковки труб
Еще одна тонкость, которая зависит от количества снега зимой. Как видите на фото, нижнюю планку створок поднимают на разную высоту от земли — где-то на несколько сантиметров, где-то на 20 см и выше. Зависит от высоты снежного покрова зимой: если навалит снега, а ворота от самой земли, вы их не откроете. Чтобы летом в этот зазор не лазила всякая живность, после схода снега на саморезы прикручивают планку, поздней осенью ее снова снимают.
На распашные ворота можно поставить автоматику . Тогда управлять ими можно с пульта и выходить под снег и дождь не нужно.