Как изготовить своими руками ворота из профильной трубы. Изготовление ворот распашных металлических своими руками
- Как изготовить своими руками ворота из профильной трубы. Изготовление ворот распашных металлических своими руками
- Ворота из профтрубы своими руками. Как сварить ворота из профильной трубы своими руками: чертежи и расчет, фото
- Каркас ворот своими руками. Распашные ворота своими руками: поэтапный ход изготовления
- Ворота своими руками дешево и красиво. Ворота для частного сектора: виды конструкций, рекомендации по сборке
- Ворота из профильной трубы 40х40. Как сварить ворота на забор из профильной трубы своими руками
- Сварка ворот из профильной трубы поэтапно. Подготовка к постройке: как рассчитать размеры будущей конструкции
- Какую профильную трубу использовать для ворот. Выбираем профильную трубу
Как изготовить своими руками ворота из профильной трубы. Изготовление ворот распашных металлических своими руками
Перед сборкой ворот я нарезал по размеру заготовки из профтрубы. Соединения в углах каркаса я делал встык под прямым углом – никаких угловых под 45 ° . Во-первых, это значительно усложнило бы работу, во-вторых, в замкнутом пространстве все равно образовывалась бы влага, которая при отсутствии проветривания неизбежно разрушила бы ворота изнутри.
Сваривать распашные ворота из профильной трубы нужно, зафиксировав надежно положение всех элементов. Желательно выложить все на ровном участке или подложить под углы деревнные бруски. Все элементы должны располагаться в одной плоскости.

Сначала нужно «прихватить» сваркой все углы, а после того как сварные швы остынут, обварить их. Если каждый угол сваривать самостоятельно, отдельно от остальных, полотно «поведет» и оно получится как бы скрученным, не плоским.
Если сварные швы получаются аккуратными, их можно не шлифовать, но я все-таки выровнял стыки болгаркой.
Чтобы сварные швы были прочными и красивыми, необходимо подготовить их к монтажу. Для этого нужно снять фаски с кромок. Тогда металл электрода будет равномерно заполнять «сварочную ванну» обеспечивая надежность соединения.


Калитку проще вставлять в уже готовую сваренную створку. Если соединять все детали сразу, трудно будет уследить за тем, чтобы углы оставались прямыми.

Листы профнастила нужно монтировать на каркас уже после того, как последний установлен окончательно. Если собрать створки целиком, а потом устанавливать, то они будут намного тяжелее, да и ветер, даже небольшой, будет мешать работе – парусность очень велика.
Ворота из профтрубы своими руками. Как сварить ворота из профильной трубы своими руками: чертежи и расчет, фото
Ворота из профильной трубы отличаются высокой прочностью, простотой в самостоятельном монтаже и доступной ценой. Неудивительно, что подобные изделия пользуются большой популярностью среди владельцев загородной недвижимости. Как сделать ворота из профильной трубы своими руками, описано ниже в статье.

На даче
Достоинства и недостатки профилированных труб
- высокую прочность при легком весе;
- возможность самостоятельного монтажа (металлопрофиль легко режется, сваривается и соединяется самонарезающими шурупами).

На участке
К недостаткам профильных изделий относят:
- подверженность ржавлению при взаимодействии с атмосферными осадками, обусловливающими образование коррозии;
- неудобство в грунтовании и окрашивании поверхности трубопроката, что влечет за собой увеличение временных затрат на установку труб.

Фигурный металлоштакетник
Как видно выше, достоинства профильных труб с лихвой компенсируют их недостатки.
Как сварить ворота на забор из профильной трубы своими руками
Технология изготовления конструкции достаточно простая. Чтобы сварить ворота из профильных труб, нужно подобрать вид изделия, оптимально подходящий под конструкцию створок.

Установка запоров
Выбор труб
Профтрубу под ворота предпочтительней выбрать квадратного либо прямоугольного сечения. Трубы такой формы легче монтируются и транспортируются на участок. Наиболее прочные профильные трубы производятся из следующих видов стали:
- нержавейки;
- оцинковки;
- углеродистой.
На фото представлены металлические створки.

Кованые элементы
Цена трубных заготовок зависит от материала, из которого они изготовлены. Наиболее бюджетным вариантом являются изделия из углеродистой стали. Впрочем, при выборе труб из углеродного сплава учитывается низкая прочность и короткий эксплуатационный срок такой продукции.
Сварные холоднокатаные и оцинкованные профили – оптимальный вариант под створки, но их стоимость выше. Трубы равнозначного диаметра могут вдвое отличаться по толщине стенок.
Под створки используются трубы квадратного либо прямоугольного сечения. Сделать работу правильно и своими руками возможно при наличии сварочного аппарата и вспомогательных инструментов.
На фото изображена конструкция после установки.

После монтажа
Подготовка участка
На стадии подготовки учитываются габариты въезжающего в проем ворот автотранспорта. Определяется общая площадь, занимаемая распашными или откатными створками. Стандартные размеры ворот составляют:
- по общей ширине – 2,5–3,5 м;
- по высоте (ворот и калитки) – 1м 50 см;
- по ширине калитки – 0,75–1 м.
На фото изображены ворота на даче.

Металлический штакетник на профтрубе
С учетом калитки общая ширина участка под ворота должна составлять 3,5 или 4,5 м. Конструкция, монтируемая на ранее установленное заграждение, ставится по соответствующей изгороди высоте. Иногда допустима меньшая высота створок, но не менее 40 сантиметров.
Чертежи и расчет
Перед проведением работ на бумагу наносится чертеж. Изображают прямоугольный проем с прямоугольником меньшего размера внутри, обозначающим раму из профиля с указанием длины и ширины будущей конструкции. Также проводится расчет финансовых затрат на приобретение необходимых материалов и набора инструментов для работы.

Схема установки с размерами
Ворота из профтрубы собираются из различных элементов, отличающихся сечением. Диаметр стальной трубы под несущие створки опоры составляет 80х80 или 100х100 мм. Каркас ворот из профтрубы выполняется из изделий 50х50 мм.
Перемычки и продольные полосы сваривают из отрезков профиля 20–40 мм.
Кроме основных величин, на рисунке чертежа указывают размеры зазоров между створками, грунтом и опорами. На сторонах с петлями приблизительная ширина зазора составляет 5 мм. Учитывая возможное провисание ворот и их подклинивание в будущем, на стороне с замками оставляют просвет в 10 мм.

Эскиз металлического каркаса
На участке, не подверженном снегу и мусору, внизу створок учитывается просвет, но не меньше 20 мм. При учете негативного воздействия внешних факторов высота зазора предусматривается в 50–150 мм (решается индивидуально).
Подготовка инвентаря
Работа выполняется посредством следующих инструментов:
- оборудования для сварки и электродов;
- угловой шлифовальной машины (болгарки) с абразивными и отрезными кругами;
- измерительных приборов: рулетки, строительного уровня, отвеса, угольника;
- винтоверта с самонарезающими шурупами по металлу;
- бура или лопаты;

Чертеж каркаса из металла
Используемые материалы:
- Профильные трубы. Из профиля изготавливается каркас. Для сваривания рамы и перемычек используют трубы сечением 50х50, 20х40 или 20х20 мм.
- Материал для обшивки. Створчатая рама отделывается профлистом, деревом, коваными элементами. При планировании оригинального дизайна обшивка комбинируется.
На фото ниже изображена дача.
Каркас ворот своими руками. Распашные ворота своими руками: поэтапный ход изготовления
Чертеж распашных ворот
На чертеже необходимо обозначить размеры распашных ворот и расположение основных элементов конструкции. При планировании длины створок ворот надо учитывать ширину проезжей улицы и тип автотранспорта, под который монтируются ворота.
Оптимальными считаются ворота высотою около 2-х метров и длиною каждой створки по 2 метра

Створки ворот могут иметь одну-две горизонтальные перекладины – ребра жесткости, усиливающие конструкцию.

В качестве усиления могут использоваться две диагональные и одна поперечная перекладины. Такое расположение придает прочности конструкции и удерживает геометрию ворот.

Ворота своими руками дешево и красиво. Ворота для частного сектора: виды конструкций, рекомендации по сборке
На даче, в загородной усадьбе, у хозяев которой есть автомобиль, обустройство въездной части двора – необходимость. Поэтому забор всегда делается с воротами. Обычно всё ограждение устанавливают специалисты, но при желании хозяева могут сделать ворота и остальные элементы забора своими руками. Это потребует больше времени, но снизит расходы на строительство.

Виды ворот
По конструкционным особенностям, способам открывания ворота бывают несколько типов. Нюансы каждого из них разберем подробнее.
Пользователи часто ищут:
- Фото ворот для частного дома
Раздвижные (откатные)
Принцип работы заключается в передвижении створки на роликах по направляющему профилю вдоль ограждения.
Раздвижные ворота выпускаются в трех вариантах:
- Подвесные . Редко применяются на дачных участках, в частном секторе. Причина тому – ограничение высоты проезда верхним металлопрофилем, к которому монтируется створка. При открытии дверь поднимается вверх.
- Откатные . Полотно двигается по рельсе, которая проходит внизу вдоль всей стены. Для северных регионов страны с частыми морозами и снегопадами использовать подобную конструкцию не рекомендуется, поскольку рельсу придется постоянно чистить.
- Консольные . Для выдвижных типов ворот консольные считаются самыми практичными. Имеют сложную конструкцию. Полотно надежно зафиксировано к балке, которая при работе перемещает по консольному узлу створки. Огромный плюс – полотно при движении не касается земли.

Минус – нужно чистить направляющий профиль от мусора и льда, которые становятся преградой для движения створок.
Однакопозволяет контролировать работу створок дистанционно. Это существенно экономит время и повышает комфорт от эксплуатации. Особенно в плохую погоду, когда владельцу не нужно выходить из автомобиля, чтобы открыть дверь.
Требование к работе автоматике – наличие электричества.
Поворотно-откидные
Применяются при возведении гаража и других построек внутри двора.

Не подходят в качестве ворот забора, поскольку существенно ограничивают высоту заезда авто.
При открытии полотно поднимается вверх и поворотным механизмом сдвигается вплотную к потолку.
Рулонные
Такая конструкция – новинка на строительном рынке. Состоит из множества стальных полосок, собранных в одно гибкое полотно. При открытии полотно начинает сворачиваться, наматываться на специальный вал. Это позволяет автомобилю подъезжать вплотную к створкам забора или гаража.

Складные (гармошка)
Секционные ворота. Выпускаются с двумя способами открытия: вбок и вверх. Последний вариант наиболее популярен.

Распашные
Это отличный вариант для самодельных ворот. Они пользуются наибольшим спросом в частном секторе из-за простоты сборки и возможности использовать дешевые материалы.
Могут быть как частью временного, так и постоянного забора.
Состоят из двух половинок.
Для установки возле проезжей части их монтируют так, чтобы створки открывались внутрь дворовой территории. В уличных условиях – это экономия свободного пространства, беспрепятственное передвижение пешеходов по тротуару.
Ниже разберем аспекты самостоятельного строительства такого типа створок.
Изготовление каркаса
Вначале необходимо рассчитать размеры, правильно нарисовать чертеж с размещением самых мелких деталей, сделать несколько эскизов с разных ракурсов, и только после точного расчета количества требуемых материалов, общих затрат приступать к сборке каркаса.
Определяя высоту будущих ворот, важно оставить внизу от 5 до 10 см до уровня грунта зазоры. Если на участке уложена плитка, асфальт, то просветы допускается уменьшать до 5 см. При отсутствии покрытия (если там растет трава) зазоры следует оставлять больше.
Каркас можно делать из дерева или металла. Деревянные элементы из-за ограниченного срока службы чаще всего применяются в качестве декора или для временного забора.
Для постоянной и долговечной ограды лучше взять металл. Из него с помощью сварки и собирается каркас.

Схема каркаса для ворот из профильной трубы
Чтобы получить рамку, необходимо подготовить профильные трубы в таком количестве и размерах:
- 22 м профтрубы сечением 60*40 мм понадобится для основных деталей, перемычек. Элементы будут привариваться к столбам и отвечать за удержание всей конструкции.
- 15 м профтрубы сечением 40*20 мм – для усиления каркаса. К ним крепится обшивка створок.
Толщина металла должна быть не менее 1,5–2 мм. Для новичков сварочного дела лучше брать листы со стенками в 3 мм.
Важно понимать, что вес створок при покупке материала для рамки – ключевой фактор.
Для габаритных изделий рекомендуем учесть такие моменты:
- При массе створок до 150 кг хватит трубы сечением 80*80 мм, толщиной 4 мм.
- В диапазоне от 150 до 300 кг берется усиленный вариант сечением 100*100 мм, с толщиной стенок 5 мм.
Правильный порядок сборки каркаса описан выше в статье про распашные ворота из профнастила.
Ворота из профильной трубы 40х40. Как сварить ворота на забор из профильной трубы своими руками
Технология изготовления конструкции достаточно простая. Чтобы сварить ворота из профильных труб, нужно подобрать вид изделия, оптимально подходящий под конструкцию створок.
Установка запоров
Выбор труб
Профтрубу под ворота предпочтительней выбрать квадратного либо прямоугольного сечения. Трубы такой формы легче монтируются и транспортируются на участок. Наиболее прочные профильные трубы производятся из следующих видов стали:
- нержавейки;
- оцинковки;
- углеродистой.
На фото представлены металлические створки.
Кованые элементы
Цена трубных заготовок зависит от материала, из которого они изготовлены. Наиболее бюджетным вариантом являются изделия из углеродистой стали. Впрочем, при выборе труб из углеродного сплава учитывается низкая прочность и короткий эксплуатационный срок такой продукции.
Сварные холоднокатаные и оцинкованные профили – оптимальный вариант под створки, но их стоимость выше. Трубы равнозначного диаметра могут вдвое отличаться по толщине стенок.
Под створки используются трубы квадратного либо прямоугольного сечения. Сделать работу правильно и своими руками возможно при наличии сварочного аппарата и вспомогательных инструментов.
На фото изображена конструкция после установки.
После монтажа
Подготовка участка
На стадии подготовки учитываются габариты въезжающего в проем ворот автотранспорта. Определяется общая площадь, занимаемая распашными или откатными створками. Стандартные размеры ворот составляют:
- по общей ширине – 2,5–3,5 м;
- по высоте (ворот и калитки) – 1м 50 см;
- по ширине калитки – 0,75–1 м.
На фото изображены ворота на даче.
Металлический штакетник на профтрубе
С учетом калитки общая ширина участка под ворота должна составлять 3,5 или 4,5 м. Конструкция, монтируемая на ранее установленное заграждение, ставится по соответствующей изгороди высоте. Иногда допустима меньшая высота створок, но не менее 40 сантиметров.
Чертежи и расчет
Перед проведением работ на бумагу наносится чертеж. Изображают прямоугольный проем с прямоугольником меньшего размера внутри, обозначающим раму из профиля с указанием длины и ширины будущей конструкции. Также проводится расчет финансовых затрат на приобретение необходимых материалов и набора инструментов для работы.
Схема установки с размерами
Ворота из профтрубы собираются из различных элементов, отличающихся сечением. Диаметр стальной трубы под несущие створки опоры составляет 80х80 или 100х100 мм. Каркас ворот из профтрубы выполняется из изделий 50х50 мм.
Перемычки и продольные полосы сваривают из отрезков профиля 20–40 мм.
Кроме основных величин, на рисунке чертежа указывают размеры зазоров между створками, грунтом и опорами. На сторонах с петлями приблизительная ширина зазора составляет 5 мм. Учитывая возможное провисание ворот и их подклинивание в будущем, на стороне с замками оставляют просвет в 10 мм.
Эскиз металлического каркаса
На участке, не подверженном снегу и мусору, внизу створок учитывается просвет, но не меньше 20 мм. При учете негативного воздействия внешних факторов высота зазора предусматривается в 50–150 мм (решается индивидуально).
Подготовка инвентаря
Работа выполняется посредством следующих инструментов:
- оборудования для сварки и электродов;
- угловой шлифовальной машины (болгарки) с абразивными и отрезными кругами;
- измерительных приборов: рулетки, строительного уровня, отвеса, угольника;
- винтоверта с самонарезающими шурупами по металлу;
Чертеж каркаса из металла
Используемые материалы:
- Профильные трубы. Из профиля изготавливается каркас. Для сваривания рамы и перемычек используют трубы сечением 50х50, 20х40 или 20х20 мм.
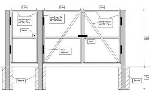
Сварка ворот из профильной трубы поэтапно. Подготовка к постройке: как рассчитать размеры будущей конструкции
При устройстве ворот из профильной трубы с калиткой или без нее необходимо предварительно составить чертеж, на котором будут отображаться размеры конструкции, основные параметры и расположения рамы, перемычек жесткости, петель, замков, точки крепления обшивки.
При составлении проекта схемы чертежа ворот прямоугольной формы с обшивкой из профнастила или деревянного щита можно использовать следующие размеры:
- стандартная высота конструкции, включая полотно ворот и заглубление опор равна 3000 мм;
- опоры заглубляются на 1000 мм (необходимо создание песчано-щебеночной подушки и заливка бетоном, опоры обязательно выравниваются при помощи строительного уровня);
- общая ширина одного полотна максимально может составлять 3600 мм (это оптимальное значение, обеспечивающее прочность и устойчивость к ветровым нагрузкам);
- для изготовления прямоугольной рамы используется профильная труба с прямоугольным сечением в 50 мм, такая же труба применяется для горизонтальных и вертикальных лаг;
- для диагональных укосин используется профильная труба с сечением до 25 мм.

Если необходимо выполнить расчеты для автоматических ворот с калиткой, можно использовать такие значения:
- две створки прямоугольной формы с общей шириной 4000 мм и высотой 2000 мм (без учета заглубления опор в грунт);
- для изготовления рамы будет использоваться труба с сечением примерно 40-20 мм;
- ширина калитки оптимально должна составлять 900 мм;
- опоры (для распашных ворот) будут крепиться к столбам с диаметром в 76 мм и высотой в 3000 мм (столбы должны заглубляться в грунт не меньше, чем на 1000 мм).
Отдельно на чертеже указываются точки крепежа петель, замков, автоматической системы открывания/закрывания.
Какую профильную трубу использовать для ворот. Выбираем профильную трубу
Только при наличии качественного материала можно изготовить ворота, геометрическая форма которых не изменится в течение длительного промежутка времени.
Если на поверхности материала имеется глубокая коррозия, то от использование такого профиля следует отказаться. Поэтому, если нужно использовать материал, который остался от выполнения других видов строительных работ, его следует тщательно осмотреть перед использованием.
Самым правильным вариантом является приобретение профильной трубы на металлобазе. Для изготовления конструкции потребуется материал следующего сечения:
- Для изготовления опор — 80*80 мм.
- Для рамы — 60*40 или 40*20 мм.
- Для перемычек — 40*20 или 20*20 мм.

Толщина стенок металлической трубы не должна быть менее 2 мм.
Для выполнения сварочных и монтажных работ также понадобятся:
Когда все материалы и инструменты будут приготовлены можно приступать к непосредственному изготовлению сварной конструкции.
Процесс изготовления ворот из профильной трубы
Прежде чем приступить к практической части, составляются подробные чертежи и эскизы данного изделия. На бумаге следует обязательно указать длину и высоту сооружения, а также количество перемычек между горизонтальными плоскостями.
Если изготавливается распашная конструкция, то необходимо сварить две одинаковые по размеру створки.

При конструировании более сложной, откатной системы, ворота выполняются в виде одного длинного полотна прямоугольной формы.

Вне зависимости от типа конструкции, ширина не должна быть менее 3 метров, а высота — 1,6 м.