Изготовление ворот из профильной трубы своими руками. Как изготовить своими руками ворота из профильной трубы?
- Изготовление ворот из профильной трубы своими руками. Как изготовить своими руками ворота из профильной трубы?
- Ворота из профильной трубы 40х40. Как сварить ворота на забор из профильной трубы своими руками
- Какую профильную трубу использовать для ворот. Выбираем профильную трубу
- Ворота из профтрубы своими руками. Как сделать ворота из профильной трубы
- Красивые ворота из профильной трубы. Преимущества и недостатки профильной трубы для ворот
- Ворота из профильной трубы и профнастила. Основные достоинства
Изготовление ворот из профильной трубы своими руками. Как изготовить своими руками ворота из профильной трубы?
Изготовление добротных ворот из металлической профильной трубы своими руками – это длительный и трудоемкий процесс, который не каждому по силам. Но, если все же приложить к этому терпение и старание, то в конечном итоге можно получить красивую ограждающую конструкцию с оригинальными элементами, которая создаст приятное первое впечатление о владельце частного строения.
Профильная труба как материал для ворот




Наиболее распространенным материалом для создания ворот своими руками считается профильная труба. Это неудивительно, ведь ее применяют для этих целей благодаря некоторым весомым преимуществам по сравнению со схожими аналогами:
- достаточно низкая стоимость;
- высокая прочность;
- легкий вес;
- удобство в обработке;
- эстетичный внешний вид;
- долговечность при эксплуатации.
Профильные трубы при использовании в качестве материала для ворот, помимо положительных качеств, имеют и недостатки, такие как склонность к коррозии в условиях повышенной влажности, а также неудобство при нанесении грунтовки и краски на поверхность. Однако, данные отрицательные стороны совсем не существенны по сравнению с преимуществами.
Как правильно выбрать?

Чтобы ворота из профильной трубы, сделанные своими руками, получились не только прочными, но и внешне привлекательными, необходимо подобрать для их изготовления качественный материал. Лучше всего для таких целей подойдут заготовки прямоугольной и квадратной формы, выполненные из углеродистого металла либо нержавеющей стали.
Бесшовные трубы используются для больших нагрузок, поэтому их чаще всего применяют для сварки каркасов, опор и рам ворот. Таким образом, выбирая профильные заготовки, необходимо учитывать сечение в зависимости от их предназначения:
- для опор – 100х100 мм;
- для рамы и каркаса – 40х40 мм или 50х50 мм;
- для перемычек и решетки – 40х20 мм.
Некоторые используют для возведения конструкции обрезки, оставшиеся после других сварочных работ, что делать крайне нежелательно, так как ворота будут тяжелыми и слишком громоздкими.
Для справки! Изделия из нержавеющей стали плохо выдерживают большие нагрузки, поэтому их лучше использовать в качестве отделки для ворот или калитки. К тому же трубы из этого материала будут стоить несколько дороже, чем те, которые выполняются из оцинковки или углеродистого металла.
Процесс выполнения работ





Перед тем как начать сооружение ворот своими руками из профильной трубы, необходимо определиться с их дизайном. Так, конструкция может выполняться по одному из следующих типов:
- ажурные;
- кованые;
- решетчатые;
- обшитые деревом, сайдингом или профлистом.
Если новичок решил самостоятельно сварить ворота, специалисты советуют остановить свой выбор на распашных. Их достаточно просто сделать, воспользовавшись заранее подготовленным проектом, материалом и специальным оборудованием.
Подготовка чертежей


Проект необходим для грамотного расчета объема материала и длины заготовок. При этом следует учитывать, что размер конструкции должен быть приемлем для частого использования автомобиля.
Таким образом, проем – не менее 3 м, а высота – более 1,6 м. В случае, если предполагается в конструкции калитка, то ее ширина должна составлять не менее 1 м, такое расстояние будет достаточным для входа-выхода человека с любой комплекцией.
В том случае, если новые ворота необходимо поставить на ранее возведенный забор, подготовить их эскиз все же следует. Делается это для того, чтобы тщательно продумать все детали будущей конструкции и выбрать для нее лучший вариант дизайна, который будет гармонично вписываться в общий вид приусадебного участка.
Ворота из профильной трубы 40х40. Как сварить ворота на забор из профильной трубы своими руками
Технология изготовления конструкции достаточно простая. Чтобы сварить ворота из профильных труб, нужно подобрать вид изделия, оптимально подходящий под конструкцию створок.
Установка запоров
Выбор труб
Профтрубу под ворота предпочтительней выбрать квадратного либо прямоугольного сечения. Трубы такой формы легче монтируются и транспортируются на участок. Наиболее прочные профильные трубы производятся из следующих видов стали:
- нержавейки;
- оцинковки;
- углеродистой.
На фото представлены металлические створки.
Кованые элементы
Цена трубных заготовок зависит от материала, из которого они изготовлены. Наиболее бюджетным вариантом являются изделия из углеродистой стали. Впрочем, при выборе труб из углеродного сплава учитывается низкая прочность и короткий эксплуатационный срок такой продукции.
Сварные холоднокатаные и оцинкованные профили – оптимальный вариант под створки, но их стоимость выше. Трубы равнозначного диаметра могут вдвое отличаться по толщине стенок.
Под створки используются трубы квадратного либо прямоугольного сечения. Сделать работу правильно и своими руками возможно при наличии сварочного аппарата и вспомогательных инструментов.
На фото изображена конструкция после установки.
После монтажа
Подготовка участка
На стадии подготовки учитываются габариты въезжающего в проем ворот автотранспорта. Определяется общая площадь, занимаемая распашными или откатными створками. Стандартные размеры ворот составляют:
- по общей ширине – 2,5–3,5 м;
- по высоте (ворот и калитки) – 1м 50 см;
- по ширине калитки – 0,75–1 м.
На фото изображены ворота на даче.
Металлический штакетник на профтрубе
С учетом калитки общая ширина участка под ворота должна составлять 3,5 или 4,5 м. Конструкция, монтируемая на ранее установленное заграждение, ставится по соответствующей изгороди высоте. Иногда допустима меньшая высота створок, но не менее 40 сантиметров.
Чертежи и расчет
Перед проведением работ на бумагу наносится чертеж. Изображают прямоугольный проем с прямоугольником меньшего размера внутри, обозначающим раму из профиля с указанием длины и ширины будущей конструкции. Также проводится расчет финансовых затрат на приобретение необходимых материалов и набора инструментов для работы.
Схема установки с размерами
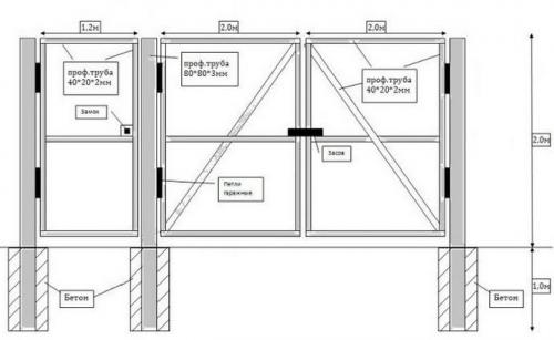
Ворота из профтрубы собираются из различных элементов, отличающихся сечением. Диаметр стальной трубы под несущие створки опоры составляет 80х80 или 100х100 мм. Каркас ворот из профтрубы выполняется из изделий 50х50 мм.
Перемычки и продольные полосы сваривают из отрезков профиля 20–40 мм.
Кроме основных величин, на рисунке чертежа указывают размеры зазоров между створками, грунтом и опорами. На сторонах с петлями приблизительная ширина зазора составляет 5 мм. Учитывая возможное провисание ворот и их подклинивание в будущем, на стороне с замками оставляют просвет в 10 мм.
Эскиз металлического каркаса
На участке, не подверженном снегу и мусору, внизу створок учитывается просвет, но не меньше 20 мм. При учете негативного воздействия внешних факторов высота зазора предусматривается в 50–150 мм (решается индивидуально).
Подготовка инвентаря
Работа выполняется посредством следующих инструментов:
- оборудования для сварки и электродов;
- угловой шлифовальной машины (болгарки) с абразивными и отрезными кругами;
- измерительных приборов: рулетки, строительного уровня, отвеса, угольника;
- винтоверта с самонарезающими шурупами по металлу;
Чертеж каркаса из металла
Используемые материалы:
- Профильные трубы. Из профиля изготавливается каркас. Для сваривания рамы и перемычек используют трубы сечением 50х50, 20х40 или 20х20 мм.
Какую профильную трубу использовать для ворот. Выбираем профильную трубу
Только при наличии качественного материала можно изготовить ворота, геометрическая форма которых не изменится в течение длительного промежутка времени.
Если на поверхности материала имеется глубокая коррозия, то от использование такого профиля следует отказаться. Поэтому, если нужно использовать материал, который остался от выполнения других видов строительных работ, его следует тщательно осмотреть перед использованием.
Самым правильным вариантом является приобретение профильной трубы на металлобазе. Для изготовления конструкции потребуется материал следующего сечения:
- Для изготовления опор — 80*80 мм.
- Для рамы — 60*40 или 40*20 мм.
- Для перемычек — 40*20 или 20*20 мм.

Толщина стенок металлической трубы не должна быть менее 2 мм.
Для выполнения сварочных и монтажных работ также понадобятся:
Когда все материалы и инструменты будут приготовлены можно приступать к непосредственному изготовлению сварной конструкции.
Процесс изготовления ворот из профильной трубы
Прежде чем приступить к практической части, составляются подробные чертежи и эскизы данного изделия. На бумаге следует обязательно указать длину и высоту сооружения, а также количество перемычек между горизонтальными плоскостями.
Если изготавливается распашная конструкция, то необходимо сварить две одинаковые по размеру створки.

При конструировании более сложной, откатной системы, ворота выполняются в виде одного длинного полотна прямоугольной формы.

Вне зависимости от типа конструкции, ширина не должна быть менее 3 метров, а высота — 1,6 м.
Ворота из профтрубы своими руками. Как сделать ворота из профильной трубы
Профтруба – легкое и одновременно прочное удобное сырье, не требующее особого обустройства фундамента, достаточно забетонировать опоры.
Такой материал обеспечивает простоту сборки, не доставляет особых хлопот и сварка ворот. Работа будет несложной и пройдет в несколько этапов.
Этапы работы
- Замеры – основным критерием при выборе габаритов служит имеющийся автомобиль, он должен свободно проезжать сквозь проем. Оптимальной высотой считается примерно 1,5 метра, а общую длину берут около 3 м. Но итоговое решение зависит от индивидуальных предпочтений хозяев.
- Чертеж ворот. Ворота бывают двух типов – распашные и откатные, в зависимости от выбора и на основе замеров рисуется эскиз.
- Закупка и подготовка материалов – проводится на основе чертежа и выбранного типа ворот.
- Сборка и установка – включает в себя основные подготовительные работы (бетонирование и изготовление опор), трудоемкий процесс сварки каркаса из профиля, его обшивку, финальную установку и отделочную работу – грунтовку и покраску.

- труба для изготовления каркаса (50х50 или 60х60 мм);
- профтруба для опоры (100х100 мм);
- труба 40х20 для ребер жесткости – перемычек, обеспечивающих дополнительную устойчивость распашных ворот из профтрубы;
- профлисты, которыми будет обшит каркас ворот;
- саморезы для металла;
- замок;
- петли;
- ролики в случае изготовления ворот из профильной трубы откатного типа;
- краска, грунтовка, подходящие для металла;
- сварочный аппарат;
- углошлифовальная машина («обезьяна»);
- дрель;
- иные вспомогательные материалы – рулетка, молоток, уголок, уровень, электроды для сварки и пр.
Красивые ворота из профильной трубы. Преимущества и недостатки профильной трубы для ворот
Ворота из профильных труб пользуются огромной популярностью благодаря отличным эксплуатационным характеристикам данного материала. К основным преимуществам профильной трубы относится:
- Долговечность. Материал с легкостью выдерживает даже значительную нагрузку без потери внешних и эксплуатационных качеств. Такие ворота способны прослужить несколько десятков лет, не требуя особого ухода.
- Доступная стоимость. Использование профтруб для изготовления ворот – один из наиболее доступных вариантов.
- Прочность. При покупке или изготовления изделия из профтрубы высокой прочности конструкция получается негнущейся.
- Малый вес. Благодаря небольшому весу материалов, постройка ворот не требует использования серьезного фундамента. К тому же транспортировка и установка ворот также не вызовет проблем.
- Высокий показатель эстетичности. Ворота, сделанные из профильной трубы, выглядят современно и красиво.
- Удобство изготовления. В прямоугольную трубу удобно вкручивать саморезы. С самостоятельным изготовлением ворот может справиться любой человек, который умеет пользоваться сварочным оборудованием и болгаркой.
Несмотря на явные преимущества изготовления ворот из профильной трубы, данный материал обладает и определенными недостатками. К ним относится:
- Подверженность коррозии. Под воздействием высокой влажности и атмосферных осадков профильная труба подвержена коррозии.
- Риск появления перекосов. Если ворота изготовлены при помощи резьбовых соединений, во время интенсивной эксплуатации могут появиться перекосы внутри конструкции.
- Сложность окрашивания. Описываемую или круглую трубу достаточно сложно красить или покрывать эмалью.
Однако, если приобрести или самостоятельно сделать ворота из профнастила, используя при этом качественные материалы и соблюсти все нюансы, такие конструкции прослужат долго без потери внешних качеств и эксплуатационных характеристик.


Ворота из профильной трубы и профнастила. Основные достоинства
Профлист – это один из самых прочных стройматериалов, пользующийся огромной популярностью. За счет надежного покрытия материал устойчив к разным негативным погодным явлениям. Огромный ассортимент разных видов металлопрофиля позволяет хозяевам дач и частных домов возводить различные самоделки на свое усмотрение. Во время выбора профиля немаловажное значение имеет вес.
Так, ворота из профнастила получаются довольно легкими, а также удобными в эксплуатации.
На даче
Достоинства материала:
- Стойкость к коррозийным процессам. Это достигается благодаря применению новых современных защитных покрытий. Время эксплуатации ограждения из профильного листа может составлять больше 50 лет.
- Повышенная прочность листового металла. За счет этого въездные ворота могут выдержать высокие механические нагрузки, сильные порывы ветра.
- При наличии требуемых материалов изготовление конструкции ворот из профлиста занимает 2–3 дня.
- Небольшая толщина профнастила делает этот материал довольно легким, поэтому можно произвести самостоятельную установку.
- Простота ухода. За профлистом не требуется специальный уход.
- Доступная цена материала для изготовления воротных систем. Изготовленные калитка и ворота из профнастила своими руками обойдутся значительно дешевле, чем изделия из ковки.
- Экономия на отделке. Профлист не подвергается воздействию ультрафиолета, потому не теряет со временем цвет.
- Возможно строительство ограждения любой высоты, поскольку максимальный размер профильного листа может составлять до 12 м.
- Можно выбрать любую фактуру, рисунок, цветовую гамму с учетом разработанного проекта.