Варим ворота своими руками из профильной трубы. Подготовка к постройке: как рассчитать размеры будущей конструкции
- Варим ворота своими руками из профильной трубы. Подготовка к постройке: как рассчитать размеры будущей конструкции
- Ворота из круглой трубы своими руками. Нюансы установки на опоры разного сечения
- Какую профильную трубу использовать для ворот. Выбираем профильную трубу
- Красивые ворота из профильной трубы. Преимущества и недостатки профильной трубы для ворот
- Самый простой способ сварить ворота. Разновидности
Варим ворота своими руками из профильной трубы. Подготовка к постройке: как рассчитать размеры будущей конструкции
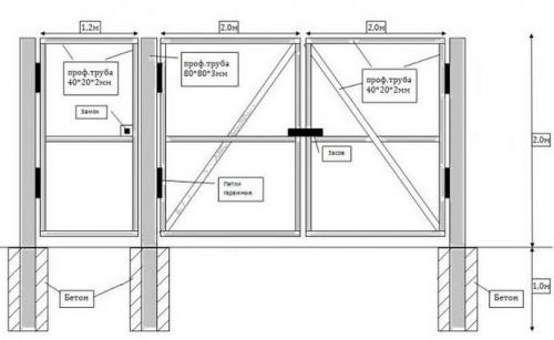
При устройстве ворот из профильной трубы с калиткой или без нее необходимо предварительно составить чертеж, на котором будут отображаться размеры конструкции, основные параметры и расположения рамы, перемычек жесткости, петель, замков, точки крепления обшивки.
При составлении проекта схемы чертежа ворот прямоугольной формы с обшивкой из профнастила или деревянного щита можно использовать следующие размеры:
- стандартная высота конструкции, включая полотно ворот и заглубление опор равна 3000 мм;
- опоры заглубляются на 1000 мм (необходимо создание песчано-щебеночной подушки и заливка бетоном, опоры обязательно выравниваются при помощи строительного уровня);
- общая ширина одного полотна максимально может составлять 3600 мм (это оптимальное значение, обеспечивающее прочность и устойчивость к ветровым нагрузкам);
- для изготовления прямоугольной рамы используется профильная труба с прямоугольным сечением в 50 мм, такая же труба применяется для горизонтальных и вертикальных лаг;
- для диагональных укосин используется профильная труба с сечением до 25 мм.

Если необходимо выполнить расчеты для автоматических ворот с калиткой, можно использовать такие значения:
- две створки прямоугольной формы с общей шириной 4000 мм и высотой 2000 мм (без учета заглубления опор в грунт);
- для изготовления рамы будет использоваться труба с сечением примерно 40-20 мм;
- ширина калитки оптимально должна составлять 900 мм;
- опоры (для распашных ворот) будут крепиться к столбам с диаметром в 76 мм и высотой в 3000 мм (столбы должны заглубляться в грунт не меньше, чем на 1000 мм).
Отдельно на чертеже указываются точки крепежа петель, замков, автоматической системы открывания/закрывания.
Ворота из круглой трубы своими руками. Нюансы установки на опоры разного сечения
Опорные столбы, на которые навешиваются створки, могут быть круглого, квадратного или, реже, прямоугольного сечения. Есть разница между тем, как правильно приварить петли на ворота к круглым столбам или опорам из профильных труб.
- Если профильная труба имеет ровные грани без изгибов и искривлений, то справиться с задачей, как правильно приварить петли на ворота к квадратным столбам, будет легко. Они устанавливаются на наружную плоскость опоры.
- В случае с опорой круглого сечения нужно сначала решить, в какую сторону будут открываться створки. Затем находят самую выступающую линию (середину столба относительно проема) и отступают от неё на несколько миллиметров наружу – в сторону распахивания. Достаточно 5-6 мм, чтобы калитка или створка ворот плавно и без рывков ходила вокруг оси навеса. Так как приварить петли на ворота к круглым столбам сложнее, чем к квадратным, здесь нужно быть особенно аккуратным и внимательным, выдерживая одинаковый размер отступа для всех петель.
Установочные и сварочные работы
Опытные сварщики рекомендуют сначала приварить навесы к створкам, уложив их на ровную горизонтальную поверхность. К ним приваривают половинку в виде полого цилиндра, а к опорам впоследствии – ответную часть со штырем (штырем вверх). От верхнего и нижнего края отступают примерно на 15 см.
Какую профильную трубу использовать для ворот. Выбираем профильную трубу
Только при наличии качественного материала можно изготовить ворота, геометрическая форма которых не изменится в течение длительного промежутка времени.
Если на поверхности материала имеется глубокая коррозия, то от использование такого профиля следует отказаться. Поэтому, если нужно использовать материал, который остался от выполнения других видов строительных работ, его следует тщательно осмотреть перед использованием.
Самым правильным вариантом является приобретение профильной трубы на металлобазе. Для изготовления конструкции потребуется материал следующего сечения:
- Для изготовления опор — 80*80 мм.
- Для рамы — 60*40 или 40*20 мм.
- Для перемычек — 40*20 или 20*20 мм.

Толщина стенок металлической трубы не должна быть менее 2 мм.
Для выполнения сварочных и монтажных работ также понадобятся:
Когда все материалы и инструменты будут приготовлены можно приступать к непосредственному изготовлению сварной конструкции.
Процесс изготовления ворот из профильной трубы
Прежде чем приступить к практической части, составляются подробные чертежи и эскизы данного изделия. На бумаге следует обязательно указать длину и высоту сооружения, а также количество перемычек между горизонтальными плоскостями.
Если изготавливается распашная конструкция, то необходимо сварить две одинаковые по размеру створки.

При конструировании более сложной, откатной системы, ворота выполняются в виде одного длинного полотна прямоугольной формы.

Вне зависимости от типа конструкции, ширина не должна быть менее 3 метров, а высота — 1,6 м.
Красивые ворота из профильной трубы. Преимущества и недостатки профильной трубы для ворот
Ворота из профильных труб пользуются огромной популярностью благодаря отличным эксплуатационным характеристикам данного материала. К основным преимуществам профильной трубы относится:
- Долговечность. Материал с легкостью выдерживает даже значительную нагрузку без потери внешних и эксплуатационных качеств. Такие ворота способны прослужить несколько десятков лет, не требуя особого ухода.
- Доступная стоимость. Использование профтруб для изготовления ворот – один из наиболее доступных вариантов.
- Прочность. При покупке или изготовления изделия из профтрубы высокой прочности конструкция получается негнущейся.
- Малый вес. Благодаря небольшому весу материалов, постройка ворот не требует использования серьезного фундамента. К тому же транспортировка и установка ворот также не вызовет проблем.
- Высокий показатель эстетичности. Ворота, сделанные из профильной трубы, выглядят современно и красиво.
- Удобство изготовления. В прямоугольную трубу удобно вкручивать саморезы. С самостоятельным изготовлением ворот может справиться любой человек, который умеет пользоваться сварочным оборудованием и болгаркой.
Несмотря на явные преимущества изготовления ворот из профильной трубы, данный материал обладает и определенными недостатками. К ним относится:
- Подверженность коррозии. Под воздействием высокой влажности и атмосферных осадков профильная труба подвержена коррозии.
- Риск появления перекосов. Если ворота изготовлены при помощи резьбовых соединений, во время интенсивной эксплуатации могут появиться перекосы внутри конструкции.
- Сложность окрашивания. Описываемую или круглую трубу достаточно сложно красить или покрывать эмалью.
Однако, если приобрести или самостоятельно сделать ворота из профнастила, используя при этом качественные материалы и соблюсти все нюансы, такие конструкции прослужат долго без потери внешних качеств и эксплуатационных характеристик.


Самый простой способ сварить ворота. Разновидности
Существует множество конфигураций распашных ворот. Необходимая конфигурация подбирается исходя из свободного места на участке или за его пределами. Ведь при открывании створки занимают немало места, и эту особенность нужно предусмотреть.

Всего разделяют три основных разновидности:
- Одностворчатые распашные ворота. Вариант редко используемый, но все-таки встречающийся на участках с большим количеством свободного места. В таком варианте ворота состоят из одной створки, открывающейся в правую или левую сторону, в зависимости от ваших пожеланий. Такая конструкция проще в сборке, но сложнее в монтаже и эксплуатации. Поскольку створка держится на петлях только с одной стороны, для таких ворот требуется усиленная опора и усиленные петли. Нередко одностворчатые ворота провисают и деформируются, если длина створки сильно превышает ее высоту.
- Двустворчатые распашные ворота. Самый популярны вариант ворот среди всех разновидностей в принципе. Экономично, надежно, занимает мало места, нет проблем с монтажом и ремонтом. Такие ворота состоят из двух створок, открывающихся в разные стороны.
- Одностворчатые/двустворчатые ворота с врезной калиткой в створке. Если вариант сварить ворота и калитку рядом кажется вам недостаточно удобным, можно прорезать отверстие в самой створке и установить калитку туда. Выбор спорный, но некоторым умельцам он нравится. Учтите, что в таком случае порог будет достаточно высоким, что не всегда удобно для детей и пожилых.