Шторы противопожарные с пределом огнестойкости EI60. Устройство и как работает
- Шторы противопожарные с пределом огнестойкости EI60. Устройство и как работает
- Противопожарные шторы на окна. Противопожарные шторы: назначение и характеристики
- Противопожарные шторы -- это. Противопожарные экраны –, что это
- Горизонтальные противопожарные шторы. Технические особенности
- Противопожарная штора ei60. Противопожарная штора EI 60
Шторы противопожарные с пределом огнестойкости EI60. Устройство и как работает
С самого начала необходимо разграничить следующие изделия – противопожарные шторы и противодымные занавесы/экраны.
Устройство противопожарной шторы и принцип работы
Первые предназначены для заполнения проемов, закрывая собой путь огню, интенсивному тепловому потоку, частично или полностью продуктам горения в смежные помещения; вторые – для полного блокирования или частичного ограничения распространения дымового потока.
Следующее различие: противопожарные шторы полностью перекрывают строительный, технологический/транспортный проем в преграде, обеспечивая требуемый нормами предел огнестойкости. Противодымные занавесы/экраны, называемые также иногда шторами, могут опускаться как полностью; так и на высоту дымового слоя, образующегося в защищаемом помещении, определяемую расчетом.
Кроме того, противопожарный/противодымный занавес/экран в отличие от шторы может не иметь боковых направляющих, в корпусе которых движется огнестойкое полотно. Обеспечение защиты проема осуществляется за счет расчетного превышения геометрических размеров полотна по вертикали и горизонтали по отношению к площади проема.
Пример: п. 5.4.5 СП 4.13130.2013 прямо указывает, что противопожарный занавес, отделяющий портал сцены театра с числом мест более 800, должен при опускании перекрыть строительный проем с боков – не меньше чем на 0,4 м, сверху – 0,2 м, обеспечивая при этом газонепроницаемость.
Конструкция противопожарной шторы состоит из основных элементов/деталей:
- Боковых П-образных направляющих, выполненных из оцинкованной или нержавеющей стали, в которых движется вниз/вверх полотно.
- Полотна толщиной от 3 до 7 мм, намотанного на вал. Как правило, это композитный материал из термостойких тканей, например, стекловолокна, армированный металлической нитью. Для придания дополнительных свойств, увеличения предела стойкости к огню, воздействию высокой температуры на полотно наносят теплоотражающее и/или термически активное/быстро вспучивающееся покрытие. Термостойкость полотна различных типов достигает значительных величин – до 1100℃.
- Одного или более валов, с туго накрученным на него полотном, с приводом от электродвигателя, опускающего его. Рулонные шторы движутся со средней скоростью 0, 1 м/с.
- Электромеханическая часть заключена в защитный кожух/корпус из стали, находящийся вверху всей конструкции. В целом внешне противопожарная штора сильно схожа с защитными жалюзи, закрывающими на ночь окна, двери магазинов и офисов, расположенных на первых этажах зданий. Только вместо наборных металлических полос – армированное огнестойкое полотно.
- Нижней шины, заполняемой утяжелителями, обеспечивающими ее вес не меньше, чем 4 кг/п. м. Это обеспечивает необходимое натяжение полотна во всех фиксируемых положениях, а также во время подъема/спуска.
- Фиксаторов полотна в поднятом/рабочем состоянии.
- Блока управления, подключенного к системе АПС здания, для обеспечения автоматического запуска при поступлении сигнала тревоги.
Противопожарные шторы на окна. Противопожарные шторы: назначение и характеристики

Государство предъявляет список требований к оборудованию опасных мест. Предписания о соблюдении правил безопасности установлены в отношении автомобильных стоянок, зданий общественного назначения, офисных помещений, промышленных и производственных точек.
Все перечисленные объекты оборудуются противопожарными средствами. В том числе, противопожарные шторы, которые замедляют распространение дыма и пламени.
Противопожарные шторы включают в себя полотно с армирующей стальной сеткой. Укрепленная ткань имеет внешний слой, пропитанный огнезащитными веществами. Огнемататериал — внутренняя прослойка шторы. Снаружи экран покрывается полиэфирными красками любым цветом по шкале RAL.
С помощью противопожарных штор можно сократить вероятность наступления человеческих жертв и потери дорогостоящего имущества после возникновения пожара.
Защитные конструкции располагают в оконных и дверных проемах. Они опускаются после уведомления пожарной сигнализации. Полотно выпускается из негорючего материала, выдерживающего действие предельных температур.
Предназначение противопожарных штор
Полотно производят из кремнеземной нити. В составе 95% диоксида кремния. Материал выдерживает нагревание до 1200 ⁰С. После взаимодействия с огнем отсутствуют токсичные испарения в атмосферу. В числе конструктивных элементов завесы — короб для электропривода, отсекающая и направляющие шины, а также непосредственно полотно с армированной нитью.
Противопожарные шторы или завесы — относительно новое решение в защите от возгораний. Они используются в просторных помещениях в качестве преграды для пламени и высоких температур. Позволяют защитить масштабные объекты, включая офисы, складские и торговые площади.
В составе конструкции подъемный механизм (электропривод) и автономный источник питания. Завесы также могут работать в ручном режиме при полном отсутствии питания.
Степень защиты штор
Производители выпускают противопожарные шторы разной степени устойчивости. Маркировка EI-15 и более сообщает о времени сохранения защитных характеристик. Наиболее популярной считается противопожарная штора EI 60 , которая способна удерживать открытое пламя в течение 1 часа.
Цифра, указываемая после букв EI означает кол-во минут, в течение которых шторы сохраняют свои защитные свойства.
По признаку назначения защитные преграды классифицируют на:
- Огнезащитные EI-60, EI-120 и EI-180 . Конструкции предназначены для сопротивления открытому пламени в течение заданного времени. Они полностью перекрывают комнату по высоте.
- Дымозащитные шторы E-120 . Необходимы для блокировки ядовитых продуктов горения. Устанавливаются в верхней части здания. Их монтируют рядом с системами дымоудаления. Не закрывают помещение по высоте до конца.
Характеристики штор
Производя защитное полотно для штор, мы обращаем внимание на соответствие характеристик:
- Прочность и легкость материала;
- Эластичная и гибкая структура;
- Стабильность под влиянием механического действия, атмосферных явлений;
- Низкая теплопроводность;
- Химическая стойкость;
- Экологичность, отсутствие вредных выделений при взаимодействии с возгоранием;
- Надежная система автоматического опускания.
Типы штор
В зависимости от предназначения шторы классифицируют на:
- Противодымные . Не дают распространяться токсичным продуктам горения;
- Огнезащитные . Служат для сокращения площади возгорания, профилактики движения огня в соседние квартиры или помещения.
Управление шторами
- Ручное управление;
- Автоматическое управление. Автоматически опускается при сигнале противопожарной системы. Если произошло отключение электрической энергии в связи с чрезвычайной ситуацией, система может активироваться через источник автономного питания. Именно поэтому полезно устанавливать на особо опасных объектах вспомогательные аккумуляторы.
Нормы и правила
При изготовлении систем для преграждения пути огню и дыму производители придерживаются рекомендаций СНиП и ГОСТ. В них приводятся описания и критерии оценки противопожарных преград.
В положениях ГОСТ Р 53307-2009 указана техника проверки на огнестойкость.
ГОСТ Р 53303-2009 регламентирует анализ изделий на дымогазонепроницаемость.
Методика исследования на огнестойкость приведена в ГОСТ Р 53305-2009.
Формы и размеры
Универсальные противопожарные шторы изготавливаются по индивидуальным и стандартным параметрам. Ширина и высота полотна определяется с учетом площади помещения.
Рекомендуется придерживаться модельного принципа и располагать отдельные завесы последовательно. Это поможет огородить объекты разной высоты и длины.
Стандартная толщина полотна достигает 3-7 мм. Оно укреплено стальной жаропрочной нитью. Внедрены системы орошения, позволяющие повысить предел огнестойкости.
Противопожарные шторы -- это. Противопожарные экраны –, что это
Само название характеризует эти изделия. Их главная особенность в том, что они не боятся огня. Противопожарные шторы – это каркасная конструкция с полотном, сделанным из огнеустойчивого материала. Несмотря на прямое название, они используются не только в качестве штор на окна. Благодаря огнеупорной ткани, шторами можно разграничивать пространство помещения, преграды будут огнеупорными. Если возникнет пожат, то шторы локализируют возгорание, а сам огонь и дым не будет распространяться по всему периметру. На фото ниже видно, как именно выглядят такие шторы.

Сфера использования изделий огромная. Такие защитные экраны позволяют удерживать дым и огонь в отдельной комнате. Благодаря шторам можно правильно организовать процесс экстренной эвакуации людей, снижая ущерб. Шторы сделаны из современного инновационного материала, который способен выдерживать прямое воздействие пламени на протяжении 2–3 часов. Это полотно намотано на вал и является незаметным в нерабочем состоянии. Принцип работы зависит от вида штор, о которых мы поговорим дальше.
А теперь рассмотрим, где используются данные противопожарные шторы:
Замечание! Огнеупорные экраны с легкостью переносят непосредственное влияние пламени на протяжении нескольких часов.
Даже когда температура повышается до 1400 градусов по Цельсию, они не теряют своих свойств и характеристик. Как показывают исследования, такую высокую температуру полотно способно выдержать от получаса до двух часов.

По внешнему виду шторы в закрытом состоянии напоминают рулонные конструкции. Это значит, что собой они не испортят внешний вид помещения, а наоборот, даже украсят его. Что касается стандартных размеров полотен, то их попросту нет. Ведь эффективность этого огнеупорного экрана напрямую зависит от степени перекрытия пространства в большом зале, коридоре, холле или другом помещении. Поэтому изготовление противопожарных штор выполняется индивидуально. Достаточно иметь точные размеры высоты и ширины проема, который будет защищен огнеупорным экраном.
Горизонтальные противопожарные шторы. Технические особенности
Пожаростойкие шторы выполнены в виде короба, внутри которого находится вал с намотанным на него полотном. Полотно изготавливается из кремнеземной ткани или стекловолокна с армированием. Ткань способна выдержать температуру до 1100 градусов в течение определенного времени. Конкретные противопожарные свойства зависят от типа шторы. В каталоге нашей компании представлены варианты со степенью защиты EI15, EI30, EI45, EI60, EI90, EI120 и EI180. Цифровые показатели определяют время противостояния огню и вредным продуктам горения (в минутах).По сравнению с противопожарными воротами, шторы имеют важное практическое и эстетическое преимущество — при отсутствии опасности их не видно, поскольку полотно намотаны на вал и скрыты в специальном коробе. При срабатывании пожарной тревоги штора автоматически закрывает проем (дверь, окно) — за разматывание полотна отвечает электропривод. Скорость опускания штор при срабатывании защиты — от 0,08 м/сек. Для максимальной герметизации в конструкции предусмотрены боковые направляющие.

Информация для проектировщиков:
- Толщина ткани шторы — не менее 0,7 мм;
- Вес — зависит от плотности выбранной ткани;
- Площадь под монтаж — 250 мм сверху и 100 мм по бокам;
- Рабочее напряжение — 220/380 В;
- Гарантия на 10 тысяч срабатываний блока управления.
Варианты установки:
- Горизонтальный монтаж;
- Установка на проем;
- Установка непосредственно в проем;
- Скрытый монтаж.
Противопожарная штора ei60. Противопожарная штора EI 60

Артикул:
art5Цена:
от 6720 руб./кв.м.
Предел огнестойкости:
EI 60
Модель:
FireShield-EI60
Гарантия до 10 лет*
Доставка по Москве и России
Установка и монтаж
Категория:
Противопожарные шторы
Автоматические противопожарные шторы
Противопожарные шторы на окна
Противопожарные шторы с лазейкой
Рулонные противопожарные шторы
Противопожарные экраны
Назначение
Автоматические противопожарные шторы типа FireShield-EI60 (без орошения) предназначены для предотвращения распространения пожара из одной части здания, сооружения, строения в другую или между зданиями, сооружениями, строениями.
В соответствии с Федеральным законом №123-ФЗ огнезащитные шторы являются как заполнением противопожарных преград, так и непосредственно противопожарными преградами.
Конструктив
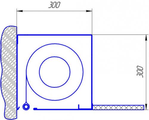
Основными конструктивными элементами противопожарных штор являются:
- Короб квадратного сечения (300х300).
- Намоточный вал.
- Полотно.
- Направляющие боковые шины.
- Электродвигатель, 220В.
- Блок управления с Н/З «сухим контактом».
Короб

Короб противопожарных штор состоит из гнутых, из оцинкованной листовой стали толщиной 1,5мм, панелей. Для построения длинных коробов штор, панели состыковываются друг с другом. Оба конца короба закрыты крышками, которые герметично замыкают контур. Боковые консоли служат также для восприятия крутящего момента мотора.
Полотно

- Полотно противопожарной шторы изготовлено из стекловолокна и армирована тонкой нержавеющей проволокой, наматывается на стальной вал, размещенный в корпусе из листовой стали.
- Внутренний слой полотна состоит из термоактивных композиционных материалов, которые при 160-180 градусах Цельсия расширяются до 50 мм и обеспечивают надежную защиту от теплового потока.
- На нижней кромке полотна закреплена отсекающая шина, которая держит полотно в развернутом состоянии, в верхнем положении утоплена в углублении корпуса.
Электродвигатели
Внутривальный трубчатый мотор, 220В.
Опускание и поднятие от 220В.

Блок управления

- Питание 220В.
