Ширина ворот для забора и гаража в частном доме. Размеры ворот и калитки для частного дома
- Ширина ворот для забора и гаража в частном доме. Размеры ворот и калитки для частного дома
- Высота ворот в частном доме. Ворота
- Стандартный размер ворот во двор. Размеры ворот и калитки
- Стандартные размеры ворот и калитки для частного дома (ширина, высота) для въезда на участок для легкового и грузового транспорта: как произвести расчет габаритов для оптимальной нормы
- Ширина ворот для въезда Камаза. Размеры ворот для Камаза | Ширина ворот
- Ширина ворот футбольных. Сначала вместо перекладины использовали веревку – натягивали на любом расстоянии от земли (или вообще играли без нее)
- Ширина ворот гаража. Гаражные ворота: размеры, ГОСТ и нормативы
- Ширина калитки в частном доме. Нюансы месторасположения ворот
Ширина ворот для забора и гаража в частном доме. Размеры ворот и калитки для частного дома
Размер проема въезда легковых машин можно начинать делать в ширину от 250 см. Но необходимо учитывать, что на участок в дальнейшем также, возможно, будет заезжать грузовой транспорт либо спецтехника. К примеру, трактор, ширина которого более 250 см. Именно поэтому желательно установить ворота начиная от 330 см.
На даче
Практичность заезда
Насколько удобным и практичным будет въезд, значительно зависит от рядом находящейся дороги, а также от максимального радиуса разворота автомобиля. Если расстояние между дорогой и въездом на территорию равно радиусу разворота авто либо больше этого значения, то в данном случае машина, проезжающая перпендикулярно по центру ворот, будет заезжать с запасом с двух сторон от автомобиля до проема ворот.
Около частного дома
В случае если проем более узкий, чем радиус поворота машины, то будет необходимо проезжать под углом, срезая поворот, так появляется высокая вероятность врезаться в бордюрное ограждение либо столб.
В данной ситуации желательно сделать более широкий проезд через ворота, в пределах 3,5–5,2 м. Если все равно не обеспечивается должный проезд, то желательно переместить воротную конструкцию во двор на 1,3–1,7 м.
Это решение особенно актуально для домов и жилых зданий с узкими улочками, постоянным потоком автомобилей, когда, чтобы проехать на территорию, необходимо пересекать ось проезжей части.
Чаще всего средний радиус разворота легковых машин составляет приблизительно 5,7–6,8 м, для грузовиков и длинномерных фур – около 7–9 м, для пожарной машины – до 10 м.

Расчет размера калитки
Прежде чем установить калитку для забора из кирпича или профнастила, необходимо определить, какая будет конструкция и какого размера.
На участке
Расчет высоты калитки из профлиста:
- Стандартная высота – 190 см.
- С учетом требований калитка поднимается над уровнем земли на 10 см.
- Общая высота – 180 см.
- Сверху и снизу каркаса делается допуск для обшивки по 2 см.
- Общая высота рамы без обшивки – 1760 мм.
Схема с размерами
Какая требуется ширина калитки в заборе:
- Чаще всего ширина проема между кирпичными опорами составляет 1,1 м.
- К опорам фиксируют брусья для крепления калитки толщиной 50 мм.
- 1100 − 50 − 50 = 1000 мм.
- Учитывается зазор с двух сторон по 15–25 мм.
- Ширина рамы – 950–970 мм.
Калитка в кирпичном ограждении
Размеры калитки для инвалидов-колясочников
Как правило, стандартная по ширине коляска для инвалидов составляет 630–680 мм. Минимальный проем должен составлять 710 мм. Этого должно хватить для проезда.
Сварная калитка в заборе
Но стоит учесть, что инвалиды передвигаются, вращая колеса руками. И если коляска помещается между проемом вплотную, то можно травмировать руку. Чтобы не допустить этого, минимальная ширина калитки должна составлять 810–850 мм.
Высота ворот в частном доме. Ворота
Размеры изделий выбираются с учетом того, какой транспорт проезжает через ворота. Ширина транспортных средств отечественных изготовителей составляет приблизительно 1,5–1,6 м, а внедорожники могут достигать 2,1 м. Потому даже с учетом данного параметра необходимо сделать проем шириной не меньше 2,6 м. Также нужно не забывать, что над этой конструкцией нельзя устанавливать горизонтальную перекладину, так как, вероятно, потребуется заезд более габаритного транспорта.
Высоту конструкции чаще всего устанавливают такой же, как калитку, либо делают в уровень с закрепленным опорным столбом.
Ворота и калитка из профнастила
Также, выбирая габариты въездных ворот, необходимо учитывать то, какой заезд – под прямым углом или для въезда требуется сделать определенный маневр. В последнем случае ширина проема делается немного больше в отличие от прямого заезда.
Это тем более актуально, если было решено выбрать размер проема 2,9–3,2 м или меньше.
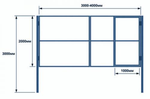
Стандарт ворот – 3,5 м. Этого проема вполне хватает, чтобы заехала легковая машина, внедорожник или микроавтобус, а во время прямого заезда сможет проехать даже КамАЗ. Если частный дом находится довольно далеко от проезжей части и необходимо себя обезопасить от непредвиденных ситуаций при пожаре, то нужно знать, что стандартный размер для въезда пожарной машины составляет 6 м.
Ворота из профлиста
Для удобства можно взять в расчет следующие параметры проема:
- грузовые автомобили, сельскохозяйственная техника – минимальный проем 4 м;
- легковые автомобили, внедорожники и микроавтобусы – не менее 3,5 м;
- только легковые машины – от 3 м.
Чтобы рассчитать габариты изделия на этапе проектирования, нужно учитывать такие моменты:
- определиться с облицовкой каркаса. Обшивку можно выполнить из профнастила, штакетника, сетки-рабицы;
- выбрать конструктивное исполнение и необходимость установки автоматической системы. Ворота можно сделать с одной либо двумя створками. При этом они могут быть откатными или распашными;
- нарисовать чертеж с указанием габаритов и конструктивного решения (ребра жесткости, петли и точки их крепления);
- произвести требуемые замеры. Размеры въезда гаражных или въездных ворот должны обеспечивать свободный въезд транспортного средства определенных габаритов. Причем нужно учитывать свободную площадь, задействованную для открытия распашных створок.
Около дома
С учетом предварительно созданного проекта определяется общее количество профильной металлической трубы и материала для облицовки.
Разрабатывая проект, необходимо учитывать такие моменты:
- стандартная ширина калитки, если она входит в конструкцию ворот, обязана быть 80–110 см;
- для беспрепятственного заезда легкового авто достаточно сделать проем 3 метра;
- для распашного типа необходимо учитывать расстояние от створок до установленных петель. Это расстояние должно не мешать свободному открытию. Дистанцию рекомендуют выдерживать около 1 см;
- стойки из бруса или профтрубы 60х60 мм необходимо установить в предварительно выкопанную лунку и залить бетонным раствором;
- высоту створок входных конструкций рекомендуют делать с учетом высоты установленного забора. Допустимое отклонение – не больше 25 см, при этом высота должна быть не более 1,6 м.
Калитка на даче
При выборе секционных (панельных) гаражных ворот нужно учитывать следующее. Ширина легковой машины составляет примерно 1,6 м. К этому параметру добавляется боковое расстояние, 30 см с каждой стороны, вследствие чего длина проема составит 1,9 м. Это минимальная предпочтительная длина проема.
Схема ворот и калитки
Далее определяют комфортную высоту секционных ворот из сэндвич-панелей: высота легковой машины – 1,6 м, внедорожника – около 2,1 м. Наименьшая высота должна быть примерно 2,3 м. В этот проем сможет заехать практически любая машина и, не нагибаясь, зайдет человек.
Можно воспользоваться готовым проектом и адаптировать его к определенным условиям, установив реальные габариты проема.
Конструкция из дерева
Заграждения для спортивных площадок регламентированы СНиП 2.07.01-89. С учетом этого высота ограждения должна быть не менее 2,5 м, ширина ворот – 3,5 м.
Стандартный размер ворот во двор. Размеры ворот и калитки
Минимальная ширина калитки — 90 см
Чтобы правильно выбрать размер ворот и калитки для своего загородного дома, учитывают:
- Габариты автомобиля, если он есть у владельца.
- Размеры грузового транспорта, который должен заезжать на участок. Чаще всего это связано с высотой проема.
- Материал – например, профлист или штакетник весят мало. Однако первый вариант ограничивает длину створки, так как глухое дверное полотно обладает высокой парусностью. Цельные створки или кованые намного прочней, но и тяжелее.
- Конструкция – для распашных створок нужно оставлять место и к тому же учитывать радиус поворота. Подъемные ограничивают высоту проема.
Размер калитки не столь жестко регламентируется. Стандартным пожеланием является возможность свободного прохода 1 человека – минимальная ширина в 90 см.
Расчет размера калитки
Габариты этого элемента в первую очередь зависят от типа: встроенная или отдельно стоящая.
Для 2 варианта сооружают отдельный проем. Ограничения:
- Минимальная ширина для свободного прохода – 80–90 см.
- Оптимальной считают ширину в 110 см. Она позволяет свободно проходить человеку любой комплекции, а главное – заносить габаритные, но не тяжелые вещи без открывания ворот.
- Высота обычно не превышает высоту ограждения – от 70 до 150 см.
- Проем для калитки может быть как открытым – без верхней перекладины, так и закрытым. В последнем случае проем становится элементом дизайна и оформляются, например, в виде арки.
Размеры встроенной калитки стараются уменьшить
Размеры встроенной калитки в заборе стараются уменьшить. В легкой конструкции из профильной трубы и профнастила этот элемент вызывает дисбаланс и расшатывает ворота. В тяжелой, калитка оказывает меньше влияния, но зато уменьшает прочность и стойкость к взлому.
Требования к размерам:
- Ширина минимальная, хотя допускаемся и величина в 110 см.
- Высота ниже высоты ворот. Проем глухой, то есть обустроить такой вариант можно лишь при величине воротного полотна в 180 см как минимум.
Калитку можно сделать только распашную.
Расчет размера ворот для легковых автомобилей
Ширина внедорожника может доходить до 2 м, плюс техническое расстояние по бокам 80 см. Итого 280 см
Важнейший параметр в таких вычислениях – определение ширины чистового проема. Дальнейшее зависит от конструкции и особенностей участка.
Легковые автомобили имеют разные габариты. В среднем ширина кузова составляет 1,5–1,7 м. Однако ширина внедорожника может достигать и 2 м. Чтобы машина могла свободно въехать на участок, с обеих сторон должен оставаться технический зазор – по 30–40 см. Соответственно, величина проема – сумма ширины кузова и 60–80 см.
Если открывание створки ограничено и не достигает 90 градусов, ширину проема увеличивают так, чтобы фактическая величина проема для проезда достигала необходимого минимума. Другой нюанс: как автомобиль въезжает на участок. Если заезд прямой, ширину оставляют стандартной. Если въезд под углом, проем увеличивают.
Стандартный минимум составляет 2,5 м. Такой проем не позволяет въехать на скорости.
Если проем закрытый или ворота ограничивают высоту, эту величину тоже нужно учесть. Минимум составляет сумма высоты автомобиля и 30 см. Производители предлагают минимальную высоту в 180 см. Это достаточно для проезда машины, но представляет неудобство для выходящих из нее людей: высокий человек касается макушкой створки.
Стандартные размеры ворот и калитки для частного дома (ширина, высота) для въезда на участок для легкового и грузового транспорта: как произвести расчет габаритов для оптимальной нормы
При подготовке участка к строительству забора особое внимание уделяется определению размерам. Это позволяет свободно эксплуатировать ограждение, не рискуя его повредить при попытке проезда на транспортном средстве. Учитывают факторы: размеры ворот, минимальные и максимальные значения параметров, что важно при разных условиях, возможности при повороте машины на въезде и др. Изучают нормативные документы, правила расчетов.
На какие стандарты опираются компании при изготовлении ворот: отечественные или международные
С момента появления автомобилей и капитальных ограждений с воротами и калиткой возникла необходимость определения оптимальных параметров таких конструкций. Со временем появились условные стандарты, их стали придерживаться многие производители. Эти параметры важны при изготовлении. Благодаря им появляется возможность избежать касания автомобилем опор.
Количество видов машин огромное. Отмечают и множество условий, при которых осуществляется заезд авто на территорию объекта: резкий поворот дороги, значительный угол при подъеме и др. Все это влияет на характеристики проема. Вместе с тем сложно стандартизовать все случаи, сформировать единый документ, ГОСТ, СНиП, который бы позволил определять нужную ширину или высоту проема. Дело в том, что слишком много условий, которые могут влиять на итоговый результат.

Секционные ворота на въезде во двор
Обычно ориентируются по ряду факторов: размерам транспорта, типу ворот, условиям проезда. Учитывают и другие параметры:
- стандартный тип: отечественные стандарты чаще всего предполагают изготовление ворот шириной выше 2,5 м, это значение определяется по размерам автомобиля, если его ширина составляет 1,8-2,0 м, для комфортного проезда рекомендуется предусмотреть запас не менее 30 см с двух сторон, идеальным вариантом является добавление 1 м к ширине авто, но так следует поступать, если достаточно пространства рядом;
- минимальный тип: случается, что места не хватает, тогда за основу берут минимальные габариты – для авто ширина пространства при въезде составит 2 м, но это в случае, когда дорога ровная, нет крутых поворотов и подъемов, для сравнения мотоцикл будет проезжать через проем не менее 1,8 м;
- максимальный тип: может показаться, что ограничений нет, но производители обычно предлагают конструкции до 6 м, редкие компании изготавливают модели до 9 м, увеличивается и длина подвижного щита/створки, что влияет на прочность, поспособствует появлению вибрации, а ограничений по высоте еще меньше, если речь не идет о гараже, здесь допустимый максимум – 3,08 м.
Ширина ворот для въезда Камаза. Размеры ворот для Камаза | Ширина ворот
Грузовые автомобили КамАЗ идеально подходят для транспортировки различных грузов по российским дорогам. Транспортные средства хорошо адаптированы под отечественные условия эксплуатации: характеризуются отличной проходимостью, прекрасной грузоподъемностью, мощностью. В зависимости от модели машины могут перевозить товары, масса которых варьируется от 5 до 30 тонн.
Для эффективной защиты транспортируемого груза приобретают задние распашные ворота, состоящие из двух створок. Конструкции служат для запирания продукции и опломбирования.
Размеры ворот для КамАЗа подбираются под конкретную модель машины, учитываются габариты фургона или полуприцепа. Например, ширина модели 4308 достигает 255 см, а высота автомобиля составляет 267 см. При этом габариты кузова, на который будет устанавливаться конструкция, отличаются от размеров транспортного средства. В этом случае ширина ворот для КамАЗа составит 247 см.
Перед производством конструкции специалисты должны осуществить точные замеры и правильно определить высоту и ширину створок:
- Исходя из их габаритов, подбирается фурнитура.
- Размеры ворот для КамАЗа также влияют на количество петель. Чем выше створки, тем больше петель понадобится для их удержания.
- Каркас изготавливается из профильной трубы 40х60. Часто для его производства также применяется швеллер 10.
- Все ворота комплектуются замочным механизмом.
После изготовления конструкции ее покрывают специальной трехкомпонентной краской, которая устойчива к ультрафиолетовому излучению и влажности, хорошо защищает материал от непогоды, перепада температуры, солнца, мороза.
Как видим, высота и ширина ворот для КамАЗа определяется в каждом случае индивидуально, учитываются габариты фургона либо же полуприцепа.
Ширина ворот футбольных. Сначала вместо перекладины использовали веревку – натягивали на любом расстоянии от земли (или вообще играли без нее)
В 1848 году группа студентов и преподавателей Кембриджского университета сформулировала «Кембриджские правила» – первый в истории свод футбольных правил. В этом документе упоминался офсайд, вместо угловых предлагалось просто выбивать мяч с линии с того места, где он ее пересек, а начиналась игра с розыгрыша в центре поля. В будущем «Кембриджские правила» стали основой для свода законов, принятого Футбольной ассоциацией Англии.
В двух из 11 правил упоминались футбольные ворота. После каждого гола команды должны были меняться сторонами поля, а гол засчитывался, когда мяч проходил между двумя штангами и под натянутой между ними веревкой. Ни о сетке, ни о жесткой перекладине тогда не задумывались, и ворота часто вообще представляли собой просто два столбика произвольной высоты на произвольном расстоянии друг от друга.
15 лет спустя FA опубликовала знаменитые «Законы игры», где установила точный размер футбольных ворот: 8 ярдов (или 7 метров 30 сантиметров). Но и в этом документе не упоминались ни перекладина, ни высота штанг. Команды по-прежнему обозначали верхнюю границу ворот веревкой, которую натягивали на любом расстоянии от земли выше человеческого роста, а иногда обходились и вовсе без нее. Не раз голы засчитывались даже тогда, когда мячи летели на высоте в 10 метров. Чтобы избежать подобных курьезов, в 1866 году FA обязала клубы использовать светлую ленту в качестве верхней границы ворот – и она использовалась в первом финале Кубка Англии через шесть лет.

За звание первого клуба, установившего жесткую перекладину на ворота, до сих пор борются английский «Шеффилд» и шотландский «Квинс Парк». В 1882-м футбольные законодатели наконец сделали перекладину обязательным элементом ворот и постановили, что она должна находиться на высоте в 8 футов (2 метра 34 сантиметра).
Теперь клубы могли жаловаться на несоответствующий стандартам футбольный инвентарь, что и произошло в четвертом раунде Кубка Англии после матча между «Крю Александра» и «Кенсингтон Свифтс». Игра завершилась со счетом 2:2, и представители «Александры» обратились к чиновникам из FA с жалобой на ворота: футболистам показалось, что одна перекладина на домашнем стадионе «Кенсингтона» ниже другой. Ворота померили – и увидели разницу в пять сантиметров, после чего хозяева поля были дисквалифицированы. Через восемь лет знаменитый вратарь «Шеффилда» Уильям «Толстяк» Фулк, чей вес неуклонно приближался к полутора центнерам, сломал перекладину ворот, повиснув на ней во время прыжка.
Ширина ворот гаража. Гаражные ворота: размеры, ГОСТ и нормативы
Специальной документации, определяющей габариты ворот разного назначения, включая гаражные, не существует. Это обусловлено тем, что произведено большое количество самых разных автомобилей, которые отличаются параметрами, включая размеры. Точно так же и автоматические ворота – на рынке они представлены многочисленными разновидностями с совершенно разными особенностями. Стандартизовать эти изделия сложно, поэтому общепринятой схемой определения параметров является самостоятельный расчет на основе имеющихся данных, условий эксплуатации воротного полотна.

Гаражный кооператив с секционными воротами
Производители используют сопутствующие нормативные акты, которые облегчают задачу разработки подобных конструкций. В результате получают изделия, которые удовлетворяют всем требованиям. Причем основные характеристики (размеры) определяются на основе многолетних наблюдений, опыта большого количества людей и простых логичных расчетов. Документация, которая может использоваться:
- ГОСТ31174-2017 – определяет основные понятия, конструкцию, условия изготовления ворот, а также дает возможность правильно провести испытания надежности, выполнить монтаж;
- СП 20.13330.2011 – свод правил, позволяющий определить, какими должны быть ворота, которые будут подвергаться воздействию определенной нагрузке, оказываемой ветром;
- Европейский стандарт EN12604 – международный документ, разработанный, согласно европейским требованиям к безопасности конструкций.
Существуют стандартизованные параметры, а также предельно высокий и низкий порог диапазона допустимых значений высоты, а также ширины проема:
- стандарт: при строительстве гаража учитывают основные размеры, базовым критерием, который принимают во внимание, является ширина авто – от 1,8 до 2,2 м, но нельзя делать ворота впритык, следует предусмотреть запас – от 30 см по каждой из сторон машины, что касается высоты, то следует делать гаражное полотно в пределах 2,3-2,6 м;
- минимальный размер: значение параметра определяется индивидуально, все зависит от ширины авто, для наиболее компактных машин устанавливают гаражи с автоматическими воротами 2 м, а их высота составляет не менее 1,8 м, при этом учитывают и собственное самочувствие при работе в помещении – будет ли комфортно с низкими потолками;
- максимальный: ограничений при расчете предельных значений параметров ворот до сих пор нет, владелец решает самостоятельно, руководствуясь своими возможностями, но чаще используется вариант высотой 3,08 м и длина 6 м.
Ширина калитки в частном доме. Нюансы месторасположения ворот
Размер створки должен соответствовать габаритам машины
Ворота на даче для въезда машины и калитка для прохода людей должны соответствовать ряду требований:
- Площадь створки довольно большая, поэтому на нее ложится изрядная ветровая нагрузка. Материал конструкции подбирают так, чтобы он выдерживал самые сильные ветра и метели.
- Для входной группы имеет смысл использовать прочные и износоустойчивые материалы. Дождь, снег, перепады температуры, обмерзание, выхлопные газы – все это существенно сокращает срок эксплуатации ограждения.
- Ворота и калитка – часть системы безопасности. Задачей въездной группы является препятствование проникновению на участок животных и посторонних лиц. Однако степень стойкости к взлому определяется общими требованиями к безопасности. На калитку из штакетника не имеет смысла ставить замок.
- Размеры ворот и калитки для частного дома должны соответствовать требованиям хозяина дачи. Учитываются габариты личного авто и необходимость проезда грузового транспорта для очистки выгребной ямы, например, или для доставки строительных материалов.
Размеры ворот с калиткой
Строительство на дачном участке жестко регламентируется СНиП. Размещение ворот тоже зависит от количества и назначения построек на наделе и возле участка.
- Запрещается устанавливать ворота рядом с перекрестком. Распашные створки препятствуют движению пешеходов и ограничивают обзор водителю, что опасно.
- Распахнутые створки не должны мешать открыванию ворот соседа или преграждать им въезд на свой участок.
- Предпочтительнее открывание внутрь. В этом случае створки никому не мешают. Открывание наружу разрешается, если другие возможности отсутствуют.
- Двери должны поворачиваться не менее чем на 90 градусов, чтобы обеспечить свободный въезд. Поворот до 180 градусов приветствуется, так как это позволяет несколько уменьшить размеры проема. Напротив, невозможность полностью распахнуть створки заставляет сделать физический проем шире.
Чтобы предупредить подобную ситуацию, возле входа запрещают сажать высокие и среднерослые деревья. Но если растения являются частью уличного озеленения, удалить их нельзя.
В большинстве случаев ограничения возникают из-за особенностей распашной конструкции. Откатные или подъемные модели решают эту проблему.