Как выбрать ширину ворот для въезда. Где расположить входную группу?
- Как выбрать ширину ворот для въезда. Где расположить входную группу?
- Ширина ворот на 2 машины. Оптимальный размер гаража на 2 машины
- Оптимальная Ширина ворот в заборе. Размеры ворот: Ширина и оптимальная высота в заборе с калиткой частного дома
- Ширина ворот на участке. Самые популярные варианты
- Ширина ворот для проезда Камаза. Размеры ворот для Камаза | Ширина ворот
Как выбрать ширину ворот для въезда. Где расположить входную группу?
Ворота — лицо домовладения. По их внешнему виду часто судят о финансовом благополучии хозяина и его художественном вкусе. На фоне трехэтажного особняка банально будут смотреться дешевые двери из окрашенного листового железа. А художественная ковка створок точно не нужна, если за забором прячется скромный дачный домик.
При выборе места для входной группы (ворота + калитка) обратите внимание на следующие факторы:
- Особенности рельефа прилегающей к участку территории. Подъезд к воротам должен быть ровным и прочным. Овраг, конечно, можно засыпать, и покрыть асфальтом, но вам придется потом каждый год латать трещины в покрытии или асфальтировать заново.
- Размеры участка, дома, парковочного места/гаража, на каком расстоянии от забора они расположены. Въезд идет на дорожку, ведущую через парк к дому или парковка/гараж начинаются сразу за оградой?
- Назначение: глухие створки, для защиты от несанкционированного проникновения и обзора снаружи, декоративные — для создания определенной стилистики экстерьера и т.п.
- Расстояние от участка до дороги и ее ширина. Есть ли с дороги съезд достаточной длины, чтобы автомобиль въезжал в ворота под прямым углом.
Выбор местоположения для входной группы определяется прежде всего удобством въезда/выезда через нее.
От раскрывающихся наружу створок лучше отказаться сразу, если места между забором и дорогой недостаточно. Скорее всего, распахнутые двери будут мешать движению автомобилей по дороге и осложнять отношения с соседями.
Но если площадь участка мала, открывающиеся внутрь створки ворот будут занимать и так ограниченное пространство. Здесь лучше смотреть в сторону раздвижного варианта, когда створки разъезжаются в стороны по специальному рельсу вдоль внутренней части забора. Или в одну сторону, если выбран вариант с одной створкой. В таком случае нужно предусмотреть запас места для отодвигаемой конструкции.
На выбор места установки ворот влияет и наименьший радиус поворота автомобиля:
- для легковушки он составляет 5-6 метров;
- для грузовика — 6-7;
- для пожарных машин — порядка 10 метров.

Если минимальный радиус поворота больше, чем расстояние от дороги до входной группы, то придется заезжать под острым углом, либо отнести ворота на метр-два вглубь участка. Первое потребует увеличения ширины ворот до 3-3,5 м. Второе — изменения конструкции забора. При расчетах также нужно учесть, придется ли машине при въезде во двор пересекать осевую линию дороги.

Там, где загородная застройка плотная (общие заборы с соседями), выбирать не приходится. Ворота придется устанавливать в той части забора, что выходит на дорогу. Обычно проем под них делают по центру.
Ширина ворот на 2 машины. Оптимальный размер гаража на 2 машины
Рассчитывая размеры гаража на две машины, следует обеспечить их соответствие стандартным требованиям. Габариты одного места для парковки легкового автомобиля должны соответствовать средним нормам, в которых заложена ширина, длина и высота транспортного средства.
Рассчитывая оптимальный размер, следует обеспечить достаточное расстояние от боковых поверхностей . Рассмотрим на примере, как это сделать в зависимости от габаритов авто:
- Ширина въезда. Автомобиль в среднем занимает 190 см, с обеих сторон к этому числу необходимо добавить по 80 см. Это необходимо, чтобы пассажиры и водители могли одновременно занимать свои места, а двери машин не препятствовали этому . В итоге получаем значение 3,5 м. Ширина въезда в гараже на две машины должна быть, соответственно, в 2 раза больше, то есть 7 м. Дополнительно можно оставить пространство для полок и стеллажей.
- Длина. Это значение должно быть не менее 6 метров, так как стандартная длина автомобиля с кузовом седан составляет около 4,5 м , и нужно предусмотреть дополнительное пространство спереди и сзади транспортных средств – по 75 см (без учета полок).
- Высота. Стандарт – 2,2 м (в зависимости от габаритов автомобиля) .
Имея данные параметры, легко рассчитать оптимальный размер гаража для двух авто, учитывая размеры транспортных средств. Оптимальная ширина – не менее 7 метров, длина – не менее 6 метров. Изображая план помещения, немаловажным аспектом является правильное размещение стеллажей, подзарядной станции для электромобиля и тумб для складирования необходимых комплектующих и резины. Размеры конструкции должны обеспечить комфортное использование полезного пространства.
Если вы выбираете готовый проект со стандартными размерами, то обратите внимание, какая будет ширина прохода с учетом припаркованной машины. Этот, казалось бы, незначительный момент может повлиять на комфортное использование помещения в дальнейшем, существует риск повредить дверь автомобиля при резком открывании .
Ширина ворот на 2 машины. Оптимальный размер гаража на 2 машины.
Рассчитывая размеры гаража на две машины, необходимо обеспечить их соответствие стандартным требованиям. Габариты одного места для парковки легкового автомобиля должны соответствовать средним нормам, в которых заложена ширина, длина и высота транспортного средства.
Рассчитывая оптимальный размер, необходимо обеспечить достаточное расстояние от боковых поверхностей. Рассмотрим на примере, как это сделать в зависимости от габаритов авто:
| Параметры автомобиля | Ширина, м | Длина, м | Высота, м |
|---|---|---|---|
| Машина 1 | 1,9 | 4,7 | 1,4 |
| Машина 2 | 1,8 | 4,5 | 1,3 |
Имея данные параметры, легко рассчитать оптимальный размер гаража для двух авто, учитывая размеры транспортных средств. Оптимальная ширина – не менее 7 метров, длина – не менее 6 метров.
Изображая план помещения, немаловажным аспектом является правильное размещение стеллажей, подзарядной станции для электромобиля и тумб для складирования необходимых комплектующих и резины. Размеры конструкции должны обеспечить комфортное использование полезного пространства.
Если вы выбираете готовый проект со стандартными размерами, то обратите внимание, какая будет ширина прохода с учетом припаркованной машины. Этот, казалось бы, незначительный момент может повлиять на комфортное использование помещения в дальнейшем, существует риск повредить дверь автомобиля при резком открывании.
Важно: при проектировании гаража на 2 машины не забывайте о важности обеспечения безопасного доступа к машинам и комфортного использования пространства.
Оптимальная Ширина ворот в заборе. Размеры ворот: Ширина и оптимальная высота в заборе с калиткой частного дома
Большинство владельцев дач или частных домов сталкивались с проблемой, как правильно выбрать размер ворот. Помимо прочего, месторасположение и различные варианты въездных створок играют важную роль, от этого зависит, насколько удобным будет подъезд к частному дому. Ширина ворот должна быть достаточной, чтобы в них смогли заехать как легковое авто, так и грузовик.

Въезд на участок частного дома
Особенности месторасположения
Если строительство дачи или дома лишь на стадии разработки, то нужно подобрать оптимальное месторасположение воротной конструкции. Изначально нужно определить, осложнят ли ворота въезд автомобилям с остальных участков, перекроют ли движение транспорта, находясь рядом с проезжей частью.

Откатная створка
Не советуют устанавливать ворота для заезда в частный дом, створки которых открываются на улицу. Это может препятствовать остальным участникам движения.
Размеры ворот и калитки для частного дома
Размер проема въезда легковых машин можно начинать делать в ширину от 250 см. Но необходимо учитывать, что на участок в дальнейшем также, возможно, будет заезжать грузовой транспорт либо спецтехника. К примеру, трактор, ширина которого более 250 см. Именно поэтому желательно установить ворота начиная от 330 см.

На даче
Практичность заезда
Насколько удобным и практичным будет въезд, значительно зависит от рядом находящейся дороги, а также от максимального радиуса разворота автомобиля. Если расстояние между дорогой и въездом на территорию равно радиусу разворота авто либо больше этого значения, то в данном случае машина, проезжающая перпендикулярно по центру ворот, будет заезжать с запасом с двух сторон от автомобиля до проема ворот.

Около частного дома
В случае если проем более узкий, чем радиус поворота машины, то будет необходимо проезжать под углом, срезая поворот, так появляется высокая вероятность врезаться в бордюрное ограждение либо столб.
В данной ситуации желательно сделать более широкий проезд через ворота, в пределах 3,5–5,2 м. Если все равно не обеспечивается должный проезд, то желательно переместить воротную конструкцию во двор на 1,3–1,7 м.
Это решение особенно актуально для домов и жилых зданий с узкими улочками, постоянным потоком автомобилей, когда, чтобы проехать на территорию, необходимо пересекать ось проезжей части.
Чаще всего средний радиус разворота легковых машин составляет приблизительно 5,7–6,8 м, для грузовиков и длинномерных фур – около 7–9 м, для пожарной машины – до 10 м.

Створки из металла
Расчет размера калитки
Прежде чем установить калитку для забора из кирпича или профнастила, необходимо определить, какая будет конструкция и какого размера.

На участке
Расчет высоты калитки из профлиста:
- Стандартная высота – 190 см.
- С учетом требований калитка поднимается над уровнем земли на 10 см.
- Общая высота – 180 см.
- Сверху и снизу каркаса делается допуск для обшивки по 2 см.
- Общая высота рамы без обшивки – 1760 мм.

Схема с размерами
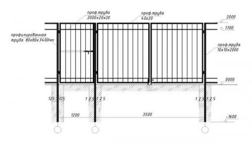
Какая требуется ширина калитки в заборе:
- Чаще всего ширина проема между кирпичными опорами составляет 1,1 м.
- К опорам фиксируют брусья для крепления калитки толщиной 50 мм.
- 1100 − 50 − 50 = 1000 мм.
- Учитывается зазор с двух сторон по 15–25 мм.
- Ширина рамы – 950–970 мм.

Калитка в кирпичном ограждении
Размеры калитки для инвалидов-колясочников
Как правило, стандартная по ширине коляска для инвалидов составляет 630–680 мм. Минимальный проем должен составлять 710 мм. Этого должно хватить для проезда.

Сварная калитка в заборе
Но стоит учесть, что инвалиды передвигаются, вращая колеса руками. И если коляска помещается между проемом вплотную, то можно травмировать руку. Чтобы не допустить этого, минимальная ширина калитки должна составлять 810–850 мм.
Размеры ворот для забора
Первое, от чего необходимо отталкиваться при определении размера ворот, какой транспорт будет въезжать на дачный участок либо на территорию частного дома. Одно дело – если на территорию заезжают исключительно легковые авто, иное дело – грузовики.
Чертеж для изготовления створок из профнастила
Ширина ворот на участок выбирается для различных автомобилей, естественно, разная. То есть необходимые размеры въездных ворот будут отличаться. Желательно изначально рассчитывать на грузовики (к примеру, типа КамАЗ).

Створки из профнастила частного дома
Легковые машины
Как правило, ширина этих авто находится в пределах 1,6–1,8 м. Джипы и Газели имеют чуть большую ширину. Но чаще всего эта величина составляет не более чем два метра.
То есть для этих авто стандартные размеры ворот – 2,6 м. Если заезжать на территорию осторожно, то этого запаса (зазор остается примерно по 35 см) вполне хватит.
Грузовики
В этом случае ситуация другая. К примеру, ЗИЛ по ширине – 2,5 м. Соответственно, для въезда на дачу этого транспортного средства минимального вышеуказанного проема ворот не хватит.

Ширина ворот на участке. Самые популярные варианты
Отвечая на вопрос, какая должна быть ширина въездных ворот на участок, хочется отметить, что ворота могут отличаться не только размерами, но и видом конструкции. Они делятся на откатные и распашные. Окончательный выбор – за владельцем двора. Ему потребуется сделать анализ и определиться с самым подходящим видом.
Ворота распашные
Альтернативное название – створчатые. Они состоят из двух частей, гораздо реже из одной. Крепление осуществляется к петлям и опорам. Принцип работы напоминает принцип действия простой домашней двери. В положении "закрыто" створки удерживаются щеколдой или при помощи замка. Их открывают руками или при поддержке электрического привода. Его приводит в действие мотор, который устанавливают под воротами. Для такой системы потребуется иметь пульт ДУ.
При планировании конструкции надо учитывать тот момент, что ширина распашных ворот и сами створки отнимают пространство по обеим частям проезда. По этой причине всегда выгоднее обустраивать ворота с единственной створкой, особенно если участок в месте выезда длинный и чрезмерно узкий.
Откатные ворота
Альтернативное название этих ворот – раздвижные. Они сделаны из единой сплошной створки, которая перемещается по роликовым направляющие вдоль забора. Ключевая выгода данной системы – максимальная экономия места. Это безальтернативное решение, если между воротами и дверьми гаража совсем мало пространства. Иногда ставить распашные ворота в подобной ситуации просто нереально. Цена не будет слишком заоблачной даже для простого автолюбителя. Перед приобретением и установкой надо учесть следующие нюансы:
откатные системы делятся на самонесущие и рельсового вида;
ошибочно делать открытие в сторону, где уже имеется калитка. Это станет причиной блокировки прохода и принесёт дискомфорт. Так поступают только в безвыходных случаях;
та часть ограждения, в которую будет уходить створка при открывании, обязана быть не меньше, чем сама ширина ворот. Только так получится без проблем скрывать их под собой.
Если вами будет принято решение приобрести этот вид и будет актуален вопрос, какая должна быть ширина ворот, то надо знать, что в зимнее время рельса склонна наполняться снегом, замёрзшей водой. А это неизбежно приведёт к затруднению функционирования роликов. От этого можно спастись: надо ставить рельс выше выездной поверхности. Продвинутые владельцы вооружают рельсы проводом с обогревом.
Источник: https://avtomaticheskie-vorota.aystroika.info/novosti/optimalnaya-shirina-vezdnyh-vorot
Ширина ворот для проезда Камаза. Размеры ворот для Камаза | Ширина ворот
Грузовые автомобили КамАЗ идеально подходят для транспортировки различных грузов по российским дорогам. Транспортные средства хорошо адаптированы под отечественные условия эксплуатации: характеризуются отличной проходимостью, прекрасной грузоподъемностью, мощностью. В зависимости от модели машины могут перевозить товары, масса которых варьируется от 5 до 30 тонн.
Для эффективной защиты транспортируемого груза приобретают задние распашные ворота, состоящие из двух створок. Конструкции служат для запирания продукции и опломбирования.
Размеры ворот для КамАЗа подбираются под конкретную модель машины, учитываются габариты фургона или полуприцепа. Например, ширина модели 4308 достигает 255 см, а высота автомобиля составляет 267 см. При этом габариты кузова, на который будет устанавливаться конструкция, отличаются от размеров транспортного средства. В этом случае ширина ворот для КамАЗа составит 247 см.
Перед производством конструкции специалисты должны осуществить точные замеры и правильно определить высоту и ширину створок:
- Исходя из их габаритов, подбирается фурнитура.
- Размеры ворот для КамАЗа также влияют на количество петель. Чем выше створки, тем больше петель понадобится для их удержания.
- Каркас изготавливается из профильной трубы 40х60. Часто для его производства также применяется швеллер 10.
- Все ворота комплектуются замочным механизмом.
После изготовления конструкции ее покрывают специальной трехкомпонентной краской, которая устойчива к ультрафиолетовому излучению и влажности, хорошо защищает материал от непогоды, перепада температуры, солнца, мороза.
Как видим, высота и ширина ворот для КамАЗа определяется в каждом случае индивидуально, учитываются габариты фургона либо же полуприцепа.