Как сделать ворота своими руками откатные. Создание проекта
- Как сделать ворота своими руками откатные. Создание проекта
- Откатные ворота по уголку. Подходящая ширина проема
- Откатные ворота своими руками без фундамента. Как сделать консольные откатные ворота
- Чертежи откатные ворота своими руками простые. Чертежи откатных ворот - бесплатно
- Самодельные откатные ворота. Особенности
- Самые простые откатные ворота своими руками. Изготовление несущей рамы откатных ворот
Как сделать ворота своими руками откатные. Создание проекта
Проектирование такой сравнительно сложной конструкции, как ворота (особенно откатные) следует начинать с оценки своих возможностей. И любые ворота, стремятся сделать не только удобными, но ещё и красивыми, ведь ворота, это то, что первым делом увидит каждый посетитель.

Это своеобразная «визитная карточка» любого участка, будь это участок, на котором стоит жилой дом, или же обычный дачный участок.
- Откатные ворота, могут иметь две основные конструкции, с опорой сверху, или с опорой снизу, это так называемые роликовые (с верхним подвесом) и рельсовые (с нижней опорой) ворота.
- Сейчас, рельсовые конструкции ворот используются редко. Конечно, выбор конструкции с верхней опорой, в большинстве случаев ограничивает максимальную высоту проходящих в ворота транспортных средств. Однако, в большинстве случаев этот показатель неважен.

Но и у ворот, опора которых находится внизу, тоже есть масса своих недостатков. Самым ярким из них, является необходимость постоянно очищать зимой балку, по которой должна перемещаться роликовая тележка.

Однако, некоторые конструкции ворот лишены всех этих недостатков. Такие ворота имеют верхний подвес, но при этом они не ограничивают высоту своего проёма. Также, эти ворота не очень критичны к Чистоте опоры, по которой и осуществляется их движение.

Любая конструкция откатных ворот, обязательно содержит в себе такие компоненты:
- Роликовая опора, или тележка, принимая на себя значительную часть веса ворот, позволяет сохранить их подвижность;
- Направляющая балка, или направляющий рельс, направляет движение ворот;
- Верхний ловитель, позволяет снизить нагрузку, которая возникает из-за высокой парусности ворот;
- Нижний ловитель, этот элемент удерживает нагрузку от опорного ролика, при закрытых воротах;
- Верхний фиксатор, предназначен для предотвращения отвода створки ворот в сторону под собственным весом;
- Подставка, принимающая на себя основной вес конструкции;
- Как видно из сказанного выше, каждый элемент откатных ворот, выполняет какую-то определённую конструкцией функцию.
Откатные ворота, хоть и имеют значительный вес, однако их конструкция создана так, чтобы они сохраняли при этом свою подвижность и могли, сравнительно легко, перемещаться вдоль своей направляющей.
Для обеспечения такой подвижности, а вместе с тем и прочности ворот, их возведение, начинают со строительства фундамента, который должен быть очень надёжным, так как ему предстоит принять на себя основную нагрузку всей конструкции.

Откатные ворота по уголку. Подходящая ширина проема
Начать проектирование откатных ворот следует с решения вопроса о подходящей ширине.

Под понятием ширины откатных ворот имеется в виду протяженность створа. Она равна дистанции между опорными столбами при полном открывании сдвижной заслонки.

Угол заезда крупногабаритной техники
Чтобы верно определить данный параметр, следует немного поразмыслить над следующими вопросами.
- Какая именно техника должна заезжать через эти ворота? Планируется ли въезд малотоннажников, бульдозеров, самосвалов?
- Как конкретно будет направлена траектория въезда этих машин, в том числе крупногабаритных грузовиков?
Зазоры между стойками и машинами
Из опыта эксплуатации откатных ворот хорошо известно, что их ширина должна позволять такой проезд, чтобы между опорными стойками и автомобильными зеркалами заднего вида зазор составлял хотя бы по 30-50 см с каждой стороны.
Дабы приблизительно представить оптимальную ширину проема, достаточно привести данные о поперечных габаритах популярных моделей машин с выдвинутыми зеркалами.

Ширина популярных автомобилей
- Форд «Фокус» — 2,01 м.
- Форд «Эксплорер» (модель 2015 года) — 2,29 м.
- Газель (целиком железный тент) — 2,5 м.
- КамАЗ — 2,9 м.
Большие габариты тяжелых грузовиков
Из данного перечня легко понять, что тяжелые грузовики заметно отличаются по ширине от легковушек, кроссоверов и малотоннажных грузовых автомобилей.
При этом вероятность того, что рано или поздно необходимость впустить во двор дачи или коттеджа Камаз появится, составляет около 100 процентов.

Планомерное благоустройство дворовой территории
Ведь наверняка хозяину захочется поставить рядом с дачей
- Шашлычный павильон;
- Симпатичный китайский чайный домик;
- Летнюю кухню;
- Веранду для чтения;
- Емкости для накопления дождевой воды.

Дальновидное расширение проема ворот
Кроме того, он займется культивацией и озеленением участка, ландшафтным дизайном, пристройкой к дому крыльев для размещения гостей или постояльцев.

Вот почему необходимо заранее позаботиться о том, чтобы ширины откатных ворот было вполне достаточно для подвозящих стройматериалы и грунт грузовиков и самосвалов.
Зрительная оценка просторности въезда
Как правило, угол въезда такого рода техники на огороженный участок с обычной узкой улочки составляет 45 градусов к линии ворот. При этом в длину типовой Камаз достигает почти 7,5 метров.
Остается сходить на то место своего участка, где запланирована установка откатных ворот, зрительно оценить открывающийся за ними простор и выяснить, сможет ли Камаз сманеврировать и въехать не под прямым углом.
Откатные ворота своими руками без фундамента. Как сделать консольные откатные ворота
Эта конструкция хороша тем, что над проездом нет балок. Но она — самая дорогая в устройстве. Дело не столько в системе роликов, сколько в необходимости устройства фундамента с металлическими закладными, к которым затем будет крепиться консольная балка. Если столбы уже есть, фундамент заливается перед ним и вдоль забора на длину технического выноса, который необходим для компенсации нагрузки, создаваемой полотном.

Комплектация консольных ворот
Даже если делают консольные откатные ворота своими руками, комплект, состоящий из направляющей балки, роликов, концевых роликов и уловителей покупают обычно в фирме. Все запчасти рассчитываются исходя из размеров полотна, материала каркаса и типа обшивки: вес имеет существенное значение. Потому желательно со всеми этими параметрами определиться заранее.
Зная длину несущей балки, вы сможете рассчитать необходимый размер фундамента. По типу — это ленточный фундамент, котлован под него копают ниже глубины промерзания грунта (для каждого региона она своя), в который закладывают армированные опоры под пластины с роликами, а также устанавливают стойки. К этим стойкам затем крепится комплект верхних роликов, удерживающих полотно и не дающих ему раскачиваться.
Как рассчитать фундамент под крепление для консольной балки
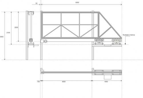
Сложного при расчете ничего нет. Фундамент по длине равен почти половине длины пролета. Если пролет 4 метра (ширина проезда или расстоянием между столбами), то фундамент должен быть 1,8-2 м. Ширина его 40-50 см, глубина — ниже глубины промерзания грунта для региона.

Фундамент под консольную балку при строительстве откатных ворот
Котлован выкапывают еще на 10-15 см глубже — под гравийно-песчаную подушку. Этот фундамент армируют (по типу ленточного ), в верхней его части к арматуре приваривается швеллер (18 или 20) и все это заливают бетоном. Швеллер выставляется в «нулевой» уровень, то есть он должен стоять на одном уровне с уровнем грунта или материалом, которым отделан двор.

Подготовленное армирование и закладной швеллер
Есть более дешевый и быстрый вариант, но по надежности он уступает описанному выше. В грунт вкручивают три винтовых металлических сваи, к ним приваривают швеллер.
Установка роликовых опор
К закладному швеллеру привариваются шпильки, к ним потом на болтовых соединениях крепятся платформы с роликами. Иногда можно встретить варианты, когда платформы приварены сразу к закладной. Это неправильно. Существует довольно большая вероятность того, что фундамент или столб забора даст усадку. Даже небольшое смещение — и ваши ворота работать не будут. Если ролики со шпилек можно снять, шпильки переварить и все собрать на место, то как корректировать если платформа приварена? Срезать? Сложно, долго, без гарантий. Так что лучше в этом случае делать все по правилам.

Пример крепления роликовых площадок
При покупке обратите внимание на роликовые каретки и на сами ролики. Это обязательно закрытые подшипники качения. Они обычно располагаются в два ряда по 4 штуки в каждом. Смазка в них должна быть морозостойкой — нижний предел температур -60°C. Осмотрите платформу, на которой они крепятся. Она должна быть стальной, литой, хорошего металла с оцинкованной поверхностью, покрыта защитной смазкой.

На ролики накатывается опорная балка, потому основную нагрузку несут они
Покатайте ролики. Все должны кататься без усилий, и не должны иметь люфта (не должны шататься из стороны в сторону). Тогда можно быть уверенным, что ворота будут ездить легко и откатной механизм будет работать продолжительное время (некоторые фирмы дают гарантию 10 лет). Ведь большая часть нагрузки приходится именно на ролики, потому их качество ключевой момент, как и сбалансированная конструкция полотна.
Остальные этапы монтажа более понятно будут описаны в фото-отчете: ворота собраны самостоятельно, без привлечения специалистов.
Чертежи откатные ворота своими руками простые. Чертежи откатных ворот - бесплатно
Откатные ворота своими руками - чертежи, схемы, подробности установки и конструкции. Мы сделали для Вас 100% бесплатные чертежи силовой рамы откатных ворот.
Вам не нужно более рыскать по интернету в поисках толковых чертежей, натыкаясь на древние рисунки лишенные практического смысла, не нужно давать свой Вайбер или иной мессенджер, чтобы потом вам месяцами названивали менеджеры-сектанты. Не нужно покупать комплектующие втридорога на фирмах обещающих "бесплатный" чертеж при покупке их товара итд.
Мы постарались создать базу чертежей откатных ворот, чтобы каждый пользователь решивший сделать откатные ворота своими руками легко нашел для себя полезную информацию. Общую теорию об устройстве откатных ворот можете почерпнуть в статье схема откатных ворот . Смотреть чертежи лучше на планшете с большой диагональю, стационарном компьютере или распечатать.
Пару слов как пользоваться базой. Допустим у вас классический проём шириной 4 м. Находите чертеж в диапазон, которого попадает ваш проем и смело делаете по нему ворота. Дело в том, что откатные ворота должны перекрывать проем в каждую сторону на 100-200мм. Во-первых закрываются щели, во-вторых такое перекрытие необходимо для правильной фиксации ворот уловителями и верхним ограничителем. На чертежах прекрытие проёма створкой обозначено - D, его много не бывает, бывает только мало. В этом еще одно важное преимущество откатных ворот - сложнее "накосячить"
То есть для проема 3.9м и 4.1м створка будет одинаковой, разниться будет лишь параметр D, 200мм и 100 мм соответственно, что в пределах нормы. Для искомого проема 4м прекрытие составит 150мм в каждую сторону, что есть великолепно.
Если ваш проём, допустим, 4.15м, то делаете либо как 4.1 или как 4.2 все равно получится правильно.
Касательно высоты ворот. В базе представлены чертежи для проёма высотой 2м от уровня чистого пола, ежели у вас больше или меньше 2м, то добавите или отнимите от высот каркаса желаемое расстояние и все.
Пример: допустим, высота ваших ворот от нуля (на чертежах - Н) не 2м, а 2,5м.
Прибавляем ко всем высотам 500мм. и получаем: Н=2500мм, Н2=2430мм, Н1=2370, h3=2310мм, h4=2230мм. Все.
Тоже самое с направлением открытия - в базе представлены ворота с открытием влево, если смотреть со двора, с правым открытием все будет зеркально наоборот без изменений конструкции.

Рекомендованная фурнитура для откатных ворот шириной 3-5.4м - SP PREMIER STANDART-500. Ваши ворота будут ездить легко, плавно и бесшумно. Вот так как на
На фурнитуре другого производителя такого плавного и тихого хода ворот может не получиться.
Как говорится, почувствуйте разницу. Ворота на фурнитуре одного широко рекламируемого в интернете бренда:
БЕСПЛАТНЫЕ ЧЕРТЕЖИ ОТКАТНЫХ ВОРОТ:
Чертеж откатных ворот с проёмом 3,0-3,2м (кликните чтобы увеличить)

Чертеж откатных ворот с проёмом 3,3-3,5м (кликните чтобы увеличить)

Чертеж откатных ворот с проёмом 3,6-3,8м (кликните чтобы увеличить)

Чертеж откатных ворот с проёмом 3,9-4,1м (кликните чтобы увеличить)

Чертеж откатных ворот с проёмом 4,2-4,4м (кликните чтобы увеличить)

Чертеж откатных ворот с проёмом 4,5-4,7м (кликните чтобы увеличить)

Чертеж откатных ворот с проёмом 4,8-5,0м (кликните чтобы увеличить)

Чертеж откатных ворот с проёмом 5,2-5,4м (кликните чтобы увеличить)

Чертеж откатных ворот с проёмом 5,5-5,7м (кликните чтобы увеличить)
Обратите внимание начиная с этого размера ворот и далее используется большая направляющая 94х85х5. Рекомендованная фурнитура для ворот шириной 5,4-10м - STRONG-800 или Roll Grand #1 до 800 кг.

Чертеж откатных ворот с проёмом 5,8-6,0м (кликните чтобы увеличить)

Чертеж откатных ворот с проёмом 6,0-10,0м
Для таких ворот также применяются комплекты фурнитуры на 800 кг с направляющей 94х85 и толщина стенки 5мм. Рекомендуем SP RPEMIER STRONG-800 .
Технология и методика остаются прежние. Длину конструкции ворот вычисляем по формуле: Lпроёма*1,5+200мм. Где Lпроёма - ширина проёма в свету, длина противовеса 0,5 от Lпроёма, 200мм - перекрытие проёма полотном по 100мм каждую сторону. Для таких больших ворот противовесную часть крайне желательно делать равной половине проёма. Обязательны диагонали, чтобы створка представляла собой несущую ферму. Приветствуется уменьшение парусности. Также, крайне желателен второй верхний ограничитель с 4-мя роликами, один ставим в начале противовеса, второй - в конце. Вот собственно и все ньюансы.

На практике это выглядит так:

Чертеж-схема установки нащельников откатных ворот:

Остались вопросы? Звоните, и наши менеджеры с удовольствием проконсультируют Вас по всем вопросам! Звоните или закажите консультацию.
Самодельные откатные ворота. Особенности
Откатные ворота начали активно использовать уже более 50 лет назад. Сначала их можно было увидеть в основном при въезде на крупные промышленные и складские территории. Со временем конструкция и фурнитура совершенствовались и становились все доступнее и проще в установке. Постепенно различные варианты раздвижных ворот начали устанавливать на частных территориях, а на сегодняшний день они не редкость и для дачного участка.


В отличие от конструкций подъемного и распашного типа у раздвижных ворот гораздо больше преимуществ:
- Компактность. Это особенно актуально в случаях, когда проезд между соседними участками и место во дворе ограничены. Также откатные ворота практически исключают вероятность повреждения автомобиля створками.
- Износоустойчивость. Основной минус распашных ворот — наличие петель, которые подвержены провисанию под тяжестью створок. У сдвижных ворот такие проблемы отсутствуют за счет равномерного распределения веса конструкции по роликовым опорам.
- Взломостойкость. Грамотно спроектированная и изготовленная система может выдержать таран тяжелого транспорта.
- Защита от парусности. Даже шквальные порывы ветра не наносят повреждения таким конструкциям.
- Доступность автоматических приводов. Мотор и комплектующие автоматических раздвижных ворот дешевле оборудования, которое устанавливается на распашные и подъемные конструкции.
- В зимний период не требуется расчистка снега перед открыванием створки.

Несмотря на все перечисленные преимущества, прежде чем приступить к изготовлению и монтажу ворот нужно учесть множество других факторов.
Сначала необходимо рассчитать ширину пролета для въезда автомобиля. Обычно для частного сектора рекомендуется проем равный 4 метрам: в него свободно может заехать и легковой, и грузовой транспорт. При необходимости ширину въезда можно уменьшить до 3 или увеличить до 6 метров и более.
Свободное пространство вдоль забора со стороны отката створки должна соответствовать:
- для подвесного и колесного видов конструкций – ширине полотна,
- для консольных ворот – на 40-50% больше ширины створки.
Вглубь участка на расстоянии 40-50 см от забора пространство необходимо оставить свободным. Рельеф грунта должен быть максимально ровным, без сильных перепадов, чтобы по ходу движения нижней балки не возникало препятствий.


Если подробно изучить инструкции, подготовить качественные материалы и инструменты, за короткий срок можно сделать крепкие и красивые ворота с индивидуальным дизайном.
Самые простые откатные ворота своими руками. Изготовление несущей рамы откатных ворот
Переходим к основному разделу статьи – как самому сделать откатные ворота для дачи, то есть будем разбираться непосредственно с процессом сборки.
Обратите внимание, что комплектующие для сборки можно закупать отдельно или готовыми наборами. Например, примеры таких готовыхможно найти у производителя ворот и комплектующих «АЛЮТЕХ»
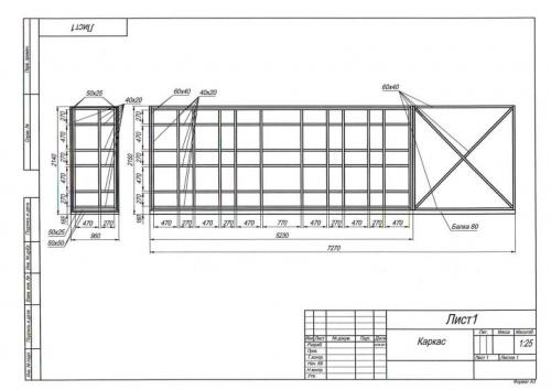
В первую очередь надо изготовить раму. Для этого используется один из видов металлопрофиля. Сегодня мастера свое предпочтение отдают профильной трубе. С ней проще работать, плюс, этот материал обладает невысокой массой, но высокой несущей способностью.
Рама собирается из двух каркасов, вставленных друг в друга. Внешний будет выполнять функции несущей конструкции, внутренний используется для обшивки и увеличения жесткости общего изделия. Поэтому для первого лучше использовать трубу сечением 60х30 мм, для второго 40х20 мм.
Сначала собирается внешний каркас. Перед тем как сварить откатные ворота, имеется в виду каркасную конструкцию, необходимо определиться с размерами. С длиной все понятно, об это было написано выше. Что касается высоты, то оптимальный размерный диапазон – 1,8-2,0 м.
Поэтому профильная труба подрезается под эти размеры с учетом требуемого их количества. Обратите внимание, что нижняя направляющая должна иметь длину – ширина проема, плюс 40%. Верхняя должна равнять ширине проема. Отрезаются и две вертикальные стойки, а также наклонный элемент, который сформирует хвостовик.
Теперь потребуется ровная площадка, где все отрезанные трубы укладываются по месту своего расположения и привариваются друг к другу электросваркой.
Если спросить у мастера, как самому сделать раздвижные ворота, то он ваше внимание обратит на следующие требования к раме:
- все углы конструкции должны быть прямыми;
- само воротное полотно должно быть в одной плоскости без перекосов и искривлений;
- швы делаются сплошными.
Дешевый забор для дачи – оригинальные ограды из дерева, металла и подручных материалов
Внешняя рама готова, можно вваривать внутренний каркас из трубы 40х20 мм. Он усилит конструкцию откатных ворот, увеличит ее жесткость и станет основой для отделки. Здесь есть они момент, который надо принять во внимание.
Если для отделки выбран профнастил, то промежуточные вертикальные элементы должны устанавливаться через промежутки, равные ширине профилированного листа. То есть стыковаться панели профнастила должны на промежуточных стойках. Если один из листов полностью не помещается, то его болгаркой подрезают под требуемый размер.
Если ворота будут обшиваться с одной стороны, то внутренний каркас надо сместить внутрь, то есть в сторону двора. Величина смещения – толщина отделочного материала, к примеру, высота волны профнастила, или толщина досок.
Размеры элементов внутреннего каркаса определяются методом замера рулеткой внутренних плоскостей каркаса внешнего. Ничего рассчитывать не надо. Просто отмерили, перенесли величину на профильную трубу 40х20 мм, отрезали болгаркой. Установили на внутреннюю плоскость наружного каркаса и приварили к нему точечным швом. Конечный результат хорошо виден на фото ниже.
Итак, рама ворот готова, остается приварить к нижнему несущему элементу, по всей его длине, направляющую, которая входит в комплектацию фурнитуры для откатных ворот. Рекомендуется это делать, используя струбцины, чтобы направляющий элемент не повело во время крепления.