Автоматические распашные ворота москва. Распашные ворота
- Автоматические распашные ворота москва. Распашные ворота
- Автоматика для распашных ворот. Линейный привод для распашных ворот: виды и цены
- Автоматические распашные ворота наружу. Какой лучше
- Ворота распашные 4 метра. Распашные ворота своими руками. Схемы, чертежи и описание
- Распашные автоматические ворота своими руками. Автоматические ворота и привод своими руками
Автоматические распашные ворота москва. Распашные ворота
В нашей компании реализуют распашные ворота, которые подходят для оснащения въездов на частные территории: в гаражные кооперативы, на дачные участки, в промышленные зоны и т. д. Основой для производства ограждений служит алюминиевая рама, которая заполняется различными видами сэндвич-панелей. Основные отличия материалов заключаются в разной толщине и фактуре поверхности. В зависимости от типа конструкции, могут иметь одну или две створки, которые открываются внутрь или наружу. Своим клиентам мы также предлагаем функциональные модели с калиткой, лучшие виды автоматических систем, которые подбираются под конкретное ограждение.
Примеры реализованных проектов
Мы успешно выполняем самые сложные проекты наших заказчиков. У нас можно купить практичные и красивые ворота, которые не только обеспечат безопасность, но и украсят вашу территорию.
Автоматика для распашных ворот. Линейный привод для распашных ворот: виды и цены
Это самый распространенный тип автоматики для распашных ворот. При установке этой системы агрегат может находиться как внизу створки, так и в центре или вверху, это зависит исключительно от пожеланий хозяина.
В этой системе используется червячный редуктор (поэтому его еще называют «червячным» приводом) и двигатель, который работает от блока. Ток на двигатель подается или постоянный 24 В, или переменный 230 В.
Плюсов у этой системы достаточно много. К ним относятся и небольшая стоимость (по сравнению с другими), и возможность установки системы при очень узких столбиках, к которым крепятся створки (для некоторых покупателей это единственный доступный вид автоматики).
Неоспоримое достоинство – замедление хода створки в конце открывания и закрывания , что помогает дольше сохранять в рабочем состоянии не только двигатель с редуктором, но и блок.
К тому же, есть система аварийного открытия вручную при отсутствии электроэнергии.
С помощью линейного привода ворота можно открывать как внутрь двора, так и наружу, но распахиваются они максимум на 90 градусов. И это уже относится к минусам, так как при открытии наружу существенно сужается проезд.
Важно! Данный привод со «средними показателями» подходит для ворот с максимальным весом створки 600 кг и максимальной ее шириной 3 м. Вес самого устройства составляет восемь с половиной килограмм, полное открывание происходит за 16 секунд.
При ширине более трех метров (до 4,5 м) стоит использовать телескопический линейный агрегат (вес до 600 кг, полное открывание 17 секунд) или гидравлический линейный привод (вес до 900 кг, полное открывание 30 секунд).
Гидравлический также легко выдерживает большие нагрузки и частое использование, поэтому для ворот на производстве лучше выбрать его.
Стоимость линейной автоматики
Самые распространенные виды линейного привода это WINGO, MOBY и TOONA от итальянских разработчиков компании Nice. Цена на эти комплекты колеблется от 200 до 1300 евро, она во многом зависит от комплектации (минимальная, максимальная) и технических показателей.
В состав стандартного комплекта входят двигатель с блоком управления, пара приводов, пульт или кнопка, несколько фотоэлементов.
Сравним три вида линейной автоматики по характеристикам, от которых зависит стоимость:
| Название | WINGO | MOBY | TOONA | 
| Мощность | 50 – 130 Вт | 120 – 230 Вт | 48 – 220 Вт | 
| Вес створки | 200 кг | 200 – 300 кг | 200 – 750 кг | 
| Ширина створки | 2 – 3,5 м | 2 – 3,5 м | 3 – 7 м | 
| Температура | -20 — +50 | -20 — +50 | -20 — +50 | 
| Цена | 385 – 597 евро | 379 – 983 евро | 440 – 1211 евро | 
Обратите внимание на температурный режим, в котором допускается использование линейного привода.
Учитывая наши разнообразные климатические условия, не для каждого подойдет линейная автоматика, если же других вариантов нет, на самые сильные морозы ее можно отключать.
Автоматические распашные ворота наружу. Какой лучше
Нельзя сказать, что один механизм автоматического открывания ворот лучше другого, у каждого найдутся свои плюсы и минусы.
Линейный – самый доступный по цене и единственно пригодный для установки на узкие опорные столбы. Но у него есть несколько недостатков:
- медленная работа – на открытие и закрытие створок требуется довольно много времени, так как в конце движения происходит замедление;
- сам механизм за счет своего объема сужает свободный просвет ворот;
- открытие происходит не более чем на 90 градусов;
- чтобы створки плотно закрывались и стопорились в определенной точке, механизм нужно дорабатывать.
Автоматическое открывание ворот с помощью более дорогого рычажного механизма происходит плавнее и быстрее, а угол открытия увеличен до 120 градусов. Он выдерживает повышенные нагрузки, может устанавливаться на створки с большой площадью и весом, но для монтажа силового блока нужна достаточная площадь опоры, на столб из круглой или профильной трубы его не установить.
Самым долговечным и мощным считается подземный механизм с рычажным приводом, но для его надежной работы необходима качественная гидроизоляция блока. Его можно ставить даже на прозрачные и секционные 3D-ворота, не афишируя присутствие автоматики. Но и заплатить за все эти плюсы придется немало.
Особенности распашных ворот с автоматикой
Любая автоматика для ворот – распашных, откатных или подъемных – требует подключения к электрической сети. Оно выполняется проводами в защитной оболочке – гофрированной трубе или кабель-канале. Лучше всего прокладывать их под землей.
Механизм открывания распашных ворот имеет свои особенности, часть которых выгодно отличает их от автоматики других типов.
Достоинства
Механизмам, отвечающим за автоматическую работу распашных створок, свойственна простота конструкции, неприхотливость в эксплуатации и долговечность. Он легко справляется с нагрузками, присущими частным владениям. А для промышленных объектов с увеличенной интенсивностью движения транспорта подбирают устройства с усиленными элементами.
К плюсам таких систем относятся:
- возможность установки на ограниченной площади на участках, где невозможно поставить откатные ворота;
- возможность открывания ворот как во двор, так и на улицу;
- простота монтажа и самих ворот, и механизмов;
- доступная стоимость автоматики и её установки;
- возможность использования для створок из любых материалов;
- возможность размещения в любой части створки.
Как правильно сварить гаражные ворота: советы профессионалов
Недостатки
Механизм автоматического открывания ворот распашных очень чувствителен к ветровой нагрузке, особенно к шквалистым порывам ветра. Этот момент нужно учитывать, предусматривая дополнительные упоры и выбирая устройства с запасом прочности. Есть у них и другие минусы.
- Оборудование может заедать и выходить из строя при изменении геометрии ворот – их провисании, деформации петель, усадке столбов.
- Площадка перед воротами всегда должна быть чистой и свободной от любых препятствий.
- При использовании устройств без концевого выключателя требуется установка опор для створок.
- Для долгой и бесперебойной работы механизм для открывания ворот необходимо регулярно осматривать, смазывать.
- На открывание и закрывание створок требуется в среднем 16-20 секунд, что может раздражать людей, не отличающихся терпеливостью.
Особенности выбора
Выбирая механизм открытия ворот распашных, приходится учитывать немало важных факторов. Без этого вы либо просто не сможете установить его, либо он раньше времени выйдет из строя. Основные критерии выбора следующие:
- вес створки;
- конструкция створок, их парусность, зависящая от степени заполнения (на глухие ворота ветер воздействует с максимальной силой);
- направление открытия распашных ворот с электроприводом – наружу или внутрь;
- мощность механизма, допустимая нагрузка;
- температурный диапазон работы, устойчивость к морозам;
- расстояние от столба до створки (для линейных механизмов);
- габариты конструкции, их влияние на размер открытого проема;
- возможность управления воротами вручную при отключении электроэнергии;
- DoorHan – самый известный отечественный бренд рычажных и линейных механизмов.
Стоимость оборудования и его марка тоже имеют значение. Лучше приобрести качественный линейный механизм, чем самый недорогой рычажный, несмотря на то, что последний считается более надежным.
Как сделать засовы и запоры для ворот – инструкция
Марки и производители
Решив сделать автоматическое открытие ворот, вы не испытаете проблем с выбором подходящего оборудования – его выпускают как наши, так и зарубежные производители. Перечислим самые популярные марки и их особенности.
Ворота распашные 4 метра. Распашные ворота своими руками. Схемы, чертежи и описание
Как театр начинается с вешалки, так частная территория начинается с ворот, а распашные ворота – идеальная конструкция, позволяющая беспрепятственно въезжать-выезжать автомобилю и укрывающая территорию от посторонних глаз.
Преимущества подобных запорных конструкций бесспорны: долговечность, надежность, удобство использования, простота конструкции, функциональность, универсальность. Однако есть и минусы, о которых необходимо упомянуть – обязательное наличие свободной площади, а также сезонные неудобства в виде обязательной расчистки от снега.
На строительном рынке масса разнообразных предложений по продаже и установке распашных ворот, однако, подобные запоры можно установить самостоятельно, своими руками. Как? Сейчас подробно разберемся.
1.Распашные ворота своими руками. Фото. Схема.
1.1.Ворота с калиткой.
1.2.Конструкция распашных ворот.
1.3.Изготовление створок.
1.4.Изготовление запора.
1.5.Подготовка фундамента.
1.6.Установка опор.
1.7.Как рассчитать размер распашных ворот.
2.Материал для изготовления ворот.
2.1.Металлические ворота.
2.2.Профнастил.
2.3.Сэндвич-панели.
2.4.Поликарбонат.
2.5.Деревянные ворота.
3. Чертежи, схемы и эскизы для изготовления распашных ворот своими руками.
4. Гаражные распашные ворота.

Распашные ворота своими руками. Фото. Схема
Нельзя сказать, что ограждение территории и ворота вызывают большой интерес у всех, но для владельцев частных домов и территорий вопрос распашных ворот достаточно актуален. А некоторым хочется углубиться в эту тему и изучить все подробности, чтобы сделать распашные ворота своими руками.
В интернете можно найти огромное количество фото, видео, чертежей, схем и описаний конструкции, что не совсем удобно: слишком сложно вычленить и собрать воедино точную информацию, учитывая, что для каждого конкретного участка необходима субъективная конструкция.

Попробуем вычленить общий алгоритм, служащий базисом для тех, кто решил заняться изготовление распашных ворот своими руками.
Перед началом работ и составлением чертежей надо четко определиться с выбором способа открывания ворот и калитки, просчитать и учесть все нюансы, подобрать подходящую именно вашему участку и дому конструкцию распашных ворот и определиться с материалом, из которого они будут сделаны.
Ворота с калиткой
Максимально простой и удобный вариант, подходящий практически под любой участок и архитектурное решение дома, – распашные ворота со встроенной калиткой. Конструкция таких ворот проста и легка в исполнении своими руками даже дилетанта.
Как видно на схеме, все совершенно просто: двери ворот и калитки установлены на обычные петли, которые крепятся к опорным столбам. Стороны, в которую будут открываться створки распашных ворот, а также дверь калитки можно варьировать путем монтажа петель.

Конструкция распашных ворот
Конструкция распашных ворот не меняется на протяжении уже многих сотен лет. Вносятся современные детали, используются высококачественные материалы, но основа неизменна.
Стандартная конструкция распашных ворот. Подобный вариант может быть одностворчатым (в последнее время редко используется), двустворчатым, состоящим из двух одинаковых по параметрам створок, или двухстворчатым с калиткой.
Складная конструкция ворот – идеально подходит для широких проемов. Одна или две створки ворот складываются гармошкой. Возможен вариант, когда одна створка стандартна, а вторая может складываться.

В любом случае, совершенно не важно, какую конструкцию выбирать. Главное – правильная установка, по правильно составленным чертежам.
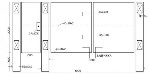
Обсуждая конструкцию, важно упомянуть неизменные детали распашных ворот:
- карскас или рама, которая может быть деревянной или металлической;
- наполнение створок распашных ворот (сэндвич-панели, профилированный лист, экструдированные панели или ковка);
- стальные стойки (основная опора для монтажа петель), комплект петель, ручка для механического открывания-закрывания, боковые и центральный упоры, засов;
Изготовление створок
Большинство изготавливаемых створок в основе своей имеют металлические рамы, выполненные из профильной трубы или металлического уголка. А вот обшивка может быть абсолютно разной, в зависимости от предпочтений владельца и его финансовых возможностей. Но об этом мы поговорим позже.
Распашные автоматические ворота своими руками. Автоматические ворота и привод своими руками
Главным достоинством автоматических распашных ворот является возможность дистанционного открытия-закрытия, то есть при помощи пульта управления. Комфорт автоматизации особенно ощущается в зимнее время, когда хозяину домовладения или гостям не приходится контактировать с холодной конструкцией.
Установить электропривод на ворота не просто, но если учесть створки касательно высоты столбов и применить створочные упоры, электродвигатель станет залогом успешного функционирования всей конструкции.
Комплект автоматики обычно содержит несколько устройств:
фотоэлементы – 1 уп.;
блок управления – 1 шт.
Электропривод для ворот, собранный своими руками, прочен, долговечен и скор в эксплуатации. Он открывает ворота примерно за 15 секунд.

Пример электропривода для ворот
Но если по ходу движения створок появится какое-либо препятствие, автоматика перестанет работать. Отсутствие преград перед проемом – важное условие долговременной службы ворот. Малейшая помеха приведет к сбою в работе устройства и заклинит створки.
При сборке самодельного привода используют механизм спутниковой антенны – его червячная передача заменяет полноценный электропривод. По сравнению с магазинным вариантом поворотный двигатель более экономичен, т. к. питается от напряжения 36 В. Магазинная автоматика тянет 220 В.
Для сборки электропривода своими руками, при помощи которого будут открываться ворота, необходимо запастись парой рабочих приводов с длинными штоками, пультом и трансформатором с диапазоном мощности 36 – 40 В. Пульт понадобится для открытия-закрытия конструкции. Он должен работать в радиусе 50 м. Еще понадобятся два брелка для охранных устройств и токовое реле. Без него автоматика сломается или перегреется.
Для самостоятельной установки электропривода нужен инструментарий:
Автоматические врата отличаются от распашных тем, что имеют электропривод. Устройство выпускают в двух вариантах – линейном и рычажном.
Какой же из них выбрать? Подходящую автоматику определяют по замеру промежутка, разделяющего внутреннюю сторону столба и петлю. Для значения до 1,5 см используют дешевый линейный привод. Для больших показателей вплоть до 3 см подходит рычажный тип.
Определившись с приводом, выбирают комплект. При этом руководствуются шириной створки и возможными ветровыми колебаниями. Например, средняя ветровая нагрузка на местности равняется 40 кг/ м. Для ворот из профнастила со створками 2 х 2 м нагрузка составляет 160 кг (2 х 2 х 40). К этому значению приплюсовывают действительный вес одной створки (допустим, 100 кг). Итого – 260 кг. Учитывая запас прочности, привод подбирают на створки весовой категории 400 – 800 кг.

Комплектующие для автоматических откатных ворот
Также рекомендуется учесть интенсивность открывания, т. е. сколько машин пропустит конструкция за 1 час. Этот параметр прописан в техпаспорте. Указан он в процентах.
При установке электропривода применяют его так. Если створка открывается за 15 секунд, то на закрытие уходит такое же время. Итого 30 секунд. Если прописанная в техдокументации интенсивность составляет 25 %, их выделяют из количества минут в часе (60 х 25 % = 15). Превратив 15 минут в секунды, получаем значение 900. Делим его на 30 и получаем 30. Таким образом, в течение каждого часа ворота проделают свою работу 30 раз. Для частного дома такая пропускная способность может оказаться лишней, а для солидного предприятия – слабоватой.
Важным моментом является легкость движения створок. Когда столбы и петли стоят идеально ровно и петли хорошо смазаны, ворота будут работать исправно. Но зимние погодные условия способны создавать дополнительное сопротивление. Отсюда вывод – привод надо брать с запасом мощности.
 
                 
                 
                 
                 
                 
                 
                 
                 
                 
                 
                