Противопожарные шторы без орошения. Что это такое?
- Противопожарные шторы без орошения. Что это такое?
- Противопожарные шторы это. Что такое противопожарные шторы и ворота? на сайте Недвио
- Противопожарные шторы алютех. Противопожарные системы: особенности и назначение
- Противопожарная штора ei60. Противопожарная штора EI 60
- Противопожарная штора с калиткой. Противопожарные шторы: назначение и характеристики
Противопожарные шторы без орошения. Что это такое?
Автоматические противопожарные шторы – довольно новое слово в деле борьбы с огнем. Их появление во многом обусловлено тем, что архитекторы, проектировщики стали создавать здания грандиозных объемов как общественного, так и промышленного назначения с многочисленными открытыми проемами на всю высоту строений, большой площади в стенах, перекрытиях; что сделало невозможным применение традиционных, стандартных решений по заполнению противопожарных преград.

Противопожарные шторы
Связано это с тем, что они имеют довольно небольшой диапазон возможных геометрических размеров, веса, массы конструкции, позволяющей закрыть их быстро, даже с электрическим приводом, при возникновении пожара в защищаемом или смежных помещениях. Например, у большинства производителей разумный предел типоразмеров под заказ заканчивается на двустворчатых противопожарных дверях – 2,1 х 2,2; воротах – 4,8 х 4,8; 4 х 6. Шторы такого же назначения фактически не имеют ограничений по ширине/высоте. Кроме того, они могут быть как вертикальными, так и горизонтальными, выполняться с орошением полотна водой для дополнительной огнезащиты или без него.
Их сейчас широко рекламируют, называя то просто отличной заменой традиционным конструкциям по защите проемов в преградах капитального характера, то и вовсе инновационным прорывом в деле защиты от огня при возведении грандиозных по замыслу, сложности архитектурных, планировочных решений зданий/сооружений с делением их на пожарные отсеки, невидимыми до возникновения критической ситуации вертикальными и горизонтальными шторами, защищающими смежные помещения не только от открытого огня, интенсивного теплового воздействия; но и от ядовитых продуктов горения.
Так ли это все обстоит на самом деле, каковы реальные преимущества и недостатки у этой новинки – стоит разобраться детально.
Противопожарные шторы это. Что такое противопожарные шторы и ворота? на сайте Недвио
Дмитрий Крылов
Эксперт в загородной недвижимости и строительстве. 29 лет прожил в частных домах и живу сейчас
Вопрос от читателя нашего портала: Что такое противопожарные шторы и ворота?
Ответ: Говоря простыми словами, это раздвижные ворота или рольставни с огнестойким полотном, способным выдержать даже сильный пожар.
Огнестойкость полотна оценивается по двум параметрам, которые измеряют в минутах:
- I – время, за которое шторка сохраняет свои теплоизолирующие параметры;
- E – время, за которое шторка сохраняет свою целостность, то есть ее предел огнестойкости.
Чем выше значения этих параметров, тем более огнестойкий материал.
Противопожарные ворота и шторы сегодня широко используются при проектировании и установке в здания и сооружения различного назначения. Это, в первую очередь, складские и производственные объекты, офисные здания, парковки. Промышленные здания должны соответствовать очень строгим требованиям противопожарной защиты. Хотя, нередко установку огнестойких роллетных конструкций заказывают владельцы частных домов.

В отличие от противопожарных дверей, огнестойкие ворота и шторы занимают значительно меньше места и являются эффективным решением для разграничения пожарных зон. Это универсальная система, предоставляющая архитекторам максимально возможную свободу в дизайне, а заказчикам — хорошо выглядящее и эффективное решение пожарной безопасности.
Вот еще несколько преимуществ в пользу выбора противопожарных штор:
- Разделение здания на зоны безопасности, что предотвращает распространение огня и дыма, например, между этажами или даже объектами или их частями;
- Эффективная огнезащита фасадов;
- Возможность обеспечения противопожарной защиты больших проемов, защитить которые с помощью традиционных решений технически невозможно или невыгодно ( противопожарные завесы стоят намного дешевле дверей и других вариантов защиты от огня);
- Легкость конструкции и низкий вес позволяет установить противопожарные шторы практически в любых зданиях, а также в оконных проемах;
- Возможность заказать размер шторы по индивидуальному заказу клиента;
- Противопожарные шторы могут закрывать очень большие поверхности: до 20 м в длину и 6 м в высоту.
Конструкция противопожарной завесы состоит из 4-х основных элементов:
- Секции (шторки, роллеты);
- Вал;
- Направляющие;
- Привод.
Каждая секция пожарной завесы наматывается на вал и удерживается тормозом.
Противопожарная завеса изготовлена из специальной ткани с покрытием, содержащей стекловолокно, дополнительно усиленной проволокой из нержавеющей стали. Эта ткань может быть покрыта с одной или двух сторон вспучивающимся огнезащитным составом с содержанием углеродного волокна. Корпус вала изготовлен из оцинкованных стальных листов.
В обычных условиях использования помещений такие ворота или шторки часто находятся в открытом положении, параллельно стене, что позволяет свободно пользоваться пространством под ними: открывать окна, перемещаться между ними как людьми, так и вилочным погрузчикам или автомобилям. Однако, в случае возникновения пожара, такие шторки и ворота автоматически закрываются, предотвращая распространение огня наружу, на соседние помещения.
Огнестойкие ворота и шторы очень эффективно препятствуют распространению огня, однако нужно учитывать, что они по умолчанию не защищают от дыма. Чтобы конструкция была дымонепроницаемой, на них устанавливают дополнительное оборудование. Усиление ворот от взлома также является опцией у многих производителей.
Выбирая противопожарные ворота и шторы, вы можете обеспечить лучшую безопасность вашего коммерческого здания или частного дома.
Была ли эта статья для вас полезной? Пожалуйста, поделитесь ею в соцсетях:
Не забудьте добавить сайт Недвио в Закладки. Рассказываем о строительстве, ремонте, загородной недвижимости интересно, с пользой и понятным языком.
Предыдущая статья
Что такое СТУ?Следующая статья
Автополив газона. В чем его плюсы? Стоит ли делать?Противопожарные шторы алютех. Противопожарные системы: особенности и назначение
Применение противопожарных ворот и штор широко. Их используют в многочисленных промышленных и административных учреждениях, в складских и производственных помещениях, общественных заведениях, супермаркетах и др.
В обычном состоянии шторы и ворота всегда остаются открытыми, а при поступлении тревожного сигнала моментально закрываются и не дают распространиться дыму и огню по всей территории объекта в течение определенного промежутка времени. Тем самым возгорание локализуется. Благодаря противопожарным системам урон от пожара можно свести к минимуму, они позволяют сделать эвакуацию людей безопасной, а доступ сотрудников МЧС в помещение беспрепятственным.
У всех противопожарных штор и ворот есть крайний предел огнестойкости, обозначающийся аббревиатурой EI, где «Е» означает, насколько сохраняется целостность строительной конструкции, а «I» указывает способность теплоизоляции по истечении того или иного промежутка времени.
Группа компаний «АЛЮТЕХ» представляет к реализации Fire Marc — противопожарные шторы и ворота польской компании, специализирующейся на производстве противопожарных систем более двадцати лет. Продукция была удостоена многочисленных наград на различных выставках Европы. Во многих европейских странах и странах СНГ на ряде объектов установлена именно система Fire Marc. На территории России организовано совместное производство противопожарной системы в 2013 году в Московской области.
Ворота Fire Marc установлены на следующих объектах:
- в России: Университет МГИМО, Завод DANONE, Гипермаркет METRO;
- в Польше: Аэропорт и Оперный театр в Кракове, Варшавский Драматический театр и Научный центр Коперника, футбольные стадионы в Кракове и Варшаве.
Противопожарная штора ei60. Противопожарная штора EI 60

Артикул:
art5Цена:
от 6720 руб./кв.м.
Предел огнестойкости:
EI 60
Модель:
FireShield-EI60
Гарантия до 10 лет*
Доставка по Москве и России
Установка и монтаж
Категория:
Противопожарные шторы
Автоматические противопожарные шторы
Противопожарные шторы на окна
Противопожарные шторы с лазейкой
Рулонные противопожарные шторы
Противопожарные экраны
Назначение
Автоматические противопожарные шторы типа FireShield-EI60 (без орошения) предназначены для предотвращения распространения пожара из одной части здания, сооружения, строения в другую или между зданиями, сооружениями, строениями.
В соответствии с Федеральным законом №123-ФЗ огнезащитные шторы являются как заполнением противопожарных преград, так и непосредственно противопожарными преградами.
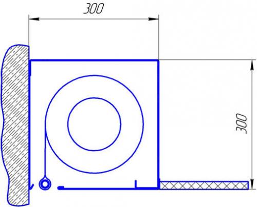
Конструктив
Основными конструктивными элементами противопожарных штор являются:
- Короб квадратного сечения (300х300).
- Намоточный вал.
- Полотно.
- Направляющие боковые шины.
- Электродвигатель, 220В.
- Блок управления с Н/З «сухим контактом».
Короб

Короб противопожарных штор состоит из гнутых, из оцинкованной листовой стали толщиной 1,5мм, панелей. Для построения длинных коробов штор, панели состыковываются друг с другом. Оба конца короба закрыты крышками, которые герметично замыкают контур. Боковые консоли служат также для восприятия крутящего момента мотора.
Полотно

- Полотно противопожарной шторы изготовлено из стекловолокна и армирована тонкой нержавеющей проволокой, наматывается на стальной вал, размещенный в корпусе из листовой стали.
- Внутренний слой полотна состоит из термоактивных композиционных материалов, которые при 160-180 градусах Цельсия расширяются до 50 мм и обеспечивают надежную защиту от теплового потока.
- На нижней кромке полотна закреплена отсекающая шина, которая держит полотно в развернутом состоянии, в верхнем положении утоплена в углублении корпуса.
Электродвигатели
Внутривальный трубчатый мотор, 220В.
Опускание и поднятие от 220В.

Блок управления

- Питание 220В.

Противопожарная штора с калиткой. Противопожарные шторы: назначение и характеристики

Государство предъявляет список требований к оборудованию опасных мест. Предписания о соблюдении правил безопасности установлены в отношении автомобильных стоянок, зданий общественного назначения, офисных помещений, промышленных и производственных точек.
Все перечисленные объекты оборудуются противопожарными средствами. В том числе, противопожарные шторы, которые замедляют распространение дыма и пламени.
Противопожарные шторы включают в себя полотно с армирующей стальной сеткой. Укрепленная ткань имеет внешний слой, пропитанный огнезащитными веществами. Огнемататериал — внутренняя прослойка шторы. Снаружи экран покрывается полиэфирными красками любым цветом по шкале RAL.
С помощью противопожарных штор можно сократить вероятность наступления человеческих жертв и потери дорогостоящего имущества после возникновения пожара.
Защитные конструкции располагают в оконных и дверных проемах. Они опускаются после уведомления пожарной сигнализации. Полотно выпускается из негорючего материала, выдерживающего действие предельных температур.
Предназначение противопожарных штор
Полотно производят из кремнеземной нити. В составе 95% диоксида кремния. Материал выдерживает нагревание до 1200 ⁰С. После взаимодействия с огнем отсутствуют токсичные испарения в атмосферу. В числе конструктивных элементов завесы — короб для электропривода, отсекающая и направляющие шины, а также непосредственно полотно с армированной нитью.
Противопожарные шторы или завесы — относительно новое решение в защите от возгораний. Они используются в просторных помещениях в качестве преграды для пламени и высоких температур. Позволяют защитить масштабные объекты, включая офисы, складские и торговые площади.
В составе конструкции подъемный механизм (электропривод) и автономный источник питания. Завесы также могут работать в ручном режиме при полном отсутствии питания.
Степень защиты штор
Производители выпускают противопожарные шторы разной степени устойчивости. Маркировка EI-15 и более сообщает о времени сохранения защитных характеристик. Наиболее популярной считается противопожарная штора EI 60 , которая способна удерживать открытое пламя в течение 1 часа.
Цифра, указываемая после букв EI означает кол-во минут, в течение которых шторы сохраняют свои защитные свойства.
По признаку назначения защитные преграды классифицируют на:
- Огнезащитные EI-60, EI-120 и EI-180 . Конструкции предназначены для сопротивления открытому пламени в течение заданного времени. Они полностью перекрывают комнату по высоте.
- Дымозащитные шторы E-120 . Необходимы для блокировки ядовитых продуктов горения. Устанавливаются в верхней части здания. Их монтируют рядом с системами дымоудаления. Не закрывают помещение по высоте до конца.
Характеристики штор
Производя защитное полотно для штор, мы обращаем внимание на соответствие характеристик:
- Прочность и легкость материала;
- Эластичная и гибкая структура;
- Стабильность под влиянием механического действия, атмосферных явлений;
- Низкая теплопроводность;
- Химическая стойкость;
- Экологичность, отсутствие вредных выделений при взаимодействии с возгоранием;
- Надежная система автоматического опускания.
Типы штор
В зависимости от предназначения шторы классифицируют на:
- Противодымные . Не дают распространяться токсичным продуктам горения;
- Огнезащитные . Служат для сокращения площади возгорания, профилактики движения огня в соседние квартиры или помещения.
Управление шторами
- Ручное управление;
- Автоматическое управление. Автоматически опускается при сигнале противопожарной системы. Если произошло отключение электрической энергии в связи с чрезвычайной ситуацией, система может активироваться через источник автономного питания. Именно поэтому полезно устанавливать на особо опасных объектах вспомогательные аккумуляторы.
Нормы и правила
При изготовлении систем для преграждения пути огню и дыму производители придерживаются рекомендаций СНиП и ГОСТ. В них приводятся описания и критерии оценки противопожарных преград.
В положениях ГОСТ Р 53307-2009 указана техника проверки на огнестойкость.
ГОСТ Р 53303-2009 регламентирует анализ изделий на дымогазонепроницаемость.
Методика исследования на огнестойкость приведена в ГОСТ Р 53305-2009.
Формы и размеры
Универсальные противопожарные шторы изготавливаются по индивидуальным и стандартным параметрам. Ширина и высота полотна определяется с учетом площади помещения.
Рекомендуется придерживаться модельного принципа и располагать отдельные завесы последовательно. Это поможет огородить объекты разной высоты и длины.
Стандартная толщина полотна достигает 3-7 мм. Оно укреплено стальной жаропрочной нитью. Внедрены системы орошения, позволяющие повысить предел огнестойкости.