Металлические ворота с калиткой. Декоративные калитки и ворота
- Металлические ворота с калиткой. Декоративные калитки и ворота
 - Ворота распашные металлические с калиткой своими руками. Распашные ворота своими руками. Схемы, чертежи и описание
 - Металлические ворота из профнастила. Распашные
 - Железные ворота своими руками. Установка дачных металлических распашных ворот своими руками (с фото)
 
Металлические ворота с калиткой. Декоративные калитки и ворота
Такие модели обычно устанавливаются, если высота дома небольшая. Ворота и калитка несут сугубо декоративную роль, они не защищают двор от нежелательных взглядов и проникновения. Такие конструкции принято устанавливать в охраняемых коттеджных поселках или на внутренних территориях. Декоративные ворота отличаются изяществом, в них присутствуют интересные дизайнерские черты.
Глухие ворота с калиткой
Такая конструкция считается очень удачной для загородных участков. Ворота отличаются большой высотой и отсутствием различных перфораций. Подобного рода модели предпочитают «замкнутые» люди, которые не любят идти на контакт с окружающими. Даже такие конструкции могут отличаться дизайном, быть эксклюзивными и неповторимыми в своем роде. Полотна ворот часто украшают кованными элементами или же оставляют нетронутыми, при этом акцентируют внимание на величественных столбах, удерживающих конструкцию.
Ворота распашные металлические с калиткой своими руками. Распашные ворота своими руками. Схемы, чертежи и описание
Как театр начинается с вешалки, так частная территория начинается с ворот, а распашные ворота – идеальная конструкция, позволяющая беспрепятственно въезжать-выезжать автомобилю и укрывающая территорию от посторонних глаз.
Преимущества подобных запорных конструкций бесспорны: долговечность, надежность, удобство использования, простота конструкции, функциональность, универсальность. Однако есть и минусы, о которых необходимо упомянуть – обязательное наличие свободной площади, а также сезонные неудобства в виде обязательной расчистки от снега.
На строительном рынке масса разнообразных предложений по продаже и установке распашных ворот, однако, подобные запоры можно установить самостоятельно, своими руками. Как? Сейчас подробно разберемся.
1.Распашные ворота своими руками. Фото. Схема.
1.1.Ворота с калиткой.
1.2.Конструкция распашных ворот.
1.3.Изготовление створок.
1.4.Изготовление запора.
1.5.Подготовка фундамента.
1.6.Установка опор.
1.7.Как рассчитать размер распашных ворот.
2.Материал для изготовления ворот.
2.1.Металлические ворота.
2.2.Профнастил.
2.3.Сэндвич-панели.
2.4.Поликарбонат.
2.5.Деревянные ворота.
3. Чертежи, схемы и эскизы для изготовления распашных ворот своими руками.
4. Гаражные распашные ворота.

Распашные ворота своими руками. Фото. Схема
Нельзя сказать, что ограждение территории и ворота вызывают большой интерес у всех, но для владельцев частных домов и территорий вопрос распашных ворот достаточно актуален. А некоторым хочется углубиться в эту тему и изучить все подробности, чтобы сделать распашные ворота своими руками.
В интернете можно найти огромное количество фото, видео, чертежей, схем и описаний конструкции, что не совсем удобно: слишком сложно вычленить и собрать воедино точную информацию, учитывая, что для каждого конкретного участка необходима субъективная конструкция.

Попробуем вычленить общий алгоритм, служащий базисом для тех, кто решил заняться изготовление распашных ворот своими руками.
Перед началом работ и составлением чертежей надо четко определиться с выбором способа открывания ворот и калитки, просчитать и учесть все нюансы, подобрать подходящую именно вашему участку и дому конструкцию распашных ворот и определиться с материалом, из которого они будут сделаны.
Ворота с калиткой
Максимально простой и удобный вариант, подходящий практически под любой участок и архитектурное решение дома, – распашные ворота со встроенной калиткой. Конструкция таких ворот проста и легка в исполнении своими руками даже дилетанта.
Как видно на схеме, все совершенно просто: двери ворот и калитки установлены на обычные петли, которые крепятся к опорным столбам. Стороны, в которую будут открываться створки распашных ворот, а также дверь калитки можно варьировать путем монтажа петель.

Конструкция распашных ворот
Конструкция распашных ворот не меняется на протяжении уже многих сотен лет. Вносятся современные детали, используются высококачественные материалы, но основа неизменна.
Стандартная конструкция распашных ворот. Подобный вариант может быть одностворчатым (в последнее время редко используется), двустворчатым, состоящим из двух одинаковых по параметрам створок, или двухстворчатым с калиткой.
Складная конструкция ворот – идеально подходит для широких проемов. Одна или две створки ворот складываются гармошкой. Возможен вариант, когда одна створка стандартна, а вторая может складываться.

В любом случае, совершенно не важно, какую конструкцию выбирать. Главное – правильная установка, по правильно составленным чертежам.
Обсуждая конструкцию, важно упомянуть неизменные детали распашных ворот:
- карскас или рама, которая может быть деревянной или металлической;
 - наполнение створок распашных ворот (сэндвич-панели, профилированный лист, экструдированные панели или ковка);
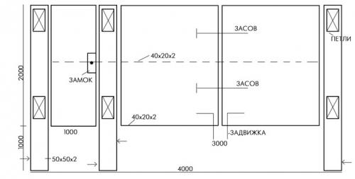
 - стальные стойки (основная опора для монтажа петель), комплект петель, ручка для механического открывания-закрывания, боковые и центральный упоры, засов;
 
Изготовление створок
Большинство изготавливаемых створок в основе своей имеют металлические рамы, выполненные из профильной трубы или металлического уголка. А вот обшивка может быть абсолютно разной, в зависимости от предпочтений владельца и его финансовых возможностей. Но об этом мы поговорим позже.
Металлические ворота из профнастила. Распашные
Распашные калитки и ворота из металлопрофиля являются простыми в изготовлении. Главное, чтобы делал их квалифицированный сварщик и владелец участка выбрал подходящий металлический профильный лист.
Створки из металлопрофиля
Возможность изготовления ворот для входа своими руками – это одно из достоинств таких конструкций. Другим немаловажным фактором является дизайн. Ворота, которые украшают коваными узорами, смотрятся богато, как будто взяты с картинки. Однако по стоимости изготовления они будут дороже в несколько раз по сравнению с изготовленными из обычного металлопрофиля.
Распашные врата могут быть сделаны из дерева. Такие конструкции похожи на старинные ворота. Смотрятся они мощно и величаво. Если владелец имеет хороший достаток, то может заказать их изготовление из древесины ценных пород.
Установка конструкции из металлопрофиля
Самые простые, дешевые – это стальные конструкции из трубчатого профиля. Их отличает прочная рама, высокое качество, конкурентоспособная цена.
Недостатком этого вида створок является то, что они занимают много места при открытии.
А в случае с коваными, пространство участка (например, сад, расположенный напротив входа) будет легко просматриваться чужими людьми.
Распашная конструкция из металлопрофиля
Поэтому многие владельцы частных домов при изготовлении конструкций с орнаментом из кованого металла дополнительно заказывают обшивку одной части листами из металлопрофиля. Обшиваются врата профилем для сокрытия обзорного пространства участка от посторонних глаз.
Еще один недостаток таких ворот и калиток – это постоянное очищение от снега пространства рядом со входом в зимний период. Заборы с распашными конструкциями из металлопрофиля на входе не должны близко прилегать к дороге, если створки открываются наружу.
На фото изображена конструкция после монтажа.
Железные ворота своими руками. Установка дачных металлических распашных ворот своими руками (с фото)
Для установки металлических распашных ворот стойки сооружают на фундаменте, заложенном ниже глубины промерзания грунта. Обычно для установки столба бурят шурф глубиной 1,5—1,7 м. После того как застынет бетон, можно приварить к опорам петли и навесить створки.


В распашных металлических воротах для дачи створки навешивают на петли амбарного типа, которые крепят к воротным столбам по краям проема. В зависимости °т тяжести ворот к каждой стойке приваривают 2 или 3 петли. Створки Распахивают на улицу или во двор в зависимости от места крепления Петель и наличия свободного пространства перед забором или за ним.
Так как труба рамы имеет толщину стенки 1,5—2 мм, для усиления крепления под каждую нижнюю часть цилиндрической воротной петли нужно приварить отрезок уголка с полкой 25 мм. Такое же усиление потребуется и для стойки, если она сделана из профилированной трубы с толщиной стенки 2 мм.
Как показано на фото, для ворот из металла готовые створки приставляют к стойкам, опирая на кирпичи, выравнивают их по горизонтали и вертикали, фиксируют относительно стоек мягкой проволокой, после чего приваривают петли:

Для того чтобы стопорить ворота в закрытом, а при необходимости и в открытом положении, понадобятся задвижки в виде шпингалета — по одной на каждую створку (если у ворот не предусмотрена верхняя перемычка) или по две (если ворота сверху перекрыты). Задвижки можно купить готовые, а можно сделать самостоятельно, приварив к раме отрезки оцинкованной трубы 1\2 и вставив в нее стальной пруток диаметром 12 мм с загнутым концом. В землю в соответствующем месте нужно вбить или забетонировать другой отрезок трубы, для того чтобы шпингалет прочно фиксировал створку.


Обшивать рамы профлистом или листами поликарбоната можно как до монтажа, так и после, когда они уже будут стоять в проеме. Крепят эти материалы саморезами по металлу. Желательно так подобрать направление обшивки, чтобы листы не имели швов в пределах одной створки. Предварительно раму следует покрыть грунтом и краской. Если предполагается обшить створки листовой сталью или кровельным железом, то целесообразно вначале обшить раму листами с помощью сварки, а уже затем монтировать на ней навесы и задвижки. Разумеется, грунт и краску наносят после сварочных работ.
Для прохода людей в воротах из металла калитку делают небольшую, обычно из тех же материалов, что и забор.
Далее описано, как сделать металлические ворота на подвеске.